Property
Account |
| Property ID: | 35983 | Abbreviated Legal Description: | VILLAGES OF GARRISON CREEK P.U.D. PHASE VII LOT 133 |
| Parcel Number: | 350736880020 | Agent Code: | |
| Type: | Real | | |
| Tax Area: | 77 - CP-250-F | Land Use Code | 11 |
| Open Space: | N | DFL | N |
| Historic Property: | N | Remodel Property: | N |
| Multi-Family Redevelopment: | N | | |
| Township: | 7 | Section: | 36 |
| Range: | 35 |
Location |
| Address: | 1006 SE CREEKSIDE DR WA 99324 | Mapsco: | |
| Neighborhood: | G SFR | Map ID: | |
| Neighborhood CD: | 114011 |
Owner |
| Name: | LUPINE ANNIES LLC | Owner ID: | 65585 |
| Mailing Address: | 727 BLALOCK DR WALLA WALLA, WA 99362 | % Ownership: | 100.0000000000% |
| | | Exemptions: | |
Taxes and Assessment Details
Property Tax Information as of
02/21/2026
Click on "Statement Details" to expand or collapse a tax statement.
* Please enter a valid date ** Please enter a valid date *
Statement Details |
| | TOTAL: | $0.00 | $0.00 | $0.00 | $0.00 | $0.00 | $0.00 |
|
| | $0.00 | $0.00 | $0.00 | $0.00 | $0.00 | $0.00 |
Values
| (+) Improvement Homesite Value: | + | $0 | |
| (+) Improvement Non-Homesite Value: | + | $370,690 | |
| (+) Land Homesite Value: | + | $0 | |
| (+) Land Non-Homesite Value: | + | $75,000 | |
| (+) Curr Use (HS): | + | $0 | $0 |
| (+) Curr Use (NHS): | + | $0 | $0 |
| | | -------------------------- | |
| (=) Market Value: | = | $445,690 | |
| (–) Productivity Loss: | – | $0 | |
| | | -------------------------- | |
| (=) Subtotal: | = | $445,690 | |
| (+) Senior Appraised Value: | + | $0 | |
| (+) Non-Senior Appraised Value: | + | $445,690 | |
| | | -------------------------- | |
| (=) Total Appraised Value: | = | $445,690 | |
| (–) Senior Exemption Loss: | – | $0 | |
| (–) Exemption Loss: | – | $0 | |
| | | -------------------------- | |
| (=) Taxable Value: | = | $445,690 | |
Taxing Jurisdiction
| Owner: | LUPINE ANNIES LLC | | |
| % Ownership: | 100.0000000000% | | |
| Total Value: | $445,690 | | |
| Tax Area: | 77 - CP-250-F |
| CERFD | CURRENT EXPENSE REFUND 010 | 0.0000000000 | $445,690 | $445,690 | $0.00 | | |
| CURREXP | CURRENT EXPENSE 010 | 1.0175366760 | $445,690 | $445,690 | $453.51 | | |
| HUMNSERV | HUMAN SERVICES 119 | 0.0250000000 | $445,690 | $445,690 | $11.14 | | |
| SLDREL | SOLDIERS RELIEF 121 | 0.0155990005 | $445,690 | $445,690 | $6.95 | | |
| COLLPLBOND | C OF CP BOND 644 | 0.4374241808 | $445,690 | $445,690 | $194.96 | | |
| COLLPLGEN | CITY OF CP 632 | 1.4453819216 | $445,690 | $445,690 | $644.19 | | |
| EMERGSER | EMS 147 | 0.3792580840 | $445,690 | $445,690 | $169.03 | | |
| EMSRFD | EMS REFUND 147 | 0.0000000000 | $445,690 | $445,690 | $0.00 | | |
| RURALLIB | RURAL LIBRARY 623 | 0.3710609029 | $445,690 | $445,690 | $165.38 | | |
| PORTRFD | PORT REFUND 640 | 0.0000000000 | $445,690 | $445,690 | $0.00 | | |
| PORTWWGEN | PORT OF WW 640 | 0.2460186015 | $445,690 | $445,690 | $109.65 | | |
| SD250BOND | SD #250 BOND 773 | 1.4560608159 | $445,690 | $445,690 | $648.95 | | |
| SD250GEN | SD #250 GENERAL 770 | 2.3880724087 | $445,690 | $445,690 | $1,064.34 | | |
| ST2 | STATE SCHOOL PART 2 600 | 0.8131451643 | $445,690 | $445,690 | $362.41 | | |
| STATESCHL | STATE SCHOOL 600 | 1.5158548041 | $445,690 | $445,690 | $675.60 | | |
| STREFUND | STATE REFUND LEVY 603 | 0.0000000000 | $445,690 | $445,690 | $0.00 | | |
| | Total Tax Rate: | 10.1104125603 | | | | | |
| | | | | Taxes w/Current Exemptions: | $4,506.11 | | |
| | | | | Taxes w/o Exemptions: | $4,506.11 | | |
Improvement / Building
| Improvement #1: | RESIDENTIAL | State Code: | 11 | 1788.0 sqft | Value: | $370,690 |
| Exterior Wall: | PLYWOOD | Heating/Cooling: | WARM & COOLED AIR | | Number of Bathrooms: | 2 | Number of Bedrooms: | 3 | | Plumbing: | 12 | Roof Covering: | COMP SHINGLE |
|
| | Type | Description | Class CD | Sub Class CD | Year Built | Area |
| | MA | Main Area | 1 | 45 | 2003 | 1788.0 |
| | SI1 | SITE IMPROVEMENT | 1 | 45 | 2003 | 2.5 |
| | ATG | Attached Garage | 1 | 45 | 2003 | 440.0 |
| | GFP | GAS FIREPLACE | 1 | 45 | 2003 | 1.0 |
| | RPC | OPEN PORCH W/ROOF , CEILED | 1 | 45 | 2003 | 72.0 |
| | CPC | COVERED CARPORT/PATIO | 1 | 45 | 2003 | 128.0 |
Sketch
Property Image
Land
| 1 | RES 1 | Converted: Residential | 0.1555 | 6773.00 | 0.00 | 0.00 | 1.00 | $75,000 | $0 |
Roll Value History
| 2026 | N/A | N/A | N/A | N/A | N/A |
| 2025 | $362,350 | $135,000 | $0 | $497,350 | $497,350 |
| 2024 | $426,290 | $75,000 | $0 | $501,290 | $501,290 |
| 2023 | $370,690 | $75,000 | $0 | $445,690 | $445,690 |
| 2022 | $353,040 | $75,000 | $0 | $428,040 | $428,040 |
| 2021 | $282,430 | $75,000 | $0 | $357,430 | $357,430 |
| 2020 | $245,590 | $75,000 | $0 | $320,590 | $320,590 |
| 2019 | $255,590 | $65,000 | $0 | $320,590 | $320,590 |
| 2018 | $222,250 | $65,000 | $0 | $287,250 | $287,250 |
| 2017 | $202,040 | $65,000 | $0 | $267,040 | $267,040 |
| 2016 | $192,420 | $65,000 | $0 | $257,420 | $257,420 |
| 2015 | $183,260 | $65,000 | $0 | $248,260 | $248,260 |
| 2014 | $166,600 | $65,000 | $0 | $231,600 | $231,600 |
| 2013 | $166,600 | $65,000 | $0 | $231,600 | $231,600 |
| 2012 | $201,200 | $65,000 | $0 | $0 | $0 |
| 2011 | $188,500 | $65,000 | $0 | $0 | $0 |
| 2010 | $188,500 | $65,000 | $0 | $0 | $0 |
| 2009 | $201,800 | $65,000 | $0 | $0 | $0 |
| 2008 | $169,000 | $35,000 | $0 | $0 | $0 |
| 2007 | $169,000 | $35,000 | $0 | $0 | $0 |
Deed and Sales History
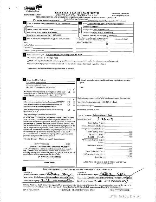
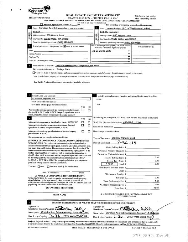
| 1 | 07/26/2019 | SWD | STATUTORY WARRANTY DEED | SCHWANENBERG CHRISTINE ANN | LUPINE ANNIES LLC | | | $0.00 | 137381 | 2019-05592 |
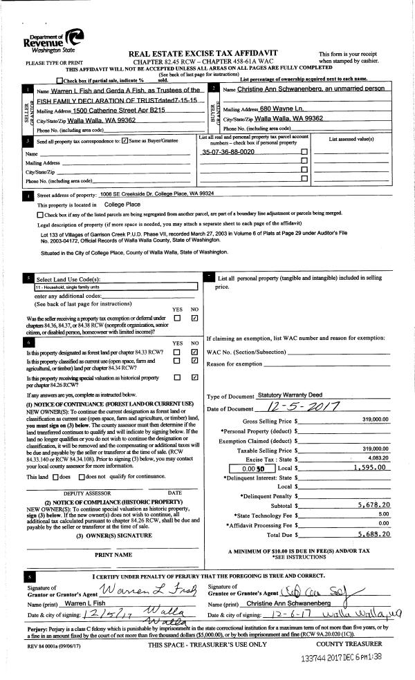
| 2 | 12/06/2017 | SWD | STATUTORY WARRANTY DEED | FISH FAMILY DECLARATION OF TRUST | SCHWANENBERG CHRISTINE ANN | | | $319,000.00 | 133744 | 2017-09788 |
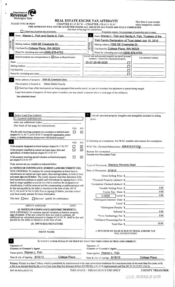
| 3 | 08/18/2015 | SWD | STATUTORY WARRANTY DEED | FISH WARREN L & GERDA A | FISH FAMILY DECLARATION OF TRUST | | | $0.00 | 128651 | 2015-07255 |
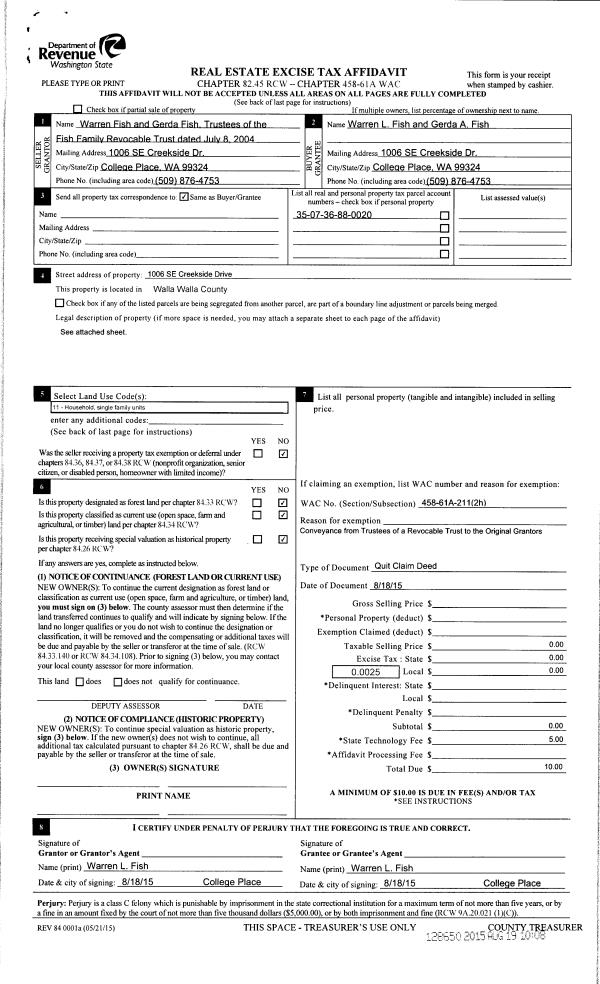
| 4 | 08/18/2015 | QCD | QUIT CLAIM DEED | FISH FAMILY REVOCABLE TRUST | FISH WARREN L & GERDA A | | | $0.00 | 128650 | 2015-07254 |
| 5 | 10/01/2013 | WARRANTY D | WARRANTY DEED | BENNETT, ELIZABETH LLC | FISH FAMILY REVOCABLE TRUST | | | $252,000.00 | 124754 | 2013-09971 |
| 6 | 05/24/2004 | QCD | QUIT CLAIM DEED | CHATHAM, KAREN LEE BAKER | BENNETT, ELIZABETH LLC | | | | 104809 | 2004-05599 |
| 7 | 04/16/2004 | QCD | QUIT CLAIM DEED | CHATHAM, ROBERT W | CHATHAM, KAREN LEE BAKER | | | | 0 | 2004-04017 |
| 8 | 04/16/2004 | WARRANTY D | WARRANTY DEED | PHASE FIVE DEVELOPMENT LLC | CHATHAM, KAREN LEE BAKER | | | $215,348.00 | 104526 | 2004-04016 |
Payout Agreement
| No payout information available.. |