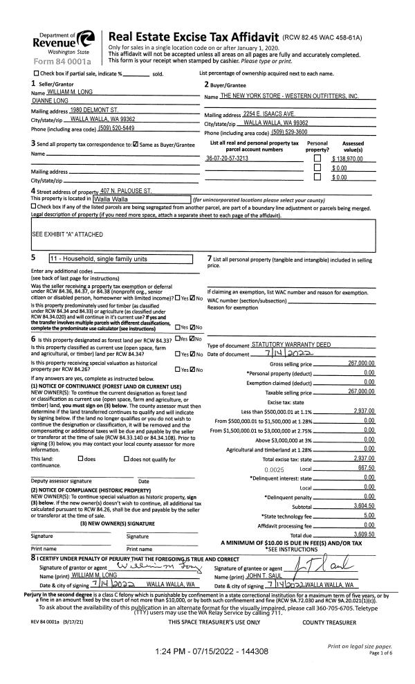
Property
Account |
| Property ID: | 35978 | Abbreviated Legal Description: | CAINS TAX 5 LOT 10 BLK 32 |
| Parcel Number: | 360720573213 | Agent Code: | |
| Type: | Real | | |
| Tax Area: | 1 - OL-140-F | Land Use Code | 11 |
| Open Space: | N | DFL | N |
| Historic Property: | N | Remodel Property: | N |
| Multi-Family Redevelopment: | N | | |
| Township: | 7 | Section: | 20 |
| Range: | 36 |
Location |
| Address: | 407 N PALOUSE ST WA 99362 | Mapsco: | |
| Neighborhood: | F SFR | Map ID: | |
| Neighborhood CD: | 512011 |
Owner |
| Name: | THE NEW YORK STORE-WESTERN OUTFITTERS INC | Owner ID: | 57217 |
| Mailing Address: | 2254 ISAACS AVE WALLA WALLA, WA 99362 | % Ownership: | 100.0000000000% |
| | | Exemptions: | |
Taxes and Assessment Details
Values
| (+) Improvement Homesite Value: | + | $0 | |
| (+) Improvement Non-Homesite Value: | + | $234,140 | |
| (+) Land Homesite Value: | + | $0 | |
| (+) Land Non-Homesite Value: | + | $18,900 | |
| (+) Curr Use (HS): | + | $0 | $0 |
| (+) Curr Use (NHS): | + | $0 | $0 |
| | | -------------------------- | |
| (=) Market Value: | = | $253,040 | |
| (–) Productivity Loss: | – | $0 | |
| | | -------------------------- | |
| (=) Subtotal: | = | $253,040 | |
| (+) Senior Appraised Value: | + | $0 | |
| (+) Non-Senior Appraised Value: | + | $253,040 | |
| | | -------------------------- | |
| (=) Total Appraised Value: | = | $253,040 | |
| (–) Senior Exemption Loss: | – | $0 | |
| (–) Exemption Loss: | – | $0 | |
| | | -------------------------- | |
| (=) Taxable Value: | = | $253,040 | |
Taxing Jurisdiction
| Owner: | THE NEW YORK STORE-WESTERN OUTFITTERS INC | | |
| % Ownership: | 100.0000000000% | | |
| Total Value: | $253,040 | | |
| Tax Area: | 1 - OL-140-F |
| CERFD | CURRENT EXPENSE REFUND 010 | 0.0000000000 | $253,040 | $253,040 | $0.00 | | |
| CURREXP | CURRENT EXPENSE 010 | 1.0175366760 | $253,040 | $253,040 | $257.48 | | |
| HUMNSERV | HUMAN SERVICES 119 | 0.0250000000 | $253,040 | $253,040 | $6.33 | | |
| SLDREL | SOLDIERS RELIEF 121 | 0.0155990005 | $253,040 | $253,040 | $3.95 | | |
| EMERGSER | EMS 147 | 0.3792580840 | $253,040 | $253,040 | $95.97 | | |
| EMSRFD | EMS REFUND 147 | 0.0000000000 | $253,040 | $253,040 | $0.00 | | |
| PORTRFD | PORT REFUND 640 | 0.0000000000 | $253,040 | $253,040 | $0.00 | | |
| PORTWWGEN | PORT OF WW 640 | 0.2460186015 | $253,040 | $253,040 | $62.25 | | |
| SD140BOND | SD #140 BOND 764 | 0.8342371393 | $253,040 | $253,040 | $211.10 | | |
| SD140GEN | SD #140 GENERAL 760 | 2.0646500647 | $253,040 | $253,040 | $522.44 | | |
| ST2 | STATE SCHOOL PART 2 600 | 0.8131451643 | $253,040 | $253,040 | $205.76 | | |
| STATESCHL | STATE SCHOOL 600 | 1.5158548041 | $253,040 | $253,040 | $383.57 | | |
| STREFUND | STATE REFUND LEVY 603 | 0.0000000000 | $253,040 | $253,040 | $0.00 | | |
| CWWBOND | C OF WW BOND 643 | 0.2760494372 | $253,040 | $253,040 | $69.85 | | |
| CWWGEN | CITY OF WW 631 | 1.6100204973 | $253,040 | $253,040 | $407.40 | | |
| CWWRFD | CITY OF WALLA WALLA REFUND 631 | 0.0000000000 | $253,040 | $253,040 | $0.00 | | |
| | Total Tax Rate: | 8.7973694689 | | | | | |
| | | | | Taxes w/Current Exemptions: | $2,226.10 | | |
| | | | | Taxes w/o Exemptions: | $2,226.10 | | |
Improvement / Building
| Improvement #1: | RESIDENTIAL | State Code: | 11 | 660.0 sqft | Value: | $234,140 |
| Exterior Wall: | STUCCO | Heating/Cooling: | FORCED AIR | | Number of Bathrooms: | 2 | Number of Bedrooms: | 2 | | Plumbing: | 10 | Roof Covering: | COMP SHINGLE |
|
| | Type | Description | Class CD | Sub Class CD | Year Built | Area |
| | MA | Main Area | 1 | 25 | 1940 | 660.0 |
| | SI1 | SITE IMPROVEMENT | 1 | 25 | 1940 | 1.0 |
| | BASE | BASEMENT | 1 | 25 | 1940 | 330.0 |
| | BPF | BASEMENT -PARTITIONED FINISH | 1 | 25 | 1940 | 330.0 |
| | OPS | OPEN PORCH W/STEPS | 1 | 25 | 1940 | 30.0 |
Sketch
Property Image
Land
| 1 | RES 1 | Converted: Residential | 0.0826 | 3600.00 | 0.00 | 0.00 | 1.00 | $18,900 | $0 |
Roll Value History
| 2026 | N/A | N/A | N/A | N/A | N/A |
| 2025 | $232,200 | $32,400 | $0 | $264,600 | $264,600 |
| 2024 | $193,500 | $32,400 | $0 | $225,900 | $225,900 |
| 2023 | $234,140 | $18,900 | $0 | $253,040 | $253,040 |
| 2022 | $180,110 | $18,900 | $0 | $199,010 | $199,010 |
| 2021 | $120,070 | $18,900 | $0 | $138,970 | $138,970 |
| 2020 | $100,060 | $18,900 | $0 | $118,960 | $118,960 |
| 2019 | $100,060 | $18,900 | $0 | $118,960 | $118,960 |
| 2018 | $62,900 | $18,900 | $0 | $81,800 | $81,800 |
| 2017 | $39,000 | $10,800 | $0 | $49,800 | $49,800 |
| 2016 | $39,000 | $10,800 | $0 | $49,800 | $49,800 |
| 2015 | $39,000 | $10,800 | $0 | $49,800 | $49,800 |
| 2014 | $39,000 | $10,800 | $0 | $49,800 | $49,800 |
| 2013 | $39,000 | $10,800 | $0 | $49,800 | $49,800 |
| 2012 | $68,500 | $10,800 | $0 | $0 | $0 |
| 2011 | $68,500 | $10,800 | $0 | $0 | $0 |
| 2010 | $64,700 | $10,800 | $0 | $0 | $0 |
| 2009 | $73,100 | $10,800 | $0 | $0 | $0 |
| 2008 | $37,400 | $10,800 | $0 | $0 | $0 |
| 2007 | $37,400 | $10,800 | $0 | $0 | $0 |
Deed and Sales History
| 1 | 07/15/2022 | SWD | STATUTORY WARRANTY DEED | LONG WILLIAM M & DIANNE | THE NEW YORK STORE-WESTERN OUTFITTERS INC | | | $267,000.00 | 144308 | 2022-06026 |
| 2 | 09/09/2013 | WARRANTY D | WARRANTY DEED | RIETZ LIVING TRUST | LONG, WILLIAM M & DIANNE | | | $50,000.00 | 124620 | 2013-09227 |
| 3 | 05/01/1978 | WARRANTY D | WARRANTY DEED | | | | | $16,500.00 | 0 | 8200-64000 |
Payout Agreement
| No payout information available.. |