Property
Account |
| Property ID: | 35975 | Abbreviated Legal Description: | AMENDED SHADE TREE PUD LT 2 |
| Parcel Number: | 360728830002 | Agent Code: | |
| Type: | Real | | |
| Tax Area: | 6 - OL-140-F-FB | Land Use Code | 91 |
| Open Space: | N | DFL | N |
| Historic Property: | N | Remodel Property: | N |
| Multi-Family Redevelopment: | N | | |
| Township: | 7 | Section: | 28 |
| Range: | 36 |
Location |
| Address: | 838 BRYANT AVE WA 99362 | Mapsco: | |
| Neighborhood: | G Res | Map ID: | |
| Neighborhood CD: | 614011 |
Owner |
| Name: | BOYD SEAN P & ANNIE S | Owner ID: | 64506 |
| Mailing Address: | 838 BRYANT AVE WALLA WALLA, WA 99362 | % Ownership: | 100.0000000000% |
| | | Exemptions: | |
Taxes and Assessment Details
Values
| (+) Improvement Homesite Value: | + | N/A | |
| (+) Improvement Non-Homesite Value: | + | N/A | |
| (+) Land Homesite Value: | + | N/A | |
| (+) Land Non-Homesite Value: | + | N/A | Ag / Timber Use Value |
| (+) Curr Use (HS): | + | N/A | N/A |
| (+) Curr Use (NHS): | + | N/A | N/A |
| | | -------------------------- | |
| (=) Market Value: | = | N/A | |
| (–) Productivity Loss: | – | N/A | |
| | | -------------------------- | |
| (=) Subtotal: | = | N/A | |
| (+) Senior Appraised Value: | + | N/A | |
| (+) Non-Senior Appraised Value: | + | N/A | |
| | | -------------------------- | |
| (=) Total Appraised Value: | = | N/A | |
| (–) Senior Exemption Loss: | – | N/A | |
| (–) Exemption Loss: | – | N/A | |
| | | -------------------------- | |
| (=) Taxable Value: | = | N/A | |
Taxing Jurisdiction
| Owner: | BOYD SEAN P & ANNIE S | | |
| % Ownership: | 100.0000000000% | | |
| Total Value: | N/A | | |
| Tax Area: | 6 - OL-140-F-FB |
| CERFD | CURRENT EXPENSE REFUND 010 | N/A | N/A | N/A | N/A | | |
| CURREXP | CURRENT EXPENSE 010 | N/A | N/A | N/A | N/A | | |
| HUMNSERV | HUMAN SERVICES 119 | N/A | N/A | N/A | N/A | | |
| SLDREL | SOLDIERS RELIEF 121 | N/A | N/A | N/A | N/A | | |
| EMERGSER | EMS 147 | N/A | N/A | N/A | N/A | | |
| EMSRFD | EMS REFUND 147 | N/A | N/A | N/A | N/A | | |
| PORTRFD | PORT REFUND 640 | N/A | N/A | N/A | N/A | | |
| PORTWWGEN | PORT OF WW 640 | N/A | N/A | N/A | N/A | | |
| SD140BOND | SD #140 BOND 764 | N/A | N/A | N/A | N/A | | |
| SD140GEN | SD #140 GENERAL 760 | N/A | N/A | N/A | N/A | | |
| ST2 | STATE SCHOOL PART 2 600 | N/A | N/A | N/A | N/A | | |
| STATESCHL | STATE SCHOOL 600 | N/A | N/A | N/A | N/A | | |
| STREFUND | STATE REFUND LEVY 603 | N/A | N/A | N/A | N/A | | |
| CWWBOND | C OF WW BOND 643 | N/A | N/A | N/A | N/A | | |
| CWWGEN | CITY OF WW 631 | N/A | N/A | N/A | N/A | | |
| CWWRFD | CITY OF WALLA WALLA REFUND 631 | N/A | N/A | N/A | N/A | | |
| | Total Tax Rate: | N/A | | | | | |
| | | | | Taxes w/Current Exemptions: | N/A | | |
| | | | | Taxes w/o Exemptions: | N/A | | |
Improvement / Building
Sketch
| No sketches available for this property. |
Property Image
Land
| 1 | RES 1 | Converted: Residential | 0.2524 | 10993.00 | 0.00 | 0.00 | 1.00 | N/A | N/A |
Roll Value History
| 2026 | N/A | N/A | N/A | N/A | N/A |
| 2025 | $0 | $75,000 | $0 | $75,000 | $75,000 |
| 2024 | $0 | $120,000 | $0 | $120,000 | $120,000 |
| 2023 | $0 | $120,000 | $0 | $120,000 | $120,000 |
| 2022 | $0 | $47,500 | $0 | $47,500 | $47,500 |
| 2021 | $0 | $47,500 | $0 | $47,500 | $47,500 |
| 2020 | $0 | $47,500 | $0 | $47,500 | $47,500 |
| 2019 | $0 | $47,500 | $0 | $47,500 | $47,500 |
| 2018 | $0 | $30,000 | $0 | $30,000 | $30,000 |
| 2017 | $0 | $30,000 | $0 | $30,000 | $30,000 |
| 2016 | $0 | $30,000 | $0 | $30,000 | $30,000 |
| 2015 | $0 | $30,000 | $0 | $30,000 | $30,000 |
| 2014 | $0 | $30,000 | $0 | $30,000 | $30,000 |
| 2013 | $0 | $30,000 | $0 | $30,000 | $30,000 |
| 2012 | $0 | $60,000 | $0 | $0 | $0 |
| 2011 | $0 | $60,000 | $0 | $0 | $0 |
| 2010 | $0 | $54,000 | $0 | $0 | $0 |
| 2009 | $0 | $60,000 | $0 | $0 | $0 |
| 2008 | $0 | $60,000 | $0 | $0 | $0 |
| 2007 | $0 | $38,000 | $0 | $0 | $0 |
Deed and Sales History
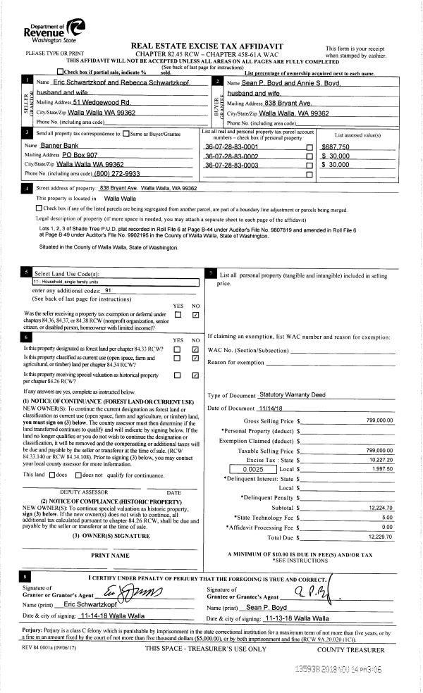
| 1 | 11/14/2018 | SWD | STATUTORY WARRANTY DEED | SCHWARTZKOPF ERIC & REBECCA | BOYD SEAN P & ANNIE S | | 3-PARCELS | $799,000.00 | 135938 | 2018-09445 |
|   | |
| 2 | 09/03/2013 | WARRANTY D | WARRANTY DEED | FIGGINS, CHRISTOPHER S | SCHWARTZKOPF ERIC & REBECCA | 3-PARCELS | | $750,000.00 | 124596 | 2013-09095 |
|   | |
| 3 | 11/22/2011 | QCD | QUIT CLAIM DEED | FIGGINS, CHRISTOPHER S | FIGGINS CHRISTOPHER S | | | | 121031 | 2011-09205 |
| 4 | 10/25/2010 | WARRANTY D | WARRANTY DEED | WOODFIELD, BLAIR B | FIGGINS CHRISTOPHER S | 3-PARCELS | | $645,000.00 | 119244 | 2010-08669 |
|   | |
| 5 | 11/26/2002 | QCD | QUIT CLAIM DEED | WHATLEY, BARBARA | WOODFIELD, BLAIR B | | | $32,667.00 | 100900 | 2002-13517 |
|   | |
| 6 | 10/20/2000 | WARRANTY D | WARRANTY DEED | | | | | $81,250.00 | 96036 | 3040-010086 |
|   | |
Payout Agreement
| No payout information available.. |