Property
Account |
| Property ID: | 35969 | Abbreviated Legal Description: | HENDERSON LOT 6 BLK A |
| Parcel Number: | 360729682806 | Agent Code: | |
| Type: | Real | | |
| Tax Area: | 1 - OL-140-F | Land Use Code | 11 |
| Open Space: | N | DFL | N |
| Historic Property: | N | Remodel Property: | N |
| Multi-Family Redevelopment: | N | | |
| Township: | 7 | Section: | 29 |
| Range: | 36 |
Location |
| Address: | 232 MALCOLM ST WA 99362 | Mapsco: | |
| Neighborhood: | Fair Res | Map ID: | |
| Neighborhood CD: | 612011 |
Owner |
| Name: | BELECHE JOSE LUIS & MARILYN MELGOZA OCHOA | Owner ID: | 69985 |
| Mailing Address: | 232 MALCOLM ST WALLA WALLA, WA 99362 | % Ownership: | 100.0000000000% |
| | | Exemptions: | |
Taxes and Assessment Details
Values
| (+) Improvement Homesite Value: | + | $0 | |
| (+) Improvement Non-Homesite Value: | + | $207,930 | |
| (+) Land Homesite Value: | + | $0 | |
| (+) Land Non-Homesite Value: | + | $40,000 | |
| (+) Curr Use (HS): | + | $0 | $0 |
| (+) Curr Use (NHS): | + | $0 | $0 |
| | | -------------------------- | |
| (=) Market Value: | = | $247,930 | |
| (–) Productivity Loss: | – | $0 | |
| | | -------------------------- | |
| (=) Subtotal: | = | $247,930 | |
| (+) Senior Appraised Value: | + | $0 | |
| (+) Non-Senior Appraised Value: | + | $247,930 | |
| | | -------------------------- | |
| (=) Total Appraised Value: | = | $247,930 | |
| (–) Senior Exemption Loss: | – | $0 | |
| (–) Exemption Loss: | – | $0 | |
| | | -------------------------- | |
| (=) Taxable Value: | = | $247,930 | |
Taxing Jurisdiction
| Owner: | BELECHE JOSE LUIS & MARILYN MELGOZA OCHOA | | |
| % Ownership: | 100.0000000000% | | |
| Total Value: | $247,930 | | |
| Tax Area: | 1 - OL-140-F |
| CERFD | CURRENT EXPENSE REFUND 010 | 0.0000000000 | $247,930 | $247,930 | $0.00 | | |
| CURREXP | CURRENT EXPENSE 010 | 1.0175366760 | $247,930 | $247,930 | $252.28 | | |
| HUMNSERV | HUMAN SERVICES 119 | 0.0250000000 | $247,930 | $247,930 | $6.20 | | |
| SLDREL | SOLDIERS RELIEF 121 | 0.0155990005 | $247,930 | $247,930 | $3.87 | | |
| EMERGSER | EMS 147 | 0.3792580840 | $247,930 | $247,930 | $94.03 | | |
| EMSRFD | EMS REFUND 147 | 0.0000000000 | $247,930 | $247,930 | $0.00 | | |
| PORTRFD | PORT REFUND 640 | 0.0000000000 | $247,930 | $247,930 | $0.00 | | |
| PORTWWGEN | PORT OF WW 640 | 0.2460186015 | $247,930 | $247,930 | $61.00 | | |
| SD140BOND | SD #140 BOND 764 | 0.8342371393 | $247,930 | $247,930 | $206.83 | | |
| SD140GEN | SD #140 GENERAL 760 | 2.0646500647 | $247,930 | $247,930 | $511.89 | | |
| ST2 | STATE SCHOOL PART 2 600 | 0.8131451643 | $247,930 | $247,930 | $201.60 | | |
| STATESCHL | STATE SCHOOL 600 | 1.5158548041 | $247,930 | $247,930 | $375.83 | | |
| STREFUND | STATE REFUND LEVY 603 | 0.0000000000 | $247,930 | $247,930 | $0.00 | | |
| CWWBOND | C OF WW BOND 643 | 0.2760494372 | $247,930 | $247,930 | $68.44 | | |
| CWWGEN | CITY OF WW 631 | 1.6100204973 | $247,930 | $247,930 | $399.17 | | |
| CWWRFD | CITY OF WALLA WALLA REFUND 631 | 0.0000000000 | $247,930 | $247,930 | $0.00 | | |
| | Total Tax Rate: | 8.7973694689 | | | | | |
| | | | | Taxes w/Current Exemptions: | $2,181.14 | | |
| | | | | Taxes w/o Exemptions: | $2,181.14 | | |
Improvement / Building
| Improvement #1: | RESIDENTIAL | State Code: | 11 | 960.0 sqft | Value: | $207,930 |
| Exterior Wall: | VINYL | Heating/Cooling: | WARM & COOLED AIR | | Number of Bathrooms: | 1 | Number of Bedrooms: | 3 | | Plumbing: | 7 | Roof Covering: | COMP SHINGLE |
|
| | Type | Description | Class CD | Sub Class CD | Year Built | Area |
| | MA | Main Area | 1 | 20 | 1911 | 960.0 |
| | SI1 | SITE IMPROVEMENT | 1 | 20 | 1911 | 1.0 |
| | OPS | OPEN PORCH W/STEPS | 1 | 20 | 1911 | 20.0 |
| | CPCD | CARPORT/DIRT FLOOR | 1 | 25 | 1911 | 192.0 |
Sketch
Property Image
Land
| 1 | RES 1 | Converted: Residential | 0.1148 | 5000.00 | 0.00 | 0.00 | 1.00 | $40,000 | $0 |
Roll Value History
| 2026 | N/A | N/A | N/A | N/A | N/A |
| 2025 | $200,130 | $50,000 | $0 | $250,130 | $250,130 |
| 2024 | $207,930 | $40,000 | $0 | $247,930 | $247,930 |
| 2023 | $207,930 | $40,000 | $0 | $247,930 | $247,930 |
| 2022 | $207,930 | $31,250 | $0 | $239,180 | $239,180 |
| 2021 | $173,270 | $31,250 | $0 | $204,520 | $204,520 |
| 2020 | $128,350 | $31,250 | $0 | $159,600 | $159,600 |
| 2019 | $128,350 | $31,250 | $0 | $159,600 | $159,600 |
| 2018 | $129,620 | $30,000 | $0 | $159,620 | $159,620 |
| 2017 | $112,710 | $30,000 | $0 | $142,710 | $142,710 |
| 2016 | $107,340 | $30,000 | $0 | $137,340 | $137,340 |
| 2015 | $97,590 | $30,000 | $0 | $127,590 | $127,590 |
| 2014 | $67,300 | $30,000 | $0 | $97,300 | $97,300 |
| 2013 | $67,300 | $30,000 | $0 | $97,300 | $97,300 |
| 2012 | $65,500 | $30,000 | $0 | $0 | $0 |
| 2011 | $65,500 | $30,000 | $0 | $0 | $0 |
| 2010 | $65,500 | $30,000 | $0 | $0 | $0 |
| 2009 | $76,100 | $30,000 | $0 | $0 | $0 |
| 2008 | $90,300 | $30,000 | $0 | $0 | $0 |
| 2007 | $52,600 | $10,000 | $0 | $0 | $0 |
Deed and Sales History
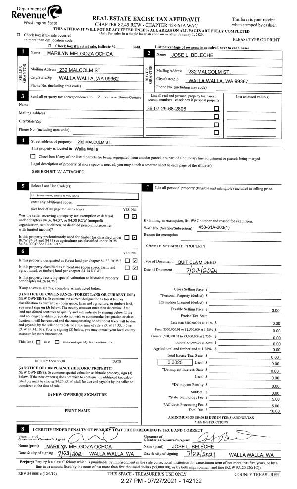
| 1 | 08/02/2021 | QCD | QUIT CLAIM DEED | BELECHE JOSE L | BELECHE JOSE LUIS & MARILYN MELGOZA OCHOA | | | $0.00 | 142199 | 2021-09439 |
| 2 | 07/22/2021 | QCD | QUIT CLAIM DEED | OCHOA MARILYN MELGOZA | BELECHE JOSE L | | | $0.00 | 142132 | 2021-09144 |
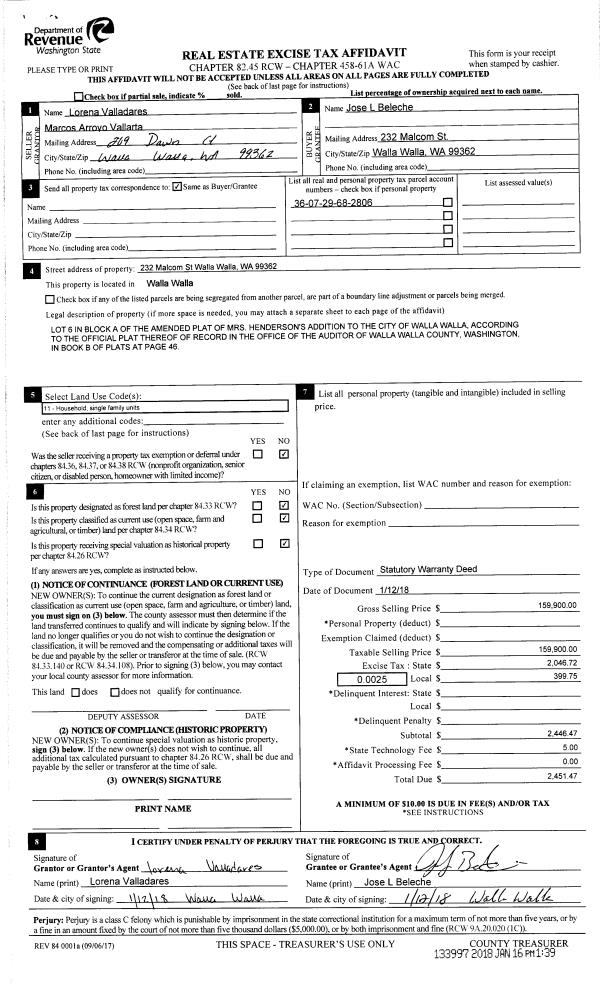
| 3 | 01/16/2018 | SWD | STATUTORY WARRANTY DEED | VALLARTA MARCOS ARROYO | BELECHE JOSE L | | | $159,900.00 | 133997 | 2018-00445 |
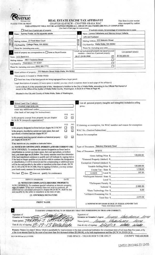
| 4 | 08/23/2013 | WARRANTY D | WARRANTY DEED | FOSTER, SYDNEY | VALLARTA, MARCOS ARROYO | | | $135,000.00 | 124531 | 2013-08702 |
| 5 | 01/05/2007 | WARRANTY D | WARRANTY DEED | BANK OF NEW YORK AS TRUSTEE FO | FOSTER, SYDNEY | | | $106,100.00 | 112031 | 2007-00178 |
| 6 | 08/28/2006 | WARRANTY D | WARRANTY DEED | MAURER, RICHARD W & MICHELLE G | BANK OF NEW YORK AS TRUSTEE FO | | | $122,904.00 | 111056 | 2006-10324 |
| 7 | 09/06/2005 | WARRANTY D | WARRANTY DEED | KING, SHAYLIN E & MICHELLE | MAURER, RICHARD W & MICHELLE G | | | $115,700.00 | 108430 | 2005-11055 |
| 8 | 06/28/2002 | WARRANTY D | WARRANTY DEED | | | | | $65,300.00 | 99816 | 2002-0007426 |
Payout Agreement
| No payout information available.. |