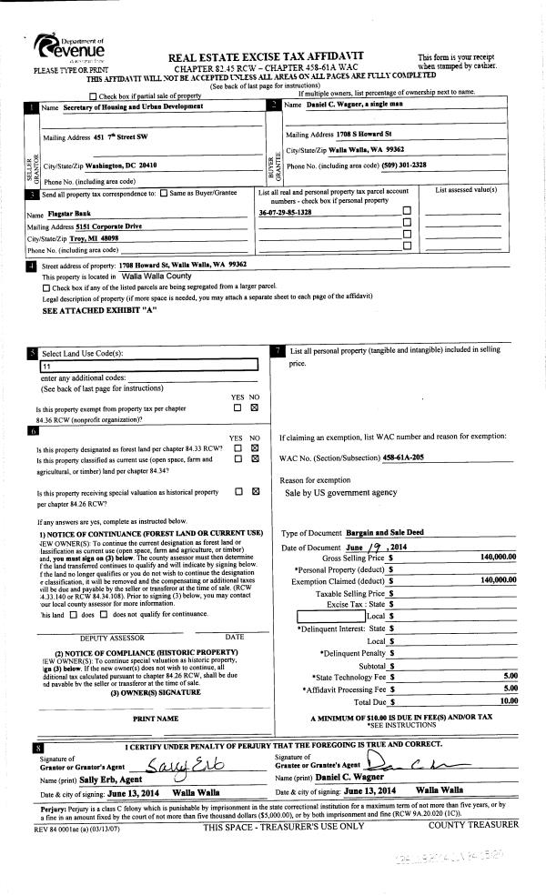
Property
Account |
| Property ID: | 35966 | Abbreviated Legal Description: | MTN VIEW LOTS 26 AND 27 BLK 13 LESS S 100' |
| Parcel Number: | 360729851328 | Agent Code: | |
| Type: | Real | | |
| Tax Area: | 1 - OL-140-F | Land Use Code | 11 |
| Open Space: | N | DFL | N |
| Historic Property: | N | Remodel Property: | N |
| Multi-Family Redevelopment: | N | | |
| Township: | 7 | Section: | 29 |
| Range: | 36 |
Location |
| Address: | 1708 HOWARD ST WA 99362 | Mapsco: | |
| Neighborhood: | A Res | Map ID: | |
| Neighborhood CD: | 613011 |
Owner |
| Name: | WAGNER DAN C | Owner ID: | 55001 |
| Mailing Address: | 1708 HOWARD ST WALLA WALLA, WA 99362 | % Ownership: | 100.0000000000% |
| | | Exemptions: | |
Taxes and Assessment Details
Values
| (+) Improvement Homesite Value: | + | $0 | |
| (+) Improvement Non-Homesite Value: | + | $320,210 | |
| (+) Land Homesite Value: | + | $0 | |
| (+) Land Non-Homesite Value: | + | $40,500 | |
| (+) Curr Use (HS): | + | $0 | $0 |
| (+) Curr Use (NHS): | + | $0 | $0 |
| | | -------------------------- | |
| (=) Market Value: | = | $360,710 | |
| (–) Productivity Loss: | – | $0 | |
| | | -------------------------- | |
| (=) Subtotal: | = | $360,710 | |
| (+) Senior Appraised Value: | + | $0 | |
| (+) Non-Senior Appraised Value: | + | $360,710 | |
| | | -------------------------- | |
| (=) Total Appraised Value: | = | $360,710 | |
| (–) Senior Exemption Loss: | – | $0 | |
| (–) Exemption Loss: | – | $0 | |
| | | -------------------------- | |
| (=) Taxable Value: | = | $360,710 | |
Taxing Jurisdiction
| Owner: | WAGNER DAN C | | |
| % Ownership: | 100.0000000000% | | |
| Total Value: | $360,710 | | |
| Tax Area: | 1 - OL-140-F |
| CERFD | CURRENT EXPENSE REFUND 010 | 0.0000000000 | $360,710 | $360,710 | $0.00 | | |
| CURREXP | CURRENT EXPENSE 010 | 1.0175366760 | $360,710 | $360,710 | $367.04 | | |
| HUMNSERV | HUMAN SERVICES 119 | 0.0250000000 | $360,710 | $360,710 | $9.02 | | |
| SLDREL | SOLDIERS RELIEF 121 | 0.0155990005 | $360,710 | $360,710 | $5.63 | | |
| EMERGSER | EMS 147 | 0.3792580840 | $360,710 | $360,710 | $136.80 | | |
| EMSRFD | EMS REFUND 147 | 0.0000000000 | $360,710 | $360,710 | $0.00 | | |
| PORTRFD | PORT REFUND 640 | 0.0000000000 | $360,710 | $360,710 | $0.00 | | |
| PORTWWGEN | PORT OF WW 640 | 0.2460186015 | $360,710 | $360,710 | $88.74 | | |
| SD140BOND | SD #140 BOND 764 | 0.8342371393 | $360,710 | $360,710 | $300.92 | | |
| SD140GEN | SD #140 GENERAL 760 | 2.0646500647 | $360,710 | $360,710 | $744.74 | | |
| ST2 | STATE SCHOOL PART 2 600 | 0.8131451643 | $360,710 | $360,710 | $293.31 | | |
| STATESCHL | STATE SCHOOL 600 | 1.5158548041 | $360,710 | $360,710 | $546.78 | | |
| STREFUND | STATE REFUND LEVY 603 | 0.0000000000 | $360,710 | $360,710 | $0.00 | | |
| CWWBOND | C OF WW BOND 643 | 0.2760494372 | $360,710 | $360,710 | $99.57 | | |
| CWWGEN | CITY OF WW 631 | 1.6100204973 | $360,710 | $360,710 | $580.75 | | |
| CWWRFD | CITY OF WALLA WALLA REFUND 631 | 0.0000000000 | $360,710 | $360,710 | $0.00 | | |
| | Total Tax Rate: | 8.7973694689 | | | | | |
| | | | | Taxes w/Current Exemptions: | $3,173.30 | | |
| | | | | Taxes w/o Exemptions: | $3,173.30 | | |
Improvement / Building
| Improvement #1: | RESIDENTIAL | State Code: | 11 | 1333.0 sqft | Value: | $320,210 |
| Exterior Wall: | SIDING | Heating/Cooling: | WARM & COOLED AIR | | Number of Bathrooms: | 1 | Number of Bedrooms: | 2 | | Plumbing: | 7 | Roof Covering: | COMP SHINGLE |
|
| | Type | Description | Class CD | Sub Class CD | Year Built | Area |
| | MA | Main Area | 1 | 30 | 1953 | 1333.0 |
| | SI1 | SITE IMPROVEMENT | 1 | 30 | 1953 | 1.5 |
| | BASE | BASEMENT | 1 | 30 | 1953 | 434.0 |
| | BPF | BASEMENT -PARTITIONED FINISH | 1 | 30 | 1953 | 434.0 |
| | ATG | Attached Garage | 1 | 30 | 1953 | 286.0 |
| | RPO | OPEN PORCH W/ROOF | 1 | 30 | 1953 | 30.0 |
| | S1F | Single One Story Fireplace | 1 | 30 | 1953 | 1.0 |
| | RPO | OPEN PORCH W/ROOF | 1 | 30 | 1953 | 255.0 |
Sketch
Property Image
Land
| 1 | RES 1 | Converted: Residential | 0.1033 | 4500.00 | 0.00 | 0.00 | 1.00 | $40,500 | $0 |
Roll Value History
| 2026 | N/A | N/A | N/A | N/A | N/A |
| 2025 | $277,250 | $49,500 | $0 | $326,750 | $326,750 |
| 2024 | $320,210 | $40,500 | $0 | $360,710 | $360,710 |
| 2023 | $320,210 | $40,500 | $0 | $360,710 | $360,710 |
| 2022 | $320,210 | $32,630 | $0 | $352,840 | $352,840 |
| 2021 | $228,720 | $32,630 | $0 | $261,350 | $261,350 |
| 2020 | $163,370 | $32,630 | $0 | $196,000 | $196,000 |
| 2019 | $163,370 | $32,630 | $0 | $196,000 | $196,000 |
| 2018 | $169,030 | $27,000 | $0 | $196,030 | $196,030 |
| 2017 | $130,020 | $27,000 | $0 | $157,020 | $157,020 |
| 2016 | $118,200 | $27,000 | $0 | $145,200 | $145,200 |
| 2015 | $118,200 | $27,000 | $0 | $145,200 | $145,200 |
| 2014 | $118,200 | $27,000 | $0 | $145,200 | $145,200 |
| 2013 | $118,200 | $27,000 | $0 | $145,200 | $145,200 |
| 2012 | $159,000 | $27,000 | $0 | $0 | $0 |
| 2011 | $159,000 | $27,000 | $0 | $0 | $0 |
| 2010 | $134,700 | $27,000 | $0 | $0 | $0 |
| 2009 | $152,700 | $27,000 | $0 | $0 | $0 |
| 2008 | $152,700 | $27,000 | $0 | $0 | $0 |
| 2007 | $84,500 | $13,500 | $0 | $0 | $0 |
Deed and Sales History
| 1 | 06/24/2014 | BARGAIN & | BARGAIN & SALE DEED | SECRETARY OF HOUSING & URBAN DEVELOPMENT | WAGNER DAN C | | | $140,000.00 | 126119 | 2014-04343 |
| 2 | 03/04/2013 | WARRANTY D | WARRANTY DEED | BANK OF AMERICA NA | SECRETARY OF HOUSING & URBAN DEVELOPMENT | | | $0.00 | 125512 | 2014-01484 |
| 3 | 08/12/2013 | WARRANTY D | WARRANTY DEED | BALAKIER, DENNIS ESTATE OF | BANK OF AMERICA NA | | | $175,604.00 | 124454 | 2013-08191 |
| 4 | 10/18/2005 | QCD | QUIT CLAIM DEED | BALAKIER, MARY M | BALAKIER, DENNIS | | | | 108784 | 2005-13042 |
| 5 | 10/18/2005 | WARRANTY D | WARRANTY DEED | GORDON, SHAUN & STEPHYNIE | BALAKIER, DENNIS | | | $179,900.00 | 108783 | 2005-13050 |
| 6 | 09/10/2003 | WARRANTY D | WARRANTY DEED | CORONADO, FIDEL A | GORDON, SHAUN & STEPHYNIE | | | $117,500.00 | 102982 | 2003-13800 |
| 7 | 05/29/2001 | WARRANTY D | WARRANTY DEED | | | | | $105,000.00 | 97241 | 3130-105525 |
Payout Agreement
| No payout information available.. |