Property
Account |
| Property ID: | 35924 | Abbreviated Legal Description: | PHILIP SHAUBLE'S LOT 1 BLK 51 AND TRACT, LOT 2 & 3 BLK 51 |
| Parcel Number: | 360720725101 | Agent Code: | |
| Type: | Real | | |
| Tax Area: | 1 - OL-140-F | Land Use Code | 54 |
| Open Space: | N | DFL | N |
| Historic Property: | N | Remodel Property: | N |
| Multi-Family Redevelopment: | N | | |
| Township: | | Section: | |
| Range: | |
Location |
| Address: | 315 N 2ND AVE WA 99362 | Mapsco: | |
| Neighborhood: | WW Downtown Core area #3 | Map ID: | |
| Neighborhood CD: | 5343 |
Owner |
| Name: | CIRCLE K STORES INC | Owner ID: | 51887 |
| Mailing Address: | PO BOX 52085 PHOENIX, AZ 85072 | % Ownership: | 100.0000000000% |
| | | Exemptions: | |
Taxes and Assessment Details
Values
| (+) Improvement Homesite Value: | + | $0 | |
| (+) Improvement Non-Homesite Value: | + | $567,000 | |
| (+) Land Homesite Value: | + | $0 | |
| (+) Land Non-Homesite Value: | + | $247,500 | |
| (+) Curr Use (HS): | + | $0 | $0 |
| (+) Curr Use (NHS): | + | $0 | $0 |
| | | -------------------------- | |
| (=) Market Value: | = | $814,500 | |
| (–) Productivity Loss: | – | $0 | |
| | | -------------------------- | |
| (=) Subtotal: | = | $814,500 | |
| (+) Senior Appraised Value: | + | $0 | |
| (+) Non-Senior Appraised Value: | + | $814,500 | |
| | | -------------------------- | |
| (=) Total Appraised Value: | = | $814,500 | |
| (–) Senior Exemption Loss: | – | $0 | |
| (–) Exemption Loss: | – | $0 | |
| | | -------------------------- | |
| (=) Taxable Value: | = | $814,500 | |
Taxing Jurisdiction
| Owner: | CIRCLE K STORES INC | | |
| % Ownership: | 100.0000000000% | | |
| Total Value: | $814,500 | | |
| Tax Area: | 1 - OL-140-F |
| CERFD | CURRENT EXPENSE REFUND 010 | 0.0000000000 | $814,500 | $814,500 | $0.00 | | |
| CURREXP | CURRENT EXPENSE 010 | 1.0175366760 | $814,500 | $814,500 | $828.78 | | |
| HUMNSERV | HUMAN SERVICES 119 | 0.0250000000 | $814,500 | $814,500 | $20.36 | | |
| SLDREL | SOLDIERS RELIEF 121 | 0.0155990005 | $814,500 | $814,500 | $12.71 | | |
| EMERGSER | EMS 147 | 0.3792580840 | $814,500 | $814,500 | $308.91 | | |
| EMSRFD | EMS REFUND 147 | 0.0000000000 | $814,500 | $814,500 | $0.00 | | |
| PORTRFD | PORT REFUND 640 | 0.0000000000 | $814,500 | $814,500 | $0.00 | | |
| PORTWWGEN | PORT OF WW 640 | 0.2460186015 | $814,500 | $814,500 | $200.38 | | |
| SD140BOND | SD #140 BOND 764 | 0.8342371393 | $814,500 | $814,500 | $679.49 | | |
| SD140GEN | SD #140 GENERAL 760 | 2.0646500647 | $814,500 | $814,500 | $1,681.66 | | |
| ST2 | STATE SCHOOL PART 2 600 | 0.8131451643 | $814,500 | $814,500 | $662.31 | | |
| STATESCHL | STATE SCHOOL 600 | 1.5158548041 | $814,500 | $814,500 | $1,234.66 | | |
| STREFUND | STATE REFUND LEVY 603 | 0.0000000000 | $814,500 | $814,500 | $0.00 | | |
| CWWBOND | C OF WW BOND 643 | 0.2760494372 | $814,500 | $814,500 | $224.84 | | |
| CWWGEN | CITY OF WW 631 | 1.6100204973 | $814,500 | $814,500 | $1,311.36 | | |
| CWWRFD | CITY OF WALLA WALLA REFUND 631 | 0.0000000000 | $814,500 | $814,500 | $0.00 | | |
| | Total Tax Rate: | 8.7973694689 | | | | | |
| | | | | Taxes w/Current Exemptions: | $7,165.46 | | |
| | | | | Taxes w/o Exemptions: | $7,165.46 | | |
Improvement / Building
| Improvement #1: | COMMERCIAL | State Code: | 54 | 3486.0 sqft | Value: | $567,000 |
| | Type | Description | Class CD | Sub Class CD | Year Built | Area |
| | MA | Main Area | D | * | 2005 | 3486.0 |
| | HBAT | HALF BATH | D | * | 2005 | 1.0 |
| | SI1 | SITE IMPROVEMENT | D | * | 2005 | 8.0 |
| | PRKSTLA | PARK STALL AVERAGE | D | * | 2005 | 16.0 |
Sketch
Property Image
Land
| 1 | COM 1 | Converted: Commercial | 0.5165 | 22500.00 | 0.00 | 0.00 | 1.00 | $247,500 | $0 |
Roll Value History
| 2026 | N/A | N/A | N/A | N/A | N/A |
| 2025 | $554,800 | $270,000 | $0 | $824,800 | $824,800 |
| 2024 | $553,800 | $270,000 | $0 | $823,800 | $823,800 |
| 2023 | $567,000 | $247,500 | $0 | $814,500 | $814,500 |
| 2022 | $527,700 | $247,500 | $0 | $775,200 | $775,200 |
| 2021 | $484,000 | $247,500 | $0 | $731,500 | $731,500 |
| 2020 | $484,000 | $247,500 | $0 | $731,500 | $731,500 |
| 2019 | $484,000 | $247,500 | $0 | $731,500 | $731,500 |
| 2018 | $484,000 | $247,500 | $0 | $731,500 | $731,500 |
| 2017 | $473,700 | $247,500 | $0 | $721,200 | $721,200 |
| 2016 | $473,700 | $247,500 | $0 | $721,200 | $721,200 |
| 2015 | $524,700 | $196,500 | $0 | $721,200 | $721,200 |
| 2014 | $238,500 | $196,500 | $0 | $435,000 | $435,000 |
| 2013 | $238,500 | $196,500 | $0 | $435,000 | $435,000 |
| 2012 | $355,900 | $146,300 | $0 | $0 | $0 |
| 2011 | $461,400 | $146,300 | $0 | $0 | $0 |
| 2010 | $461,400 | $146,300 | $0 | $0 | $0 |
| 2009 | $461,400 | $146,300 | $0 | $0 | $0 |
| 2008 | $461,400 | $146,300 | $0 | $0 | $0 |
| 2007 | $400,100 | $146,300 | $0 | $0 | $0 |
Deed and Sales History
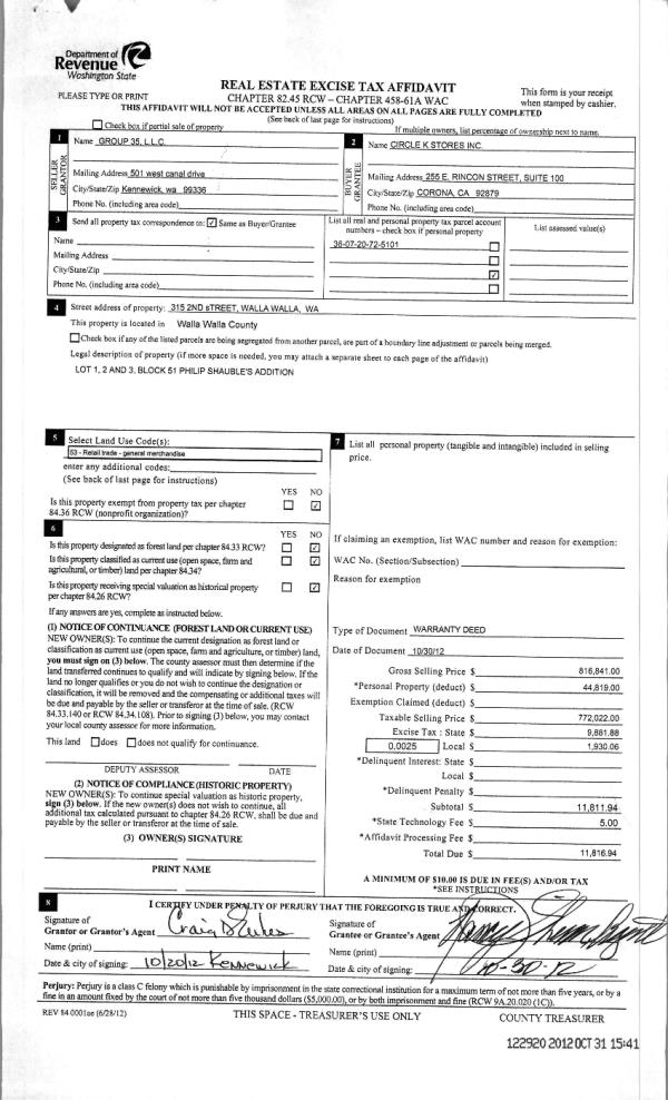
| 1 | 10/31/2012 | WARRANTY D | WARRANTY DEED | GROUP 35 LLC | CIRCLE K STORES INC | | | $816,841.00 | 122920 | 2012-09675 |
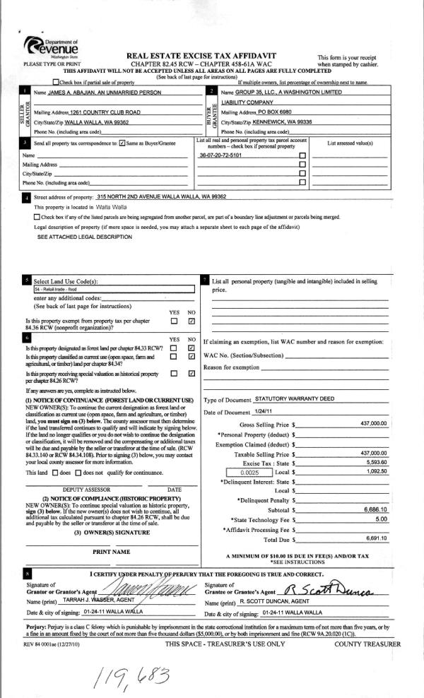
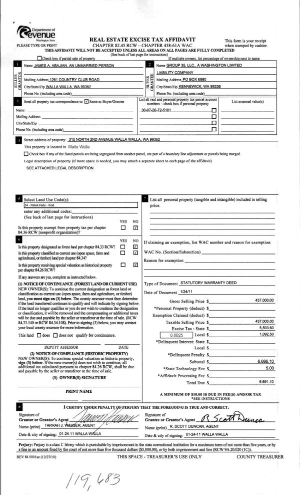
| 2 | 02/01/2011 | WARRANTY D | WARRANTY DEED | ABAJIAN, JAMES | GROUP 35 LLC | | | $437,000.00 | 119683 | 2011-01029 |
| 3 | 08/30/2004 | WARRANTY D | WARRANTY DEED | GREYHOUND LINES/JG ABAJIAN | ABAJIAN, JAMES | | | $250,000.00 | 105603 | 2004-09993 |
| 4 | 11/14/1983 | WARRANTY D | WARRANTY DEED | | | | | $95,000.00 | 0 | 1408-308199 |
Payout Agreement
| No payout information available.. |