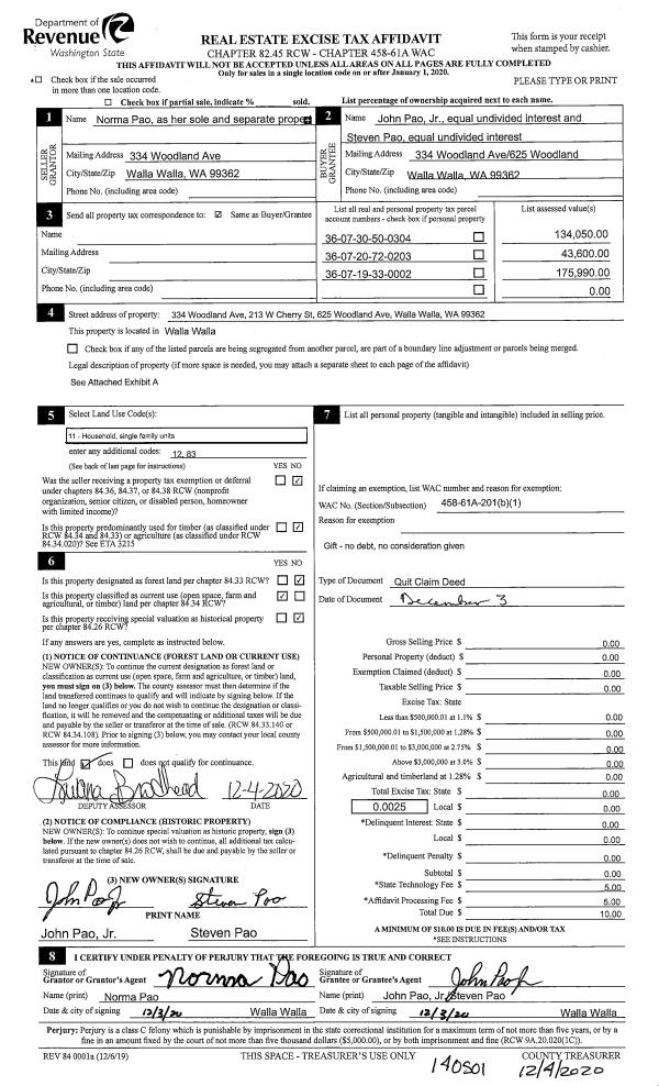
Property
Account |
| Property ID: | 35912 | Abbreviated Legal Description: | PHILIP SHAUBLE'S TAX 3 LOT 3 BLK 2 |
| Parcel Number: | 360720720203 | Agent Code: | |
| Type: | Real | | |
| Tax Area: | 1 - OL-140-F | Land Use Code | 12 |
| Open Space: | N | DFL | N |
| Historic Property: | N | Remodel Property: | N |
| Multi-Family Redevelopment: | N | | |
| Township: | | Section: | |
| Range: | |
Location |
| Address: | 213 W CHERRY ST WA 99362 | Mapsco: | |
| Neighborhood: | F SFR | Map ID: | |
| Neighborhood CD: | 512011 |
Owner |
| Name: | PAO JOHN JR AND STEVEN PAO | Owner ID: | 68353 |
| Mailing Address: | 334 WOODLAND AVE WALLA WALLA, WA 99362 | % Ownership: | 100.0000000000% |
| | | Exemptions: | |
Taxes and Assessment Details
Property Tax Information as of
02/21/2026
Click on "Statement Details" to expand or collapse a tax statement.
* Please enter a valid date ** Please enter a valid date *
Statement Details |
| | TOTAL: | $0.00 | $0.00 | $0.00 | $0.00 | $0.00 | $0.00 |
|
| | $0.00 | $0.00 | $0.00 | $0.00 | $0.00 | $0.00 |
Values
| (+) Improvement Homesite Value: | + | $0 | |
| (+) Improvement Non-Homesite Value: | + | $9,050 | |
| (+) Land Homesite Value: | + | $0 | |
| (+) Land Non-Homesite Value: | + | $37,800 | |
| (+) Curr Use (HS): | + | $0 | $0 |
| (+) Curr Use (NHS): | + | $0 | $0 |
| | | -------------------------- | |
| (=) Market Value: | = | $46,850 | |
| (–) Productivity Loss: | – | $0 | |
| | | -------------------------- | |
| (=) Subtotal: | = | $46,850 | |
| (+) Senior Appraised Value: | + | $0 | |
| (+) Non-Senior Appraised Value: | + | $46,850 | |
| | | -------------------------- | |
| (=) Total Appraised Value: | = | $46,850 | |
| (–) Senior Exemption Loss: | – | $0 | |
| (–) Exemption Loss: | – | $0 | |
| | | -------------------------- | |
| (=) Taxable Value: | = | $46,850 | |
Taxing Jurisdiction
| Owner: | PAO JOHN JR AND STEVEN PAO | | |
| % Ownership: | 100.0000000000% | | |
| Total Value: | $46,850 | | |
| Tax Area: | 1 - OL-140-F |
| CERFD | CURRENT EXPENSE REFUND 010 | 0.0000000000 | $46,850 | $46,850 | $0.00 | | |
| CURREXP | CURRENT EXPENSE 010 | 1.0175366760 | $46,850 | $46,850 | $47.67 | | |
| HUMNSERV | HUMAN SERVICES 119 | 0.0250000000 | $46,850 | $46,850 | $1.17 | | |
| SLDREL | SOLDIERS RELIEF 121 | 0.0155990005 | $46,850 | $46,850 | $0.73 | | |
| EMERGSER | EMS 147 | 0.3792580840 | $46,850 | $46,850 | $17.77 | | |
| EMSRFD | EMS REFUND 147 | 0.0000000000 | $46,850 | $46,850 | $0.00 | | |
| PORTRFD | PORT REFUND 640 | 0.0000000000 | $46,850 | $46,850 | $0.00 | | |
| PORTWWGEN | PORT OF WW 640 | 0.2460186015 | $46,850 | $46,850 | $11.53 | | |
| SD140BOND | SD #140 BOND 764 | 0.8342371393 | $46,850 | $46,850 | $39.08 | | |
| SD140GEN | SD #140 GENERAL 760 | 2.0646500647 | $46,850 | $46,850 | $96.73 | | |
| ST2 | STATE SCHOOL PART 2 600 | 0.8131451643 | $46,850 | $46,850 | $38.10 | | |
| STATESCHL | STATE SCHOOL 600 | 1.5158548041 | $46,850 | $46,850 | $71.02 | | |
| STREFUND | STATE REFUND LEVY 603 | 0.0000000000 | $46,850 | $46,850 | $0.00 | | |
| CWWBOND | C OF WW BOND 643 | 0.2760494372 | $46,850 | $46,850 | $12.93 | | |
| CWWGEN | CITY OF WW 631 | 1.6100204973 | $46,850 | $46,850 | $75.43 | | |
| CWWRFD | CITY OF WALLA WALLA REFUND 631 | 0.0000000000 | $46,850 | $46,850 | $0.00 | | |
| | Total Tax Rate: | 8.7973694689 | | | | | |
| | | | | Taxes w/Current Exemptions: | $412.16 | | |
| | | | | Taxes w/o Exemptions: | $412.16 | | |
Improvement / Building
| Improvement #1: | RESIDENTIAL | State Code: | 12 | 420.0 sqft | Value: | $9,050 |
| Exterior Wall: | STUCCO | Heating/Cooling: | BASEBOARD ELECTRIC | | Number of Bathrooms: | 1 | Number of Bedrooms: | 2 | | Plumbing: | 6 | Roof Covering: | COMP SHINGLE |
|
| | Type | Description | Class CD | Sub Class CD | Year Built | Area |
| | MA | Main Area | 1 | 10 | 1904 | 420.0 |
| | SI1 | SITE IMPROVEMENT | 1 | 10 | 0 | 1.0 |
| | UTST | Utility Storage Shed | 1 | 10 | 1904 | 120.0 |
| | BNV | BUILDING NO VALUE | 1 | 10 | 1904 | 40.0 |
Sketch
Property Image
Land
| 1 | RES 1 | Converted: Residential | 0.1653 | 7200.00 | 0.00 | 0.00 | 1.00 | $37,800 | $0 |
Roll Value History
| 2026 | N/A | N/A | N/A | N/A | N/A |
| 2025 | $9,000 | $43,200 | $0 | $52,200 | $52,200 |
| 2024 | $9,000 | $43,200 | $0 | $52,200 | $52,200 |
| 2023 | $9,050 | $37,800 | $0 | $46,850 | $46,850 |
| 2022 | $7,540 | $37,800 | $0 | $45,340 | $45,340 |
| 2021 | $5,800 | $37,800 | $0 | $43,600 | $43,600 |
| 2020 | $5,800 | $37,800 | $0 | $43,600 | $43,600 |
| 2019 | $5,800 | $37,800 | $0 | $43,600 | $43,600 |
| 2018 | $5,800 | $37,800 | $0 | $43,600 | $43,600 |
| 2017 | $5,800 | $21,600 | $0 | $27,400 | $27,400 |
| 2016 | $5,800 | $21,600 | $0 | $27,400 | $27,400 |
| 2015 | $5,800 | $21,600 | $0 | $27,400 | $27,400 |
| 2014 | $5,800 | $21,600 | $0 | $27,400 | $27,400 |
| 2013 | $5,800 | $21,600 | $0 | $27,400 | $27,400 |
| 2012 | $5,800 | $21,600 | $0 | $0 | $0 |
| 2011 | $5,800 | $21,600 | $0 | $0 | $0 |
| 2010 | $5,800 | $21,600 | $0 | $0 | $0 |
| 2009 | $8,800 | $21,600 | $0 | $0 | $0 |
| 2008 | $1,500 | $21,600 | $0 | $0 | $0 |
| 2007 | $1,500 | $21,600 | $0 | $0 | $0 |
Deed and Sales History
| 1 | 12/04/2020 | QCD | QUIT CLAIM DEED | PAO NORMA | PAO JOHN JR AND STEVEN PAO | | | | 140501 | 2020-12890 |
| 2 | 12/04/2020 | DPR | DEED OF PERSONAL REPRESENTATIVE | PAO JOHN | PAO NORMA | | | | 140496 | 2020-12875 |
| 3 | 02/01/1963 | QCD | QUIT CLAIM DEED | | | | | $0.00 | 0 | 3054-455000 |
Payout Agreement
| No payout information available.. |