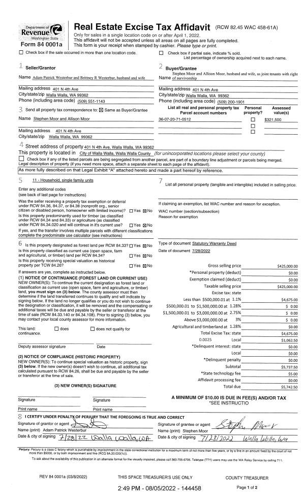
| 1 | 08/05/2022 | SWD | STATUTORY WARRANTY DEED | WESTERBUR ADAM PATRICK & BRITTNEY R | MOOR STEPHEN & ALLISON | | | $425,000.00 | 144458 | 2022-06608 |
| 2 | 06/11/2021 | SWD | STATUTORY WARRANTY DEED | SMITH CODY & MEGAN | WESTERBUR ADAM PATRICK & BRITTNEY R | | | $370,000.00 | 141785 | 2021-07177 |
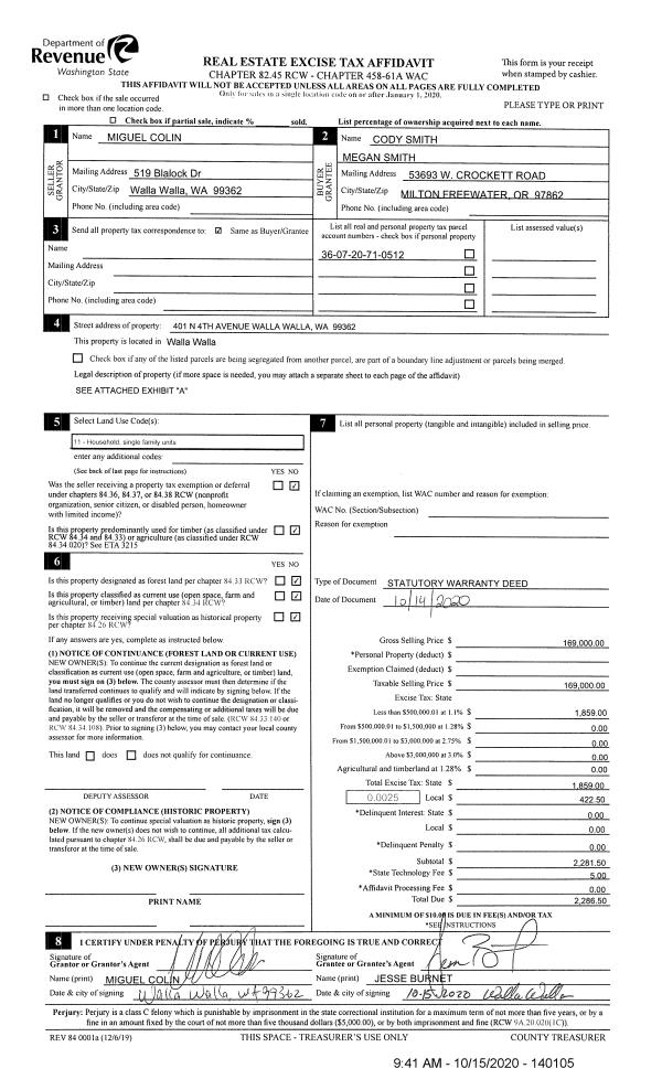
| 3 | 10/15/2020 | SWD | STATUTORY WARRANTY DEED | COLIN MIGUEL | SMITH CODY & MEGAN | | | $169,000.00 | 140105 | 2020-10659 |
| 4 | 09/25/2020 | SWD | STATUTORY WARRANTY DEED | VERISTONE FUND I | COLIN MIGUEL | | | $118,500.00 | 139982 | 2020-09843 |
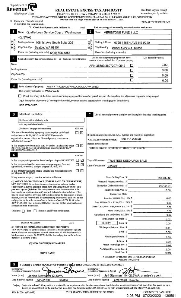
| 5 | 07/23/2020 | TRUSTEES D | TRUSTEE'S DEED | HILLSTONE HOUSE WW LLC | VERISTONE FUND I | | | $205,335.00 | 139561 | 2020-07117 |
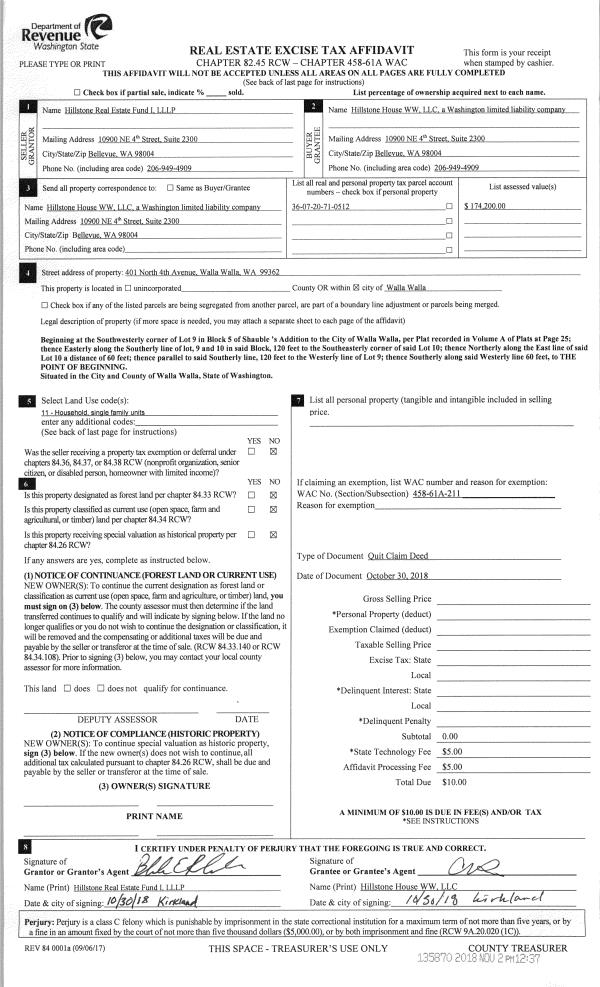
| 6 | 10/30/2018 | QCD | QUIT CLAIM DEED | HILLSTONE REAL ESTATE FUND I | HILLSTONE HOUSE WW LLC | | | $0.00 | 135870 | 2018-09133 |
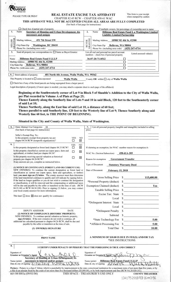
| 7 | 02/15/2018 | BARGAIN & | BARGAIN & SALE DEED | SECRETARY OF HOUSING AND URBAN DEVELOPMENT | HILLSTONE REAL ESTATE FUND I | | | $115,600.00 | 134175 | 2018-01368 |
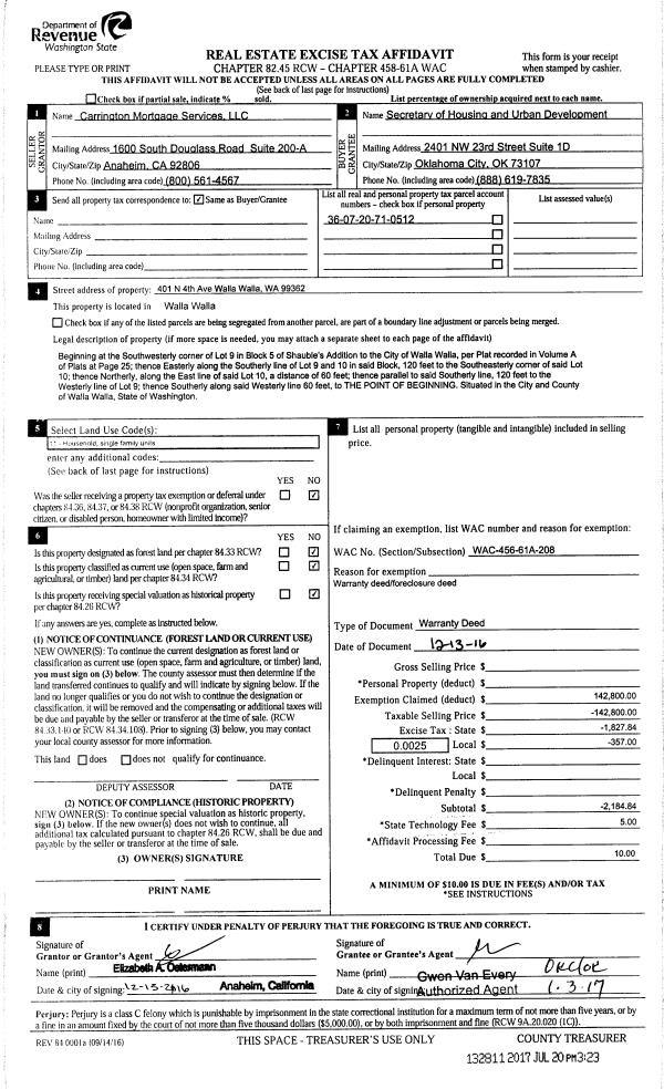
| 8 | 07/20/2017 | WARRANTY D | WARRANTY DEED | CARRINGTON MORTGAGE SERVICES LLC | SECRETARY OF HOUSING AND URBAN DEVELOPMENT | | | $142,800.00 | 132811 | 2017-05555 |
| 9 | 10/21/2016 | TRUSTEES D | TRUSTEE'S DEED | JARDON NAOMI | CARRINGTON MORTGAGE SERVICES LLC | | | $142,800.00 | 131296 | 2016-08725 |
| 10 | 07/29/2008 | WARRANTY D | WARRANTY DEED | JARDON, GABRIEL | JARDON, NAOMI | | | $250,000.00 | 115406 | 2008-07852 |
| 11 | 01/22/2008 | QCD | QUIT CLAIM DEED | JARDON, NAOMI | JARDON, GABRIEL | | | | 114405 | 2008-00588 |
| 12 | 05/15/2003 | WARRANTY D | WARRANTY DEED | JENNINGS, LEO | JARDON, GABRIEL | | | $121,000.00 | 102086 | 2003-07126 |
| 13 | 11/05/1991 | WARRANTY D | WARRANTY DEED | | | | | $38,500.00 | 0 | 1929-107835 |