Property
Account |
| Property ID: | 35876 | Abbreviated Legal Description: | MT VIEW REPLAT LOT 15 BLK 2; W 20' OF LOT 16 BLK 2 |
| Parcel Number: | 360733540215 | Agent Code: | |
| Type: | Real | | |
| Tax Area: | 1 - OL-140-F | Land Use Code | 11 |
| Open Space: | N | DFL | N |
| Historic Property: | N | Remodel Property: | N |
| Multi-Family Redevelopment: | N | | |
| Township: | 7 | Section: | 33 |
| Range: | 36 |
Location |
| Address: | 787 WAUNA VISTA DR WA 99362 | Mapsco: | |
| Neighborhood: | G Res | Map ID: | |
| Neighborhood CD: | 614011 |
Owner |
| Name: | VAN HOLST FRANCES TROMP & MARK DAHN | Owner ID: | 73698 |
| Mailing Address: | 787 WAUNA VISTA DR WALLA WALLA, WA 99362 | % Ownership: | 100.0000000000% |
| | | Exemptions: | |
Taxes and Assessment Details
Property Tax Information as of
02/21/2026
Click on "Statement Details" to expand or collapse a tax statement.
* Please enter a valid date ** Please enter a valid date *
Statement Details |
| | TOTAL: | $0.00 | $0.00 | $0.00 | $0.00 | $0.00 | $0.00 |
|
| | $0.00 | $0.00 | $0.00 | $0.00 | $0.00 | $0.00 |
Values
| (+) Improvement Homesite Value: | + | $0 | |
| (+) Improvement Non-Homesite Value: | + | $475,010 | |
| (+) Land Homesite Value: | + | $0 | |
| (+) Land Non-Homesite Value: | + | $125,620 | |
| (+) Curr Use (HS): | + | $0 | $0 |
| (+) Curr Use (NHS): | + | $0 | $0 |
| | | -------------------------- | |
| (=) Market Value: | = | $600,630 | |
| (–) Productivity Loss: | – | $0 | |
| | | -------------------------- | |
| (=) Subtotal: | = | $600,630 | |
| (+) Senior Appraised Value: | + | $0 | |
| (+) Non-Senior Appraised Value: | + | $600,630 | |
| | | -------------------------- | |
| (=) Total Appraised Value: | = | $600,630 | |
| (–) Senior Exemption Loss: | – | $0 | |
| (–) Exemption Loss: | – | $0 | |
| | | -------------------------- | |
| (=) Taxable Value: | = | $600,630 | |
Taxing Jurisdiction
| Owner: | VAN HOLST FRANCES TROMP & MARK DAHN | | |
| % Ownership: | 100.0000000000% | | |
| Total Value: | $600,630 | | |
| Tax Area: | 1 - OL-140-F |
| CERFD | CURRENT EXPENSE REFUND 010 | 0.0000000000 | $600,630 | $600,630 | $0.00 | | |
| CURREXP | CURRENT EXPENSE 010 | 1.0175366760 | $600,630 | $600,630 | $611.16 | | |
| HUMNSERV | HUMAN SERVICES 119 | 0.0250000000 | $600,630 | $600,630 | $15.02 | | |
| SLDREL | SOLDIERS RELIEF 121 | 0.0155990005 | $600,630 | $600,630 | $9.37 | | |
| EMERGSER | EMS 147 | 0.3792580840 | $600,630 | $600,630 | $227.79 | | |
| EMSRFD | EMS REFUND 147 | 0.0000000000 | $600,630 | $600,630 | $0.00 | | |
| PORTRFD | PORT REFUND 640 | 0.0000000000 | $600,630 | $600,630 | $0.00 | | |
| PORTWWGEN | PORT OF WW 640 | 0.2460186015 | $600,630 | $600,630 | $147.77 | | |
| SD140BOND | SD #140 BOND 764 | 0.8342371393 | $600,630 | $600,630 | $501.07 | | |
| SD140GEN | SD #140 GENERAL 760 | 2.0646500647 | $600,630 | $600,630 | $1,240.09 | | |
| ST2 | STATE SCHOOL PART 2 600 | 0.8131451643 | $600,630 | $600,630 | $488.40 | | |
| STATESCHL | STATE SCHOOL 600 | 1.5158548041 | $600,630 | $600,630 | $910.47 | | |
| STREFUND | STATE REFUND LEVY 603 | 0.0000000000 | $600,630 | $600,630 | $0.00 | | |
| CWWBOND | C OF WW BOND 643 | 0.2760494372 | $600,630 | $600,630 | $165.80 | | |
| CWWGEN | CITY OF WW 631 | 1.6100204973 | $600,630 | $600,630 | $967.03 | | |
| CWWRFD | CITY OF WALLA WALLA REFUND 631 | 0.0000000000 | $600,630 | $600,630 | $0.00 | | |
| | Total Tax Rate: | 8.7973694689 | | | | | |
| | | | | Taxes w/Current Exemptions: | $5,283.97 | | |
| | | | | Taxes w/o Exemptions: | $5,283.97 | | |
Improvement / Building
| Improvement #1: | RESIDENTIAL | State Code: | 11 | 1767.0 sqft | Value: | $475,010 |
| Exterior Wall: | SIDING | Heating/Cooling: | WARM & COOLED AIR | | Number of Bathrooms: | 2 | Number of Bedrooms: | 3 | | Plumbing: | 9 | Roof Covering: | COMP SHINGLE |
|
| | Type | Description | Class CD | Sub Class CD | Year Built | Area |
| | MA | Main Area | 1 | 40 | 1949 | 1767.0 |
| | SI1 | SITE IMPROVEMENT | 1 | 30 | 1949 | 3.0 |
| | BASE | BASEMENT | 1 | 30 | 1949 | 1200.0 |
| | BPF | BASEMENT -PARTITIONED FINISH | 1 | 30 | 1949 | 720.0 |
| | ATG | Attached Garage | 1 | 30 | 1949 | 528.0 |
| | D2F | Double 2 Story Fireplace | 1 | 30 | 1949 | 1.0 |
| | CPC | COVERED CARPORT/PATIO | 1 | 30 | 1949 | 440.0 |
| | RPC | OPEN PORCH W/ROOF , CEILED | 1 | 30 | 1949 | 28.0 |
| | WOD | Wood Deck | 1 | 30 | 1949 | 414.0 |
Sketch
Property Image
Land
| 1 | RES 1 | Converted: Residential | 0.4120 | 17946.00 | 0.00 | 0.00 | 1.00 | $125,620 | $0 |
Roll Value History
| 2026 | N/A | N/A | N/A | N/A | N/A |
| 2025 | $513,510 | $148,770 | $0 | $662,280 | $662,280 |
| 2024 | $522,510 | $125,620 | $0 | $648,130 | $648,130 |
| 2023 | $475,010 | $125,620 | $0 | $600,630 | $600,630 |
| 2022 | $475,010 | $103,010 | $0 | $578,020 | $578,020 |
| 2021 | $296,880 | $103,010 | $0 | $399,890 | $399,890 |
| 2020 | $247,400 | $103,010 | $0 | $350,410 | $350,410 |
| 2019 | $247,400 | $103,010 | $0 | $350,410 | $350,410 |
| 2018 | $196,850 | $53,900 | $0 | $250,750 | $250,750 |
| 2017 | $164,040 | $53,900 | $0 | $217,940 | $217,940 |
| 2016 | $136,700 | $53,900 | $0 | $190,600 | $190,600 |
| 2015 | $136,700 | $53,900 | $0 | $190,600 | $190,600 |
| 2014 | $136,700 | $53,900 | $0 | $190,600 | $190,600 |
| 2013 | $136,700 | $53,900 | $0 | $190,600 | $190,600 |
| 2012 | $136,700 | $53,900 | $0 | $0 | $0 |
| 2011 | $141,100 | $53,900 | $0 | $0 | $0 |
| 2010 | $131,800 | $53,900 | $0 | $0 | $0 |
| 2009 | $152,400 | $53,900 | $0 | $0 | $0 |
| 2008 | $152,400 | $53,900 | $0 | $0 | $0 |
| 2007 | $123,100 | $31,400 | $0 | $0 | $0 |
Deed and Sales History
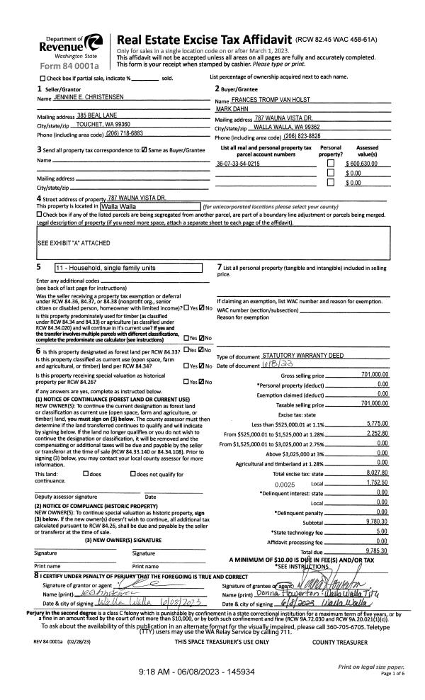
| 1 | 06/08/2023 | SWD | STATUTORY WARRANTY DEED | CHRISTENSEN JENNINE E | VAN HOLST FRANCES TROMP & MARK DAHN | | | $701,000.00 | 145934 | 2023-03121 |
| 2 | 05/08/2020 | SWD | STATUTORY WARRANTY DEED | LEVENTHAL ROBIN V | CHRISTENSEN JENNINE E | | | $405,000.00 | 139060 | 2020-03951 |
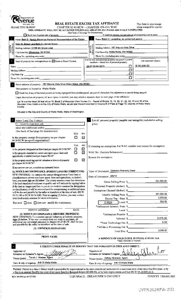
| 3 | 09/24/2013 | WARRANTY D | WARRANTY DEED | BROWN, GARY M ESTATE OF | LEVENTHAL, ROBIN V | | | $201,000.00 | 124705 | 2013-09743 |
| 4 | 05/21/2002 | WARRANTY D | WARRANTY DEED | | | | | $150,000.00 | 99538 | 2002-0005958 |
Payout Agreement
| No payout information available.. |