Property
Account |
| Property ID: | 35796 | Abbreviated Legal Description: | RANSOM CLARK DC LOT 2 OF SHORT PLAT (PTN TAX 2) BLOCK 9 |
| Parcel Number: | 360732510916 | Agent Code: | |
| Type: | Real | | |
| Tax Area: | 6 - OL-140-F-FB | Land Use Code | 11 |
| Open Space: | N | DFL | N |
| Historic Property: | N | Remodel Property: | N |
| Multi-Family Redevelopment: | N | | |
| Township: | 7 | Section: | 32 |
| Range: | 36 |
Location |
| Address: | 2400 JOHN CT WA 99362 | Mapsco: | |
| Neighborhood: | G Res | Map ID: | |
| Neighborhood CD: | 614011 |
Owner |
| Name: | OGOSHI GRACE | Owner ID: | 60683 |
| Mailing Address: | EUGENE HANZLIK 2400 JOHN CT WALLA WALLA, WA 99362 | % Ownership: | 100.0000000000% |
| | | Exemptions: | |
Taxes and Assessment Details
Values
| (+) Improvement Homesite Value: | + | N/A | |
| (+) Improvement Non-Homesite Value: | + | N/A | |
| (+) Land Homesite Value: | + | N/A | |
| (+) Land Non-Homesite Value: | + | N/A | Ag / Timber Use Value |
| (+) Curr Use (HS): | + | N/A | N/A |
| (+) Curr Use (NHS): | + | N/A | N/A |
| | | -------------------------- | |
| (=) Market Value: | = | N/A | |
| (–) Productivity Loss: | – | N/A | |
| | | -------------------------- | |
| (=) Subtotal: | = | N/A | |
| (+) Senior Appraised Value: | + | N/A | |
| (+) Non-Senior Appraised Value: | + | N/A | |
| | | -------------------------- | |
| (=) Total Appraised Value: | = | N/A | |
| (–) Senior Exemption Loss: | – | N/A | |
| (–) Exemption Loss: | – | N/A | |
| | | -------------------------- | |
| (=) Taxable Value: | = | N/A | |
Taxing Jurisdiction
| Owner: | OGOSHI GRACE | | |
| % Ownership: | 100.0000000000% | | |
| Total Value: | N/A | | |
| Tax Area: | 6 - OL-140-F-FB |
| CERFD | CURRENT EXPENSE REFUND 010 | N/A | N/A | N/A | N/A | | |
| CURREXP | CURRENT EXPENSE 010 | N/A | N/A | N/A | N/A | | |
| HUMNSERV | HUMAN SERVICES 119 | N/A | N/A | N/A | N/A | | |
| SLDREL | SOLDIERS RELIEF 121 | N/A | N/A | N/A | N/A | | |
| EMERGSER | EMS 147 | N/A | N/A | N/A | N/A | | |
| EMSRFD | EMS REFUND 147 | N/A | N/A | N/A | N/A | | |
| PORTRFD | PORT REFUND 640 | N/A | N/A | N/A | N/A | | |
| PORTWWGEN | PORT OF WW 640 | N/A | N/A | N/A | N/A | | |
| SD140BOND | SD #140 BOND 764 | N/A | N/A | N/A | N/A | | |
| SD140GEN | SD #140 GENERAL 760 | N/A | N/A | N/A | N/A | | |
| ST2 | STATE SCHOOL PART 2 600 | N/A | N/A | N/A | N/A | | |
| STATESCHL | STATE SCHOOL 600 | N/A | N/A | N/A | N/A | | |
| STREFUND | STATE REFUND LEVY 603 | N/A | N/A | N/A | N/A | | |
| CWWBOND | C OF WW BOND 643 | N/A | N/A | N/A | N/A | | |
| CWWGEN | CITY OF WW 631 | N/A | N/A | N/A | N/A | | |
| CWWRFD | CITY OF WALLA WALLA REFUND 631 | N/A | N/A | N/A | N/A | | |
| | Total Tax Rate: | N/A | | | | | |
| | | | | Taxes w/Current Exemptions: | N/A | | |
| | | | | Taxes w/o Exemptions: | N/A | | |
Improvement / Building
| Improvement #1: | RESIDENTIAL | State Code: | 11 | 1990.0 sqft | Value: | N/A |
| Exterior Wall: | STUCCO | Heating/Cooling: | WARM & COOLED AIR | | Number of Bathrooms: | 2 | Number of Bedrooms: | 4 | | Plumbing: | 12 | Roof Covering: | COMP SHINGLE |
|
| | Type | Description | Class CD | Sub Class CD | Year Built | Area |
| | MA | Main Area | 1 | 40 | 2014 | 1990.0 |
| | ATG | Attached Garage | 1 | 40 | 2014 | 808.0 |
| | BONU | BONUS ROOM W/FINISH | 1 | 40 | 2014 | 468.0 |
| | RPC | OPEN PORCH W/ROOF , CEILED | 1 | 40 | 2014 | 60.0 |
| | RPC | OPEN PORCH W/ROOF , CEILED | 1 | 40 | 2014 | 130.0 |
| | SI1 | SITE IMPROVEMENT | 1 | 40 | 2014 | 3.2 |
| | GFP | GAS FIREPLACE | 1 | 40 | 2014 | 1.0 |
| | SMP | SWIMMING POOL | 1 | 40 | 2014 | 1.0 |
Sketch
Property Image
Land
| 1 | RES 1 | Converted: Residential | 0.2617 | 11400.00 | 0.00 | 0.00 | 1.00 | N/A | N/A |
Roll Value History
| 2026 | N/A | N/A | N/A | N/A | N/A |
| 2025 | $506,420 | $136,800 | $0 | $643,220 | $643,220 |
| 2024 | $505,620 | $90,000 | $0 | $595,620 | $595,620 |
| 2023 | $459,650 | $90,000 | $0 | $549,650 | $549,650 |
| 2022 | $417,860 | $75,000 | $0 | $492,860 | $492,860 |
| 2021 | $309,530 | $75,000 | $0 | $384,530 | $384,530 |
| 2020 | $281,390 | $75,000 | $0 | $356,390 | $356,390 |
| 2019 | $273,080 | $75,000 | $0 | $348,080 | $348,080 |
| 2018 | $273,080 | $65,000 | $0 | $338,080 | $338,080 |
| 2017 | $265,130 | $65,000 | $0 | $330,130 | $330,130 |
| 2016 | $252,500 | $65,000 | $0 | $317,500 | $317,500 |
| 2015 | $252,500 | $65,000 | $0 | $317,500 | $317,500 |
| 2014 | $252,500 | $65,000 | $0 | $317,500 | $317,500 |
| 2013 | $0 | $65,000 | $0 | $65,000 | $65,000 |
| 2012 | $0 | $65,000 | $0 | $0 | $0 |
| 2011 | $0 | $65,000 | $0 | $0 | $0 |
| 2010 | $0 | $65,000 | $0 | $0 | $0 |
| 2009 | $0 | $65,000 | $0 | $0 | $0 |
| 2008 | $0 | $65,000 | $0 | $0 | $0 |
Deed and Sales History
| 1 | 03/08/2017 | QCD | QUIT CLAIM DEED | OGOSHI GRACE M | OGOSHI GRACE | | | $0.00 | 132177 | 2017-02687 |
| 2 | 05/09/2014 | QCD | QUIT CLAIM DEED | | OGOSHI GRACE M | | | | 125857 | 2014-03179 |
| 3 | 05/09/2014 | SWD | STATUTORY WARRANTY DEED | HAYDEN HOMES LLC | OGOSHI GRACE M | | | $319,990.00 | 125856 | 2014-03178 |
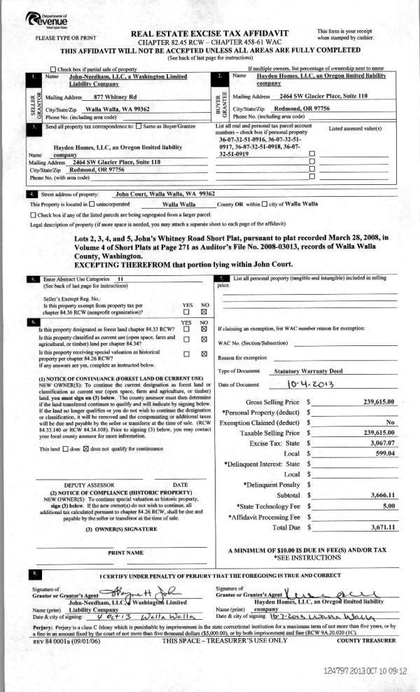
| 4 | 10/10/2013 | WARRANTY D | WARRANTY DEED | JOHN-NEEDHAM LLC | HAYDEN HOMES LLC | 4-PARCELS | | $239,615.00 | 124797 | 2013-10244 |
|   | |
| 5 | 04/18/2008 | WARRANTY D | WARRANTY DEED | "JOHN, WAYNE H & GLENDA J" | JOHN-NEEDHAM LLC | | | | 114862 | 2008--03818 |
| 6 | | WARRANTY D | WARRANTY DEED | "JOHN, WAYNE H & GLENDA J" | | | | | 0 | 2008-03818 |
Payout Agreement
| No payout information available.. |