Property
Account |
| Property ID: | 35788 | Abbreviated Legal Description: | CEDAR BEND SUBD LOT 30 |
| Parcel Number: | 350601530030 | Agent Code: | |
| Type: | Real | | |
| Tax Area: | 75 - CP 250 | Land Use Code | 11 |
| Open Space: | N | DFL | N |
| Historic Property: | N | Remodel Property: | N |
| Multi-Family Redevelopment: | N | | |
| Township: | 6 | Section: | 1 |
| Range: | 35 |
Location |
| Address: | 35 SE CEDAR BEND DR WA 99324 | Mapsco: | |
| Neighborhood: | A MH | Map ID: | |
| Neighborhood CD: | 113061 |
Owner |
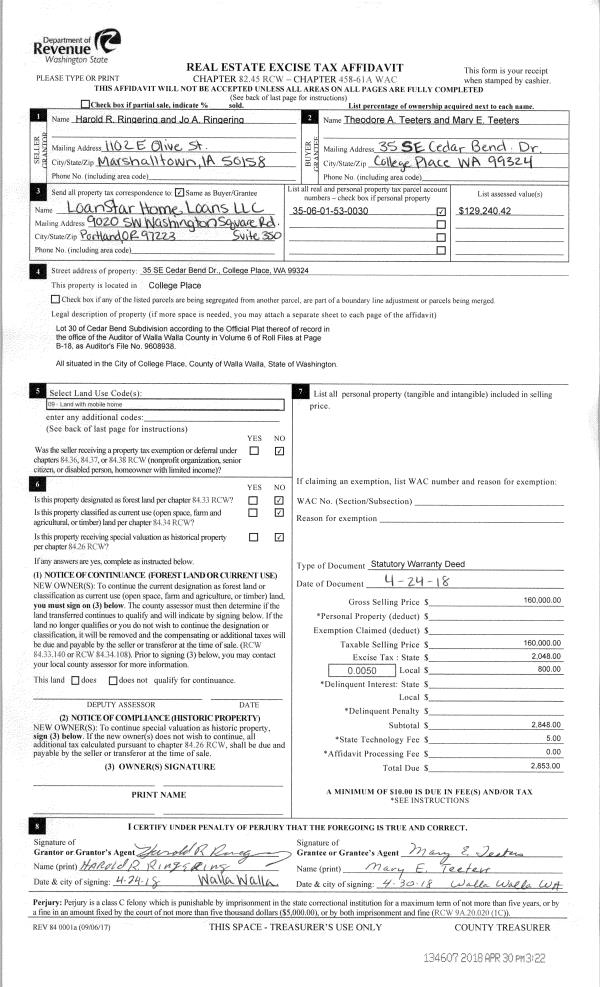
| Name: | TEETERS THEODORE A & MARY E | Owner ID: | 62969 |
| Mailing Address: | 35 SE CEDAR BEND DR COLLEGE PLACE, WA 99324 | % Ownership: | 100.0000000000% |
| | | Exemptions: | |
Taxes and Assessment Details
Property Tax Information as of
02/21/2026
Click on "Statement Details" to expand or collapse a tax statement.
* Please enter a valid date ** Please enter a valid date *
Statement Details |
| | TOTAL: | $0.00 | $0.00 | $0.00 | $0.00 | $0.00 | $0.00 |
|
| | $0.00 | $0.00 | $0.00 | $0.00 | $0.00 | $0.00 |
Values
| (+) Improvement Homesite Value: | + | $0 | |
| (+) Improvement Non-Homesite Value: | + | $199,010 | |
| (+) Land Homesite Value: | + | $0 | |
| (+) Land Non-Homesite Value: | + | $55,000 | |
| (+) Curr Use (HS): | + | $0 | $0 |
| (+) Curr Use (NHS): | + | $0 | $0 |
| | | -------------------------- | |
| (=) Market Value: | = | $254,010 | |
| (–) Productivity Loss: | – | $0 | |
| | | -------------------------- | |
| (=) Subtotal: | = | $254,010 | |
| (+) Senior Appraised Value: | + | $0 | |
| (+) Non-Senior Appraised Value: | + | $254,010 | |
| | | -------------------------- | |
| (=) Total Appraised Value: | = | $254,010 | |
| (–) Senior Exemption Loss: | – | $0 | |
| (–) Exemption Loss: | – | $0 | |
| | | -------------------------- | |
| (=) Taxable Value: | = | $254,010 | |
Taxing Jurisdiction
| Owner: | TEETERS THEODORE A & MARY E | | |
| % Ownership: | 100.0000000000% | | |
| Total Value: | $254,010 | | |
| Tax Area: | 75 - CP 250 |
| CERFD | CURRENT EXPENSE REFUND 010 | 0.0000000000 | $254,010 | $254,010 | $0.00 | | |
| CURREXP | CURRENT EXPENSE 010 | 1.0175366760 | $254,010 | $254,010 | $258.46 | | |
| HUMNSERV | HUMAN SERVICES 119 | 0.0250000000 | $254,010 | $254,010 | $6.35 | | |
| SLDREL | SOLDIERS RELIEF 121 | 0.0155990005 | $254,010 | $254,010 | $3.96 | | |
| COLLPLBOND | C OF CP BOND 644 | 0.4374241808 | $254,010 | $254,010 | $111.11 | | |
| COLLPLGEN | CITY OF CP 632 | 1.4453819216 | $254,010 | $254,010 | $367.14 | | |
| EMERGSER | EMS 147 | 0.3792580840 | $254,010 | $254,010 | $96.34 | | |
| EMSRFD | EMS REFUND 147 | 0.0000000000 | $254,010 | $254,010 | $0.00 | | |
| RURALLIB | RURAL LIBRARY 623 | 0.3710609029 | $254,010 | $254,010 | $94.25 | | |
| PORTRFD | PORT REFUND 640 | 0.0000000000 | $254,010 | $254,010 | $0.00 | | |
| PORTWWGEN | PORT OF WW 640 | 0.2460186015 | $254,010 | $254,010 | $62.49 | | |
| SD250BOND | SD #250 BOND 773 | 1.4560608159 | $254,010 | $254,010 | $369.85 | | |
| SD250GEN | SD #250 GENERAL 770 | 2.3880724087 | $254,010 | $254,010 | $606.59 | | |
| ST2 | STATE SCHOOL PART 2 600 | 0.8131451643 | $254,010 | $254,010 | $206.55 | | |
| STATESCHL | STATE SCHOOL 600 | 1.5158548041 | $254,010 | $254,010 | $385.04 | | |
| STREFUND | STATE REFUND LEVY 603 | 0.0000000000 | $254,010 | $254,010 | $0.00 | | |
| | Total Tax Rate: | 10.1104125603 | | | | | |
| | | | | Taxes w/Current Exemptions: | $2,568.13 | | |
| | | | | Taxes w/o Exemptions: | $2,568.13 | | |
Improvement / Building
| Improvement #1: | MANUFACTURED HOME | State Code: | 11 | 1352.0 sqft | Value: | $199,010 |
| Exterior Wall: | HARDBOARD | Heating/Cooling: | WARM & COOLED AIR | | Number of Bathrooms: | 2 | Number of Bedrooms: | 3 | | Plumbing: | 8 | Roof Covering: | COMP SHINGLE |
|
| | Type | Description | Class CD | Sub Class CD | Year Built | Area |
| | MOBHOME | MANUFACTURD HOMES | 1 | 30 | 1996 | 1352.0 |
| | MI1 | MH SET-UP COSTS | 1 | 30 | 1996 | 1.0 |
| | ATG | Attached Garage | 1 | 30 | 1996 | 440.0 |
| | WOD | Wood Deck | 1 | 30 | 1996 | 90.0 |
| | SI1 | SITE IMPROVEMENT | 1 | 30 | 1996 | 1.0 |
Sketch
Property Image
Land
| 1 | RES 1 | Converted: Residential | 0.2025 | 8819.00 | 0.00 | 0.00 | 1.00 | $55,000 | $0 |
Roll Value History
| 2026 | N/A | N/A | N/A | N/A | N/A |
| 2025 | $199,010 | $70,000 | $0 | $269,010 | $269,010 |
| 2024 | $199,010 | $55,000 | $0 | $254,010 | $254,010 |
| 2023 | $199,010 | $55,000 | $0 | $254,010 | $254,010 |
| 2022 | $173,050 | $55,000 | $0 | $228,050 | $228,050 |
| 2021 | $173,050 | $55,000 | $0 | $228,050 | $228,050 |
| 2020 | $93,540 | $55,000 | $0 | $148,540 | $148,540 |
| 2019 | $93,540 | $55,000 | $0 | $148,540 | $148,540 |
| 2018 | $77,950 | $55,000 | $0 | $132,950 | $132,950 |
| 2017 | $74,240 | $55,000 | $0 | $129,240 | $129,240 |
| 2016 | $70,700 | $55,000 | $0 | $125,700 | $125,700 |
| 2015 | $70,700 | $55,000 | $0 | $125,700 | $125,700 |
| 2014 | $70,700 | $55,000 | $0 | $125,700 | $125,700 |
| 2013 | $70,700 | $55,000 | $0 | $125,700 | $125,700 |
| 2012 | $84,700 | $55,000 | $0 | $0 | $0 |
| 2011 | $84,700 | $55,000 | $0 | $0 | $0 |
| 2010 | $84,700 | $55,000 | $0 | $0 | $0 |
| 2009 | $92,000 | $55,000 | $0 | $0 | $0 |
| 2008 | $89,000 | $25,000 | $0 | $0 | $0 |
| 2007 | $89,000 | $25,000 | $0 | $0 | $0 |
Deed and Sales History
| 1 | 04/30/2018 | SWD | STATUTORY WARRANTY DEED | RINGERING HAROLD R & JO A | TEETERS THEODORE A & MARY E | | | $160,000.00 | 134607 | 2018-03395 |
| 2 | 08/29/2013 | WARRANTY D | WARRANTY DEED | POTTER, SCOTT L | RINGERING, HAROLD R & JO A | | | $131,500.00 | 124558 | 2013-08906 |
| 3 | 04/01/2004 | WARRANTY D | WARRANTY DEED | KINCHELOE, HELEN RAE LYNCH | POTTER, SCOTT L | | | $119,000.00 | 104411 | 2004-03451 |
| 4 | 03/05/1997 | WARRANTY D | WARRANTY DEED | | | | | $23,900.00 | 87760 | 2499-701920 |
Payout Agreement
| No payout information available.. |