Property
Account |
| Property ID: | 35740 | Abbreviated Legal Description: | PARKVIEW LOT 5 |
| Parcel Number: | 360720680005 | Agent Code: | |
| Type: | Real | | |
| Tax Area: | 1 - OL-140-F | Land Use Code | 11 |
| Open Space: | N | DFL | N |
| Historic Property: | N | Remodel Property: | N |
| Multi-Family Redevelopment: | N | | |
| Township: | 7 | Section: | 20 |
| Range: | 36 |
Location |
| Address: | 933 PENROSE ST WA 99362 | Mapsco: | |
| Neighborhood: | A-SFR | Map ID: | |
| Neighborhood CD: | 513011 |
Owner |
| Name: | HIGGINS JOHN EDWARD IV | Owner ID: | 54147 |
| Mailing Address: | 933 PENROSE ST WALLA WALLA, WA 99362 | % Ownership: | 100.0000000000% |
| | | Exemptions: | |
Taxes and Assessment Details
Values
| (+) Improvement Homesite Value: | + | $0 | |
| (+) Improvement Non-Homesite Value: | + | $319,000 | |
| (+) Land Homesite Value: | + | $0 | |
| (+) Land Non-Homesite Value: | + | $37,190 | |
| (+) Curr Use (HS): | + | $0 | $0 |
| (+) Curr Use (NHS): | + | $0 | $0 |
| | | -------------------------- | |
| (=) Market Value: | = | $356,190 | |
| (–) Productivity Loss: | – | $0 | |
| | | -------------------------- | |
| (=) Subtotal: | = | $356,190 | |
| (+) Senior Appraised Value: | + | $0 | |
| (+) Non-Senior Appraised Value: | + | $356,190 | |
| | | -------------------------- | |
| (=) Total Appraised Value: | = | $356,190 | |
| (–) Senior Exemption Loss: | – | $0 | |
| (–) Exemption Loss: | – | $0 | |
| | | -------------------------- | |
| (=) Taxable Value: | = | $356,190 | |
Taxing Jurisdiction
| Owner: | HIGGINS JOHN EDWARD IV | | |
| % Ownership: | 100.0000000000% | | |
| Total Value: | $356,190 | | |
| Tax Area: | 1 - OL-140-F |
| CERFD | CURRENT EXPENSE REFUND 010 | 0.0000000000 | $356,190 | $356,190 | $0.00 | | |
| CURREXP | CURRENT EXPENSE 010 | 1.0175366760 | $356,190 | $356,190 | $362.44 | | |
| HUMNSERV | HUMAN SERVICES 119 | 0.0250000000 | $356,190 | $356,190 | $8.90 | | |
| SLDREL | SOLDIERS RELIEF 121 | 0.0155990005 | $356,190 | $356,190 | $5.56 | | |
| EMERGSER | EMS 147 | 0.3792580840 | $356,190 | $356,190 | $135.09 | | |
| EMSRFD | EMS REFUND 147 | 0.0000000000 | $356,190 | $356,190 | $0.00 | | |
| PORTRFD | PORT REFUND 640 | 0.0000000000 | $356,190 | $356,190 | $0.00 | | |
| PORTWWGEN | PORT OF WW 640 | 0.2460186015 | $356,190 | $356,190 | $87.63 | | |
| SD140BOND | SD #140 BOND 764 | 0.8342371393 | $356,190 | $356,190 | $297.15 | | |
| SD140GEN | SD #140 GENERAL 760 | 2.0646500647 | $356,190 | $356,190 | $735.41 | | |
| ST2 | STATE SCHOOL PART 2 600 | 0.8131451643 | $356,190 | $356,190 | $289.63 | | |
| STATESCHL | STATE SCHOOL 600 | 1.5158548041 | $356,190 | $356,190 | $539.93 | | |
| STREFUND | STATE REFUND LEVY 603 | 0.0000000000 | $356,190 | $356,190 | $0.00 | | |
| CWWBOND | C OF WW BOND 643 | 0.2760494372 | $356,190 | $356,190 | $98.33 | | |
| CWWGEN | CITY OF WW 631 | 1.6100204973 | $356,190 | $356,190 | $573.47 | | |
| CWWRFD | CITY OF WALLA WALLA REFUND 631 | 0.0000000000 | $356,190 | $356,190 | $0.00 | | |
| | Total Tax Rate: | 8.7973694689 | | | | | |
| | | | | Taxes w/Current Exemptions: | $3,133.54 | | |
| | | | | Taxes w/o Exemptions: | $3,133.54 | | |
Improvement / Building
| Improvement #1: | RESIDENTIAL | State Code: | 11 | 988.0 sqft | Value: | $319,000 |
| Exterior Wall: | SIDING | Heating/Cooling: | WARM & COOLED AIR | | Number of Bathrooms: | 2 | Number of Bedrooms: | 2 | | Plumbing: | 10 | Roof Covering: | COMP SHINGLE |
|
| | Type | Description | Class CD | Sub Class CD | Year Built | Area |
| | MA | Main Area | 1 | 30 | 1947 | 988.0 |
| | SI1 | SITE IMPROVEMENT | 1 | 30 | 1947 | 1.0 |
| | BASE | BASEMENT | 1 | 30 | 1947 | 988.0 |
| | BPF | BASEMENT -PARTITIONED FINISH | 1 | 30 | 1947 | 988.0 |
| | OPS | OPEN PORCH W/STEPS | 1 | 30 | 1947 | 30.0 |
| | OPS | OPEN PORCH W/STEPS | 1 | 30 | 1947 | 20.0 |
| | S1F | Single One Story Fireplace | 1 | 30 | 1947 | 1.0 |
| | OUT | OUTSIDE BASEMENT ENTRY | 1 | 30 | 1947 | 1.0 |
| | DTG | Detached Garage | 1 | 30 | 1947 | 240.0 |
| | CPC | COVERED CARPORT/PATIO | 1 | 30 | 1947 | 120.0 |
Sketch
Property Image
Land
| 1 | RES 1 | Converted: Residential | 0.1366 | 5950.00 | 0.00 | 0.00 | 1.00 | $37,190 | $0 |
Roll Value History
| 2026 | N/A | N/A | N/A | N/A | N/A |
| 2025 | $266,730 | $59,500 | $0 | $326,230 | $326,230 |
| 2024 | $280,770 | $59,500 | $0 | $340,270 | $340,270 |
| 2023 | $319,000 | $37,190 | $0 | $356,190 | $356,190 |
| 2022 | $290,000 | $37,190 | $0 | $327,190 | $327,190 |
| 2021 | $207,150 | $37,190 | $0 | $244,340 | $244,340 |
| 2020 | $147,960 | $37,190 | $0 | $185,150 | $185,150 |
| 2019 | $147,960 | $37,190 | $0 | $185,150 | $185,150 |
| 2018 | $134,510 | $37,190 | $0 | $171,700 | $171,700 |
| 2017 | $146,270 | $23,800 | $0 | $170,070 | $170,070 |
| 2016 | $139,300 | $23,800 | $0 | $163,100 | $163,100 |
| 2015 | $139,300 | $23,800 | $0 | $163,100 | $163,100 |
| 2014 | $139,300 | $23,800 | $0 | $163,100 | $163,100 |
| 2013 | $139,300 | $23,800 | $0 | $163,100 | $163,100 |
| 2012 | $139,300 | $23,800 | $0 | $0 | $0 |
| 2011 | $139,300 | $23,800 | $0 | $0 | $0 |
| 2010 | $131,500 | $23,800 | $0 | $0 | $0 |
| 2009 | $148,800 | $23,800 | $0 | $0 | $0 |
| 2008 | $114,300 | $23,800 | $0 | $0 | $0 |
| 2007 | $114,300 | $23,800 | $0 | $0 | $0 |
Deed and Sales History
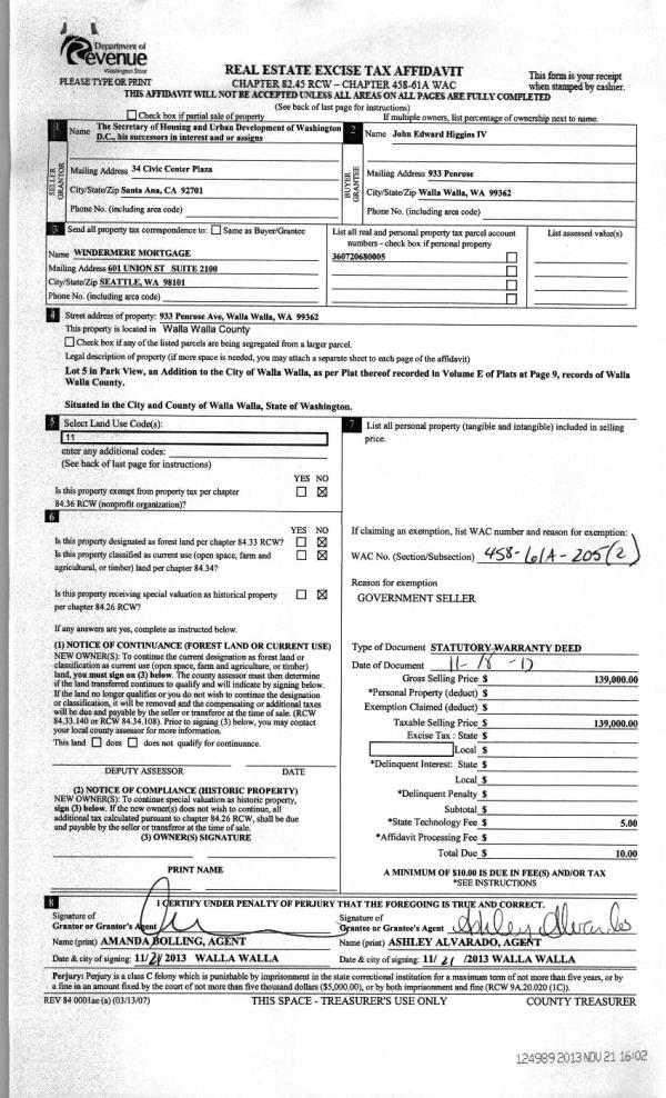
| 1 | 11/21/2013 | WARRANTY D | WARRANTY DEED | THE SECRETARY OF HOUSING & URBAN DEVELOPMENT | HIGGINS JOHN EDWARD IV | | | $139,000.00 | 124989 | 2013-11399 |
| 2 | 08/16/2013 | WARRANTY D | WARRANTY DEED | GUILD MORTGAGE COMPANY | SECRETARY OF HOUSING & URBAN~D | | | $190,053.00 | 124493 | 2013-08434 |
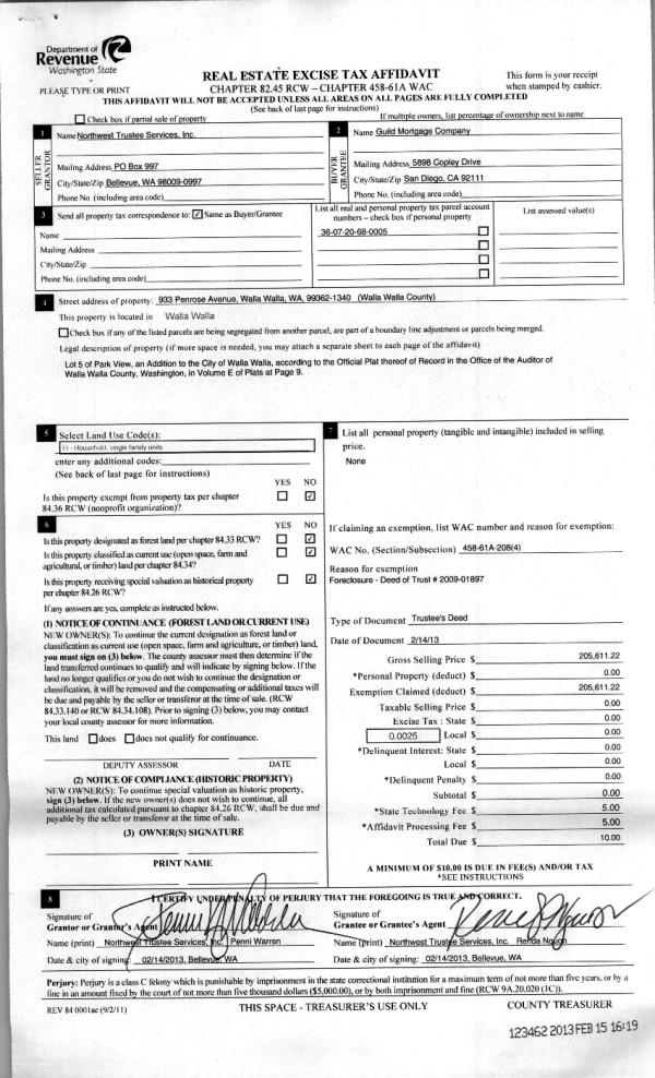
| 3 | 02/15/2013 | WARRANTY D | WARRANTY DEED | NORTHWEST TRUSTEE SERVICES INC | GUILD MORTGAGE COMPANY | | | $205,611.00 | 123462 | 2013-01383 |
| 4 | 09/27/2006 | QCD | QUIT CLAIM DEED | AVEY, SARAH | AVEY, CHRISTOPHER R | | | | 111310 | 2006-11645 |
| 5 | 10/27/2005 | QCD | QUIT CLAIM DEED | AVEY, CHRISTOPHER | AVEY, CHRISTOPHER R & SARAH | | | | 108859 | 2005-13513 |
| 6 | 03/08/2004 | WARRANTY D | WARRANTY DEED | BENDICK, BRENT | AVEY, CHRISTOPHER R | | | $138,900.00 | 104213 | 2004-02457 |
| 7 | 11/21/2003 | WARRANTY D | WARRANTY DEED | HEDINE, JUDSON E & KIMBERLY | BENDICK, BRENT | | | $122,000.00 | 103574 | 2003-17978 |
| 8 | 07/18/1994 | WARRANTY D | WARRANTY DEED | | | | | $78,000.00 | 82124 | 2219-408352 |
Payout Agreement
| No payout information available.. |