Property
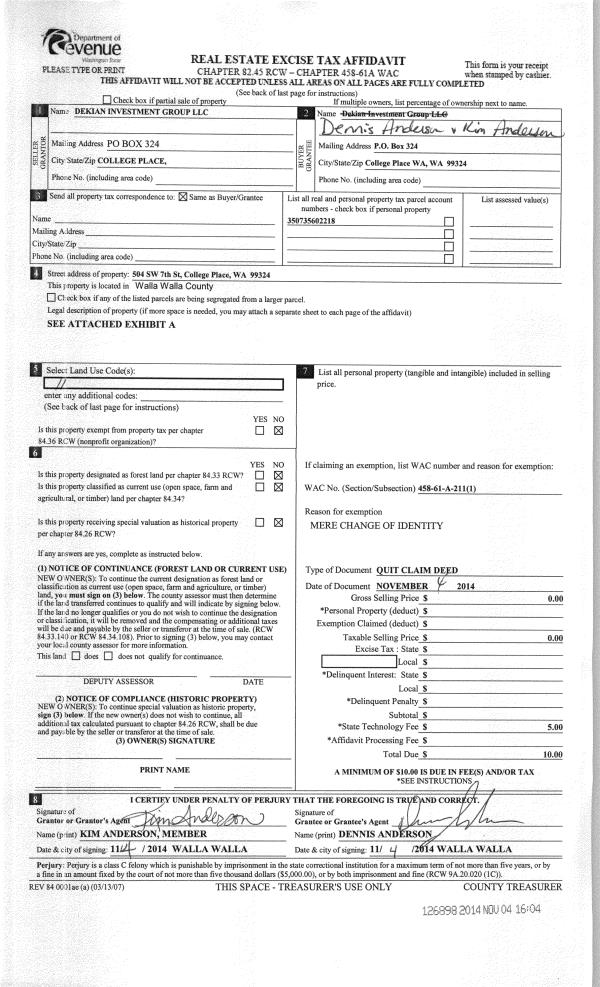
Account |
| Property ID: | 35713 | Abbreviated Legal Description: | CP #2 TAX 10 BLK 22 |
| Parcel Number: | 350735602218 | Agent Code: | |
| Type: | Real | | |
| Tax Area: | 75 - CP 250 | Land Use Code | 11 |
| Open Space: | N | DFL | N |
| Historic Property: | N | Remodel Property: | N |
| Multi-Family Redevelopment: | N | | |
| Township: | 7 | Section: | 35 |
| Range: | 35 |
Location |
| Address: | 504 SW 7TH ST WA 99324 | Mapsco: | |
| Neighborhood: | A SFR | Map ID: | |
| Neighborhood CD: | 113011 |
Owner |
| Name: | ANDERSON DENNIS & KIM | Owner ID: | 55786 |
| Mailing Address: | PO BOX 324 COLLEGE PLACE, WA 99324 | % Ownership: | 100.0000000000% |
| | | Exemptions: | |
Taxes and Assessment Details
Values
| (+) Improvement Homesite Value: | + | $0 | |
| (+) Improvement Non-Homesite Value: | + | $14,160 | |
| (+) Land Homesite Value: | + | $0 | |
| (+) Land Non-Homesite Value: | + | $64,720 | |
| (+) Curr Use (HS): | + | $0 | $0 |
| (+) Curr Use (NHS): | + | $0 | $0 |
| | | -------------------------- | |
| (=) Market Value: | = | $78,880 | |
| (–) Productivity Loss: | – | $0 | |
| | | -------------------------- | |
| (=) Subtotal: | = | $78,880 | |
| (+) Senior Appraised Value: | + | $0 | |
| (+) Non-Senior Appraised Value: | + | $78,880 | |
| | | -------------------------- | |
| (=) Total Appraised Value: | = | $78,880 | |
| (–) Senior Exemption Loss: | – | $0 | |
| (–) Exemption Loss: | – | $0 | |
| | | -------------------------- | |
| (=) Taxable Value: | = | $78,880 | |
Taxing Jurisdiction
| Owner: | ANDERSON DENNIS & KIM | | |
| % Ownership: | 100.0000000000% | | |
| Total Value: | $78,880 | | |
| Tax Area: | 75 - CP 250 |
| CERFD | CURRENT EXPENSE REFUND 010 | 0.0000000000 | $78,880 | $78,880 | $0.00 | | |
| CURREXP | CURRENT EXPENSE 010 | 1.0175366760 | $78,880 | $78,880 | $80.26 | | |
| HUMNSERV | HUMAN SERVICES 119 | 0.0250000000 | $78,880 | $78,880 | $1.97 | | |
| SLDREL | SOLDIERS RELIEF 121 | 0.0155990005 | $78,880 | $78,880 | $1.23 | | |
| COLLPLBOND | C OF CP BOND 644 | 0.4374241808 | $78,880 | $78,880 | $34.50 | | |
| COLLPLGEN | CITY OF CP 632 | 1.4453819216 | $78,880 | $78,880 | $114.01 | | |
| EMERGSER | EMS 147 | 0.3792580840 | $78,880 | $78,880 | $29.92 | | |
| EMSRFD | EMS REFUND 147 | 0.0000000000 | $78,880 | $78,880 | $0.00 | | |
| RURALLIB | RURAL LIBRARY 623 | 0.3710609029 | $78,880 | $78,880 | $29.27 | | |
| PORTRFD | PORT REFUND 640 | 0.0000000000 | $78,880 | $78,880 | $0.00 | | |
| PORTWWGEN | PORT OF WW 640 | 0.2460186015 | $78,880 | $78,880 | $19.41 | | |
| SD250BOND | SD #250 BOND 773 | 1.4560608159 | $78,880 | $78,880 | $114.85 | | |
| SD250GEN | SD #250 GENERAL 770 | 2.3880724087 | $78,880 | $78,880 | $188.37 | | |
| ST2 | STATE SCHOOL PART 2 600 | 0.8131451643 | $78,880 | $78,880 | $64.14 | | |
| STATESCHL | STATE SCHOOL 600 | 1.5158548041 | $78,880 | $78,880 | $119.57 | | |
| STREFUND | STATE REFUND LEVY 603 | 0.0000000000 | $78,880 | $78,880 | $0.00 | | |
| | Total Tax Rate: | 10.1104125603 | | | | | |
| | | | | Taxes w/Current Exemptions: | $797.50 | | |
| | | | | Taxes w/o Exemptions: | $797.50 | | |
Improvement / Building
| Improvement #1: | RESIDENTIAL | State Code: | 11 | 2004.0 sqft | Value: | $14,160 |
| Exterior Wall: | SIDING | Foundation: | POST & PIER | | Heating/Cooling: | FORCED AIR | Number of Bathrooms: | 2 | | Number of Bedrooms: | 3 | Plumbing: | 8 | | Roof Covering: | COMP SHINGLE |   |   |
|
| | Type | Description | Class CD | Sub Class CD | Year Built | Area |
| | MA | Main Area | 1 | 30 | 1955 | 2004.0 |
| | SI1 | SITE IMPROVEMENT | 1 | 30 | 0 | 1.5 |
| | BASE | BASEMENT | 1 | 30 | 1955 | 557.0 |
| | S1F | Single One Story Fireplace | 1 | 30 | 1955 | 1.0 |
| | RPS | PORCH W/STEPS,ROOF | 1 | 30 | 1955 | 198.0 |
| | ATG | Attached Garage | 1 | 30 | 0 | 663.0 |
Sketch
Property Image
Land
| 1 | RES 1 | Converted: Residential | 0.3696 | 16100.00 | 0.00 | 0.00 | 1.00 | $64,720 | $0 |
Roll Value History
| 2026 | N/A | N/A | N/A | N/A | N/A |
| 2025 | $24,640 | $98,210 | $0 | $122,850 | $122,850 |
| 2024 | $14,160 | $64,720 | $0 | $78,880 | $78,880 |
| 2023 | $14,160 | $64,720 | $0 | $78,880 | $78,880 |
| 2022 | $14,160 | $64,720 | $0 | $78,880 | $78,880 |
| 2021 | $12,870 | $64,720 | $0 | $77,590 | $77,590 |
| 2020 | $9,900 | $64,720 | $0 | $74,620 | $74,620 |
| 2019 | $22,320 | $52,300 | $0 | $74,620 | $74,620 |
| 2018 | $22,320 | $52,300 | $0 | $74,620 | $74,620 |
| 2017 | $22,320 | $52,300 | $0 | $74,620 | $74,620 |
| 2016 | $39,280 | $52,300 | $0 | $91,580 | $91,580 |
| 2015 | $98,200 | $52,300 | $0 | $150,500 | $150,500 |
| 2014 | $98,200 | $52,300 | $0 | $150,500 | $150,500 |
| 2013 | $98,200 | $52,300 | $0 | $150,500 | $150,500 |
| 2012 | $91,000 | $52,300 | $0 | $0 | $0 |
| 2011 | $91,000 | $52,300 | $0 | $0 | $0 |
| 2010 | $91,000 | $52,300 | $0 | $0 | $0 |
| 2009 | $106,900 | $52,300 | $0 | $0 | $0 |
| 2008 | $95,900 | $30,200 | $0 | $0 | $0 |
| 2007 | $95,900 | $30,200 | $0 | $0 | $0 |
Deed and Sales History
| 1 | 11/04/2014 | QCD | QUIT CLAIM DEED | DEKIAN INVESTMENT GROUP LLC | ANDERSON DENNIS & KIM | | | $0.00 | 126898 | 2014-08094 |
| 2 | 11/03/2014 | BARGAIN & | BARGAIN & SALE DEED | JPMORGAN CHASE BANK NATIONAL | DEKIAN INVESTMENT GROUP LLC | | | $95,000.00 | 126788 | 2014-07528 |
| 3 | 08/26/2013 | WARRANTY D | WARRANTY DEED | QUALITY LOAN SERIVCE CORPORATI | JPMORGAN CHASE BANK NATIONAL | | | $116,371.00 | 124534 | 2013-08716 |
| 4 | 03/11/2008 | QCD | QUIT CLAIM DEED | PETERSON, WENDY L | PETERSON, WENDY TRUST | | | | 114658 | 2008-02271 |
| 5 | 09/12/2007 | QCD | QUIT CLAIM DEED | GIPSON, ROBERT | PETERSON, WENDY | | | $23,000.00 | 113702 | 2007-10724 |
| 6 | 01/17/2007 | WARRANTY D | WARRANTY DEED | BECKER, SARA L | GIPSON, ROBERT | | | $165,000.00 | 112090 | 2007-00669 |
| 7 | 01/17/2007 | QCD | QUIT CLAIM DEED | BECKER, ROBERT L | BECKER, SARA L | | | | 112089 | 2007-00668 |
| 8 | 02/03/2006 | WARRANTY D | WARRANTY DEED | BECKER, ROBERT L | BECKER, SARA L | | | | 0 | CC #05-3-00266-7 |
| 9 | 11/14/2000 | WARRANTY D | WARRANTY DEED | | | | | $100,000.00 | 96169 | 3040-010865 |
Payout Agreement
| No payout information available.. |