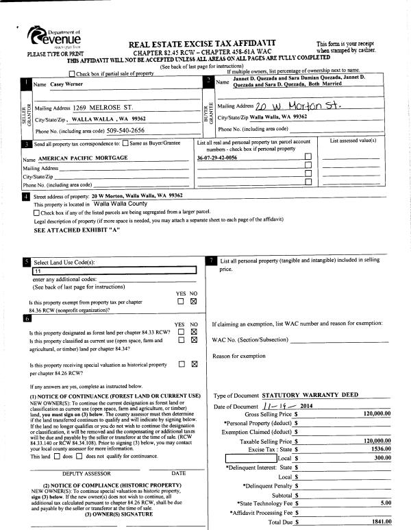
Property
Account |
| Property ID: | 35703 | Abbreviated Legal Description: | 29-7-36 TAX 176A |
| Parcel Number: | 360729420056 | Agent Code: | |
| Type: | Real | | |
| Tax Area: | 1 - OL-140-F | Land Use Code | 11 |
| Open Space: | N | DFL | N |
| Historic Property: | N | Remodel Property: | N |
| Multi-Family Redevelopment: | N | | |
| Township: | 7 | Section: | 29 |
| Range: | 36 |
Location |
| Address: | 20 W MORTON ST WA 99362 | Mapsco: | |
| Neighborhood: | A Res | Map ID: | |
| Neighborhood CD: | 613011 |
Owner |
| Name: | QUEZADA JANNET D | Owner ID: | 55989 |
| Mailing Address: | SARA DAMIAN QUEZADA 20 W MORTON ST WALLA WALLA, WA 99362 | % Ownership: | 100.0000000000% |
| | | Exemptions: | |
Taxes and Assessment Details
Property Tax Information as of
02/21/2026
Click on "Statement Details" to expand or collapse a tax statement.
* Please enter a valid date ** Please enter a valid date *
Statement Details |
| | TOTAL: | $0.00 | $0.00 | $0.00 | $0.00 | $0.00 | $0.00 |
|
| | $0.00 | $0.00 | $0.00 | $0.00 | $0.00 | $0.00 |
Values
| (+) Improvement Homesite Value: | + | $0 | |
| (+) Improvement Non-Homesite Value: | + | $131,580 | |
| (+) Land Homesite Value: | + | $0 | |
| (+) Land Non-Homesite Value: | + | $59,400 | |
| (+) Curr Use (HS): | + | $0 | $0 |
| (+) Curr Use (NHS): | + | $0 | $0 |
| | | -------------------------- | |
| (=) Market Value: | = | $190,980 | |
| (–) Productivity Loss: | – | $0 | |
| | | -------------------------- | |
| (=) Subtotal: | = | $190,980 | |
| (+) Senior Appraised Value: | + | $0 | |
| (+) Non-Senior Appraised Value: | + | $190,980 | |
| | | -------------------------- | |
| (=) Total Appraised Value: | = | $190,980 | |
| (–) Senior Exemption Loss: | – | $0 | |
| (–) Exemption Loss: | – | $0 | |
| | | -------------------------- | |
| (=) Taxable Value: | = | $190,980 | |
Taxing Jurisdiction
| Owner: | QUEZADA JANNET D | | |
| % Ownership: | 100.0000000000% | | |
| Total Value: | $190,980 | | |
| Tax Area: | 1 - OL-140-F |
| CERFD | CURRENT EXPENSE REFUND 010 | 0.0000000000 | $190,980 | $190,980 | $0.00 | | |
| CURREXP | CURRENT EXPENSE 010 | 1.0175366760 | $190,980 | $190,980 | $194.33 | | |
| HUMNSERV | HUMAN SERVICES 119 | 0.0250000000 | $190,980 | $190,980 | $4.77 | | |
| SLDREL | SOLDIERS RELIEF 121 | 0.0155990005 | $190,980 | $190,980 | $2.98 | | |
| EMERGSER | EMS 147 | 0.3792580840 | $190,980 | $190,980 | $72.43 | | |
| EMSRFD | EMS REFUND 147 | 0.0000000000 | $190,980 | $190,980 | $0.00 | | |
| PORTRFD | PORT REFUND 640 | 0.0000000000 | $190,980 | $190,980 | $0.00 | | |
| PORTWWGEN | PORT OF WW 640 | 0.2460186015 | $190,980 | $190,980 | $46.98 | | |
| SD140BOND | SD #140 BOND 764 | 0.8342371393 | $190,980 | $190,980 | $159.32 | | |
| SD140GEN | SD #140 GENERAL 760 | 2.0646500647 | $190,980 | $190,980 | $394.31 | | |
| ST2 | STATE SCHOOL PART 2 600 | 0.8131451643 | $190,980 | $190,980 | $155.29 | | |
| STATESCHL | STATE SCHOOL 600 | 1.5158548041 | $190,980 | $190,980 | $289.50 | | |
| STREFUND | STATE REFUND LEVY 603 | 0.0000000000 | $190,980 | $190,980 | $0.00 | | |
| CWWBOND | C OF WW BOND 643 | 0.2760494372 | $190,980 | $190,980 | $52.72 | | |
| CWWGEN | CITY OF WW 631 | 1.6100204973 | $190,980 | $190,980 | $307.48 | | |
| CWWRFD | CITY OF WALLA WALLA REFUND 631 | 0.0000000000 | $190,980 | $190,980 | $0.00 | | |
| | Total Tax Rate: | 8.7973694689 | | | | | |
| | | | | Taxes w/Current Exemptions: | $1,680.11 | | |
| | | | | Taxes w/o Exemptions: | $1,680.11 | | |
Improvement / Building
| Improvement #1: | RESIDENTIAL | State Code: | 11 | 1034.0 sqft | Value: | $131,580 |
| Exterior Wall: | CONCRETE BLOCK | Heating/Cooling: | FLOOR RADIANT | | Number of Bathrooms: | 1 | Number of Bedrooms: | 3 | | Plumbing: | 7 | Roof Covering: | COMP SHINGLE |
|
| | Type | Description | Class CD | Sub Class CD | Year Built | Area |
| | MA | Main Area | 1 | 25 | 1950 | 1034.0 |
| | SI1 | SITE IMPROVEMENT | 1 | 25 | 1950 | 1.0 |
| | RPO | OPEN PORCH W/ROOF | 1 | 25 | 1950 | 56.0 |
Sketch
Property Image
Land
| 1 | RES 1 | Converted: Residential | 0.1515 | 6600.00 | 0.00 | 0.00 | 1.00 | $59,400 | $0 |
Roll Value History
| 2026 | N/A | N/A | N/A | N/A | N/A |
| 2025 | $160,110 | $66,000 | $0 | $226,110 | $226,110 |
| 2024 | $131,580 | $59,400 | $0 | $190,980 | $190,980 |
| 2023 | $131,580 | $59,400 | $0 | $190,980 | $190,980 |
| 2022 | $131,580 | $47,850 | $0 | $179,430 | $179,430 |
| 2021 | $131,580 | $47,850 | $0 | $179,430 | $179,430 |
| 2020 | $109,650 | $47,850 | $0 | $157,500 | $157,500 |
| 2019 | $109,650 | $47,850 | $0 | $157,500 | $157,500 |
| 2018 | $130,350 | $39,600 | $0 | $169,950 | $169,950 |
| 2017 | $83,560 | $39,600 | $0 | $123,160 | $123,160 |
| 2016 | $75,960 | $39,600 | $0 | $115,560 | $115,560 |
| 2015 | $63,300 | $39,600 | $0 | $102,900 | $102,900 |
| 2014 | $63,300 | $39,600 | $0 | $102,900 | $102,900 |
| 2013 | $63,300 | $39,600 | $0 | $102,900 | $102,900 |
| 2012 | $63,300 | $39,600 | $0 | $0 | $0 |
| 2011 | $63,300 | $39,600 | $0 | $0 | $0 |
| 2010 | $63,300 | $39,600 | $0 | $0 | $0 |
| 2009 | $74,700 | $39,600 | $0 | $0 | $0 |
| 2008 | $74,700 | $39,600 | $0 | $0 | $0 |
| 2007 | $59,800 | $13,200 | $0 | $0 | $0 |
Deed and Sales History
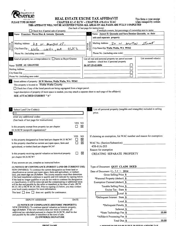
| 1 | 11/21/2014 | QCD | QUIT CLAIM DEED | | QUEZADA JANNET D | | | | 126990 | 2014-08474 |
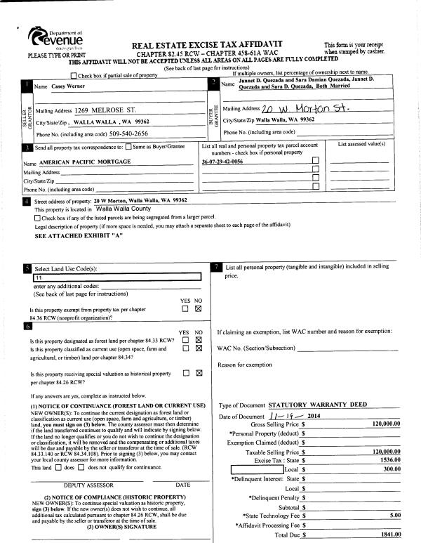
| 2 | 11/19/2014 | SWD | STATUTORY WARRANTY DEED | WERNER CASEY | QUEZADA JANNET D | | | $120,000.00 | 126989 | 2014-08473 |
| 3 | 02/03/2014 | QCD | QUIT CLAIM DEED | WERNER CASEY | | | | | 125372 | 2014-00855 |
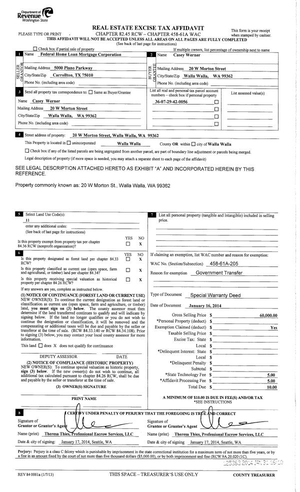
| 4 | 01/31/2014 | WARRANTY D | WARRANTY DEED | FEDERAL HOME LOAN MORTGAGE CORP | WERNER CASEY | | | $60,000.00 | 125363 | 2014-00808 |
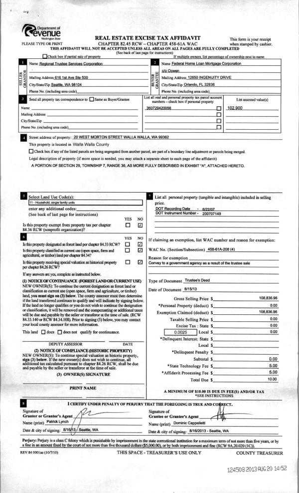
| 5 | 08/20/2013 | WARRANTY D | WARRANTY DEED | REGIONAL TRUSTEE SERVICES CORP | FEDERAL HOME LOAN MORTGAGE COR | | | $108,836.00 | 124508 | 2013-08548 |
| 6 | 02/20/1990 | WARRANTY D | WARRANTY DEED | | | | | $29,900.00 | 57818 | 1819-001152 |
Payout Agreement
| No payout information available.. |