Property
Account |
| Property ID: | 35684 | Abbreviated Legal Description: | RANSOM CLARK DC TAX 1 BLK 9 |
| Parcel Number: | 360732510901 | Agent Code: | |
| Type: | Real | | |
| Tax Area: | 6 - OL-140-F-FB | Land Use Code | 11 |
| Open Space: | N | DFL | N |
| Historic Property: | N | Remodel Property: | N |
| Multi-Family Redevelopment: | N | | |
| Township: | 7 | Section: | 32 |
| Range: | 36 |
Location |
| Address: | 2409 PLAZA WAY WA 99362 | Mapsco: | |
| Neighborhood: | A Res Rural/City Inf | Map ID: | |
| Neighborhood CD: | 613082 |
Owner |
| Name: | MEEKS BENJAMIN R & TERESA E REVOCABLE LIVING TRUST | Owner ID: | 58196 |
| Mailing Address: | 2409 PLAZA WAY WALLA WALLA, WA 99362 | % Ownership: | 100.0000000000% |
| | | Exemptions: | |
Taxes and Assessment Details
Values
| (+) Improvement Homesite Value: | + | $0 | |
| (+) Improvement Non-Homesite Value: | + | $353,690 | |
| (+) Land Homesite Value: | + | $0 | |
| (+) Land Non-Homesite Value: | + | $104,890 | |
| (+) Curr Use (HS): | + | $0 | $0 |
| (+) Curr Use (NHS): | + | $0 | $0 |
| | | -------------------------- | |
| (=) Market Value: | = | $458,580 | |
| (–) Productivity Loss: | – | $0 | |
| | | -------------------------- | |
| (=) Subtotal: | = | $458,580 | |
| (+) Senior Appraised Value: | + | $0 | |
| (+) Non-Senior Appraised Value: | + | $458,580 | |
| | | -------------------------- | |
| (=) Total Appraised Value: | = | $458,580 | |
| (–) Senior Exemption Loss: | – | $0 | |
| (–) Exemption Loss: | – | $0 | |
| | | -------------------------- | |
| (=) Taxable Value: | = | $458,580 | |
Taxing Jurisdiction
| Owner: | MEEKS BENJAMIN R & TERESA E REVOCABLE LIVING TRUST | | |
| % Ownership: | 100.0000000000% | | |
| Total Value: | $458,580 | | |
| Tax Area: | 6 - OL-140-F-FB |
| CERFD | CURRENT EXPENSE REFUND 010 | 0.0000000000 | $458,580 | $458,580 | $0.00 | | |
| CURREXP | CURRENT EXPENSE 010 | 1.0175366760 | $458,580 | $458,580 | $466.62 | | |
| HUMNSERV | HUMAN SERVICES 119 | 0.0250000000 | $458,580 | $458,580 | $11.46 | | |
| SLDREL | SOLDIERS RELIEF 121 | 0.0155990005 | $458,580 | $458,580 | $7.15 | | |
| EMERGSER | EMS 147 | 0.3792580840 | $458,580 | $458,580 | $173.92 | | |
| EMSRFD | EMS REFUND 147 | 0.0000000000 | $458,580 | $458,580 | $0.00 | | |
| PORTRFD | PORT REFUND 640 | 0.0000000000 | $458,580 | $458,580 | $0.00 | | |
| PORTWWGEN | PORT OF WW 640 | 0.2460186015 | $458,580 | $458,580 | $112.82 | | |
| SD140BOND | SD #140 BOND 764 | 0.8342371393 | $458,580 | $458,580 | $382.56 | | |
| SD140GEN | SD #140 GENERAL 760 | 2.0646500647 | $458,580 | $458,580 | $946.81 | | |
| ST2 | STATE SCHOOL PART 2 600 | 0.8131451643 | $458,580 | $458,580 | $372.89 | | |
| STATESCHL | STATE SCHOOL 600 | 1.5158548041 | $458,580 | $458,580 | $695.14 | | |
| STREFUND | STATE REFUND LEVY 603 | 0.0000000000 | $458,580 | $458,580 | $0.00 | | |
| CWWBOND | C OF WW BOND 643 | 0.2760494372 | $458,580 | $458,580 | $126.59 | | |
| CWWGEN | CITY OF WW 631 | 1.6100204973 | $458,580 | $458,580 | $738.32 | | |
| CWWRFD | CITY OF WALLA WALLA REFUND 631 | 0.0000000000 | $458,580 | $458,580 | $0.00 | | |
| | Total Tax Rate: | 8.7973694689 | | | | | |
| | | | | Taxes w/Current Exemptions: | $4,034.28 | | |
| | | | | Taxes w/o Exemptions: | $4,034.28 | | |
Improvement / Building
| Improvement #1: | RESIDENTIAL | State Code: | 11 | 1647.0 sqft | Value: | $280,410 |
| Exterior Wall: | METAL/STEEL | Foundation: | SLAB FOUNDATION | | Heating/Cooling: | FORCED AIR | Number of Bathrooms: | 2 | | Number of Bedrooms: | 3 | Plumbing: | 9 | | Roof Covering: | COMP SHINGLE |   |   |
|
| | Type | Description | Class CD | Sub Class CD | Year Built | Area |
| | MA | Main Area | 4 | 30 | 1920 | 1647.0 |
| | UPFL | Upper Floor (included in main area) | 4 | 30 | 1920 | 295.0 |
| | SI1 | SITE IMPROVEMENT | 4 | 30 | 1920 | 2.0 |
| | BASE | BASEMENT | 4 | 30 | 1920 | 1074.0 |
| | DTG | Detached Garage | 4 | 30 | 1920 | 600.0 |
| Improvement #2: | RESIDENTIAL | State Code: | 11 | 720.0 sqft | Value: | $73,280 |
| Exterior Wall: | CONCRETE BLOCK | Foundation: | SLAB FOUNDATION | | Heating/Cooling: | WARM & COOLED AIR | Number of Bathrooms: | 1 | | Number of Bedrooms: | 2 | Plumbing: | 6 | | Roof Covering: | COMP ROLL |   |   |
|
| | Type | Description | Class CD | Sub Class CD | Year Built | Area |
| | MA | Main Area | 1 | 20 | 1920 | 720.0 |
| | SI1 | SITE IMPROVEMENT | 1 | 20 | 1920 | 1.0 |
Sketch
Property Image
Land
| 1 | RES 1 | Converted: Residential | 0.7000 | 30492.00 | 0.00 | 0.00 | 1.00 | $104,890 | $0 |
Roll Value History
| 2026 | N/A | N/A | N/A | N/A | N/A |
| 2025 | $220,710 | $159,170 | $0 | $379,880 | $379,880 |
| 2024 | $353,690 | $104,890 | $0 | $458,580 | $458,580 |
| 2023 | $353,690 | $104,890 | $0 | $458,580 | $458,580 |
| 2022 | $353,690 | $83,160 | $0 | $436,850 | $436,850 |
| 2021 | $294,740 | $83,160 | $0 | $377,900 | $377,900 |
| 2020 | $210,530 | $83,160 | $0 | $293,690 | $293,690 |
| 2019 | $210,530 | $83,160 | $0 | $293,690 | $293,690 |
| 2018 | $207,120 | $64,500 | $0 | $271,620 | $271,620 |
| 2017 | $207,120 | $64,500 | $0 | $271,620 | $271,620 |
| 2016 | $207,120 | $64,500 | $0 | $271,620 | $271,620 |
| 2015 | $207,120 | $64,500 | $0 | $271,620 | $271,620 |
| 2014 | $180,100 | $64,500 | $0 | $244,600 | $244,600 |
| 2013 | $180,100 | $64,500 | $0 | $244,600 | $244,600 |
| 2012 | $177,800 | $64,500 | $0 | $0 | $0 |
| 2011 | $177,800 | $64,500 | $0 | $0 | $0 |
| 2010 | $177,800 | $64,500 | $0 | $0 | $0 |
| 2009 | $199,600 | $64,500 | $0 | $0 | $0 |
| 2008 | $199,600 | $64,500 | $0 | $0 | $0 |
| 2007 | $132,300 | $42,000 | $0 | $0 | $0 |
Deed and Sales History
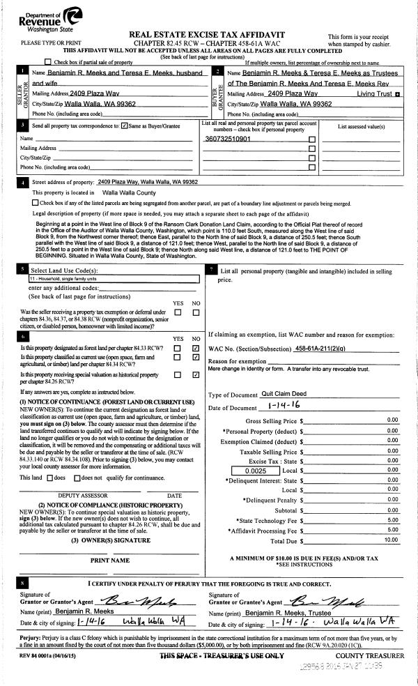
| 1 | 01/14/2016 | QCD | QUIT CLAIM DEED | MEEKS BENJAMIN & TERESA | MEEKS BENJAMIN R & TERESA E REVOCABLE LIVING TRUST | | | $0.00 | 129568 | 2016-00625 |
| 2 | 11/30/2006 | WARRANTY D | WARRANTY DEED | SMITH, DOUGLAS S & SOYOKO | MEEKS, BENJAMIN & TERESA | | | $265,000.00 | 111773 | 2006-14329 |
| 3 | 05/29/2002 | WARRANTY D | WARRANTY DEED | | | | | $174,900.00 | 99593 | 2002-0006215 |
Payout Agreement
| No payout information available.. |