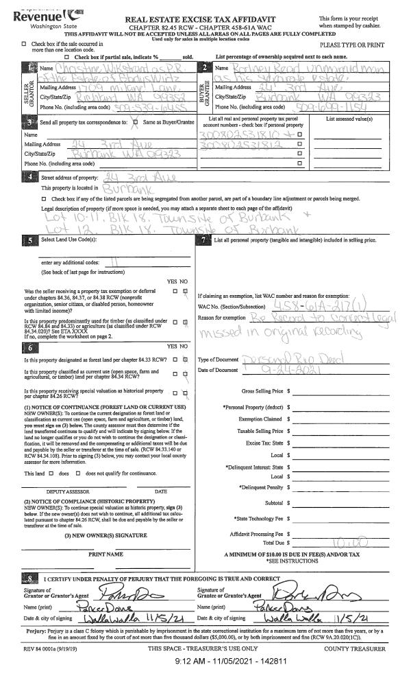
Property
Account |
| Property ID: | 35671 | Abbreviated Legal Description: | BURBANK LOT 12 BLK 18 |
| Parcel Number: | 300802531812 | Agent Code: | |
| Type: | Real | | |
| Tax Area: | 328 - 400-M-5 | Land Use Code | 18 |
| Open Space: | N | DFL | N |
| Historic Property: | N | Remodel Property: | N |
| Multi-Family Redevelopment: | N | | |
| Township: | 8 | Section: | 2 |
| Range: | 30 |
Location |
| Address: | 80 ASH ST WA 99323 | Mapsco: | |
| Neighborhood: | Burbank F Contig | Map ID: | |
| Neighborhood CD: | 212797 |
Owner |
| Name: | READ RODNEY | Owner ID: | 70331 |
| Mailing Address: | PO BOX 94 BURBANK, WA 99323 | % Ownership: | 100.0000000000% |
| | | Exemptions: | |
Taxes and Assessment Details
Values
| (+) Improvement Homesite Value: | + | $0 | |
| (+) Improvement Non-Homesite Value: | + | $57,830 | |
| (+) Land Homesite Value: | + | $0 | |
| (+) Land Non-Homesite Value: | + | $2,220 | |
| (+) Curr Use (HS): | + | $0 | $0 |
| (+) Curr Use (NHS): | + | $0 | $0 |
| | | -------------------------- | |
| (=) Market Value: | = | $60,050 | |
| (–) Productivity Loss: | – | $0 | |
| | | -------------------------- | |
| (=) Subtotal: | = | $60,050 | |
| (+) Senior Appraised Value: | + | $0 | |
| (+) Non-Senior Appraised Value: | + | $60,050 | |
| | | -------------------------- | |
| (=) Total Appraised Value: | = | $60,050 | |
| (–) Senior Exemption Loss: | – | $0 | |
| (–) Exemption Loss: | – | $0 | |
| | | -------------------------- | |
| (=) Taxable Value: | = | $60,050 | |
Taxing Jurisdiction
| Owner: | READ RODNEY | | |
| % Ownership: | 100.0000000000% | | |
| Total Value: | $60,050 | | |
| Tax Area: | 328 - 400-M-5 |
| CERFD | CURRENT EXPENSE REFUND 010 | 0.0000000000 | $60,050 | $60,050 | $0.00 | | |
| CURREXP | CURRENT EXPENSE 010 | 1.0175366760 | $60,050 | $60,050 | $61.10 | | |
| HUMNSERV | HUMAN SERVICES 119 | 0.0250000000 | $60,050 | $60,050 | $1.50 | | |
| SLDREL | SOLDIERS RELIEF 121 | 0.0155990005 | $60,050 | $60,050 | $0.94 | | |
| EMERGSER | EMS 147 | 0.3792580840 | $60,050 | $60,050 | $22.77 | | |
| EMSRFD | EMS REFUND 147 | 0.0000000000 | $60,050 | $60,050 | $0.00 | | |
| FD5EXP | FD #5 EXPENSE 689 | 1.2045331840 | $60,050 | $60,050 | $72.33 | | |
| RLBRFD | RURAL LIBRARY REFUND 623 | 0.0000000000 | $60,050 | $60,050 | $0.00 | | |
| RURALLIB | RURAL LIBRARY 623 | 0.3710609029 | $60,050 | $60,050 | $22.28 | | |
| PORTRFD | PORT REFUND 640 | 0.0000000000 | $60,050 | $60,050 | $0.00 | | |
| PORTWWGEN | PORT OF WW 640 | 0.2460186015 | $60,050 | $60,050 | $14.77 | | |
| SD400BOND | SD #400 BOND 793 | 0.0000000000 | $60,050 | $60,050 | $0.00 | | |
| SD400CAP | SD #400 CP 792 | 0.3443722657 | $60,050 | $60,050 | $20.68 | | |
| SD400GEN | SD #400 GENERAL 790 | 1.9278469916 | $60,050 | $60,050 | $115.77 | | |
| ST2 | STATE SCHOOL PART 2 600 | 0.8131451643 | $60,050 | $60,050 | $48.83 | | |
| STATESCHL | STATE SCHOOL 600 | 1.5158548041 | $60,050 | $60,050 | $91.03 | | |
| STREFUND | STATE REFUND LEVY 603 | 0.0000000000 | $60,050 | $60,050 | $0.00 | | |
| COROAD | COUNTY ROAD 115 | 1.6549953990 | $60,050 | $60,050 | $99.38 | | |
| CRPRD | COUNTY ROAD REFUND 115 | 0.0000000000 | $60,050 | $60,050 | $0.00 | | |
| | Total Tax Rate: | 9.5152210736 | | | | | |
| | | | | Taxes w/Current Exemptions: | $571.38 | | |
| | | | | Taxes w/o Exemptions: | $571.38 | | |
Improvement / Building
| Improvement #1: | RESIDENTIAL | State Code: | 18 | 0.0 sqft | Value: | $57,830 |
| | Type | Description | Class CD | Sub Class CD | Year Built | Area |
| | CPC | COVERED CARPORT/PATIO | 4 | 30 | 0 | 672.0 |
| | DTG | Detached Garage | 4 | 30 | 0 | 1624.0 |
Sketch
Property Image
Land
| 1 | RES 1 | Converted: Residential | 0.1377 | 6000.00 | 0.00 | 0.00 | 1.00 | $2,220 | $0 |
Roll Value History
| 2026 | N/A | N/A | N/A | N/A | N/A |
| 2025 | $57,830 | $2,220 | $0 | $60,050 | $60,050 |
| 2024 | $57,830 | $2,220 | $0 | $60,050 | $60,050 |
| 2023 | $57,830 | $2,220 | $0 | $60,050 | $60,050 |
| 2022 | $57,830 | $2,220 | $0 | $60,050 | $60,050 |
| 2021 | $57,830 | $2,220 | $0 | $60,050 | $60,050 |
| 2020 | $13,100 | $3,000 | $0 | $16,100 | $16,100 |
| 2019 | $13,100 | $3,000 | $0 | $16,100 | $16,100 |
| 2018 | $13,100 | $3,000 | $0 | $16,100 | $16,100 |
| 2017 | $13,100 | $3,000 | $0 | $16,100 | $16,100 |
| 2016 | $13,100 | $3,000 | $0 | $16,100 | $16,100 |
| 2015 | $13,100 | $3,000 | $0 | $16,100 | $16,100 |
| 2014 | $13,100 | $3,000 | $0 | $16,100 | $16,100 |
| 2013 | $13,100 | $3,000 | $0 | $16,100 | $16,100 |
| 2012 | $13,100 | $3,000 | $0 | $0 | $0 |
| 2011 | $13,100 | $3,000 | $0 | $0 | $0 |
| 2010 | $13,100 | $3,000 | $0 | $0 | $0 |
| 2009 | $12,100 | $4,900 | $0 | $0 | $0 |
| 2008 | $12,100 | $4,900 | $0 | $0 | $0 |
| 2007 | $12,100 | $4,900 | $0 | $0 | $0 |
Deed and Sales History
| 1 | 11/05/2021 | DPR | DEED OF PERSONAL REPRESENTATIVE | WIRTZ GLADYS LORRAINE ESTATE OF | READ RODNEY | | 2-PARCELS | $0.00 | 142811 | 2021-13297 |
| 2 | 10/29/1973 | WARRANTY D | WARRANTY DEED | | | | | $19,000.00 | 0 | 1005-32937 |
|   | |
Payout Agreement
| No payout information available.. |