Property
Account |
| Property ID: | 35620 | Abbreviated Legal Description: | MELODY PARK LOT 16 BLK 1 |
| Parcel Number: | 360716530116 | Agent Code: | |
| Type: | Real | | |
| Tax Area: | 5 - OL-140 | Land Use Code | 11 |
| Open Space: | N | DFL | N |
| Historic Property: | N | Remodel Property: | N |
| Multi-Family Redevelopment: | N | | |
| Township: | 7 | Section: | 16 |
| Range: | 36 |
Location |
| Address: | 2063 LARK DR WA 99362 | Mapsco: | |
| Neighborhood: | A-Superior SFR | Map ID: | |
| Neighborhood CD: | 513211 |
Owner |
| Name: | HURST MIKE & CLENESHA | Owner ID: | 63232 |
| Mailing Address: | 2063 LARK DR WALLA WALLA, WA 99362 | % Ownership: | 100.0000000000% |
| | | Exemptions: | |
Taxes and Assessment Details
Values
| (+) Improvement Homesite Value: | + | $0 | |
| (+) Improvement Non-Homesite Value: | + | $275,780 | |
| (+) Land Homesite Value: | + | $0 | |
| (+) Land Non-Homesite Value: | + | $45,380 | |
| (+) Curr Use (HS): | + | $0 | $0 |
| (+) Curr Use (NHS): | + | $0 | $0 |
| | | -------------------------- | |
| (=) Market Value: | = | $321,160 | |
| (–) Productivity Loss: | – | $0 | |
| | | -------------------------- | |
| (=) Subtotal: | = | $321,160 | |
| (+) Senior Appraised Value: | + | $0 | |
| (+) Non-Senior Appraised Value: | + | $321,160 | |
| | | -------------------------- | |
| (=) Total Appraised Value: | = | $321,160 | |
| (–) Senior Exemption Loss: | – | $0 | |
| (–) Exemption Loss: | – | $0 | |
| | | -------------------------- | |
| (=) Taxable Value: | = | $321,160 | |
Taxing Jurisdiction
| Owner: | HURST MIKE & CLENESHA | | |
| % Ownership: | 100.0000000000% | | |
| Total Value: | $321,160 | | |
| Tax Area: | 5 - OL-140 |
| CERFD | CURRENT EXPENSE REFUND 010 | 0.0000000000 | $321,160 | $321,160 | $0.00 | | |
| CURREXP | CURRENT EXPENSE 010 | 1.0175366760 | $321,160 | $321,160 | $326.79 | | |
| HUMNSERV | HUMAN SERVICES 119 | 0.0250000000 | $321,160 | $321,160 | $8.03 | | |
| SLDREL | SOLDIERS RELIEF 121 | 0.0155990005 | $321,160 | $321,160 | $5.01 | | |
| EMERGSER | EMS 147 | 0.3792580840 | $321,160 | $321,160 | $121.80 | | |
| EMSRFD | EMS REFUND 147 | 0.0000000000 | $321,160 | $321,160 | $0.00 | | |
| PORTRFD | PORT REFUND 640 | 0.0000000000 | $321,160 | $321,160 | $0.00 | | |
| PORTWWGEN | PORT OF WW 640 | 0.2460186015 | $321,160 | $321,160 | $79.01 | | |
| SD140BOND | SD #140 BOND 764 | 0.8342371393 | $321,160 | $321,160 | $267.92 | | |
| SD140GEN | SD #140 GENERAL 760 | 2.0646500647 | $321,160 | $321,160 | $663.08 | | |
| ST2 | STATE SCHOOL PART 2 600 | 0.8131451643 | $321,160 | $321,160 | $261.15 | | |
| STATESCHL | STATE SCHOOL 600 | 1.5158548041 | $321,160 | $321,160 | $486.83 | | |
| STREFUND | STATE REFUND LEVY 603 | 0.0000000000 | $321,160 | $321,160 | $0.00 | | |
| CWWBOND | C OF WW BOND 643 | 0.2760494372 | $321,160 | $321,160 | $88.66 | | |
| CWWGEN | CITY OF WW 631 | 1.6100204973 | $321,160 | $321,160 | $517.07 | | |
| CWWRFD | CITY OF WALLA WALLA REFUND 631 | 0.0000000000 | $321,160 | $321,160 | $0.00 | | |
| | Total Tax Rate: | 8.7973694689 | | | | | |
| | | | | Taxes w/Current Exemptions: | $2,825.35 | | |
| | | | | Taxes w/o Exemptions: | $2,825.35 | | |
Improvement / Building
| Improvement #1: | RESIDENTIAL | State Code: | 11 | 960.0 sqft | Value: | $275,780 |
| Exterior Wall: | SIDING | Heating/Cooling: | WARM & COOLED AIR | | Number of Bathrooms: | 2 | Number of Bedrooms: | 3 | | Plumbing: | 9 | Roof Covering: | COMP SHINGLE |
|
| | Type | Description | Class CD | Sub Class CD | Year Built | Area |
| | MA | Main Area | 1 | 30 | 1960 | 960.0 |
| | SI1 | SITE IMPROVEMENT | 1 | 30 | 1960 | 1.5 |
| | BASE | BASEMENT | 1 | 30 | 1960 | 960.0 |
| | BPF | BASEMENT -PARTITIONED FINISH | 1 | 30 | 1960 | 960.0 |
| | CPC | COVERED CARPORT/PATIO | 1 | 30 | 1960 | 200.0 |
| | CPC | COVERED CARPORT/PATIO | 1 | 30 | 1960 | 276.0 |
| | RPS | PORCH W/STEPS,ROOF | 1 | 30 | 1960 | 48.0 |
Sketch
Property Image
Land
| 1 | RES 1 | Converted: Residential | 0.1667 | 7260.00 | 0.00 | 0.00 | 1.00 | $45,380 | $0 |
Roll Value History
| 2026 | N/A | N/A | N/A | N/A | N/A |
| 2025 | $306,920 | $72,600 | $0 | $379,520 | $379,520 |
| 2024 | $255,770 | $72,600 | $0 | $328,370 | $328,370 |
| 2023 | $275,780 | $45,380 | $0 | $321,160 | $321,160 |
| 2022 | $262,650 | $45,380 | $0 | $308,030 | $308,030 |
| 2021 | $228,390 | $45,380 | $0 | $273,770 | $273,770 |
| 2020 | $175,690 | $45,380 | $0 | $221,070 | $221,070 |
| 2019 | $175,690 | $45,380 | $0 | $221,070 | $221,070 |
| 2018 | $167,320 | $45,380 | $0 | $212,700 | $212,700 |
| 2017 | $123,890 | $29,000 | $0 | $152,890 | $152,890 |
| 2016 | $112,620 | $29,000 | $0 | $141,620 | $141,620 |
| 2015 | $112,620 | $29,000 | $0 | $141,620 | $141,620 |
| 2014 | $121,100 | $29,000 | $0 | $150,100 | $150,100 |
| 2013 | $121,100 | $29,000 | $0 | $150,100 | $150,100 |
| 2012 | $125,900 | $29,000 | $0 | $0 | $0 |
| 2011 | $118,500 | $29,000 | $0 | $0 | $0 |
| 2010 | $111,500 | $29,000 | $0 | $0 | $0 |
| 2009 | $127,100 | $29,000 | $0 | $0 | $0 |
| 2008 | $112,900 | $29,000 | $0 | $0 | $0 |
| 2007 | $112,900 | $29,000 | $0 | $0 | $0 |
Deed and Sales History
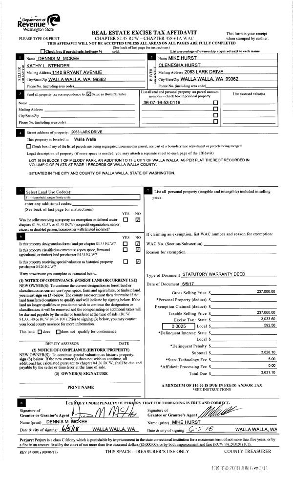
| 1 | 06/06/2018 | SWD | STATUTORY WARRANTY DEED | MC KEE DENNIS M ET AL | HURST MIKE & CLENESHA | | | $237,000.00 | 134860 | 2018-04526 |
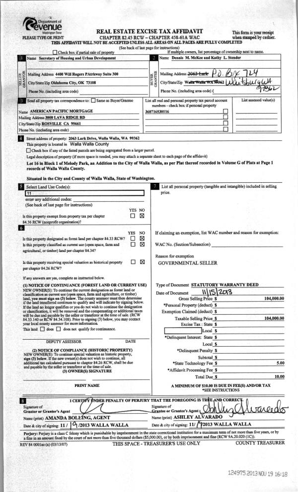
| 2 | 11/19/2013 | WARRANTY D | WARRANTY DEED | THE SECRETARY OF HOUSING & URBAN DEVELOPMENT | MC KEE DENNIS M ET AL | | | $104,000.00 | 124975 | 2013-11363 |
| 3 | 07/29/2013 | WARRANTY D | WARRANTY DEED | BANK OF AMERICA | SECRETARY OF HOUSING & URBAN~D | | | $157,597.00 | 124360 | 2013-07675 |
| 4 | 07/01/2013 | WARRANTY D | WARRANTY DEED | NORTHWEST TRUSTEE SERVICES INC | BANK OF AMERICA | | | $113,920.00 | 124227 | 2013-06580 |
| 5 | 08/31/2005 | WARRANTY D | WARRANTY DEED | LARSON, RYAN C | MEYER, DUSTIN & BRENDA | | | $142,000.00 | 108370 | 2005-10781 |
| 6 | 01/28/2005 | WARRANTY D | WARRANTY DEED | RICHARD, TODD A & KATHERINE M | LARSON, RYAN C | | | $135,400.00 | 106675 | 2005-01111 |
| 7 | 10/29/1999 | WARRANTY D | WARRANTY DEED | | | | | $89,000.00 | 93917 | 2919-912445 |
Payout Agreement
| No payout information available.. |