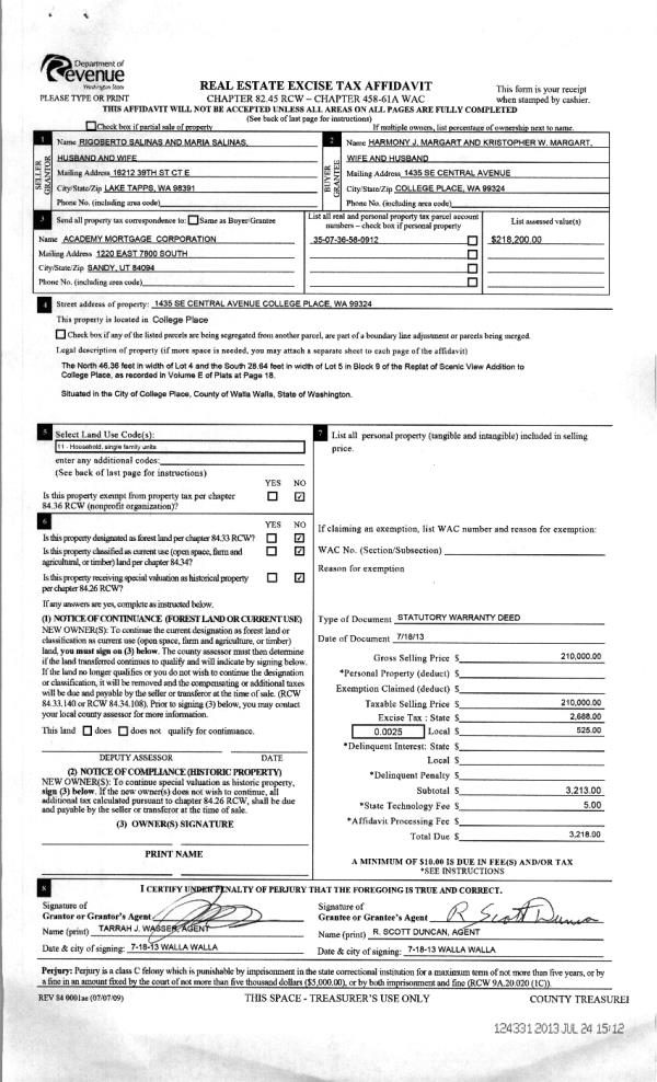
Property
Account |
| Property ID: | 35612 | Abbreviated Legal Description: | SCENIC VIEW N 46.36' OF LOT 4 BLK 9, S 28.64' OF LOT 5 BLK 9 |
| Parcel Number: | 350736580912 | Agent Code: | |
| Type: | Real | | |
| Tax Area: | 75 - CP 250 | Land Use Code | 11 |
| Open Space: | N | DFL | N |
| Historic Property: | N | Remodel Property: | N |
| Multi-Family Redevelopment: | N | | |
| Township: | 7 | Section: | 36 |
| Range: | 35 |
Location |
| Address: | 1435 SE CENTRAL AVE WA 99324 | Mapsco: | |
| Neighborhood: | A SFR | Map ID: | |
| Neighborhood CD: | 113011 |
Owner |
| Name: | MCKLENNY JUSTIN E & ALLYSHA | Owner ID: | 63149 |
| Mailing Address: | 1435 SE CENTRAL AVE COLLEGE PLACE, WA 99324 | % Ownership: | 100.0000000000% |
| | | Exemptions: | |
Taxes and Assessment Details
Values
| (+) Improvement Homesite Value: | + | $0 | |
| (+) Improvement Non-Homesite Value: | + | $303,920 | |
| (+) Land Homesite Value: | + | $0 | |
| (+) Land Non-Homesite Value: | + | $60,240 | |
| (+) Curr Use (HS): | + | $0 | $0 |
| (+) Curr Use (NHS): | + | $0 | $0 |
| | | -------------------------- | |
| (=) Market Value: | = | $364,160 | |
| (–) Productivity Loss: | – | $0 | |
| | | -------------------------- | |
| (=) Subtotal: | = | $364,160 | |
| (+) Senior Appraised Value: | + | $0 | |
| (+) Non-Senior Appraised Value: | + | $364,160 | |
| | | -------------------------- | |
| (=) Total Appraised Value: | = | $364,160 | |
| (–) Senior Exemption Loss: | – | $0 | |
| (–) Exemption Loss: | – | $0 | |
| | | -------------------------- | |
| (=) Taxable Value: | = | $364,160 | |
Taxing Jurisdiction
| Owner: | MCKLENNY JUSTIN E & ALLYSHA | | |
| % Ownership: | 100.0000000000% | | |
| Total Value: | $364,160 | | |
| Tax Area: | 75 - CP 250 |
| CERFD | CURRENT EXPENSE REFUND 010 | 0.0000000000 | $364,160 | $364,160 | $0.00 | | |
| CURREXP | CURRENT EXPENSE 010 | 1.0175366760 | $364,160 | $364,160 | $370.55 | | |
| HUMNSERV | HUMAN SERVICES 119 | 0.0250000000 | $364,160 | $364,160 | $9.10 | | |
| SLDREL | SOLDIERS RELIEF 121 | 0.0155990005 | $364,160 | $364,160 | $5.68 | | |
| COLLPLBOND | C OF CP BOND 644 | 0.4374241808 | $364,160 | $364,160 | $159.29 | | |
| COLLPLGEN | CITY OF CP 632 | 1.4453819216 | $364,160 | $364,160 | $526.35 | | |
| EMERGSER | EMS 147 | 0.3792580840 | $364,160 | $364,160 | $138.11 | | |
| EMSRFD | EMS REFUND 147 | 0.0000000000 | $364,160 | $364,160 | $0.00 | | |
| RURALLIB | RURAL LIBRARY 623 | 0.3710609029 | $364,160 | $364,160 | $135.13 | | |
| PORTRFD | PORT REFUND 640 | 0.0000000000 | $364,160 | $364,160 | $0.00 | | |
| PORTWWGEN | PORT OF WW 640 | 0.2460186015 | $364,160 | $364,160 | $89.59 | | |
| SD250BOND | SD #250 BOND 773 | 1.4560608159 | $364,160 | $364,160 | $530.24 | | |
| SD250GEN | SD #250 GENERAL 770 | 2.3880724087 | $364,160 | $364,160 | $869.64 | | |
| ST2 | STATE SCHOOL PART 2 600 | 0.8131451643 | $364,160 | $364,160 | $296.11 | | |
| STATESCHL | STATE SCHOOL 600 | 1.5158548041 | $364,160 | $364,160 | $552.01 | | |
| STREFUND | STATE REFUND LEVY 603 | 0.0000000000 | $364,160 | $364,160 | $0.00 | | |
| | Total Tax Rate: | 10.1104125603 | | | | | |
| | | | | Taxes w/Current Exemptions: | $3,681.80 | | |
| | | | | Taxes w/o Exemptions: | $3,681.80 | | |
Improvement / Building
| Improvement #1: | RESIDENTIAL | State Code: | 11 | 2086.0 sqft | Value: | $303,920 |
| Exterior Wall: | PLYWOOD | Foundation: | SLAB FOUNDATION | | Heating/Cooling: | REV-HEAT-PUMP-W/DUCT | Number of Bathrooms: | 3 | | Number of Bedrooms: | 3 | Plumbing: | 13 | | Roof Covering: | COMP SHINGLE |   |   |
|
| | Type | Description | Class CD | Sub Class CD | Year Built | Area |
| | MA | Main Area | 3 | 40 | 1975 | 2086.0 |
| | RCD | WOOD DECK W/ROOF, CEILED | 3 | 40 | 0 | 214.2 |
| | SI1 | SITE IMPROVEMENT | 3 | 40 | 1975 | 2.5 |
| | S2F | Single 2S Fireplace | 3 | 40 | 1975 | 1.0 |
| | RPS | PORCH W/STEPS,ROOF | 3 | 40 | 1975 | 64.0 |
| | BIG | Built In Garage | 3 | 40 | 1975 | 462.0 |
| | CPC | COVERED CARPORT/PATIO | 3 | 40 | 1975 | 192.0 |
Sketch
Property Image
Land
| 1 | RES 1 | Converted: Residential | 0.2049 | 8925.00 | 0.00 | 0.00 | 1.00 | $60,240 | $0 |
Roll Value History
| 2026 | N/A | N/A | N/A | N/A | N/A |
| 2025 | $314,560 | $89,250 | $0 | $403,810 | $403,810 |
| 2024 | $349,510 | $60,240 | $0 | $409,750 | $409,750 |
| 2023 | $303,920 | $60,240 | $0 | $364,160 | $364,160 |
| 2022 | $276,290 | $60,240 | $0 | $336,530 | $336,530 |
| 2021 | $276,290 | $60,240 | $0 | $336,530 | $336,530 |
| 2020 | $230,240 | $60,240 | $0 | $290,480 | $290,480 |
| 2019 | $244,280 | $46,200 | $0 | $290,480 | $290,480 |
| 2018 | $187,910 | $46,200 | $0 | $234,110 | $234,110 |
| 2017 | $187,910 | $46,200 | $0 | $234,110 | $234,110 |
| 2016 | $163,400 | $46,200 | $0 | $209,600 | $209,600 |
| 2015 | $163,400 | $46,200 | $0 | $209,600 | $209,600 |
| 2014 | $172,000 | $46,200 | $0 | $218,200 | $218,200 |
| 2013 | $172,000 | $46,200 | $0 | $218,200 | $218,200 |
| 2012 | $172,000 | $46,200 | $0 | $0 | $0 |
| 2011 | $226,600 | $46,200 | $0 | $0 | $0 |
| 2010 | $226,600 | $46,200 | $0 | $0 | $0 |
| 2009 | $256,900 | $46,200 | $0 | $0 | $0 |
| 2008 | $163,800 | $23,800 | $0 | $0 | $0 |
| 2007 | $163,800 | $23,800 | $0 | $0 | $0 |
Deed and Sales History
| 1 | 05/21/2018 | SWD | STATUTORY WARRANTY DEED | MARGART KRISTOPHER W & HARMONY J | MCKLENNY JUSTIN E & ALLYSHA | | | $297,000.00 | 134751 | 2018-04004 |
| 2 | 07/24/2013 | WARRANTY D | WARRANTY DEED | SALINAS, RIGOBERTO & MARIA | MARGART, KRISTOPHER W & HARMON | | | $210,000.00 | 124331 | 2013-07466 |
| 3 | 02/16/2005 | WARRANTY D | WARRANTY DEED | VORIES, DONALD M | SALINAS, RIGOBERTO & MARIA | | | $225,000.00 | 106789 | 2005-01841 |
| 4 | 04/08/1976 | WARRANTY D | WARRANTY DEED | | | | | $50,000.00 | 0 | 3905-52831 |
Payout Agreement
| No payout information available.. |