Property
Account |
| Property ID: | 35591 | Abbreviated Legal Description: | 24-7-35 LOT C OF S/P (WITHIN NLY PTN OF NE1/4SW1/4) |
| Parcel Number: | 350724310057 | Agent Code: | |
| Type: | Real | | |
| Tax Area: | 101 - 140-4 | Land Use Code | 11 |
| Open Space: | N | DFL | N |
| Historic Property: | N | Remodel Property: | N |
| Multi-Family Redevelopment: | N | | |
| Township: | 7 | Section: | 24 |
| Range: | 35 |
Location |
| Address: | 2353 DELL AVE WA 99362 | Mapsco: | |
| Neighborhood: | MH A Rural/City Infl | Map ID: | |
| Neighborhood CD: | 313062 |
Owner |
| Name: | THOMPSON KENNETH H | Owner ID: | 61121 |
| Mailing Address: | MICHELLE R GOODWIN 2353 DELL AVE WALLA WALLA, WA 99362 | % Ownership: | 100.0000000000% |
| | | Exemptions: | |
Taxes and Assessment Details
Property Tax Information as of
02/21/2026
Click on "Statement Details" to expand or collapse a tax statement.
* Please enter a valid date ** Please enter a valid date *
Statement Details |
| | TOTAL: | $0.00 | $0.00 | $0.00 | $0.00 | $0.00 | $0.00 |
|
| | $0.00 | $0.00 | $0.00 | $0.00 | $0.00 | $0.00 |
Values
| (+) Improvement Homesite Value: | + | $0 | |
| (+) Improvement Non-Homesite Value: | + | $209,160 | |
| (+) Land Homesite Value: | + | $0 | |
| (+) Land Non-Homesite Value: | + | $135,000 | |
| (+) Curr Use (HS): | + | $0 | $0 |
| (+) Curr Use (NHS): | + | $0 | $0 |
| | | -------------------------- | |
| (=) Market Value: | = | $344,160 | |
| (–) Productivity Loss: | – | $0 | |
| | | -------------------------- | |
| (=) Subtotal: | = | $344,160 | |
| (+) Senior Appraised Value: | + | $0 | |
| (+) Non-Senior Appraised Value: | + | $344,160 | |
| | | -------------------------- | |
| (=) Total Appraised Value: | = | $344,160 | |
| (–) Senior Exemption Loss: | – | $0 | |
| (–) Exemption Loss: | – | $0 | |
| | | -------------------------- | |
| (=) Taxable Value: | = | $344,160 | |
Taxing Jurisdiction
| Owner: | THOMPSON KENNETH H | | |
| % Ownership: | 100.0000000000% | | |
| Total Value: | $344,160 | | |
| Tax Area: | 101 - 140-4 |
| CERFD | CURRENT EXPENSE REFUND 010 | 0.0000000000 | $344,160 | $344,160 | $0.00 | | |
| CURREXP | CURRENT EXPENSE 010 | 1.0175366760 | $344,160 | $344,160 | $350.20 | | |
| HUMNSERV | HUMAN SERVICES 119 | 0.0250000000 | $344,160 | $344,160 | $8.60 | | |
| SLDREL | SOLDIERS RELIEF 121 | 0.0155990005 | $344,160 | $344,160 | $5.37 | | |
| EMERGSER | EMS 147 | 0.3792580840 | $344,160 | $344,160 | $130.53 | | |
| EMSRFD | EMS REFUND 147 | 0.0000000000 | $344,160 | $344,160 | $0.00 | | |
| FD4EXP | FD #4 EXPENSE 686 | 0.8836993059 | $344,160 | $344,160 | $304.13 | | |
| RLBRFD | RURAL LIBRARY REFUND 623 | 0.0000000000 | $344,160 | $344,160 | $0.00 | | |
| RURALLIB | RURAL LIBRARY 623 | 0.3710609029 | $344,160 | $344,160 | $127.70 | | |
| PORTRFD | PORT REFUND 640 | 0.0000000000 | $344,160 | $344,160 | $0.00 | | |
| PORTWWGEN | PORT OF WW 640 | 0.2460186015 | $344,160 | $344,160 | $84.67 | | |
| SD140BOND | SD #140 BOND 764 | 0.8342371393 | $344,160 | $344,160 | $287.11 | | |
| SD140GEN | SD #140 GENERAL 760 | 2.0646500647 | $344,160 | $344,160 | $710.57 | | |
| ST2 | STATE SCHOOL PART 2 600 | 0.8131451643 | $344,160 | $344,160 | $279.85 | | |
| STATESCHL | STATE SCHOOL 600 | 1.5158548041 | $344,160 | $344,160 | $521.70 | | |
| STREFUND | STATE REFUND LEVY 603 | 0.0000000000 | $344,160 | $344,160 | $0.00 | | |
| COROAD | COUNTY ROAD 115 | 1.6549953990 | $344,160 | $344,160 | $569.58 | | |
| CRPRD | COUNTY ROAD REFUND 115 | 0.0000000000 | $344,160 | $344,160 | $0.00 | | |
| | Total Tax Rate: | 9.8210551422 | | | | | |
| | | | | Taxes w/Current Exemptions: | $3,380.01 | | |
| | | | | Taxes w/o Exemptions: | $3,380.01 | | |
Improvement / Building
| Improvement #1: | MANUFACTURED HOME | State Code: | 11 | 1456.0 sqft | Value: | $209,160 |
| Exterior Wall: | HARDBOARD | Heating/Cooling: | WARM & COOLED AIR | | Number of Bathrooms: | 2 | Number of Bedrooms: | 3 | | Plumbing: | 8 | Roof Covering: | COMP SHINGLE |
|
| | Type | Description | Class CD | Sub Class CD | Year Built | Area |
| | MOBHOME | MANUFACTURD HOMES | 1 | 30 | 1995 | 1456.0 |
| | MI1 | MH SET-UP COSTS | 1 | 30 | 0 | 1.0 |
| | POL1 | POLE BUILDING-GRAVEL | 1 | 30 | 0 | 2880.0 |
| | WDR | WOOD DECK W/ROOF | 1 | 30 | 0 | 50.0 |
| | CPCG | CARPORT/ GABLE ROOF | 1 | 30 | 1995 | 252.0 |
Sketch
Property Image
Land
| 1 | RES 1 | Converted: Residential | 2.0000 | 0.00 | 0.00 | 0.00 | 1.00 | $135,000 | $0 |
Roll Value History
| 2026 | N/A | N/A | N/A | N/A | N/A |
| 2025 | $292,820 | $135,000 | $0 | $427,820 | $427,820 |
| 2024 | $292,820 | $135,000 | $0 | $427,820 | $427,820 |
| 2023 | $209,160 | $135,000 | $0 | $344,160 | $344,160 |
| 2022 | $174,300 | $135,000 | $0 | $309,300 | $309,300 |
| 2021 | $178,340 | $83,000 | $0 | $261,340 | $261,340 |
| 2020 | $155,080 | $83,000 | $0 | $238,080 | $238,080 |
| 2019 | $155,080 | $83,000 | $0 | $238,080 | $238,080 |
| 2018 | $129,230 | $83,000 | $0 | $212,230 | $212,230 |
| 2017 | $80,770 | $83,000 | $0 | $163,770 | $163,770 |
| 2016 | $80,770 | $83,000 | $0 | $163,770 | $163,770 |
| 2015 | $108,450 | $54,000 | $0 | $162,450 | $162,450 |
| 2014 | $94,300 | $54,000 | $0 | $148,300 | $148,300 |
| 2013 | $94,300 | $54,000 | $0 | $148,300 | $148,300 |
| 2012 | $94,300 | $54,000 | $0 | $0 | $0 |
| 2011 | $94,300 | $54,000 | $0 | $0 | $0 |
| 2010 | $83,100 | $54,000 | $0 | $0 | $0 |
| 2009 | $133,800 | $49,000 | $0 | $0 | $0 |
| 2008 | $86,400 | $49,000 | $0 | $0 | $0 |
| 2007 | $86,400 | $49,000 | $0 | $0 | $0 |
Deed and Sales History
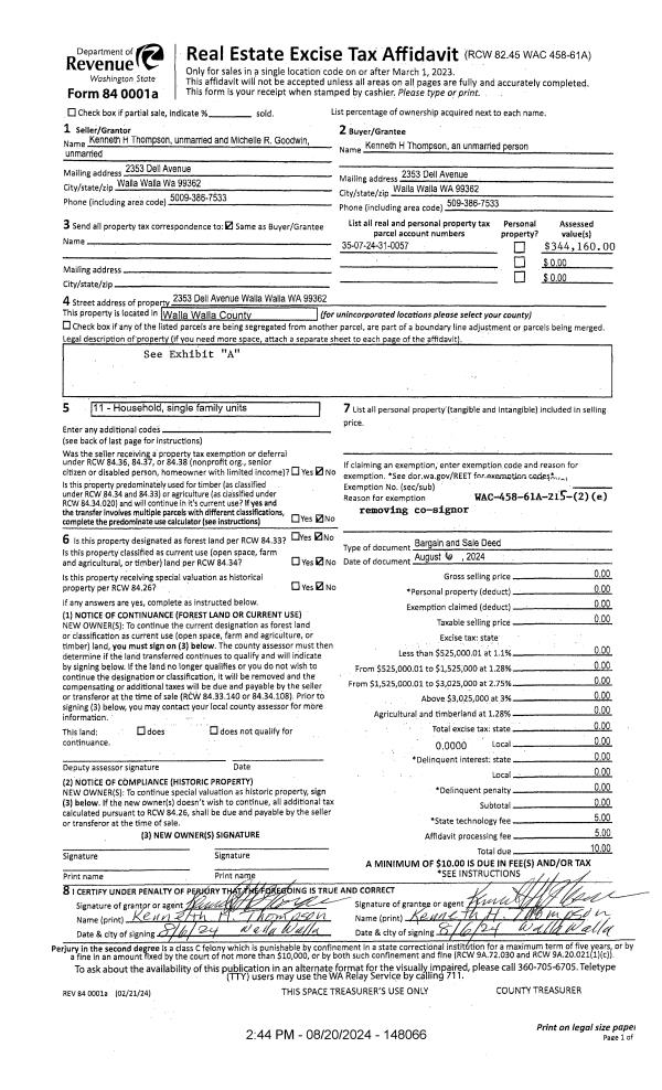
| 1 | 08/20/2024 | DEED | DEED | THOMPSON KENNETH H | THOMPSON KENNETH H | | | | 148066 | 2024-04664 |
| 2 | 06/23/2017 | SWD | STATUTORY WARRANTY DEED | FERRARO LEVI J & AMBER K | THOMPSON KENNETH H | | | $239,900.00 | 132657 | 2017-04821 |
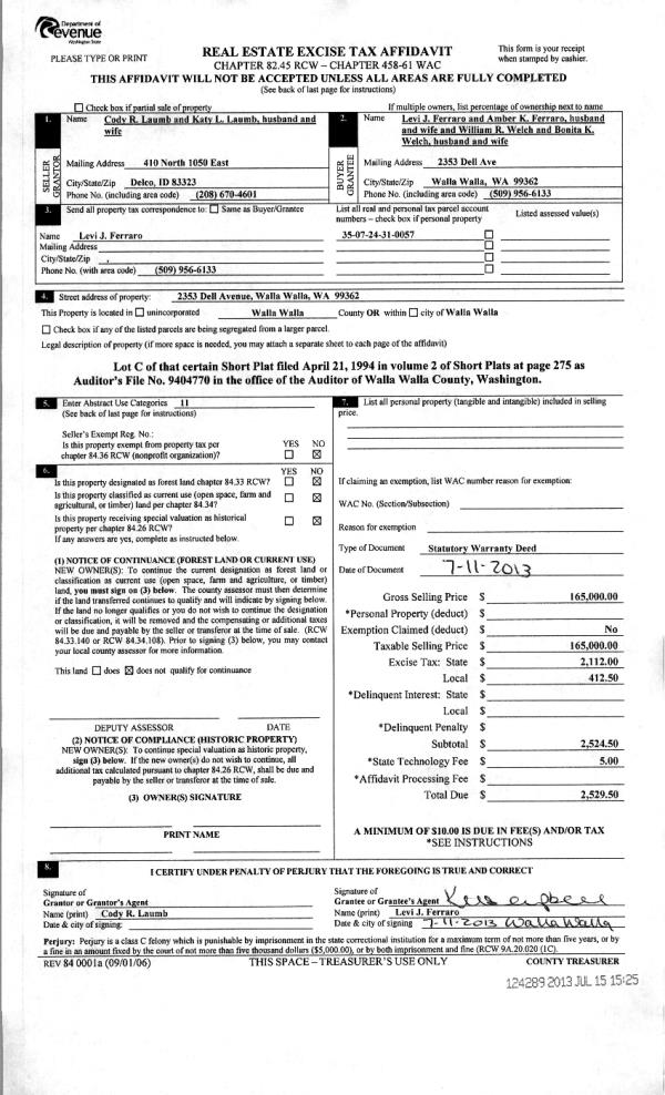
| 3 | 07/15/2013 | WARRANTY D | WARRANTY DEED | LAUMB, CODY R & KATY L | FERRARO, LEVI J & AMBER K | | | $165,000.00 | 124289 | 2013-07123 |
| 4 | 10/27/2009 | WARRANTY D | WARRANTY DEED | ANDERSON, PATTI ANN | LAUMB, CODY R & KATY L | | | $143,000.00 | 117564 | 2009-10628 |
| 5 | 12/28/2004 | WARRANTY D | WARRANTY DEED | ANDERSON, PATTI ANN | LAUMB, KATIE LYNN | | | | 106508 | 2004-14889 |
| 6 | 08/01/2003 | WARRANTY D | WARRANTY DEED | HYNEK, ROBERT & JOYCE M | ANDERSON, PATTI ANN | | | $135,000.00 | 102693 | 2003-11461 |
| 7 | 07/07/1995 | WARRANTY D | WARRANTY DEED | | | | | $22,500.00 | 84315 | 2319-506190 |
Payout Agreement
| No payout information available.. |