Property
Account |
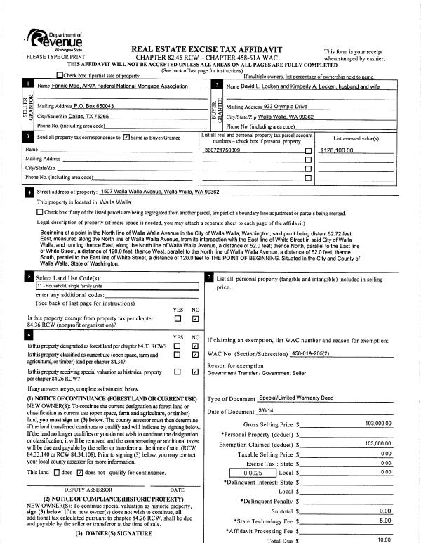
| Property ID: | 35588 | Abbreviated Legal Description: | GREENS ANNEX TAX 10 BLK 3 |
| Parcel Number: | 360721750309 | Agent Code: | |
| Type: | Real | | |
| Tax Area: | 1 - OL-140-F | Land Use Code | 11 |
| Open Space: | N | DFL | N |
| Historic Property: | N | Remodel Property: | N |
| Multi-Family Redevelopment: | N | | |
| Township: | 7 | Section: | 21 |
| Range: | 36 |
Location |
| Address: | 1507 WALLA WALLA AVE WA 99362 | Mapsco: | |
| Neighborhood: | A-SFR | Map ID: | |
| Neighborhood CD: | 513011 |
Owner |
| Name: | FREER JOSHUA & JOLENE | Owner ID: | 67492 |
| Mailing Address: | 1507 WALLA WALLA AVE WALLA WALLA, WA 99362 | % Ownership: | 100.0000000000% |
| | | Exemptions: | |
Taxes and Assessment Details
Values
| (+) Improvement Homesite Value: | + | $0 | |
| (+) Improvement Non-Homesite Value: | + | $268,290 | |
| (+) Land Homesite Value: | + | $0 | |
| (+) Land Non-Homesite Value: | + | $39,000 | |
| (+) Curr Use (HS): | + | $0 | $0 |
| (+) Curr Use (NHS): | + | $0 | $0 |
| | | -------------------------- | |
| (=) Market Value: | = | $307,290 | |
| (–) Productivity Loss: | – | $0 | |
| | | -------------------------- | |
| (=) Subtotal: | = | $307,290 | |
| (+) Senior Appraised Value: | + | $0 | |
| (+) Non-Senior Appraised Value: | + | $307,290 | |
| | | -------------------------- | |
| (=) Total Appraised Value: | = | $307,290 | |
| (–) Senior Exemption Loss: | – | $0 | |
| (–) Exemption Loss: | – | $0 | |
| | | -------------------------- | |
| (=) Taxable Value: | = | $307,290 | |
Taxing Jurisdiction
| Owner: | FREER JOSHUA & JOLENE | | |
| % Ownership: | 100.0000000000% | | |
| Total Value: | $307,290 | | |
| Tax Area: | 1 - OL-140-F |
| CERFD | CURRENT EXPENSE REFUND 010 | 0.0000000000 | $307,290 | $307,290 | $0.00 | | |
| CURREXP | CURRENT EXPENSE 010 | 1.0175366760 | $307,290 | $307,290 | $312.68 | | |
| HUMNSERV | HUMAN SERVICES 119 | 0.0250000000 | $307,290 | $307,290 | $7.68 | | |
| SLDREL | SOLDIERS RELIEF 121 | 0.0155990005 | $307,290 | $307,290 | $4.79 | | |
| EMERGSER | EMS 147 | 0.3792580840 | $307,290 | $307,290 | $116.54 | | |
| EMSRFD | EMS REFUND 147 | 0.0000000000 | $307,290 | $307,290 | $0.00 | | |
| PORTRFD | PORT REFUND 640 | 0.0000000000 | $307,290 | $307,290 | $0.00 | | |
| PORTWWGEN | PORT OF WW 640 | 0.2460186015 | $307,290 | $307,290 | $75.60 | | |
| SD140BOND | SD #140 BOND 764 | 0.8342371393 | $307,290 | $307,290 | $256.35 | | |
| SD140GEN | SD #140 GENERAL 760 | 2.0646500647 | $307,290 | $307,290 | $634.45 | | |
| ST2 | STATE SCHOOL PART 2 600 | 0.8131451643 | $307,290 | $307,290 | $249.87 | | |
| STATESCHL | STATE SCHOOL 600 | 1.5158548041 | $307,290 | $307,290 | $465.81 | | |
| STREFUND | STATE REFUND LEVY 603 | 0.0000000000 | $307,290 | $307,290 | $0.00 | | |
| CWWBOND | C OF WW BOND 643 | 0.2760494372 | $307,290 | $307,290 | $84.83 | | |
| CWWGEN | CITY OF WW 631 | 1.6100204973 | $307,290 | $307,290 | $494.74 | | |
| CWWRFD | CITY OF WALLA WALLA REFUND 631 | 0.0000000000 | $307,290 | $307,290 | $0.00 | | |
| | Total Tax Rate: | 8.7973694689 | | | | | |
| | | | | Taxes w/Current Exemptions: | $2,703.34 | | |
| | | | | Taxes w/o Exemptions: | $2,703.34 | | |
Improvement / Building
| Improvement #1: | RESIDENTIAL | State Code: | 11 | 1067.0 sqft | Value: | $268,290 |
| Exterior Wall: | SIDING | Heating/Cooling: | WARM & COOLED AIR | | Number of Bathrooms: | 1 | Number of Bedrooms: | 2 | | Plumbing: | 6 | Roof Covering: | COMP SHINGLE |
|
| | Type | Description | Class CD | Sub Class CD | Year Built | Area |
| | MA | Main Area | 1 | 30 | 1942 | 1067.0 |
| | SI1 | SITE IMPROVEMENT | 1 | 30 | 1942 | 1.5 |
| | BASE | BASEMENT | 1 | 30 | 1942 | 685.0 |
| | BPF | BASEMENT -PARTITIONED FINISH | 1 | 30 | 1942 | 685.0 |
| | ATG | Attached Garage | 1 | 30 | 1942 | 240.0 |
| | CPC | COVERED CARPORT/PATIO | 1 | 30 | 1942 | 180.0 |
| | PRC | PORCH W STEPS, ROOF,CEILED | 1 | 30 | 1942 | 28.0 |
Sketch
Property Image
Land
| 1 | RES 1 | Converted: Residential | 0.1433 | 6240.00 | 0.00 | 0.00 | 1.00 | $39,000 | $0 |
Roll Value History
| 2026 | N/A | N/A | N/A | N/A | N/A |
| 2025 | $220,700 | $62,400 | $0 | $283,100 | $283,100 |
| 2024 | $200,640 | $62,400 | $0 | $263,040 | $263,040 |
| 2023 | $268,290 | $39,000 | $0 | $307,290 | $307,290 |
| 2022 | $255,510 | $39,000 | $0 | $294,510 | $294,510 |
| 2021 | $189,270 | $39,000 | $0 | $228,270 | $228,270 |
| 2020 | $145,590 | $39,000 | $0 | $184,590 | $184,590 |
| 2019 | $145,590 | $39,000 | $0 | $184,590 | $184,590 |
| 2018 | $126,600 | $39,000 | $0 | $165,600 | $165,600 |
| 2017 | $125,040 | $25,000 | $0 | $150,040 | $150,040 |
| 2016 | $113,670 | $25,000 | $0 | $138,670 | $138,670 |
| 2015 | $108,260 | $25,000 | $0 | $133,260 | $133,260 |
| 2014 | $103,100 | $25,000 | $0 | $128,100 | $128,100 |
| 2013 | $103,100 | $25,000 | $0 | $128,100 | $128,100 |
| 2012 | $103,100 | $25,000 | $0 | $0 | $0 |
| 2011 | $103,100 | $25,000 | $0 | $0 | $0 |
| 2010 | $97,000 | $25,000 | $0 | $0 | $0 |
| 2009 | $110,600 | $25,000 | $0 | $0 | $0 |
| 2008 | $83,500 | $25,000 | $0 | $0 | $0 |
| 2007 | $83,500 | $25,000 | $0 | $0 | $0 |
Deed and Sales History
| 1 | 07/09/2020 | SWD | STATUTORY WARRANTY DEED | LOCKEN DAVID L & KIMBERLY A | FREER JOSHUA & JOLENE | | | $225,000.00 | 139445 | 2020-06558 |
| 2 | 03/07/2014 | SWD | STATUTORY WARRANTY DEED | FEDERAL NATIONAL MORTGAGE ASSOCIATION | LOCKEN DAVID L & KIMBERLY A | | | $103,000.00 | 125534 | 2014-01600 |
| 3 | 07/18/2013 | WARRANTY D | WARRANTY DEED | NORTHWEST TRUSTEE SERVICES INC | FEDERAL NATIONAL MORTGAGE~ASSO | | | $87,319.00 | 124301 | 2013-07227 |
| 4 | 05/19/2003 | QCD | QUIT CLAIM DEED | RIGGERS, LINDA B | RIGGERS, ROBERT | | | | 102113 | 2003-07322 |
| 5 | 05/19/2003 | WARRANTY D | WARRANTY DEED | GALLO, FRANK & DONNA FAE | RIGGERS, ROBERT | | | $90,000.00 | 102112 | 2003-07321 |
| 6 | 07/14/1995 | WARRANTY D | WARRANTY DEED | | | | | $72,000.00 | 84353 | 2319-506390 |
Payout Agreement
| No payout information available.. |