Property
Account |
| Property ID: | 35567 | Abbreviated Legal Description: | EASTLAWN LOT 10 BLK 5 |
| Parcel Number: | 360721530510 | Agent Code: | |
| Type: | Real | | |
| Tax Area: | 1 - OL-140-F | Land Use Code | 11 |
| Open Space: | N | DFL | N |
| Historic Property: | N | Remodel Property: | N |
| Multi-Family Redevelopment: | N | | |
| Township: | 7 | Section: | 21 |
| Range: | 36 |
Location |
| Address: | 1505 E ALDER ST WA 99362 | Mapsco: | |
| Neighborhood: | A-SFR | Map ID: | |
| Neighborhood CD: | 513011 |
Owner |
| Name: | DAVIS ROBERT | Owner ID: | 55373 |
| Mailing Address: | 1505 E ALDER ST WALLA WALLA, WA 99362 | % Ownership: | 100.0000000000% |
| | | Exemptions: | |
Taxes and Assessment Details
Property Tax Information as of
02/21/2026
Click on "Statement Details" to expand or collapse a tax statement.
* Please enter a valid date ** Please enter a valid date *
Statement Details |
| | TOTAL: | $0.00 | $0.00 | $0.00 | $0.00 | $0.00 | $0.00 |
|
| | $0.00 | $0.00 | $0.00 | $0.00 | $0.00 | $0.00 |
Values
| (+) Improvement Homesite Value: | + | $0 | |
| (+) Improvement Non-Homesite Value: | + | $257,820 | |
| (+) Land Homesite Value: | + | $0 | |
| (+) Land Non-Homesite Value: | + | $31,500 | |
| (+) Curr Use (HS): | + | $0 | $0 |
| (+) Curr Use (NHS): | + | $0 | $0 |
| | | -------------------------- | |
| (=) Market Value: | = | $289,320 | |
| (–) Productivity Loss: | – | $0 | |
| | | -------------------------- | |
| (=) Subtotal: | = | $289,320 | |
| (+) Senior Appraised Value: | + | $0 | |
| (+) Non-Senior Appraised Value: | + | $289,320 | |
| | | -------------------------- | |
| (=) Total Appraised Value: | = | $289,320 | |
| (–) Senior Exemption Loss: | – | $0 | |
| (–) Exemption Loss: | – | $0 | |
| | | -------------------------- | |
| (=) Taxable Value: | = | $289,320 | |
Taxing Jurisdiction
| Owner: | DAVIS ROBERT | | |
| % Ownership: | 100.0000000000% | | |
| Total Value: | $289,320 | | |
| Tax Area: | 1 - OL-140-F |
| CERFD | CURRENT EXPENSE REFUND 010 | 0.0000000000 | $289,320 | $289,320 | $0.00 | | |
| CURREXP | CURRENT EXPENSE 010 | 1.0175366760 | $289,320 | $289,320 | $294.39 | | |
| HUMNSERV | HUMAN SERVICES 119 | 0.0250000000 | $289,320 | $289,320 | $7.23 | | |
| SLDREL | SOLDIERS RELIEF 121 | 0.0155990005 | $289,320 | $289,320 | $4.51 | | |
| EMERGSER | EMS 147 | 0.3792580840 | $289,320 | $289,320 | $109.73 | | |
| EMSRFD | EMS REFUND 147 | 0.0000000000 | $289,320 | $289,320 | $0.00 | | |
| PORTRFD | PORT REFUND 640 | 0.0000000000 | $289,320 | $289,320 | $0.00 | | |
| PORTWWGEN | PORT OF WW 640 | 0.2460186015 | $289,320 | $289,320 | $71.18 | | |
| SD140BOND | SD #140 BOND 764 | 0.8342371393 | $289,320 | $289,320 | $241.36 | | |
| SD140GEN | SD #140 GENERAL 760 | 2.0646500647 | $289,320 | $289,320 | $597.34 | | |
| ST2 | STATE SCHOOL PART 2 600 | 0.8131451643 | $289,320 | $289,320 | $235.26 | | |
| STATESCHL | STATE SCHOOL 600 | 1.5158548041 | $289,320 | $289,320 | $438.57 | | |
| STREFUND | STATE REFUND LEVY 603 | 0.0000000000 | $289,320 | $289,320 | $0.00 | | |
| CWWBOND | C OF WW BOND 643 | 0.2760494372 | $289,320 | $289,320 | $79.87 | | |
| CWWGEN | CITY OF WW 631 | 1.6100204973 | $289,320 | $289,320 | $465.81 | | |
| CWWRFD | CITY OF WALLA WALLA REFUND 631 | 0.0000000000 | $289,320 | $289,320 | $0.00 | | |
| | Total Tax Rate: | 8.7973694689 | | | | | |
| | | | | Taxes w/Current Exemptions: | $2,545.25 | | |
| | | | | Taxes w/o Exemptions: | $2,545.25 | | |
Improvement / Building
| Improvement #1: | RESIDENTIAL | State Code: | 11 | 840.0 sqft | Value: | $257,820 |
| Exterior Wall: | VINYL | Heating/Cooling: | WARM & COOLED AIR | | Number of Bathrooms: | 2 | Number of Bedrooms: | 2 | | Plumbing: | 9 | Roof Covering: | COMP SHINGLE |
|
| | Type | Description | Class CD | Sub Class CD | Year Built | Area |
| | MA | Main Area | 1 | 30 | 1949 | 840.0 |
| | SI1 | SITE IMPROVEMENT | 1 | 30 | 1949 | 1.5 |
| | BASE | BASEMENT | 1 | 30 | 1949 | 840.0 |
| | BPF | BASEMENT -PARTITIONED FINISH | 1 | 30 | 1949 | 840.0 |
| | RPS | PORCH W/STEPS,ROOF | 1 | 30 | 1949 | 30.0 |
| | S1F | Single One Story Fireplace | 1 | 30 | 1949 | 1.0 |
Sketch
Property Image
Land
| 1 | RES 1 | Converted: Residential | 0.1157 | 5040.00 | 0.00 | 0.00 | 1.00 | $31,500 | $0 |
Roll Value History
| 2026 | N/A | N/A | N/A | N/A | N/A |
| 2025 | $257,260 | $50,400 | $0 | $307,660 | $307,660 |
| 2024 | $233,870 | $50,400 | $0 | $284,270 | $284,270 |
| 2023 | $257,820 | $31,500 | $0 | $289,320 | $289,320 |
| 2022 | $234,380 | $31,500 | $0 | $265,880 | $265,880 |
| 2021 | $173,620 | $31,500 | $0 | $205,120 | $205,120 |
| 2020 | $133,550 | $31,500 | $0 | $165,050 | $165,050 |
| 2019 | $133,550 | $31,500 | $0 | $165,050 | $165,050 |
| 2018 | $133,550 | $31,500 | $0 | $165,050 | $165,050 |
| 2017 | $144,060 | $20,200 | $0 | $164,260 | $164,260 |
| 2016 | $144,060 | $20,200 | $0 | $164,260 | $164,260 |
| 2015 | $144,060 | $20,200 | $0 | $164,260 | $164,260 |
| 2014 | $137,200 | $20,200 | $0 | $157,400 | $157,400 |
| 2013 | $137,200 | $20,200 | $0 | $157,400 | $157,400 |
| 2012 | $137,200 | $20,200 | $0 | $0 | $0 |
| 2011 | $137,200 | $20,200 | $0 | $0 | $0 |
| 2010 | $129,700 | $20,200 | $0 | $0 | $0 |
| 2009 | $146,300 | $20,200 | $0 | $0 | $0 |
| 2008 | $103,100 | $20,200 | $0 | $0 | $0 |
| 2007 | $103,100 | $20,200 | $0 | $0 | $0 |
Deed and Sales History
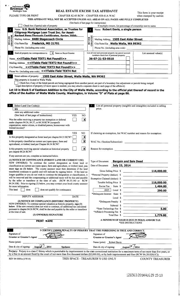
| 1 | 08/29/2014 | BARGAIN & | BARGAIN & SALE DEED | US BANK NATIONAL ASSOCIATION | DAVIS ROBERT | | | $116,000.00 | 126563 | 2014-06387 |
| 2 | 07/09/2013 | WARRANTY D | WARRANTY DEED | NORTHWEST TRUSTEE SERVICES INC | US BANK NATIONAL ASSOCIATION | | | $113,900.00 | 124260 | 2013-06854 |
| 3 | 07/22/2005 | QCD | QUIT CLAIM DEED | HARTNELL, BERNARD L | HARTNELL, KATURAH L | | | | 0 | 2005-08950 |
| 4 | 07/02/2004 | WARRANTY D | WARRANTY DEED | ROE, MATTHEW A | HARTNELL, BERNARD L | | | $126,000.00 | 105168 | 2004-07482 |
Payout Agreement
| No payout information available.. |