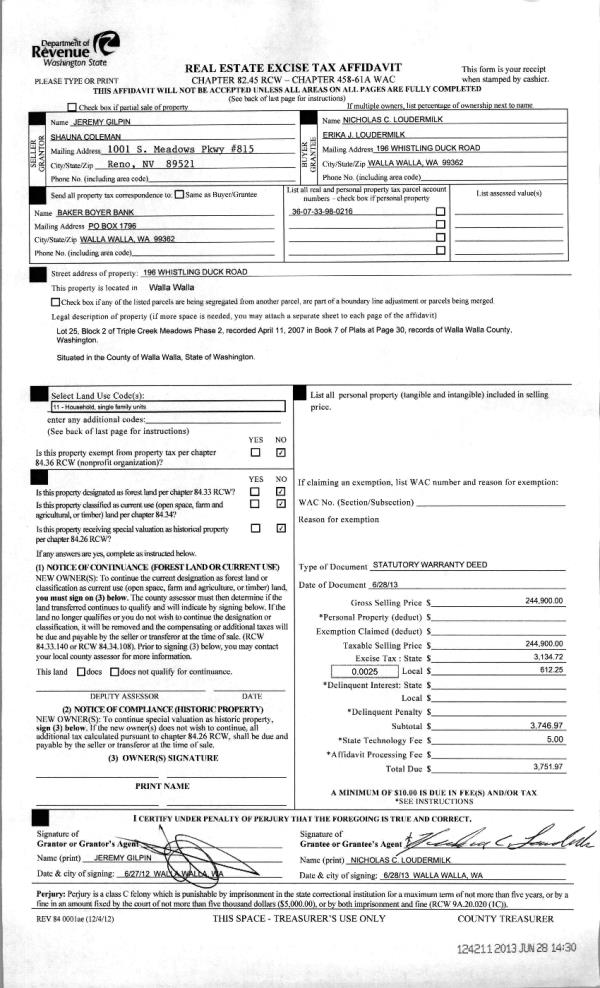
Property
Account |
| Property ID: | 35559 | Abbreviated Legal Description: | TRIPLE CREEK MEADOWS PHASE 2 LOT 25 BLOCK 2 |
| Parcel Number: | 360733980216 | Agent Code: | |
| Type: | Real | | |
| Tax Area: | 5 - OL-140 | Land Use Code | 11 |
| Open Space: | N | DFL | N |
| Historic Property: | N | Remodel Property: | N |
| Multi-Family Redevelopment: | N | | |
| Township: | 7 | Section: | 33 |
| Range: | 36 |
Location |
| Address: | 196 WHISTLING DUCK RD WA 99362 | Mapsco: | |
| Neighborhood: | A Res | Map ID: | |
| Neighborhood CD: | 613011 |
Owner |
| Name: | LOUDERMILK NICHOLAS C & ERIKA J | Owner ID: | 52882 |
| Mailing Address: | 196 WHISTLING DUCK RD WALLA WALLA, WA 99362 | % Ownership: | 100.0000000000% |
| | | Exemptions: | |
Taxes and Assessment Details
Values
| (+) Improvement Homesite Value: | + | $0 | |
| (+) Improvement Non-Homesite Value: | + | $360,700 | |
| (+) Land Homesite Value: | + | $0 | |
| (+) Land Non-Homesite Value: | + | $125,000 | |
| (+) Curr Use (HS): | + | $0 | $0 |
| (+) Curr Use (NHS): | + | $0 | $0 |
| | | -------------------------- | |
| (=) Market Value: | = | $485,700 | |
| (–) Productivity Loss: | – | $0 | |
| | | -------------------------- | |
| (=) Subtotal: | = | $485,700 | |
| (+) Senior Appraised Value: | + | $0 | |
| (+) Non-Senior Appraised Value: | + | $485,700 | |
| | | -------------------------- | |
| (=) Total Appraised Value: | = | $485,700 | |
| (–) Senior Exemption Loss: | – | $0 | |
| (–) Exemption Loss: | – | $0 | |
| | | -------------------------- | |
| (=) Taxable Value: | = | $485,700 | |
Taxing Jurisdiction
| Owner: | LOUDERMILK NICHOLAS C & ERIKA J | | |
| % Ownership: | 100.0000000000% | | |
| Total Value: | $485,700 | | |
| Tax Area: | 5 - OL-140 |
| CERFD | CURRENT EXPENSE REFUND 010 | 0.0000000000 | $485,700 | $485,700 | $0.00 | | |
| CURREXP | CURRENT EXPENSE 010 | 0.9851088983 | $485,700 | $485,700 | $478.47 | | |
| HUMNSERV | HUMAN SERVICES 119 | 0.0250000000 | $485,700 | $485,700 | $12.14 | | |
| SLDREL | SOLDIERS RELIEF 121 | 0.0155990000 | $485,700 | $485,700 | $7.58 | | |
| EMERGSER | EMS 147 | 0.3676811629 | $485,700 | $485,700 | $178.58 | | |
| EMSRFD | EMS REFUND 147 | 0.0000000000 | $485,700 | $485,700 | $0.00 | | |
| PORTRFD | PORT REFUND 640 | 0.0000000000 | $485,700 | $485,700 | $0.00 | | |
| PORTWWGEN | PORT OF WW 640 | 0.2344301070 | $485,700 | $485,700 | $113.86 | | |
| SD140BOND | SD #140 BOND 764 | 0.8032434458 | $485,700 | $485,700 | $390.14 | | |
| SD140CAP | SD #140 CAP 762 | 0.3840034221 | $485,700 | $485,700 | $186.51 | | |
| SD140GEN | SD #140 GENERAL 760 | 2.4999999996 | $485,700 | $485,700 | $1,214.25 | | |
| ST2 | STATE SCHOOL PART 2 600 | 0.8853714103 | $485,700 | $485,700 | $430.02 | | |
| STATESCHL | STATE SCHOOL 600 | 1.6424571473 | $485,700 | $485,700 | $797.74 | | |
| STREFUND | STATE REFUND LEVY 603 | 0.0000000000 | $485,700 | $485,700 | $0.00 | | |
| CWWBOND | C OF WW BOND 643 | 0.2642134255 | $485,700 | $485,700 | $128.33 | | |
| CWWGEN | CITY OF WW 631 | 1.6110494978 | $485,700 | $485,700 | $782.49 | | |
| CWWRFD | CITY OF WALLA WALLA REFUND 631 | 0.0000000000 | $485,700 | $485,700 | $0.00 | | |
| | Total Tax Rate: | 9.7181575166 | | | | | |
| | | | | Taxes w/Current Exemptions: | $4,720.11 | | |
| | | | | Taxes w/o Exemptions: | $4,720.11 | | |
Improvement / Building
| Improvement #1: | RESIDENTIAL | State Code: | 11 | 1616.0 sqft | Value: | $360,700 |
| Exterior Wall: | SIDING | Heating/Cooling: | WARM & COOLED AIR | | Number of Bathrooms: | 2 | Number of Bedrooms: | 3 | | Plumbing: | 10 | Roof Covering: | COMP SHINGLE |
|
| | Type | Description | Class CD | Sub Class CD | Year Built | Area |
| | MA | Main Area | 1 | 35 | 2011 | 1616.0 |
| | GFP | GAS FIREPLACE | 1 | 35 | 2011 | 1.0 |
| | RPC | OPEN PORCH W/ROOF , CEILED | 1 | 35 | 2011 | 87.0 |
| | SI1 | SITE IMPROVEMENT | 1 | 35 | 2011 | 3.5 |
| | BASE | BASEMENT | 1 | 35 | 2011 | 616.0 |
| | ATG | Attached Garage | 1 | 35 | 2011 | 736.0 |
| | WOD | Wood Deck | 1 | 35 | 2011 | 165.0 |
Sketch
Property Image
Land
| 1 | RES 1 | Converted: Residential | 0.2204 | 9600.00 | 0.00 | 0.00 | 1.00 | $125,000 | $0 |
Roll Value History
| 2026 | N/A | N/A | N/A | N/A | N/A |
| 2025 | $360,700 | $125,000 | $0 | $485,700 | $485,700 |
| 2024 | $317,370 | $100,000 | $0 | $417,370 | $417,370 |
| 2023 | $317,370 | $100,000 | $0 | $417,370 | $417,370 |
| 2022 | $288,520 | $85,000 | $0 | $373,520 | $373,520 |
| 2021 | $230,820 | $85,000 | $0 | $315,820 | $315,820 |
| 2020 | $200,710 | $85,000 | $0 | $285,710 | $285,710 |
| 2019 | $200,710 | $85,000 | $0 | $285,710 | $285,710 |
| 2018 | $214,940 | $50,000 | $0 | $264,940 | $264,940 |
| 2017 | $214,940 | $50,000 | $0 | $264,940 | $264,940 |
| 2016 | $186,900 | $50,000 | $0 | $236,900 | $236,900 |
| 2015 | $186,900 | $50,000 | $0 | $236,900 | $236,900 |
| 2014 | $178,000 | $50,000 | $0 | $228,000 | $228,000 |
| 2013 | $178,000 | $50,000 | $0 | $228,000 | $228,000 |
| 2012 | $0 | $55,000 | $0 | $0 | $0 |
| 2011 | $0 | $55,000 | $0 | $0 | $0 |
| 2010 | $0 | $55,000 | $0 | $0 | $0 |
| 2009 | $0 | $65,000 | $0 | $0 | $0 |
| 2008 | $0 | $65,000 | $0 | $0 | $0 |
| 2007 | $178,000 | $50,000 | $0 | $0 | $0 |
Deed and Sales History
| 1 | 06/28/2013 | WARRANTY D | WARRANTY DEED | GILPIN, JEREMY | LOUDERMILK, NICHOLAS C & ERIKA | | | $244,900.00 | 124211 | 2013-06527 |
| 2 | 10/04/2012 | WARRANTY D | WARRANTY DEED | KYKO CONSTRUCTION LLC | GILPIN, JEREMY | | | $232,000.00 | 122758 | 2012-08771 |
| 3 | 01/24/2011 | WARRANTY D | WARRANTY DEED | MAJERUS, DOUGLAS | KYKO CONSTRUCTION LLC | | | $101,500.00 | 119634 | 2011-00728 |
|   | |
Payout Agreement
| No payout information available.. |