Property
Account |
| Property ID: | 35546 | Abbreviated Legal Description: | HAYNER ADDN LOT 3 |
| Parcel Number: | 360731680003 | Agent Code: | |
| Type: | Real | | |
| Tax Area: | 1 - OL-140-F | Land Use Code | 11 |
| Open Space: | N | DFL | N |
| Historic Property: | N | Remodel Property: | N |
| Multi-Family Redevelopment: | N | | |
| Township: | 7 | Section: | 31 |
| Range: | 36 |
Location |
| Address: | 2470 FAIRFIELD DR WA 99362 | Mapsco: | |
| Neighborhood: | VG SFR Rural/City Inf | Map ID: | |
| Neighborhood CD: | 115012 |
Owner |
| Name: | GOHRICK LIVING TRUST | Owner ID: | 59772 |
| Mailing Address: | 2470 FAIRFIELD DR WALLA WALLA, WA 99362 | % Ownership: | 100.0000000000% |
| | | Exemptions: | |
Taxes and Assessment Details
Property Tax Information as of
02/21/2026
Click on "Statement Details" to expand or collapse a tax statement.
* Please enter a valid date ** Please enter a valid date *
Statement Details |
| | TOTAL: | $0.00 | $0.00 | $0.00 | $0.00 | $0.00 | $0.00 |
|
| | $0.00 | $0.00 | $0.00 | $0.00 | $0.00 | $0.00 |
Values
| (+) Improvement Homesite Value: | + | $0 | |
| (+) Improvement Non-Homesite Value: | + | $353,430 | |
| (+) Land Homesite Value: | + | $0 | |
| (+) Land Non-Homesite Value: | + | $134,810 | |
| (+) Curr Use (HS): | + | $0 | $0 |
| (+) Curr Use (NHS): | + | $0 | $0 |
| | | -------------------------- | |
| (=) Market Value: | = | $488,240 | |
| (–) Productivity Loss: | – | $0 | |
| | | -------------------------- | |
| (=) Subtotal: | = | $488,240 | |
| (+) Senior Appraised Value: | + | $0 | |
| (+) Non-Senior Appraised Value: | + | $488,240 | |
| | | -------------------------- | |
| (=) Total Appraised Value: | = | $488,240 | |
| (–) Senior Exemption Loss: | – | $0 | |
| (–) Exemption Loss: | – | $0 | |
| | | -------------------------- | |
| (=) Taxable Value: | = | $488,240 | |
Taxing Jurisdiction
| Owner: | GOHRICK LIVING TRUST | | |
| % Ownership: | 100.0000000000% | | |
| Total Value: | $488,240 | | |
| Tax Area: | 1 - OL-140-F |
| CERFD | CURRENT EXPENSE REFUND 010 | 0.0000000000 | $488,240 | $488,240 | $0.00 | | |
| CURREXP | CURRENT EXPENSE 010 | 1.0175366760 | $488,240 | $488,240 | $496.80 | | |
| HUMNSERV | HUMAN SERVICES 119 | 0.0250000000 | $488,240 | $488,240 | $12.21 | | |
| SLDREL | SOLDIERS RELIEF 121 | 0.0155990005 | $488,240 | $488,240 | $7.62 | | |
| EMERGSER | EMS 147 | 0.3792580840 | $488,240 | $488,240 | $185.17 | | |
| EMSRFD | EMS REFUND 147 | 0.0000000000 | $488,240 | $488,240 | $0.00 | | |
| PORTRFD | PORT REFUND 640 | 0.0000000000 | $488,240 | $488,240 | $0.00 | | |
| PORTWWGEN | PORT OF WW 640 | 0.2460186015 | $488,240 | $488,240 | $120.12 | | |
| SD140BOND | SD #140 BOND 764 | 0.8342371393 | $488,240 | $488,240 | $407.31 | | |
| SD140GEN | SD #140 GENERAL 760 | 2.0646500647 | $488,240 | $488,240 | $1,008.04 | | |
| ST2 | STATE SCHOOL PART 2 600 | 0.8131451643 | $488,240 | $488,240 | $397.01 | | |
| STATESCHL | STATE SCHOOL 600 | 1.5158548041 | $488,240 | $488,240 | $740.10 | | |
| STREFUND | STATE REFUND LEVY 603 | 0.0000000000 | $488,240 | $488,240 | $0.00 | | |
| CWWBOND | C OF WW BOND 643 | 0.2760494372 | $488,240 | $488,240 | $134.78 | | |
| CWWGEN | CITY OF WW 631 | 1.6100204973 | $488,240 | $488,240 | $786.08 | | |
| CWWRFD | CITY OF WALLA WALLA REFUND 631 | 0.0000000000 | $488,240 | $488,240 | $0.00 | | |
| | Total Tax Rate: | 8.7973694689 | | | | | |
| | | | | Taxes w/Current Exemptions: | $4,295.24 | | |
| | | | | Taxes w/o Exemptions: | $4,295.24 | | |
Improvement / Building
| Improvement #1: | RESIDENTIAL | State Code: | 11 | 2232.0 sqft | Value: | $353,430 |
| Exterior Wall: | SIDING | Heating/Cooling: | HEAT PUMP | | Number of Bathrooms: | 2 | Number of Bedrooms: | 3 | | Plumbing: | 11 | Roof Covering: | COMP SHINGLE |
|
| | Type | Description | Class CD | Sub Class CD | Year Built | Area |
| | MA | Main Area | 1 | 45 | 1992 | 2232.0 |
| | SI1 | SITE IMPROVEMENT | 1 | 45 | 1992 | 3.5 |
| | ATG | Attached Garage | 1 | 45 | 1992 | 864.0 |
| | PRC | PORCH W STEPS, ROOF,CEILED | 1 | 45 | 1992 | 312.0 |
| | PRC | PORCH W STEPS, ROOF,CEILED | 1 | 45 | 1992 | 52.0 |
| | GFP | GAS FIREPLACE | 1 | 45 | 1992 | 1.0 |
Sketch
Property Image
Land
| 1 | RES 1 | Converted: Residential | 0.4592 | 20002.00 | 0.00 | 0.00 | 1.00 | $134,810 | $0 |
Roll Value History
| 2026 | N/A | N/A | N/A | N/A | N/A |
| 2025 | $406,450 | $190,820 | $0 | $597,270 | $597,270 |
| 2024 | $353,430 | $134,810 | $0 | $488,240 | $488,240 |
| 2023 | $353,430 | $134,810 | $0 | $488,240 | $488,240 |
| 2022 | $353,430 | $134,810 | $0 | $488,240 | $488,240 |
| 2021 | $336,600 | $134,810 | $0 | $471,410 | $471,410 |
| 2020 | $269,280 | $134,810 | $0 | $404,090 | $404,090 |
| 2019 | $314,090 | $90,000 | $0 | $404,090 | $404,090 |
| 2018 | $314,090 | $90,000 | $0 | $404,090 | $404,090 |
| 2017 | $241,610 | $90,000 | $0 | $331,610 | $331,610 |
| 2016 | $230,100 | $90,000 | $0 | $320,100 | $320,100 |
| 2015 | $230,100 | $90,000 | $0 | $320,100 | $320,100 |
| 2014 | $230,100 | $90,000 | $0 | $320,100 | $320,100 |
| 2013 | $230,100 | $90,000 | $0 | $320,100 | $320,100 |
| 2012 | $230,100 | $90,000 | $0 | $0 | $0 |
| 2011 | $230,100 | $90,000 | $0 | $0 | $0 |
| 2010 | $230,100 | $90,000 | $0 | $0 | $0 |
| 2009 | $246,900 | $90,000 | $0 | $0 | $0 |
| 2008 | $229,100 | $45,000 | $0 | $0 | $0 |
| 2007 | $229,100 | $45,000 | $0 | $0 | $0 |
Deed and Sales History
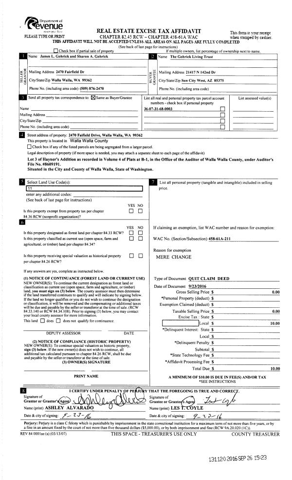
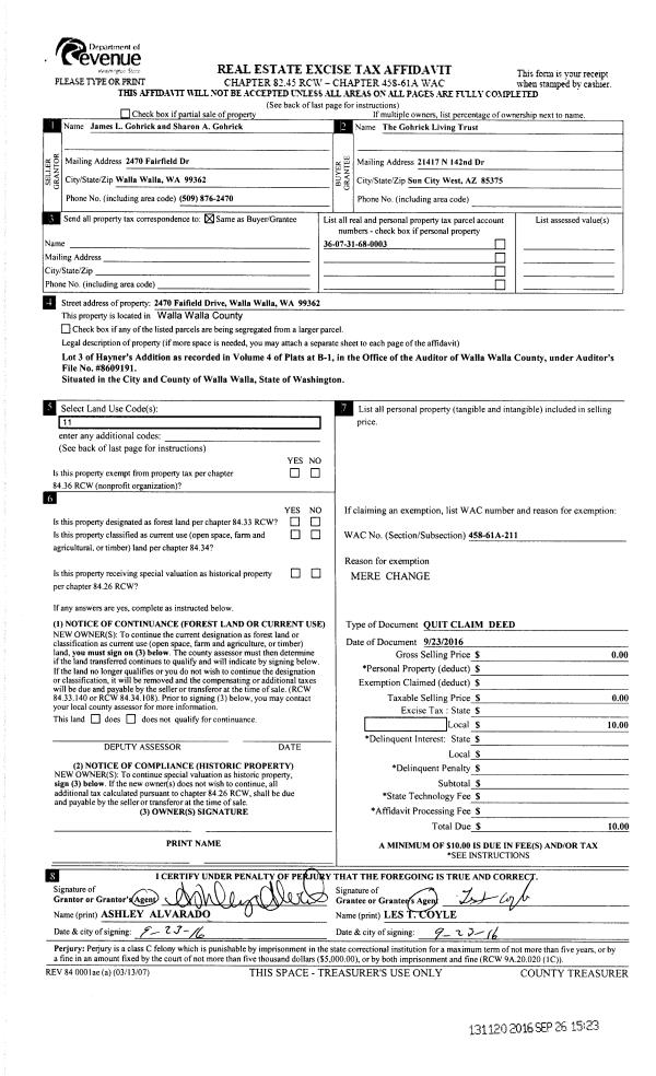
| 1 | 09/23/2016 | QCD | QUIT CLAIM DEED | GOHRICK JAMES L & SHARON A | GOHRICK LIVING TRUST | | | $0.00 | 131120 | 2016-07889 |
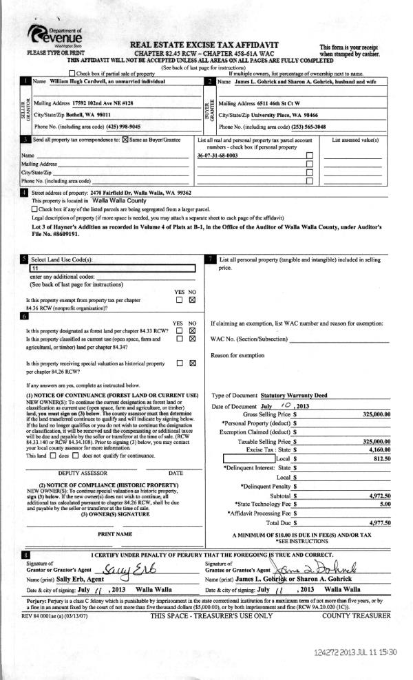
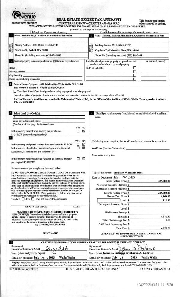
| 2 | 07/11/2013 | WARRANTY D | WARRANTY DEED | CARDWELL, WILLIAM HUGH | GOHRICK, JAMES L & SHARON A | | | $325,000.00 | 124272 | 2013-06952 |
| 3 | 11/01/2010 | WARRANTY D | WARRANTY DEED | CARDWELL, MARY KAY ESTATE OF | CARDWELL, WILLIAM HUGH | | | | 119265 | 2010-08880 |
| 4 | 08/01/1995 | WARRANTY D | WARRANTY DEED | | | | | $260,000.00 | 84459 | 2329-507114 |
Payout Agreement
| No payout information available.. |