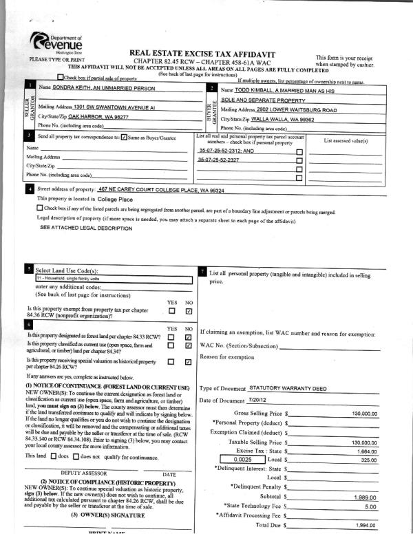
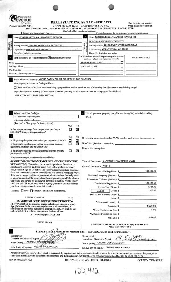
Property
Account |
| Property ID: | 35513 | Abbreviated Legal Description: | BLALOCK ORCHARDS TAX 9 LOT 1 BLK 23 PLUS STRIP TO E. |
| Parcel Number: | 350725522312 | Agent Code: | |
| Type: | Real | | |
| Tax Area: | 77 - CP-250-F | Land Use Code | 55 |
| Open Space: | N | DFL | N |
| Historic Property: | N | Remodel Property: | N |
| Multi-Family Redevelopment: | N | | |
| Township: | 7 | Section: | 25 |
| Range: | 35 |
Location |
| Address: | 467 NE CAREY CT WA 99324 | Mapsco: | |
| Neighborhood: | CP CITY | Map ID: | |
| Neighborhood CD: | 1342 |
Owner |
| Name: | KIMBALL TODD & SANDRA | Owner ID: | 51703 |
| Mailing Address: | 2902 LOWER WAITSBURG RD WALLA WALLA, WA 99362 | % Ownership: | 100.0000000000% |
| | | Exemptions: | |
Taxes and Assessment Details
Property Tax Information as of
02/21/2026
Click on "Statement Details" to expand or collapse a tax statement.
* Please enter a valid date ** Please enter a valid date *
Statement Details |
| | TOTAL: | $0.00 | $0.00 | $0.00 | $0.00 | $0.00 | $0.00 |
|
| | $0.00 | $0.00 | $0.00 | $0.00 | $0.00 | $0.00 |
Values
| (+) Improvement Homesite Value: | + | $0 | |
| (+) Improvement Non-Homesite Value: | + | $68,800 | |
| (+) Land Homesite Value: | + | $0 | |
| (+) Land Non-Homesite Value: | + | $59,400 | |
| (+) Curr Use (HS): | + | $0 | $0 |
| (+) Curr Use (NHS): | + | $0 | $0 |
| | | -------------------------- | |
| (=) Market Value: | = | $128,200 | |
| (–) Productivity Loss: | – | $0 | |
| | | -------------------------- | |
| (=) Subtotal: | = | $128,200 | |
| (+) Senior Appraised Value: | + | $0 | |
| (+) Non-Senior Appraised Value: | + | $128,200 | |
| | | -------------------------- | |
| (=) Total Appraised Value: | = | $128,200 | |
| (–) Senior Exemption Loss: | – | $0 | |
| (–) Exemption Loss: | – | $0 | |
| | | -------------------------- | |
| (=) Taxable Value: | = | $128,200 | |
Taxing Jurisdiction
| Owner: | KIMBALL TODD & SANDRA | | |
| % Ownership: | 100.0000000000% | | |
| Total Value: | $128,200 | | |
| Tax Area: | 77 - CP-250-F |
| CERFD | CURRENT EXPENSE REFUND 010 | 0.0000000000 | $128,200 | $128,200 | $0.00 | | |
| CURREXP | CURRENT EXPENSE 010 | 1.0175366760 | $128,200 | $128,200 | $130.45 | | |
| HUMNSERV | HUMAN SERVICES 119 | 0.0250000000 | $128,200 | $128,200 | $3.21 | | |
| SLDREL | SOLDIERS RELIEF 121 | 0.0155990005 | $128,200 | $128,200 | $2.00 | | |
| COLLPLBOND | C OF CP BOND 644 | 0.4374241808 | $128,200 | $128,200 | $56.08 | | |
| COLLPLGEN | CITY OF CP 632 | 1.4453819216 | $128,200 | $128,200 | $185.30 | | |
| EMERGSER | EMS 147 | 0.3792580840 | $128,200 | $128,200 | $48.62 | | |
| EMSRFD | EMS REFUND 147 | 0.0000000000 | $128,200 | $128,200 | $0.00 | | |
| RURALLIB | RURAL LIBRARY 623 | 0.3710609029 | $128,200 | $128,200 | $47.57 | | |
| PORTRFD | PORT REFUND 640 | 0.0000000000 | $128,200 | $128,200 | $0.00 | | |
| PORTWWGEN | PORT OF WW 640 | 0.2460186015 | $128,200 | $128,200 | $31.54 | | |
| SD250BOND | SD #250 BOND 773 | 1.4560608159 | $128,200 | $128,200 | $186.67 | | |
| SD250GEN | SD #250 GENERAL 770 | 2.3880724087 | $128,200 | $128,200 | $306.15 | | |
| ST2 | STATE SCHOOL PART 2 600 | 0.8131451643 | $128,200 | $128,200 | $104.25 | | |
| STATESCHL | STATE SCHOOL 600 | 1.5158548041 | $128,200 | $128,200 | $194.33 | | |
| STREFUND | STATE REFUND LEVY 603 | 0.0000000000 | $128,200 | $128,200 | $0.00 | | |
| | Total Tax Rate: | 10.1104125603 | | | | | |
| | | | | Taxes w/Current Exemptions: | $1,296.17 | | |
| | | | | Taxes w/o Exemptions: | $1,296.17 | | |
Improvement / Building
| Improvement #1: | COMMERCIAL | State Code: | 55 | 2239.0 sqft | Value: | $68,800 |
| | Type | Description | Class CD | Sub Class CD | Year Built | Area |
| | MA | Main Area | D | * | 1954 | 2239.0 |
| | CPC | COVERED CARPORT/PATIO | D | | 1954 | 1.0 |
| | SI1 | SITE IMPROVEMENT | D | | 1954 | 1.0 |
| | DTG | Detached Garage | D | * | 1954 | 320.0 |
| | RPO | OPEN PORCH W/ROOF | D | * | 1954 | 126.0 |
Sketch
Property Image
Land
| 1 | COM 1 | Converted: Commercial | 0.1880 | 8189.00 | 0.00 | 0.00 | 1.00 | $59,400 | $0 |
Roll Value History
| 2026 | N/A | N/A | N/A | N/A | N/A |
| 2025 | $68,800 | $90,080 | $0 | $158,880 | $158,880 |
| 2024 | $68,800 | $59,400 | $0 | $128,200 | $128,200 |
| 2023 | $68,800 | $59,400 | $0 | $128,200 | $128,200 |
| 2022 | $68,800 | $59,400 | $0 | $128,200 | $128,200 |
| 2021 | $68,800 | $59,400 | $0 | $128,200 | $128,200 |
| 2020 | $68,800 | $59,400 | $0 | $128,200 | $128,200 |
| 2019 | $87,300 | $40,900 | $0 | $128,200 | $128,200 |
| 2018 | $87,300 | $40,900 | $0 | $128,200 | $128,200 |
| 2017 | $87,300 | $40,900 | $0 | $128,200 | $128,200 |
| 2016 | $87,300 | $40,900 | $0 | $128,200 | $128,200 |
| 2015 | $87,300 | $40,900 | $0 | $128,200 | $128,200 |
| 2014 | $87,300 | $40,900 | $0 | $128,200 | $128,200 |
| 2013 | $87,300 | $40,900 | $0 | $128,200 | $128,200 |
| 2012 | $87,000 | $40,900 | $0 | $0 | $0 |
| 2011 | $87,000 | $40,900 | $0 | $0 | $0 |
| 2010 | $102,000 | $40,900 | $0 | $0 | $0 |
| 2009 | $102,000 | $40,900 | $0 | $0 | $0 |
| 2008 | $98,700 | $23,100 | $0 | $0 | $0 |
| 2007 | $98,700 | $23,100 | $0 | $0 | $0 |
Deed and Sales History
| 1 | 08/17/2012 | WARRANTY D | WARRANTY DEED | KIMBALL TODD | KIMBALL TODD & SANDRA | | | | 122510 | 2012-07095 |
| 2 | 08/02/2012 | WARRANTY D | WARRANTY DEED | KEITH SONDRA D | KIMBALL TODD | | | | 122442 | 2012-06585 |
| 3 | 08/07/1990 | WARRANTY D | WARRANTY DEED | | | | | | 0 | 1849-005431 |
Payout Agreement
| No payout information available.. |