Property
Account |
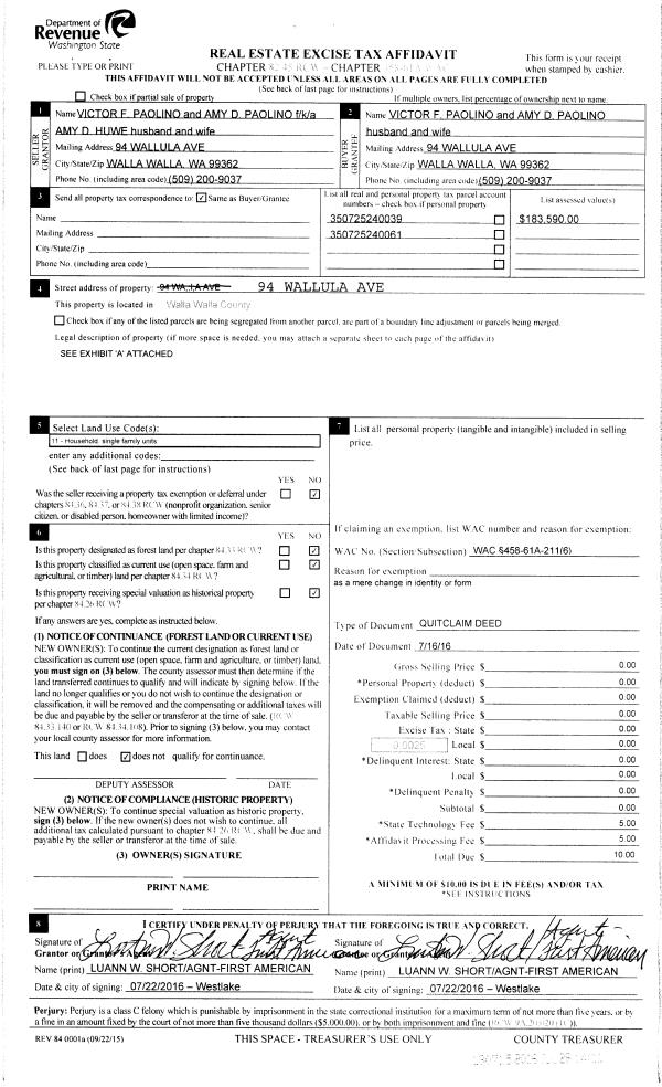
| Property ID: | 3551 | Abbreviated Legal Description: | 25-7-35 TAX 100 |
| Parcel Number: | 350725240039 | Agent Code: | |
| Type: | Real | | |
| Tax Area: | 313 - 250-F-4 | Land Use Code | 11 |
| Open Space: | N | DFL | N |
| Historic Property: | N | Remodel Property: | N |
| Multi-Family Redevelopment: | N | | |
| Township: | 7 | Section: | 25 |
| Range: | 35 |
Location |
| Address: | 94 WALLULA AVE WA 99324 | Mapsco: | |
| Neighborhood: | A SFR Rural/City Infl | Map ID: | |
| Neighborhood CD: | 313012 |
Owner |
| Name: | STEPHENS MATTHEW & ROCHELLE ANN | Owner ID: | 68264 |
| Mailing Address: | 94 WALLULA AVE WALLA WALLA, WA 99362 | % Ownership: | 100.0000000000% |
| | | Exemptions: | |
Taxes and Assessment Details
Property Tax Information as of
02/21/2026
Click on "Statement Details" to expand or collapse a tax statement.
* Please enter a valid date ** Please enter a valid date *
Statement Details |
| | TOTAL: | $0.00 | $0.00 | $0.00 | $0.00 | $0.00 | $0.00 |
|
| | $0.00 | $0.00 | $0.00 | $0.00 | $0.00 | $0.00 |
Values
| (+) Improvement Homesite Value: | + | $0 | |
| (+) Improvement Non-Homesite Value: | + | $293,620 | |
| (+) Land Homesite Value: | + | $0 | |
| (+) Land Non-Homesite Value: | + | $69,200 | |
| (+) Curr Use (HS): | + | $0 | $0 |
| (+) Curr Use (NHS): | + | $0 | $0 |
| | | -------------------------- | |
| (=) Market Value: | = | $362,820 | |
| (–) Productivity Loss: | – | $0 | |
| | | -------------------------- | |
| (=) Subtotal: | = | $362,820 | |
| (+) Senior Appraised Value: | + | $0 | |
| (+) Non-Senior Appraised Value: | + | $362,820 | |
| | | -------------------------- | |
| (=) Total Appraised Value: | = | $362,820 | |
| (–) Senior Exemption Loss: | – | $0 | |
| (–) Exemption Loss: | – | $0 | |
| | | -------------------------- | |
| (=) Taxable Value: | = | $362,820 | |
Taxing Jurisdiction
| Owner: | STEPHENS MATTHEW & ROCHELLE ANN | | |
| % Ownership: | 100.0000000000% | | |
| Total Value: | $362,820 | | |
| Tax Area: | 313 - 250-F-4 |
| CERFD | CURRENT EXPENSE REFUND 010 | 0.0000000000 | $362,820 | $362,820 | $0.00 | | |
| CURREXP | CURRENT EXPENSE 010 | 0.9851088983 | $362,820 | $362,820 | $357.42 | | |
| HUMNSERV | HUMAN SERVICES 119 | 0.0250000000 | $362,820 | $362,820 | $9.07 | | |
| SLDREL | SOLDIERS RELIEF 121 | 0.0155990000 | $362,820 | $362,820 | $5.66 | | |
| EMERGSER | EMS 147 | 0.3676811629 | $362,820 | $362,820 | $133.40 | | |
| EMSRFD | EMS REFUND 147 | 0.0000000000 | $362,820 | $362,820 | $0.00 | | |
| FD4EXP | FD #4 EXPENSE 686 | 1.2367913128 | $362,820 | $362,820 | $448.73 | | |
| RLBRFD | RURAL LIBRARY REFUND 623 | 0.0000000000 | $362,820 | $362,820 | $0.00 | | |
| RURALLIB | RURAL LIBRARY 623 | 0.3601547782 | $362,820 | $362,820 | $130.67 | | |
| PORTRFD | PORT REFUND 640 | 0.0000000000 | $362,820 | $362,820 | $0.00 | | |
| PORTWWGEN | PORT OF WW 640 | 0.2344301070 | $362,820 | $362,820 | $85.06 | | |
| SD250BOND | SD #250 BOND 773 | 1.3740031235 | $362,820 | $362,820 | $498.52 | | |
| SD250GEN | SD #250 GENERAL 770 | 2.4999999988 | $362,820 | $362,820 | $907.05 | | |
| ST2 | STATE SCHOOL PART 2 600 | 0.8853714103 | $362,820 | $362,820 | $321.23 | | |
| STATESCHL | STATE SCHOOL 600 | 1.6424571473 | $362,820 | $362,820 | $595.92 | | |
| STREFUND | STATE REFUND LEVY 603 | 0.0000000000 | $362,820 | $362,820 | $0.00 | | |
| COROAD | COUNTY ROAD 115 | 1.6137667997 | $362,820 | $362,820 | $585.51 | | |
| CRPRD | COUNTY ROAD REFUND 115 | 0.0000000000 | $362,820 | $362,820 | $0.00 | | |
| | Total Tax Rate: | 11.2403637388 | | | | | |
| | | | | Taxes w/Current Exemptions: | $4,078.24 | | |
| | | | | Taxes w/o Exemptions: | $4,078.24 | | |
Improvement / Building
| Improvement #1: | RESIDENTIAL | State Code: | 11 | 1542.0 sqft | Value: | $293,620 |
| Exterior Wall: | METAL/STEEL | Heating/Cooling: | WARM & COOLED AIR | | Number of Bathrooms: | 1 | Number of Bedrooms: | 2 | | Plumbing: | 7 | Roof Covering: | COMP SHINGLE |
|
| | Type | Description | Class CD | Sub Class CD | Year Built | Area |
| | MA | Main Area | 1 | 30 | 1941 | 1542.0 |
| | SI1 | SITE IMPROVEMENT | 1 | 30 | 0 | 3.5 |
| | BASE | BASEMENT | 1 | 30 | 1941 | 1542.0 |
| | BRF | BASEMENT - REC FINISH | 1 | 30 | 1941 | 300.0 |
| | DTG | Detached Garage | 1 | 30 | 1941 | 520.0 |
| | OPS | OPEN PORCH W/STEPS | 1 | 30 | 1941 | 36.0 |
| | WOD | Wood Deck | 1 | 30 | 1941 | 342.0 |
| | S1F | Single One Story Fireplace | 1 | 30 | 1941 | 1.0 |
Sketch
Property Image
Land
| 1 | RES 1 | Converted: Residential | 0.2600 | 11325.60 | 0.00 | 0.00 | 1.00 | $69,200 | $0 |
Roll Value History
| 2026 | N/A | N/A | N/A | N/A | N/A |
| 2025 | $293,620 | $69,200 | $0 | $362,820 | $362,820 |
| 2024 | $293,620 | $69,200 | $0 | $362,820 | $362,820 |
| 2023 | $293,620 | $69,200 | $0 | $362,820 | $362,820 |
| 2022 | $293,620 | $69,200 | $0 | $362,820 | $362,820 |
| 2021 | $236,180 | $48,300 | $0 | $284,480 | $284,480 |
| 2020 | $196,810 | $48,300 | $0 | $245,110 | $245,110 |
| 2019 | $196,810 | $48,300 | $0 | $245,110 | $245,110 |
| 2018 | $178,920 | $48,300 | $0 | $227,220 | $227,220 |
| 2017 | $155,580 | $48,300 | $0 | $203,880 | $203,880 |
| 2016 | $135,290 | $48,300 | $0 | $183,590 | $183,590 |
| 2015 | $127,700 | $48,300 | $0 | $176,000 | $176,000 |
| 2014 | $127,700 | $48,300 | $0 | $176,000 | $176,000 |
| 2013 | $127,700 | $48,300 | $0 | $176,000 | $176,000 |
| 2012 | $127,700 | $48,300 | $0 | $0 | $0 |
| 2011 | $127,700 | $48,300 | $0 | $0 | $0 |
| 2010 | $164,900 | $25,900 | $0 | $0 | $0 |
| 2009 | $186,100 | $25,900 | $0 | $0 | $0 |
| 2008 | $98,800 | $25,900 | $0 | $0 | $0 |
| 2007 | $98,800 | $25,900 | $0 | $0 | $0 |
Deed and Sales History
| 1 | 10/28/2020 | SWD | STATUTORY WARRANTY DEED | PAOLINO VICTOR F & AMY D | STEPHENS MATTHEW & ROCHELLE ANN | | 2-PARCELS | $333,000.00 | 140210 | 2020-11284 |
|   | |
| 2 | 07/16/2016 | QCD | QUIT CLAIM DEED | PAOLINO VICTOR F | PAOLINO VICTOR F & AMY D | | | $0.00 | 130715 | 2016-06534 |
| 3 | 12/19/2014 | SWD | STATUTORY WARRANTY DEED | FERRARO JOE JR | PAOLINO VICTOR F | | 2- PARCELS | $182,000.00 | 127150 | 2014-09259 |
|   | |
| 4 | 09/13/1972 | WARRANTY D | WARRANTY DEED | | | | | $23,500.00 | 0 | 3475-247138 |
Payout Agreement
| No payout information available.. |