Property
Account |
| Property ID: | 35490 | Abbreviated Legal Description: | AUTUMN MEADOWS LOT 27 BLK 3 |
| Parcel Number: | 350736970327 | Agent Code: | |
| Type: | Real | | |
| Tax Area: | 77 - CP-250-F | Land Use Code | 11 |
| Open Space: | N | DFL | N |
| Historic Property: | N | Remodel Property: | N |
| Multi-Family Redevelopment: | N | | |
| Township: | 7 | Section: | 36 |
| Range: | 35 |
Location |
| Address: | 1303 SE NEWGATE DR WA 99324 | Mapsco: | |
| Neighborhood: | A SFR | Map ID: | |
| Neighborhood CD: | 113011 |
Owner |
| Name: | HERBRANDSON LONNIE E & GILLIAN F | Owner ID: | 65540 |
| Mailing Address: | 1303 SE NEWGATE DR COLLEGE PLACE, WA 99324 | % Ownership: | 100.0000000000% |
| | | Exemptions: | |
Taxes and Assessment Details
Property Tax Information as of
02/21/2026
Click on "Statement Details" to expand or collapse a tax statement.
* Please enter a valid date ** Please enter a valid date *
Statement Details |
| | TOTAL: | $0.00 | $0.00 | $0.00 | $0.00 | $0.00 | $0.00 |
|
| | $0.00 | $0.00 | $0.00 | $0.00 | $0.00 | $0.00 |
Values
| (+) Improvement Homesite Value: | + | $0 | |
| (+) Improvement Non-Homesite Value: | + | $276,600 | |
| (+) Land Homesite Value: | + | $0 | |
| (+) Land Non-Homesite Value: | + | $70,000 | |
| (+) Curr Use (HS): | + | $0 | $0 |
| (+) Curr Use (NHS): | + | $0 | $0 |
| | | -------------------------- | |
| (=) Market Value: | = | $346,600 | |
| (–) Productivity Loss: | – | $0 | |
| | | -------------------------- | |
| (=) Subtotal: | = | $346,600 | |
| (+) Senior Appraised Value: | + | $0 | |
| (+) Non-Senior Appraised Value: | + | $346,600 | |
| | | -------------------------- | |
| (=) Total Appraised Value: | = | $346,600 | |
| (–) Senior Exemption Loss: | – | $0 | |
| (–) Exemption Loss: | – | $0 | |
| | | -------------------------- | |
| (=) Taxable Value: | = | $346,600 | |
Taxing Jurisdiction
| Owner: | HERBRANDSON LONNIE E & GILLIAN F | | |
| % Ownership: | 100.0000000000% | | |
| Total Value: | $346,600 | | |
| Tax Area: | 77 - CP-250-F |
| CERFD | CURRENT EXPENSE REFUND 010 | 0.0000000000 | $346,600 | $346,600 | $0.00 | | |
| CURREXP | CURRENT EXPENSE 010 | 1.0175366760 | $346,600 | $346,600 | $352.68 | | |
| HUMNSERV | HUMAN SERVICES 119 | 0.0250000000 | $346,600 | $346,600 | $8.67 | | |
| SLDREL | SOLDIERS RELIEF 121 | 0.0155990005 | $346,600 | $346,600 | $5.41 | | |
| COLLPLBOND | C OF CP BOND 644 | 0.4374241808 | $346,600 | $346,600 | $151.61 | | |
| COLLPLGEN | CITY OF CP 632 | 1.4453819216 | $346,600 | $346,600 | $500.97 | | |
| EMERGSER | EMS 147 | 0.3792580840 | $346,600 | $346,600 | $131.45 | | |
| EMSRFD | EMS REFUND 147 | 0.0000000000 | $346,600 | $346,600 | $0.00 | | |
| RURALLIB | RURAL LIBRARY 623 | 0.3710609029 | $346,600 | $346,600 | $128.61 | | |
| PORTRFD | PORT REFUND 640 | 0.0000000000 | $346,600 | $346,600 | $0.00 | | |
| PORTWWGEN | PORT OF WW 640 | 0.2460186015 | $346,600 | $346,600 | $85.27 | | |
| SD250BOND | SD #250 BOND 773 | 1.4560608159 | $346,600 | $346,600 | $504.67 | | |
| SD250GEN | SD #250 GENERAL 770 | 2.3880724087 | $346,600 | $346,600 | $827.71 | | |
| ST2 | STATE SCHOOL PART 2 600 | 0.8131451643 | $346,600 | $346,600 | $281.84 | | |
| STATESCHL | STATE SCHOOL 600 | 1.5158548041 | $346,600 | $346,600 | $525.40 | | |
| STREFUND | STATE REFUND LEVY 603 | 0.0000000000 | $346,600 | $346,600 | $0.00 | | |
| | Total Tax Rate: | 10.1104125603 | | | | | |
| | | | | Taxes w/Current Exemptions: | $3,504.29 | | |
| | | | | Taxes w/o Exemptions: | $3,504.29 | | |
Improvement / Building
| Improvement #1: | RESIDENTIAL | State Code: | 11 | 1240.0 sqft | Value: | $276,600 |
| Exterior Wall: | HARDBOARD | Heating/Cooling: | WARM & COOLED AIR | | Number of Bathrooms: | 2 | Number of Bedrooms: | 30 | | Plumbing: | 10 | Roof Covering: | COMP SHINGLE |
|
| | Type | Description | Class CD | Sub Class CD | Year Built | Area |
| | MA | Main Area | 1 | 30 | 2001 | 1240.0 |
| | SI1 | SITE IMPROVEMENT | 1 | 30 | 2001 | 1.5 |
| | ATG | Attached Garage | 1 | 30 | 2001 | 400.0 |
| | RPC | OPEN PORCH W/ROOF , CEILED | 1 | 30 | 2001 | 110.0 |
| | GFP | GAS FIREPLACE | 1 | 30 | 2001 | 1.0 |
Sketch
Property Image
Land
| 1 | RES 1 | Converted: Residential | 0.1444 | 6292.00 | 0.00 | 0.00 | 1.00 | $70,000 | $0 |
Roll Value History
| 2026 | N/A | N/A | N/A | N/A | N/A |
| 2025 | $218,510 | $125,000 | $0 | $343,510 | $343,510 |
| 2024 | $276,600 | $70,000 | $0 | $346,600 | $346,600 |
| 2023 | $276,600 | $70,000 | $0 | $346,600 | $346,600 |
| 2022 | $240,520 | $70,000 | $0 | $310,520 | $310,520 |
| 2021 | $178,160 | $70,000 | $0 | $248,160 | $248,160 |
| 2020 | $120,380 | $70,000 | $0 | $190,380 | $190,380 |
| 2019 | $135,380 | $55,000 | $0 | $190,380 | $190,380 |
| 2018 | $108,300 | $55,000 | $0 | $163,300 | $163,300 |
| 2017 | $104,140 | $55,000 | $0 | $159,140 | $159,140 |
| 2016 | $90,550 | $55,000 | $0 | $145,550 | $145,550 |
| 2015 | $86,240 | $55,000 | $0 | $141,240 | $141,240 |
| 2014 | $78,400 | $55,000 | $0 | $133,400 | $133,400 |
| 2013 | $78,400 | $55,000 | $0 | $133,400 | $133,400 |
| 2012 | $93,200 | $55,000 | $0 | $0 | $0 |
| 2011 | $101,000 | $55,000 | $0 | $0 | $0 |
| 2010 | $101,000 | $55,000 | $0 | $0 | $0 |
| 2009 | $118,300 | $55,000 | $0 | $0 | $0 |
| 2008 | $95,000 | $30,000 | $0 | $0 | $0 |
| 2007 | $95,000 | $30,000 | $0 | $0 | $0 |
Deed and Sales History
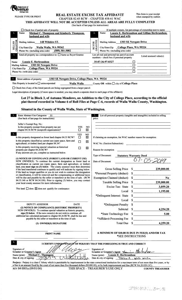
| 1 | 07/15/2019 | SWD | STATUTORY WARRANTY DEED | THOMPSON MICHAEL C & KIMBERLY | HERBRANDSON LONNIE E & GILLIAN F | | | $239,000.00 | 137280 | 2019-05116 |
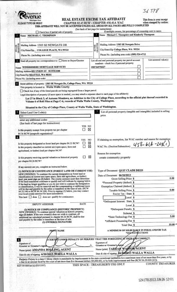
| 2 | 06/25/2013 | QCD | QUIT CLAIM DEED | THOMPSON, MICHAEL C | THOMPSON, MICHAEL C & KIMBERLY | | | $0.00 | 124178 | 2013-06409 |
| 3 | 05/18/2009 | WARRANTY D | WARRANTY DEED | ARNS, WILLIAM E & KARI L | THOMPSON, MICHAEL C | | | $170,000.00 | 116752 | 2009-04961 |
| 4 | 02/19/2002 | WARRANTY D | WARRANTY DEED | | | | | $124,990.00 | 98955 | 3290-202016 |
Payout Agreement
| No payout information available.. |