Property
Account |
| Property ID: | 35489 | Abbreviated Legal Description: | 31-7-36 PARCEL #68 WITHIN NW1/4SE1/4 |
| Parcel Number: | 360731420068 | Agent Code: | |
| Type: | Real | | |
| Tax Area: | 5 - OL-140 | Land Use Code | 11 |
| Open Space: | N | DFL | N |
| Historic Property: | N | Remodel Property: | N |
| Multi-Family Redevelopment: | N | | |
| Township: | 7 | Section: | 31 |
| Range: | 36 |
Location |
| Address: | 2405 COUNTRY CLUB RD WA 99362 | Mapsco: | |
| Neighborhood: | E SRF | Map ID: | |
| Neighborhood CD: | 116011 |
Owner |
| Name: | ABAJIAN DAVID SCOTT | Owner ID: | 52765 |
| Mailing Address: | 2405 COUNTRY CLUB RD WALLA WALLA, WA 99362 | % Ownership: | 100.0000000000% |
| | | Exemptions: | |
Taxes and Assessment Details
Property Tax Information as of
02/21/2026
Click on "Statement Details" to expand or collapse a tax statement.
* Please enter a valid date ** Please enter a valid date *
Statement Details |
| | TOTAL: | $0.00 | $0.00 | $0.00 | $0.00 | $0.00 | $0.00 |
|
| | $0.00 | $0.00 | $0.00 | $0.00 | $0.00 | $0.00 |
Values
| (+) Improvement Homesite Value: | + | $0 | |
| (+) Improvement Non-Homesite Value: | + | $381,190 | |
| (+) Land Homesite Value: | + | $0 | |
| (+) Land Non-Homesite Value: | + | $138,270 | |
| (+) Curr Use (HS): | + | $0 | $0 |
| (+) Curr Use (NHS): | + | $0 | $0 |
| | | -------------------------- | |
| (=) Market Value: | = | $519,460 | |
| (–) Productivity Loss: | – | $0 | |
| | | -------------------------- | |
| (=) Subtotal: | = | $519,460 | |
| (+) Senior Appraised Value: | + | $0 | |
| (+) Non-Senior Appraised Value: | + | $519,460 | |
| | | -------------------------- | |
| (=) Total Appraised Value: | = | $519,460 | |
| (–) Senior Exemption Loss: | – | $0 | |
| (–) Exemption Loss: | – | $0 | |
| | | -------------------------- | |
| (=) Taxable Value: | = | $519,460 | |
Taxing Jurisdiction
| Owner: | ABAJIAN DAVID SCOTT | | |
| % Ownership: | 100.0000000000% | | |
| Total Value: | $519,460 | | |
| Tax Area: | 5 - OL-140 |
| CERFD | CURRENT EXPENSE REFUND 010 | 0.0000000000 | $519,460 | $519,460 | $0.00 | | |
| CURREXP | CURRENT EXPENSE 010 | 1.0175366760 | $519,460 | $519,460 | $528.57 | | |
| HUMNSERV | HUMAN SERVICES 119 | 0.0250000000 | $519,460 | $519,460 | $12.99 | | |
| SLDREL | SOLDIERS RELIEF 121 | 0.0155990005 | $519,460 | $519,460 | $8.10 | | |
| EMERGSER | EMS 147 | 0.3792580840 | $519,460 | $519,460 | $197.01 | | |
| EMSRFD | EMS REFUND 147 | 0.0000000000 | $519,460 | $519,460 | $0.00 | | |
| PORTRFD | PORT REFUND 640 | 0.0000000000 | $519,460 | $519,460 | $0.00 | | |
| PORTWWGEN | PORT OF WW 640 | 0.2460186015 | $519,460 | $519,460 | $127.80 | | |
| SD140BOND | SD #140 BOND 764 | 0.8342371393 | $519,460 | $519,460 | $433.35 | | |
| SD140GEN | SD #140 GENERAL 760 | 2.0646500647 | $519,460 | $519,460 | $1,072.50 | | |
| ST2 | STATE SCHOOL PART 2 600 | 0.8131451643 | $519,460 | $519,460 | $422.40 | | |
| STATESCHL | STATE SCHOOL 600 | 1.5158548041 | $519,460 | $519,460 | $787.43 | | |
| STREFUND | STATE REFUND LEVY 603 | 0.0000000000 | $519,460 | $519,460 | $0.00 | | |
| CWWBOND | C OF WW BOND 643 | 0.2760494372 | $519,460 | $519,460 | $143.40 | | |
| CWWGEN | CITY OF WW 631 | 1.6100204973 | $519,460 | $519,460 | $836.34 | | |
| CWWRFD | CITY OF WALLA WALLA REFUND 631 | 0.0000000000 | $519,460 | $519,460 | $0.00 | | |
| | Total Tax Rate: | 8.7973694689 | | | | | |
| | | | | Taxes w/Current Exemptions: | $4,569.89 | | |
| | | | | Taxes w/o Exemptions: | $4,569.89 | | |
Improvement / Building
| Improvement #1: | RESIDENTIAL | State Code: | 11 | 1925.0 sqft | Value: | $381,190 |
| Exterior Wall: | STUCCO | Heating/Cooling: | WARM & COOLED AIR | | Number of Bathrooms: | 2.5 | Number of Bedrooms: | 2 | | Plumbing: | 12 | Roof Covering: | GALVANIZED METAL |
|
| | Type | Description | Class CD | Sub Class CD | Year Built | Area |
| | MA | Main Area | 1 | 50 | 1981 | 1925.0 |
| | PRC | PORCH W STEPS, ROOF,CEILED | 1 | 50 | 0 | 48.0 |
| | SI1 | SITE IMPROVEMENT | 1 | 50 | 0 | 3.5 |
| | BASE | BASEMENT | 1 | 50 | 1981 | 756.0 |
| | PRC | PORCH W STEPS, ROOF,CEILED | 1 | 50 | 1981 | 160.0 |
| | S1F | Single One Story Fireplace | 1 | 50 | 1981 | 1.0 |
| | ATG | Attached Garage | 1 | 50 | 1981 | 910.0 |
| | BPF | BASEMENT -PARTITIONED FINISH | 1 | 50 | 1981 | 756.0 |
| | OSP | Open | 5 | 50 | 1981 | 437.0 |
| | OSP | Open | 1 | 50 | 1981 | 226.0 |
Sketch
Property Image
Land
| 1 | RES 1 | Converted: Residential | 0.5900 | 25700.00 | 0.00 | 0.00 | 1.00 | $138,270 | $0 |
Roll Value History
| 2026 | N/A | N/A | N/A | N/A | N/A |
| 2025 | $515,940 | $198,920 | $0 | $714,860 | $714,860 |
| 2024 | $543,090 | $138,270 | $0 | $681,360 | $681,360 |
| 2023 | $381,190 | $138,270 | $0 | $519,460 | $519,460 |
| 2022 | $381,190 | $138,270 | $0 | $519,460 | $519,460 |
| 2021 | $381,190 | $138,270 | $0 | $519,460 | $519,460 |
| 2020 | $363,040 | $138,270 | $0 | $501,310 | $501,310 |
| 2019 | $411,310 | $90,000 | $0 | $501,310 | $501,310 |
| 2018 | $411,310 | $90,000 | $0 | $501,310 | $501,310 |
| 2017 | $400,500 | $90,000 | $0 | $490,500 | $490,500 |
| 2016 | $277,220 | $90,000 | $0 | $367,220 | $367,220 |
| 2015 | $164,000 | $90,000 | $0 | $254,000 | $254,000 |
| 2014 | $164,000 | $90,000 | $0 | $254,000 | $254,000 |
| 2013 | $164,000 | $90,000 | $0 | $254,000 | $254,000 |
| 2012 | $164,000 | $90,000 | $0 | $0 | $0 |
| 2011 | $140,900 | $90,000 | $0 | $0 | $0 |
| 2010 | $140,900 | $90,000 | $0 | $0 | $0 |
| 2009 | $217,900 | $90,000 | $0 | $0 | $0 |
| 2008 | $162,000 | $55,000 | $0 | $0 | $0 |
| 2007 | $162,000 | $55,000 | $0 | $0 | $0 |
Deed and Sales History
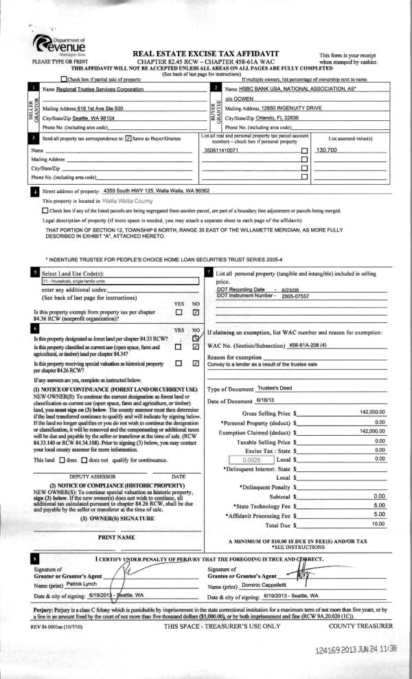
| 1 | 06/21/2013 | WARRANTY D | WARRANTY DEED | ABAJIAN, MARY LOU ESTATE OF | ABAJIAN, DAVID SCOTT | | | $0.00 | 124166 | 2013-06254 |
| 2 | 05/13/1977 | WARRANTY D | WARRANTY DEED | | | | | $0.00 | 0 | 6005-64842 |
Payout Agreement
| No payout information available.. |