Property
Account |
| Property ID: | 35483 | Abbreviated Legal Description: | 16-7-36 TAX 86 |
| Parcel Number: | 360716340049 | Agent Code: | |
| Type: | Real | | |
| Tax Area: | 5 - OL-140 | Land Use Code | 11 |
| Open Space: | N | DFL | N |
| Historic Property: | N | Remodel Property: | N |
| Multi-Family Redevelopment: | N | | |
| Township: | 7 | Section: | 16 |
| Range: | 36 |
Location |
| Address: | 1521 J ST WA 99362 | Mapsco: | |
| Neighborhood: | A-SFR | Map ID: | |
| Neighborhood CD: | 513011 |
Owner |
| Name: | MELCHIOR LEE G | Owner ID: | 69919 |
| Mailing Address: | 1521 J ST WALLA WALLA, WA 99362 | % Ownership: | 100.0000000000% |
| | | Exemptions: | |
Taxes and Assessment Details
Values
| (+) Improvement Homesite Value: | + | $0 | |
| (+) Improvement Non-Homesite Value: | + | $258,710 | |
| (+) Land Homesite Value: | + | $0 | |
| (+) Land Non-Homesite Value: | + | $43,560 | |
| (+) Curr Use (HS): | + | $0 | $0 |
| (+) Curr Use (NHS): | + | $0 | $0 |
| | | -------------------------- | |
| (=) Market Value: | = | $302,270 | |
| (–) Productivity Loss: | – | $0 | |
| | | -------------------------- | |
| (=) Subtotal: | = | $302,270 | |
| (+) Senior Appraised Value: | + | $0 | |
| (+) Non-Senior Appraised Value: | + | $302,270 | |
| | | -------------------------- | |
| (=) Total Appraised Value: | = | $302,270 | |
| (–) Senior Exemption Loss: | – | $0 | |
| (–) Exemption Loss: | – | $0 | |
| | | -------------------------- | |
| (=) Taxable Value: | = | $302,270 | |
Taxing Jurisdiction
| Owner: | MELCHIOR LEE G | | |
| % Ownership: | 100.0000000000% | | |
| Total Value: | $302,270 | | |
| Tax Area: | 5 - OL-140 |
| CERFD | CURRENT EXPENSE REFUND 010 | 0.0000000000 | $302,270 | $302,270 | $0.00 | | |
| CURREXP | CURRENT EXPENSE 010 | 1.0175366760 | $302,270 | $302,270 | $307.57 | | |
| HUMNSERV | HUMAN SERVICES 119 | 0.0250000000 | $302,270 | $302,270 | $7.56 | | |
| SLDREL | SOLDIERS RELIEF 121 | 0.0155990005 | $302,270 | $302,270 | $4.72 | | |
| EMERGSER | EMS 147 | 0.3792580840 | $302,270 | $302,270 | $114.64 | | |
| EMSRFD | EMS REFUND 147 | 0.0000000000 | $302,270 | $302,270 | $0.00 | | |
| PORTRFD | PORT REFUND 640 | 0.0000000000 | $302,270 | $302,270 | $0.00 | | |
| PORTWWGEN | PORT OF WW 640 | 0.2460186015 | $302,270 | $302,270 | $74.36 | | |
| SD140BOND | SD #140 BOND 764 | 0.8342371393 | $302,270 | $302,270 | $252.16 | | |
| SD140GEN | SD #140 GENERAL 760 | 2.0646500647 | $302,270 | $302,270 | $624.08 | | |
| ST2 | STATE SCHOOL PART 2 600 | 0.8131451643 | $302,270 | $302,270 | $245.79 | | |
| STATESCHL | STATE SCHOOL 600 | 1.5158548041 | $302,270 | $302,270 | $458.20 | | |
| STREFUND | STATE REFUND LEVY 603 | 0.0000000000 | $302,270 | $302,270 | $0.00 | | |
| CWWBOND | C OF WW BOND 643 | 0.2760494372 | $302,270 | $302,270 | $83.44 | | |
| CWWGEN | CITY OF WW 631 | 1.6100204973 | $302,270 | $302,270 | $486.66 | | |
| CWWRFD | CITY OF WALLA WALLA REFUND 631 | 0.0000000000 | $302,270 | $302,270 | $0.00 | | |
| | Total Tax Rate: | 8.7973694689 | | | | | |
| | | | | Taxes w/Current Exemptions: | $2,659.18 | | |
| | | | | Taxes w/o Exemptions: | $2,659.18 | | |
Improvement / Building
| Improvement #1: | RESIDENTIAL | State Code: | 11 | 1064.0 sqft | Value: | $258,710 |
| Exterior Wall: | CONCRETE BLOCK | Foundation: | SLAB FOUNDATION | | Heating/Cooling: | WARM & COOLED AIR | Number of Bathrooms: | 1 | | Number of Bedrooms: | 3 | Plumbing: | 6 | | Roof Covering: | COMP SHINGLE |   |   |
|
| | Type | Description | Class CD | Sub Class CD | Year Built | Area |
| | MA | Main Area | 1 | 30 | 1951 | 1064.0 |
| | CPC | COVERED CARPORT/PATIO | 1 | 30 | 1951 | 196.0 |
| | SI1 | SITE IMPROVEMENT | 1 | 30 | 1951 | 1.5 |
| | RPO | OPEN PORCH W/ROOF | 1 | 30 | 1951 | 20.0 |
Sketch
Property Image
Land
| 1 | RES 1 | Converted: Residential | 0.1600 | 6969.00 | 0.00 | 0.00 | 1.00 | $43,560 | $0 |
Roll Value History
| 2026 | N/A | N/A | N/A | N/A | N/A |
| 2025 | $228,220 | $69,690 | $0 | $297,910 | $297,910 |
| 2024 | $228,220 | $69,690 | $0 | $297,910 | $297,910 |
| 2023 | $258,710 | $43,560 | $0 | $302,270 | $302,270 |
| 2022 | $258,710 | $43,560 | $0 | $302,270 | $302,270 |
| 2021 | $258,710 | $43,560 | $0 | $302,270 | $302,270 |
| 2020 | $123,050 | $43,560 | $0 | $166,610 | $166,610 |
| 2019 | $123,050 | $43,560 | $0 | $166,610 | $166,610 |
| 2018 | $107,000 | $43,560 | $0 | $150,560 | $150,560 |
| 2017 | $116,280 | $27,900 | $0 | $144,180 | $144,180 |
| 2016 | $110,740 | $27,900 | $0 | $138,640 | $138,640 |
| 2015 | $110,740 | $27,900 | $0 | $138,640 | $138,640 |
| 2014 | $101,600 | $27,900 | $0 | $129,500 | $129,500 |
| 2013 | $101,600 | $27,900 | $0 | $129,500 | $129,500 |
| 2012 | $106,100 | $27,900 | $0 | $0 | $0 |
| 2011 | $106,100 | $27,900 | $0 | $0 | $0 |
| 2010 | $113,100 | $27,900 | $0 | $0 | $0 |
| 2009 | $65,300 | $27,900 | $0 | $0 | $0 |
| 2008 | $65,300 | $27,900 | $0 | $0 | $0 |
| 2007 | $65,300 | $27,900 | $0 | $0 | $0 |
Deed and Sales History
| 1 | 07/29/2021 | SWD | STATUTORY WARRANTY DEED | MELCHIOR GARY L & AUDREY E | MELCHIOR LEE G | | | $230,000.00 | 142154 | 2021-09264 |
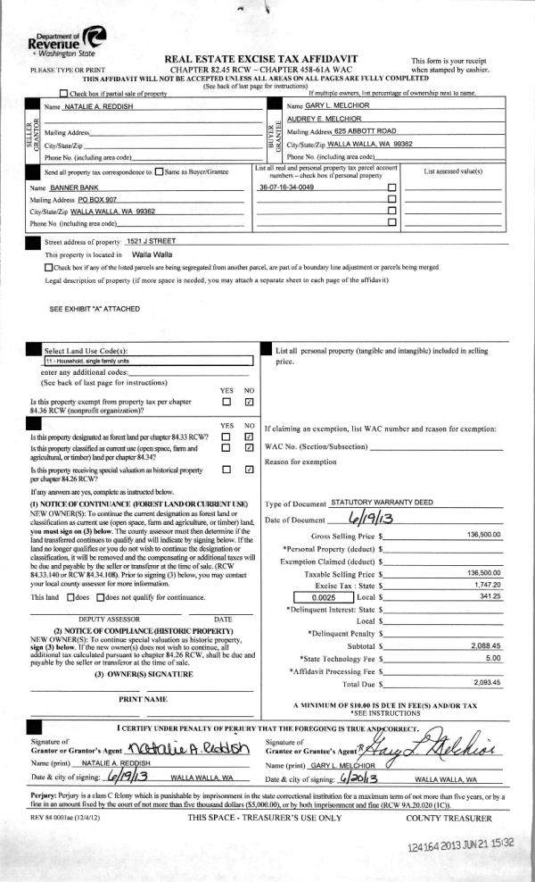
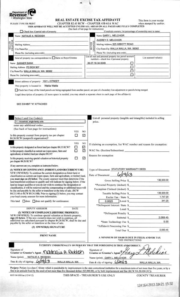
| 2 | 06/21/2013 | WARRANTY D | WARRANTY DEED | REDDISH, NATALIE A | MELCHIOR, GARY L & AUDREY E | | | $136,500.00 | 124164 | 2013-06245 |
| 3 | 11/20/2009 | WARRANTY D | WARRANTY DEED | WALTHERS, KEITH O & JANICE E | REDDISH, NATALIE A | | | $134,700.00 | 117703 | 2009-11412 |
| 4 | 06/17/1987 | WARRANTY D | WARRANTY DEED | | | | | $24,000.00 | 0 | 1648-704684 |
Payout Agreement
| No payout information available.. |