Property
Account |
| Property ID: | 35460 | Abbreviated Legal Description: | AMENDED CALABRIA PLACE SUBDIVISION LOT 33 |
| Parcel Number: | 350726770033 | Agent Code: | |
| Type: | Real | | |
| Tax Area: | 74 - CP-250-FB | Land Use Code | 11 |
| Open Space: | N | DFL | N |
| Historic Property: | N | Remodel Property: | N |
| Multi-Family Redevelopment: | N | | |
| Township: | 7 | Section: | 26 |
| Range: | 35 |
Location |
| Address: | 164 NW MARIA ST WA 99324 | Mapsco: | |
| Neighborhood: | A-SFR | Map ID: | |
| Neighborhood CD: | 313011 |
Owner |
| Name: | CUELLAR HUGO E & MARIANA MEZA PEREZ | Owner ID: | 68544 |
| Mailing Address: | 164 NW MARIA ST COLLEGE PLACE, WA 99324 | % Ownership: | 100.0000000000% |
| | | Exemptions: | |
Taxes and Assessment Details
Property Tax Information as of
02/21/2026
Click on "Statement Details" to expand or collapse a tax statement.
* Please enter a valid date ** Please enter a valid date *
Statement Details |
| | TOTAL: | $0.00 | $0.00 | $0.00 | $0.00 | $0.00 | $0.00 |
|
| | $0.00 | $0.00 | $0.00 | $0.00 | $0.00 | $0.00 |
Values
| (+) Improvement Homesite Value: | + | $0 | |
| (+) Improvement Non-Homesite Value: | + | $307,140 | |
| (+) Land Homesite Value: | + | $0 | |
| (+) Land Non-Homesite Value: | + | $90,000 | |
| (+) Curr Use (HS): | + | $0 | $0 |
| (+) Curr Use (NHS): | + | $0 | $0 |
| | | -------------------------- | |
| (=) Market Value: | = | $397,140 | |
| (–) Productivity Loss: | – | $0 | |
| | | -------------------------- | |
| (=) Subtotal: | = | $397,140 | |
| (+) Senior Appraised Value: | + | $0 | |
| (+) Non-Senior Appraised Value: | + | $397,140 | |
| | | -------------------------- | |
| (=) Total Appraised Value: | = | $397,140 | |
| (–) Senior Exemption Loss: | – | $0 | |
| (–) Exemption Loss: | – | $0 | |
| | | -------------------------- | |
| (=) Taxable Value: | = | $397,140 | |
Taxing Jurisdiction
| Owner: | CUELLAR HUGO E & MARIANA MEZA PEREZ | | |
| % Ownership: | 100.0000000000% | | |
| Total Value: | $397,140 | | |
| Tax Area: | 74 - CP-250-FB |
| CERFD | CURRENT EXPENSE REFUND 010 | 0.0000000000 | $397,140 | $397,140 | $0.00 | | |
| CURREXP | CURRENT EXPENSE 010 | 1.0175366760 | $397,140 | $397,140 | $404.10 | | |
| HUMNSERV | HUMAN SERVICES 119 | 0.0250000000 | $397,140 | $397,140 | $9.93 | | |
| SLDREL | SOLDIERS RELIEF 121 | 0.0155990005 | $397,140 | $397,140 | $6.19 | | |
| COLLPLBOND | C OF CP BOND 644 | 0.4374241808 | $397,140 | $397,140 | $173.72 | | |
| COLLPLGEN | CITY OF CP 632 | 1.4453819216 | $397,140 | $397,140 | $574.02 | | |
| EMERGSER | EMS 147 | 0.3792580840 | $397,140 | $397,140 | $150.62 | | |
| EMSRFD | EMS REFUND 147 | 0.0000000000 | $397,140 | $397,140 | $0.00 | | |
| RURALLIB | RURAL LIBRARY 623 | 0.3710609029 | $397,140 | $397,140 | $147.36 | | |
| PORTRFD | PORT REFUND 640 | 0.0000000000 | $397,140 | $397,140 | $0.00 | | |
| PORTWWGEN | PORT OF WW 640 | 0.2460186015 | $397,140 | $397,140 | $97.70 | | |
| SD250BOND | SD #250 BOND 773 | 1.4560608159 | $397,140 | $397,140 | $578.26 | | |
| SD250GEN | SD #250 GENERAL 770 | 2.3880724087 | $397,140 | $397,140 | $948.40 | | |
| ST2 | STATE SCHOOL PART 2 600 | 0.8131451643 | $397,140 | $397,140 | $322.93 | | |
| STATESCHL | STATE SCHOOL 600 | 1.5158548041 | $397,140 | $397,140 | $602.01 | | |
| STREFUND | STATE REFUND LEVY 603 | 0.0000000000 | $397,140 | $397,140 | $0.00 | | |
| | Total Tax Rate: | 10.1104125603 | | | | | |
| | | | | Taxes w/Current Exemptions: | $4,015.24 | | |
| | | | | Taxes w/o Exemptions: | $4,015.24 | | |
Improvement / Building
| Improvement #1: | RESIDENTIAL | State Code: | 11 | 1448.0 sqft | Value: | $307,140 |
| Exterior Wall: | HARDBOARD | Heating/Cooling: | WARM & COOLED AIR | | Number of Bathrooms: | 2 | Number of Bedrooms: | 3 | | Plumbing: | 9 | Roof Covering: | COMP SHINGLE |
|
| | Type | Description | Class CD | Sub Class CD | Year Built | Area |
| | MA | Main Area | 1 | 35 | 2012 | 1448.0 |
| | GFP | GAS FIREPLACE | 1 | 35 | 0 | 1.0 |
| | RPC | OPEN PORCH W/ROOF , CEILED | 1 | 35 | 0 | 20.0 |
| | RPC | OPEN PORCH W/ROOF , CEILED | 1 | 35 | 0 | 196.0 |
| | SI1 | SITE IMPROVEMENT | 1 | 35 | 0 | 3.0 |
| | ATG | Attached Garage | 1 | 35 | 2012 | 420.0 |
Sketch
Property Image
Land
| 1 | RES 1 | Converted: Residential | 0.1588 | 6916.00 | 0.00 | 0.00 | 1.00 | $90,000 | $0 |
Roll Value History
| 2026 | N/A | N/A | N/A | N/A | N/A |
| 2025 | $337,860 | $90,000 | $0 | $427,860 | $427,860 |
| 2024 | $337,860 | $90,000 | $0 | $427,860 | $427,860 |
| 2023 | $307,140 | $90,000 | $0 | $397,140 | $397,140 |
| 2022 | $279,220 | $90,000 | $0 | $369,220 | $369,220 |
| 2021 | $242,810 | $40,000 | $0 | $282,810 | $282,810 |
| 2020 | $242,810 | $40,000 | $0 | $282,810 | $282,810 |
| 2019 | $242,810 | $40,000 | $0 | $282,810 | $282,810 |
| 2018 | $186,780 | $40,000 | $0 | $226,780 | $226,780 |
| 2017 | $162,410 | $40,000 | $0 | $202,410 | $202,410 |
| 2016 | $154,680 | $40,000 | $0 | $194,680 | $194,680 |
| 2015 | $152,100 | $40,000 | $0 | $192,100 | $192,100 |
| 2014 | $152,100 | $40,000 | $0 | $192,100 | $192,100 |
| 2013 | $152,100 | $40,000 | $0 | $192,100 | $192,100 |
| 2012 | $0 | $54,000 | $0 | $0 | $0 |
| 2011 | $0 | $55,000 | $0 | $0 | $0 |
| 2010 | $0 | $55,000 | $0 | $0 | $0 |
| 2009 | $0 | $60,000 | $0 | $0 | $0 |
| 2008 | $0 | $1,600 | $0 | $0 | $0 |
| 2007 | $152,100 | $40,000 | $0 | $0 | $0 |
Deed and Sales History
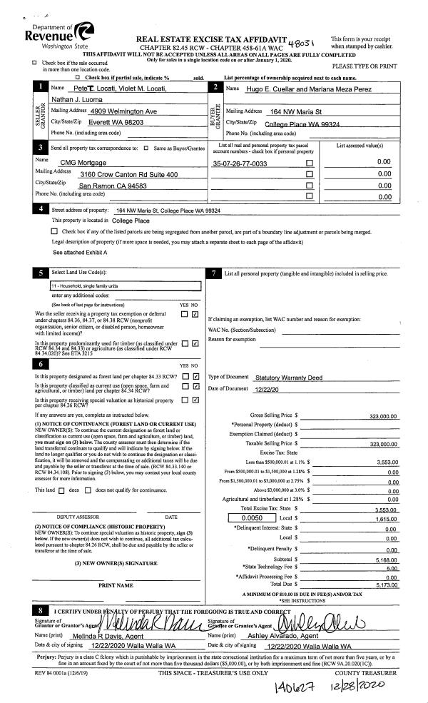
| 1 | 12/28/2020 | SWD | STATUTORY WARRANTY DEED | LOCATI PETE T | CUELLAR HUGO E & MARIANA MEZA PEREZ | | | $323,000.00 | 140627 | 2020-13835 |
| 2 | 10/25/2019 | SWD | STATUTORY WARRANTY DEED | CHOATE JOHN R & PATRICIA L | LOCATI PETE T | | | $265,000.00 | 137962 | 2019-08670 |
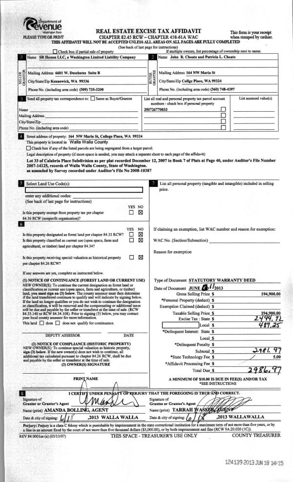
| 3 | 06/18/2013 | WARRANTY D | WARRANTY DEED | SR HOMES LLC | CHOATE, JOHN R & PATRICIA L | | | $194,900.00 | 124139 | 2013-06104 |
| 4 | 11/06/2012 | WARRANTY D | WARRANTY DEED | LOCATI, AMBROSE J JR | SR HOMES LLC | | | $40,000.00 | 122947 | 2012-09844 |
Payout Agreement
| No payout information available.. |