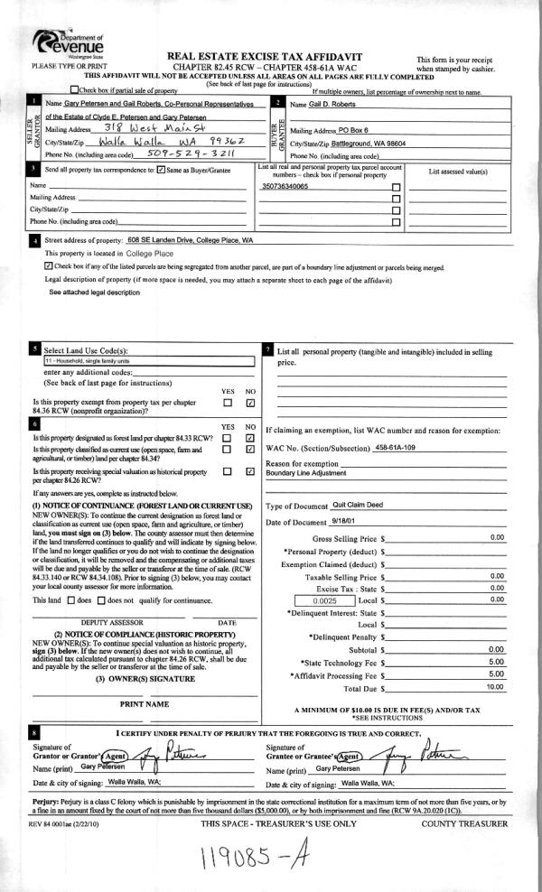
Property
Account |
| Property ID: | 35434 | Abbreviated Legal Description: | CP #2 TAX 6 LOT 3 BLK 5 |
| Parcel Number: | 350736600513 | Agent Code: | |
| Type: | Real | | |
| Tax Area: | 75 - CP 250 | Land Use Code | 11 |
| Open Space: | N | DFL | N |
| Historic Property: | N | Remodel Property: | N |
| Multi-Family Redevelopment: | N | | |
| Township: | 7 | Section: | 36 |
| Range: | 35 |
Location |
| Address: | 721 S COLLEGE AVE WA 99324 | Mapsco: | |
| Neighborhood: | A SFR | Map ID: | |
| Neighborhood CD: | 113011 |
Owner |
| Name: | YAW RANDY | Owner ID: | 53345 |
| Mailing Address: | 721 S COLLEGE AVE COLLEGE PLACE, WA 99324 | % Ownership: | 100.0000000000% |
| | | Exemptions: | SNR/DSBL |
Taxes and Assessment Details
Values
| (+) Improvement Homesite Value: | + | $266,510 | |
| (+) Improvement Non-Homesite Value: | + | $0 | |
| (+) Land Homesite Value: | + | $40,840 | |
| (+) Land Non-Homesite Value: | + | $0 | |
| (+) Curr Use (HS): | + | $0 | $0 |
| (+) Curr Use (NHS): | + | $0 | $0 |
| | | -------------------------- | |
| (=) Market Value: | = | $307,350 | |
| (–) Productivity Loss: | – | $0 | |
| | | -------------------------- | |
| (=) Subtotal: | = | $307,350 | |
| (+) Senior Appraised Value: | + | $141,160 | |
| (+) Non-Senior Appraised Value: | + | $0 | |
| | | -------------------------- | |
| (=) Total Appraised Value: | = | $141,160 | |
| (–) Senior Exemption Loss: | – | $84,696 | |
| (–) Exemption Loss: | – | $0 | |
| | | -------------------------- | |
| (=) Taxable Value: | = | $56,464 | |
Taxing Jurisdiction
| Owner: | YAW RANDY | | |
| % Ownership: | 100.0000000000% | | |
| Total Value: | $307,350 | | |
| Tax Area: | 75 - CP 250 |
| CERFD | CURRENT EXPENSE REFUND 010 | 0.0000000000 | $307,350 | $56,464 | $0.00 | | |
| CURREXP | CURRENT EXPENSE 010 | 1.0175366760 | $307,350 | $56,464 | $57.45 | | |
| HUMNSERV | HUMAN SERVICES 119 | 0.0250000000 | $307,350 | $56,464 | $1.41 | | |
| SLDREL | SOLDIERS RELIEF 121 | 0.0155990005 | $307,350 | $56,464 | $0.88 | | |
| COLLPLBOND | C OF CP BOND 644 | 0.0000000000 | $307,350 | $0 | $0.00 | | |
| COLLPLGEN | CITY OF CP 632 | 1.4453819216 | $307,350 | $56,464 | $81.61 | | |
| EMERGSER | EMS 147 | 0.3792580840 | $307,350 | $56,464 | $21.41 | | |
| EMSRFD | EMS REFUND 147 | 0.0000000000 | $307,350 | $56,464 | $0.00 | | |
| RURALLIB | RURAL LIBRARY 623 | 0.3710609029 | $307,350 | $56,464 | $20.95 | | |
| PORTRFD | PORT REFUND 640 | 0.0000000000 | $307,350 | $56,464 | $0.00 | | |
| PORTWWGEN | PORT OF WW 640 | 0.2460186015 | $307,350 | $56,464 | $13.89 | | |
| SD250BOND | SD #250 BOND 773 | 0.0000000000 | $307,350 | $0 | $0.00 | | |
| SD250GEN | SD #250 GENERAL 770 | 0.0000000000 | $307,350 | $0 | $0.00 | | |
| ST2 | STATE SCHOOL PART 2 600 | 0.0000000000 | $307,350 | $0 | $0.00 | | |
| STATESCHL | STATE SCHOOL 600 | 1.5158548041 | $307,350 | $56,464 | $85.59 | | |
| STREFUND | STATE REFUND LEVY 603 | 0.0000000000 | $307,350 | $56,464 | $0.00 | | |
| | Total Tax Rate: | 5.0157099906 | | | | | |
| | | | | Taxes w/Current Exemptions: | $283.19 | | |
| | | | | Taxes w/o Exemptions: | $3,107.42 | | |
Improvement / Building
| Improvement #1: | RESIDENTIAL | State Code: | 11 | 1230.0 sqft | Value: | $266,510 |
| Exterior Wall: | PLYWOOD | Heating/Cooling: | HEAT PUMP | | Number of Bathrooms: | 2 | Number of Bedrooms: | 2 | | Plumbing: | 9 | Roof Covering: | COMP SHINGLE |
|
| | Type | Description | Class CD | Sub Class CD | Year Built | Area |
| | MA | Main Area | 1 | 30 | 1958 | 1230.0 |
| | CPCG | CARPORT/ GABLE ROOF | 1 | 30 | 1958 | 276.0 |
| | SI1 | SITE IMPROVEMENT | 1 | 30 | 1958 | 2.0 |
| | RPO | OPEN PORCH W/ROOF | 1 | 30 | 1958 | 30.0 |
| | UTST | Utility Storage Shed | 1 | 30 | 1958 | 60.0 |
| | S1F | Single One Story Fireplace | 1 | 30 | 1958 | 1.0 |
Sketch
Property Image
Land
| 1 | RES 1 | Converted: Residential | 0.1389 | 6050.00 | 0.00 | 0.00 | 1.00 | $40,840 | $0 |
Roll Value History
| 2026 | N/A | N/A | N/A | N/A | N/A |
| 2025 | $251,850 | $60,500 | $0 | $312,350 | $56,464 |
| 2024 | $279,830 | $40,840 | $0 | $320,670 | $56,464 |
| 2023 | $266,510 | $40,840 | $0 | $307,350 | $56,464 |
| 2022 | $222,090 | $40,840 | $0 | $262,930 | $91,160 |
| 2021 | $185,080 | $40,840 | $0 | $225,920 | $91,160 |
| 2020 | $148,060 | $40,840 | $0 | $188,900 | $91,160 |
| 2019 | $152,600 | $36,300 | $0 | $188,900 | $56,464 |
| 2018 | $140,930 | $36,300 | $0 | $177,230 | $130,570 |
| 2017 | $108,410 | $36,300 | $0 | $144,710 | $130,570 |
| 2016 | $94,270 | $36,300 | $0 | $130,570 | $130,570 |
| 2015 | $85,700 | $36,300 | $0 | $122,000 | $122,000 |
| 2014 | $85,700 | $36,300 | $0 | $122,000 | $122,000 |
| 2013 | $85,700 | $36,300 | $0 | $122,000 | $122,000 |
| 2012 | $99,300 | $36,300 | $0 | $0 | $0 |
| 2011 | $99,300 | $36,300 | $0 | $0 | $0 |
| 2010 | $92,800 | $36,300 | $0 | $0 | $0 |
| 2009 | $107,100 | $36,300 | $0 | $0 | $0 |
| 2008 | $66,800 | $18,200 | $0 | $0 | $0 |
| 2007 | $66,800 | $18,200 | $0 | $0 | $0 |
Deed and Sales History
| 1 | 10/29/2013 | WARRANTY D | WARRANTY DEED | TETZ, EVERETT D LIFE ESTATE | YAW, RANDY | | | $127,000.00 | 124888 | 2013-10801 |
| 2 | 05/28/2013 | QCD | QUIT CLAIM DEED | TETZ, EVERETT & SHIRLEY LIFE E | TETZ EVERETT D LIFE ESTATE | | | $0.00 | 124010 | 2013-05320 |
| 3 | 05/26/2011 | WARRANTY D | WARRANTY DEED | TERRY, IRIS H | TETZ, EVERETT & SHIRLEY | | | $124,000.00 | 120202 | 2011-04150 |
| 4 | 05/24/1985 | WARRANTY D | WARRANTY DEED | | | | | $46,000.00 | 0 | 1829-003477 |
Payout Agreement
| No payout information available.. |