Property
Account |
| Property ID: | 35409 | Abbreviated Legal Description: | MELODY PARK TERRACE TAX 4 LOT 22 |
| Parcel Number: | 360716540106 | Agent Code: | |
| Type: | Real | | |
| Tax Area: | 5 - OL-140 | Land Use Code | 11 |
| Open Space: | N | DFL | N |
| Historic Property: | N | Remodel Property: | N |
| Multi-Family Redevelopment: | N | | |
| Township: | 7 | Section: | 16 |
| Range: | 36 |
Location |
| Address: | 2017 CRAWFORD DR WA 99362 | Mapsco: | |
| Neighborhood: | A-SFR | Map ID: | |
| Neighborhood CD: | 313011 |
Owner |
| Name: | PULLER SAMUEL W & MINDY A | Owner ID: | 57552 |
| Mailing Address: | 2017 CRAWFORD DR WALLA WALLA, WA 99362 | % Ownership: | 100.0000000000% |
| | | Exemptions: | |
Taxes and Assessment Details
Property Tax Information as of
02/21/2026
Click on "Statement Details" to expand or collapse a tax statement.
* Please enter a valid date ** Please enter a valid date *
Statement Details |
| | TOTAL: | $0.00 | $0.00 | $0.00 | $0.00 | $0.00 | $0.00 |
|
| | $0.00 | $0.00 | $0.00 | $0.00 | $0.00 | $0.00 |
Values
| (+) Improvement Homesite Value: | + | $0 | |
| (+) Improvement Non-Homesite Value: | + | $281,270 | |
| (+) Land Homesite Value: | + | $0 | |
| (+) Land Non-Homesite Value: | + | $90,000 | |
| (+) Curr Use (HS): | + | $0 | $0 |
| (+) Curr Use (NHS): | + | $0 | $0 |
| | | -------------------------- | |
| (=) Market Value: | = | $371,270 | |
| (–) Productivity Loss: | – | $0 | |
| | | -------------------------- | |
| (=) Subtotal: | = | $371,270 | |
| (+) Senior Appraised Value: | + | $0 | |
| (+) Non-Senior Appraised Value: | + | $371,270 | |
| | | -------------------------- | |
| (=) Total Appraised Value: | = | $371,270 | |
| (–) Senior Exemption Loss: | – | $0 | |
| (–) Exemption Loss: | – | $0 | |
| | | -------------------------- | |
| (=) Taxable Value: | = | $371,270 | |
Taxing Jurisdiction
| Owner: | PULLER SAMUEL W & MINDY A | | |
| % Ownership: | 100.0000000000% | | |
| Total Value: | $371,270 | | |
| Tax Area: | 5 - OL-140 |
| CERFD | CURRENT EXPENSE REFUND 010 | 0.0000000000 | $371,270 | $371,270 | $0.00 | | |
| CURREXP | CURRENT EXPENSE 010 | 1.0175366760 | $371,270 | $371,270 | $377.78 | | |
| HUMNSERV | HUMAN SERVICES 119 | 0.0250000000 | $371,270 | $371,270 | $9.28 | | |
| SLDREL | SOLDIERS RELIEF 121 | 0.0155990005 | $371,270 | $371,270 | $5.79 | | |
| EMERGSER | EMS 147 | 0.3792580840 | $371,270 | $371,270 | $140.81 | | |
| EMSRFD | EMS REFUND 147 | 0.0000000000 | $371,270 | $371,270 | $0.00 | | |
| PORTRFD | PORT REFUND 640 | 0.0000000000 | $371,270 | $371,270 | $0.00 | | |
| PORTWWGEN | PORT OF WW 640 | 0.2460186015 | $371,270 | $371,270 | $91.34 | | |
| SD140BOND | SD #140 BOND 764 | 0.8342371393 | $371,270 | $371,270 | $309.73 | | |
| SD140GEN | SD #140 GENERAL 760 | 2.0646500647 | $371,270 | $371,270 | $766.54 | | |
| ST2 | STATE SCHOOL PART 2 600 | 0.8131451643 | $371,270 | $371,270 | $301.90 | | |
| STATESCHL | STATE SCHOOL 600 | 1.5158548041 | $371,270 | $371,270 | $562.79 | | |
| STREFUND | STATE REFUND LEVY 603 | 0.0000000000 | $371,270 | $371,270 | $0.00 | | |
| CWWBOND | C OF WW BOND 643 | 0.2760494372 | $371,270 | $371,270 | $102.49 | | |
| CWWGEN | CITY OF WW 631 | 1.6100204973 | $371,270 | $371,270 | $597.75 | | |
| CWWRFD | CITY OF WALLA WALLA REFUND 631 | 0.0000000000 | $371,270 | $371,270 | $0.00 | | |
| | Total Tax Rate: | 8.7973694689 | | | | | |
| | | | | Taxes w/Current Exemptions: | $3,266.20 | | |
| | | | | Taxes w/o Exemptions: | $3,266.20 | | |
Improvement / Building
| Improvement #1: | RESIDENTIAL | State Code: | 11 | 1705.0 sqft | Value: | $281,270 |
| Exterior Wall: | PLYWOOD | Foundation: | SLAB FOUNDATION | | Heating/Cooling: | HEAT PUMP | Number of Bathrooms: | 2.5 | | Number of Bedrooms: | 4 | Plumbing: | 11 | | Roof Covering: | COMP SHINGLE |   |   |
|
| | Type | Description | Class CD | Sub Class CD | Year Built | Area |
| | MA | Main Area | 3 | 35 | 1963 | 1705.0 |
| | UPFL | Upper Floor (included in main area) | 3 | 35 | 1963 | 525.0 |
| | SI1 | SITE IMPROVEMENT | 3 | 35 | 1963 | 2.0 |
| | SMP | SWIMMING POOL | 3 | 35 | 1963 | 1.0 |
| | S1F | Single One Story Fireplace | 3 | 35 | 1963 | 1.0 |
| | ATG | Attached Garage | 3 | 35 | 1963 | 322.0 |
| | RPC | OPEN PORCH W/ROOF , CEILED | 3 | 35 | 1963 | 110.0 |
| | CPC | COVERED CARPORT/PATIO | 3 | 35 | 1963 | 420.0 |
Sketch
Property Image
Land
| 1 | RES 1 | Converted: Residential | 0.1663 | 7245.00 | 0.00 | 0.00 | 1.00 | $90,000 | $0 |
Roll Value History
| 2026 | N/A | N/A | N/A | N/A | N/A |
| 2025 | $281,270 | $90,000 | $0 | $371,270 | $371,270 |
| 2024 | $281,270 | $90,000 | $0 | $371,270 | $371,270 |
| 2023 | $281,270 | $90,000 | $0 | $371,270 | $371,270 |
| 2022 | $281,270 | $90,000 | $0 | $371,270 | $371,270 |
| 2021 | $202,510 | $55,000 | $0 | $257,510 | $257,510 |
| 2020 | $202,510 | $55,000 | $0 | $257,510 | $257,510 |
| 2019 | $202,510 | $55,000 | $0 | $257,510 | $257,510 |
| 2018 | $168,760 | $55,000 | $0 | $223,760 | $223,760 |
| 2017 | $168,760 | $55,000 | $0 | $223,760 | $223,760 |
| 2016 | $160,720 | $55,000 | $0 | $215,720 | $215,720 |
| 2015 | $146,900 | $55,000 | $0 | $201,900 | $201,900 |
| 2014 | $146,900 | $55,000 | $0 | $201,900 | $201,900 |
| 2013 | $146,900 | $55,000 | $0 | $201,900 | $201,900 |
| 2012 | $146,900 | $55,000 | $0 | $0 | $0 |
| 2011 | $146,900 | $55,000 | $0 | $0 | $0 |
| 2010 | $149,500 | $40,000 | $0 | $0 | $0 |
| 2009 | $181,700 | $40,000 | $0 | $0 | $0 |
| 2008 | $152,800 | $40,000 | $0 | $0 | $0 |
| 2007 | $152,800 | $40,000 | $0 | $0 | $0 |
Deed and Sales History
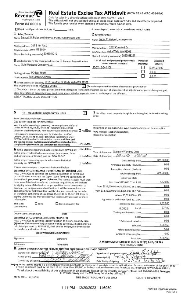
| 1 | 12/29/2023 | SWD | STATUTORY WARRANTY DEED | PULLER SAMUEL W & MINDY A | WOLPERT LUCAS R | | | $375,000.00 | 146980 | 2023-07547 |
| 2 | 09/30/2015 | SWD | STATUTORY WARRANTY DEED | THORSON JONATHAN W & CARLA E | PULLER SAMUEL W & MINDY A | | | $225,000.00 | 128915 | 2015-08597 |
| 3 | 05/31/2013 | QCD | QUIT CLAIM DEED | THORSON, JONATHAN W | THORSON, JONATHAN W & CARLA E | | | $0.00 | 124054 | 2013-05470 |
| 4 | 11/17/2009 | WARRANTY D | WARRANTY DEED | MITCHELL, JUDITH A | THORSON, JONATHAN W | | | $215,000.00 | 117680 | 2009-11303 |
| 5 | 05/17/1988 | WARRANTY D | WARRANTY DEED | | | | | $59,900.00 | 0 | 1708-803103 |
Payout Agreement
| No payout information available.. |