Property
Account |
| Property ID: | 35367 | Abbreviated Legal Description: | TOWNSENDS LOT 7 BLK 2 |
| Parcel Number: | 360730550207 | Agent Code: | |
| Type: | Real | | |
| Tax Area: | 1 - OL-140-F | Land Use Code | 11 |
| Open Space: | N | DFL | N |
| Historic Property: | N | Remodel Property: | N |
| Multi-Family Redevelopment: | N | | |
| Township: | 7 | Section: | 30 |
| Range: | 36 |
Location |
| Address: | 612 S 12TH AVE WA 99362 | Mapsco: | |
| Neighborhood: | A-SFR | Map ID: | |
| Neighborhood CD: | 313011 |
Owner |
| Name: | WILKINSON PARTNERS LLC | Owner ID: | 73808 |
| Mailing Address: | PO BOX 1425 WALLA WALLA, WA 99362 | % Ownership: | 100.0000000000% |
| | | Exemptions: | |
Taxes and Assessment Details
Values
| (+) Improvement Homesite Value: | + | $152,240 | |
| (+) Improvement Non-Homesite Value: | + | $0 | |
| (+) Land Homesite Value: | + | $63,050 | |
| (+) Land Non-Homesite Value: | + | $0 | |
| (+) Curr Use (HS): | + | $0 | $0 |
| (+) Curr Use (NHS): | + | $0 | $0 |
| | | -------------------------- | |
| (=) Market Value: | = | $215,290 | |
| (–) Productivity Loss: | – | $0 | |
| | | -------------------------- | |
| (=) Subtotal: | = | $215,290 | |
| (+) Senior Appraised Value: | + | $0 | |
| (+) Non-Senior Appraised Value: | + | $215,290 | |
| | | -------------------------- | |
| (=) Total Appraised Value: | = | $215,290 | |
| (–) Senior Exemption Loss: | – | $0 | |
| (–) Exemption Loss: | – | $0 | |
| | | -------------------------- | |
| (=) Taxable Value: | = | $215,290 | |
Taxing Jurisdiction
| Owner: | WILKINSON PARTNERS LLC | | |
| % Ownership: | 100.0000000000% | | |
| Total Value: | $215,290 | | |
| Tax Area: | 1 - OL-140-F |
| CERFD | CURRENT EXPENSE REFUND 010 | 0.0000000000 | $215,290 | $215,290 | $0.00 | | |
| CURREXP | CURRENT EXPENSE 010 | 1.0175366760 | $215,290 | $215,290 | $219.07 | | |
| HUMNSERV | HUMAN SERVICES 119 | 0.0250000000 | $215,290 | $215,290 | $5.38 | | |
| SLDREL | SOLDIERS RELIEF 121 | 0.0155990005 | $215,290 | $215,290 | $3.36 | | |
| EMERGSER | EMS 147 | 0.3792580840 | $215,290 | $215,290 | $81.65 | | |
| EMSRFD | EMS REFUND 147 | 0.0000000000 | $215,290 | $215,290 | $0.00 | | |
| PORTRFD | PORT REFUND 640 | 0.0000000000 | $215,290 | $215,290 | $0.00 | | |
| PORTWWGEN | PORT OF WW 640 | 0.2460186015 | $215,290 | $215,290 | $52.97 | | |
| SD140BOND | SD #140 BOND 764 | 0.8342371393 | $215,290 | $215,290 | $179.60 | | |
| SD140GEN | SD #140 GENERAL 760 | 2.0646500647 | $215,290 | $215,290 | $444.50 | | |
| ST2 | STATE SCHOOL PART 2 600 | 0.8131451643 | $215,290 | $215,290 | $175.06 | | |
| STATESCHL | STATE SCHOOL 600 | 1.5158548041 | $215,290 | $215,290 | $326.35 | | |
| STREFUND | STATE REFUND LEVY 603 | 0.0000000000 | $215,290 | $215,290 | $0.00 | | |
| CWWBOND | C OF WW BOND 643 | 0.2760494372 | $215,290 | $215,290 | $59.43 | | |
| CWWGEN | CITY OF WW 631 | 1.6100204973 | $215,290 | $215,290 | $346.62 | | |
| CWWRFD | CITY OF WALLA WALLA REFUND 631 | 0.0000000000 | $215,290 | $215,290 | $0.00 | | |
| | Total Tax Rate: | 8.7973694689 | | | | | |
| | | | | Taxes w/Current Exemptions: | $1,893.99 | | |
| | | | | Taxes w/o Exemptions: | $1,893.99 | | |
Improvement / Building
| Improvement #1: | RESIDENTIAL | State Code: | 11 | 2016.0 sqft | Value: | $152,240 |
| Exterior Wall: | VINYL | Heating/Cooling: | FLOOR FURNACE | | Number of Bathrooms: | 1 | Number of Bedrooms: | 3 | | Plumbing: | 7 | Roof Covering: | COMP SHINGLE |
|
| | Type | Description | Class CD | Sub Class CD | Year Built | Area |
| | MA | Main Area | 4 | 25 | 1908 | 2016.0 |
| | SI1 | SITE IMPROVEMENT | 4 | 25 | 1908 | 1.0 |
| | WDR | WOOD DECK W/ROOF | 4 | 25 | 1908 | 72.0 |
| | OSP | Open | 4 | 25 | 1908 | 16.0 |
| | UPFL | Upper Floor (included in main area) | 4 | 25 | 1908 | 670.0 |
Sketch
Property Image
Land
| 1 | RES 1 | Converted: Residential | 0.1865 | 8125.00 | 0.00 | 0.00 | 1.00 | $63,050 | $0 |
Roll Value History
| 2026 | N/A | N/A | N/A | N/A | N/A |
| 2025 | $152,240 | $63,050 | $0 | $215,290 | $215,290 |
| 2024 | $152,240 | $63,050 | $0 | $215,290 | $215,290 |
| 2023 | $152,240 | $63,050 | $0 | $215,290 | $215,290 |
| 2022 | $117,110 | $63,050 | $0 | $180,160 | $180,160 |
| 2021 | $119,600 | $25,900 | $0 | $145,500 | $145,500 |
| 2020 | $59,800 | $25,900 | $0 | $85,700 | $85,700 |
| 2019 | $59,800 | $25,900 | $0 | $85,700 | $85,700 |
| 2018 | $59,800 | $25,900 | $0 | $85,700 | $85,700 |
| 2017 | $59,800 | $25,900 | $0 | $85,700 | $85,700 |
| 2016 | $59,800 | $25,900 | $0 | $85,700 | $85,700 |
| 2015 | $59,800 | $25,900 | $0 | $85,700 | $85,700 |
| 2014 | $59,800 | $25,900 | $0 | $85,700 | $0 |
| 2013 | $59,800 | $25,900 | $0 | $85,700 | $0 |
| 2012 | $59,800 | $25,900 | $0 | $0 | $0 |
| 2011 | $59,800 | $25,900 | $0 | $0 | $0 |
| 2010 | $58,300 | $25,900 | $0 | $0 | $0 |
| 2009 | $75,500 | $13,100 | $0 | $0 | $0 |
| 2008 | $57,800 | $13,100 | $0 | $0 | $0 |
| 2007 | $57,800 | $13,100 | $0 | $0 | $0 |
Deed and Sales History
| 1 | 06/15/2023 | QCD | QUIT CLAIM DEED | WILKINSON ESTATES LLC | WILKINSON PARTNERS LLC | | | $0.00 | 145984 | 2023-03289 |
| 2 | 10/18/2021 | SWD | STATUTORY WARRANTY DEED | MURO SONIA | WILKINSON ESTATES LLC | | | $128,750.00 | 142702 | 20221-12645 |
| 3 | 08/06/2021 | QCD | QUIT CLAIM DEED | MURO ISAIAS J | MURO SONIA | | | $0.00 | 142235 | 2021-09632 |
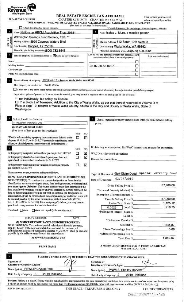
| 4 | 02/21/2019 | SWP | Special Warranty Deed | NATIONSTAR HECM ACQUISITION TRUST 2018-1 | MURO ISAIAS J | | | $87,900.00 | 136417 | 2019-01144 |
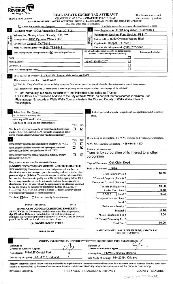
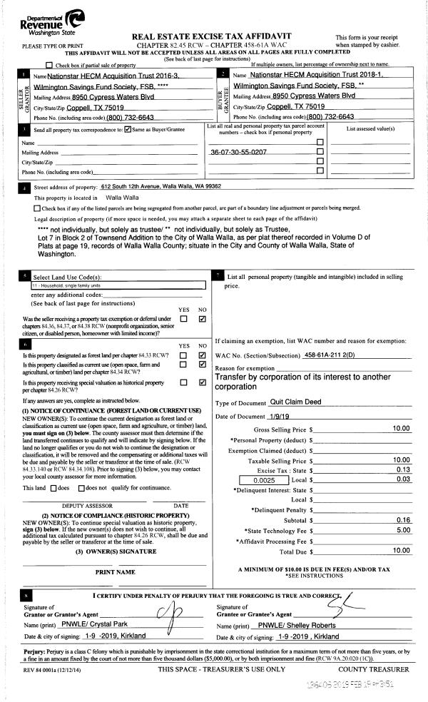
| 5 | 02/19/2019 | QCD | QUIT CLAIM DEED | NATIONSTAR HECM ACQUISITION TRUST | NATIONSTAR HECM ACQUISITION TRUST 2018-1 | | | $0.00 | 136406 | 2019-01094 |
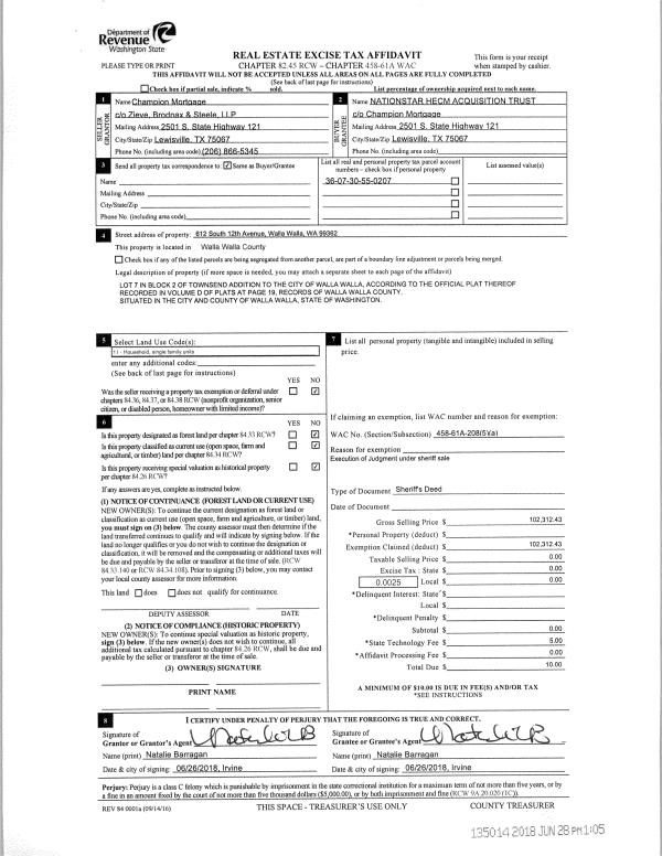
| 6 | 06/28/2018 | SHERIFFS D | SHERIFFS DEED | SMITH VERA M | NATIONSTAR HECM ACQUISITION TRUST | | | $102,312.00 | 135014 | 2018-05195 |
| 7 | 12/03/1980 | QCD | QUIT CLAIM DEED | | | | | $15,000.00 | 0 | 1258-009569 |
Payout Agreement
| No payout information available.. |