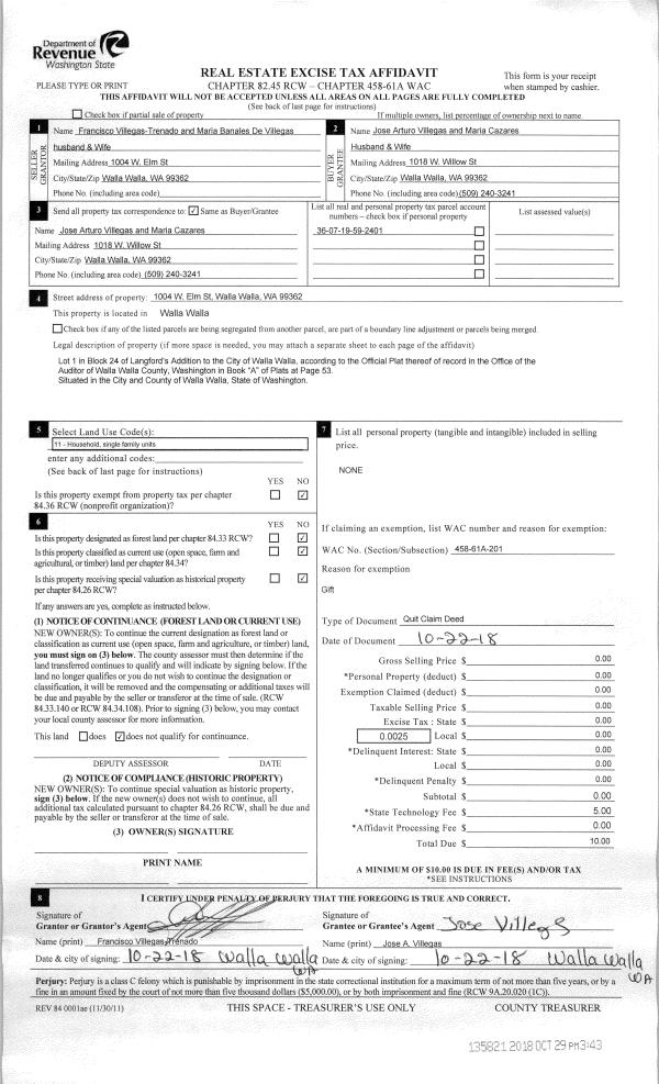
Property
Account |
| Property ID: | 35355 | Abbreviated Legal Description: | LANGFORDS LOT 1 BLK 24 |
| Parcel Number: | 360719592401 | Agent Code: | |
| Type: | Real | | |
| Tax Area: | 1 - OL-140-F | Land Use Code | 11 |
| Open Space: | N | DFL | N |
| Historic Property: | N | Remodel Property: | N |
| Multi-Family Redevelopment: | N | | |
| Township: | 7 | Section: | 19 |
| Range: | 36 |
Location |
| Address: | 1004 W ELM ST WA 99362 | Mapsco: | |
| Neighborhood: | A-SFR | Map ID: | |
| Neighborhood CD: | 313011 |
Owner |
| Name: | VILLEGAS JOSE ARTURO | Owner ID: | 49457 |
| Mailing Address: | MARIA CAZARES 1018 WILLOW ST WALLA WALLA, WA 99362 | % Ownership: | 100.0000000000% |
| | | Exemptions: | |
Taxes and Assessment Details
Values
| (+) Improvement Homesite Value: | + | $0 | |
| (+) Improvement Non-Homesite Value: | + | $132,210 | |
| (+) Land Homesite Value: | + | $0 | |
| (+) Land Non-Homesite Value: | + | $53,130 | |
| (+) Curr Use (HS): | + | $0 | $0 |
| (+) Curr Use (NHS): | + | $0 | $0 |
| | | -------------------------- | |
| (=) Market Value: | = | $185,340 | |
| (–) Productivity Loss: | – | $0 | |
| | | -------------------------- | |
| (=) Subtotal: | = | $185,340 | |
| (+) Senior Appraised Value: | + | $0 | |
| (+) Non-Senior Appraised Value: | + | $185,340 | |
| | | -------------------------- | |
| (=) Total Appraised Value: | = | $185,340 | |
| (–) Senior Exemption Loss: | – | $0 | |
| (–) Exemption Loss: | – | $0 | |
| | | -------------------------- | |
| (=) Taxable Value: | = | $185,340 | |
Taxing Jurisdiction
| Owner: | VILLEGAS JOSE ARTURO | | |
| % Ownership: | 100.0000000000% | | |
| Total Value: | $185,340 | | |
| Tax Area: | 1 - OL-140-F |
| CERFD | CURRENT EXPENSE REFUND 010 | 0.0000000000 | $185,340 | $185,340 | $0.00 | | |
| CURREXP | CURRENT EXPENSE 010 | 1.0175366760 | $185,340 | $185,340 | $188.59 | | |
| HUMNSERV | HUMAN SERVICES 119 | 0.0250000000 | $185,340 | $185,340 | $4.63 | | |
| SLDREL | SOLDIERS RELIEF 121 | 0.0155990005 | $185,340 | $185,340 | $2.89 | | |
| EMERGSER | EMS 147 | 0.3792580840 | $185,340 | $185,340 | $70.29 | | |
| EMSRFD | EMS REFUND 147 | 0.0000000000 | $185,340 | $185,340 | $0.00 | | |
| PORTRFD | PORT REFUND 640 | 0.0000000000 | $185,340 | $185,340 | $0.00 | | |
| PORTWWGEN | PORT OF WW 640 | 0.2460186015 | $185,340 | $185,340 | $45.60 | | |
| SD140BOND | SD #140 BOND 764 | 0.8342371393 | $185,340 | $185,340 | $154.62 | | |
| SD140GEN | SD #140 GENERAL 760 | 2.0646500647 | $185,340 | $185,340 | $382.66 | | |
| ST2 | STATE SCHOOL PART 2 600 | 0.8131451643 | $185,340 | $185,340 | $150.71 | | |
| STATESCHL | STATE SCHOOL 600 | 1.5158548041 | $185,340 | $185,340 | $280.95 | | |
| STREFUND | STATE REFUND LEVY 603 | 0.0000000000 | $185,340 | $185,340 | $0.00 | | |
| CWWBOND | C OF WW BOND 643 | 0.2760494372 | $185,340 | $185,340 | $51.16 | | |
| CWWGEN | CITY OF WW 631 | 1.6100204973 | $185,340 | $185,340 | $298.40 | | |
| CWWRFD | CITY OF WALLA WALLA REFUND 631 | 0.0000000000 | $185,340 | $185,340 | $0.00 | | |
| | Total Tax Rate: | 8.7973694689 | | | | | |
| | | | | Taxes w/Current Exemptions: | $1,630.50 | | |
| | | | | Taxes w/o Exemptions: | $1,630.50 | | |
Improvement / Building
| Improvement #1: | RESIDENTIAL | State Code: | 11 | 966.0 sqft | Value: | $132,210 |
| Exterior Wall: | CONCRETE BLOCK | Heating/Cooling: | BASEBOARD ELECTRIC | | Number of Bathrooms: | 1 | Number of Bedrooms: | 4 | | Plumbing: | 6 | Roof Covering: | COMP SHINGLE |
|
| | Type | Description | Class CD | Sub Class CD | Year Built | Area |
| | MA | Main Area | 1 | 20 | 1947 | 966.0 |
| | RPC | OPEN PORCH W/ROOF , CEILED | 1 | 20 | 1947 | 152.0 |
| | SI1 | SITE IMPROVEMENT | 1 | 20 | 1947 | 1.0 |
Sketch
Property Image
Land
| 1 | RES 1 | Converted: Residential | 0.1478 | 6440.00 | 0.00 | 0.00 | 1.00 | $53,130 | $0 |
Roll Value History
| 2026 | N/A | N/A | N/A | N/A | N/A |
| 2025 | $132,210 | $53,130 | $0 | $185,340 | $185,340 |
| 2024 | $132,210 | $53,130 | $0 | $185,340 | $185,340 |
| 2023 | $132,210 | $53,130 | $0 | $185,340 | $185,340 |
| 2022 | $101,700 | $53,130 | $0 | $154,830 | $154,830 |
| 2021 | $130,130 | $24,700 | $0 | $154,830 | $154,830 |
| 2020 | $108,440 | $24,700 | $0 | $133,140 | $133,140 |
| 2019 | $108,440 | $24,700 | $0 | $133,140 | $133,140 |
| 2018 | $94,300 | $24,700 | $0 | $119,000 | $119,000 |
| 2017 | $58,940 | $24,700 | $0 | $83,640 | $83,640 |
| 2016 | $56,130 | $24,700 | $0 | $80,830 | $80,830 |
| 2015 | $62,260 | $24,700 | $0 | $86,960 | $86,960 |
| 2014 | $56,600 | $24,700 | $0 | $81,300 | $81,300 |
| 2013 | $56,600 | $24,700 | $0 | $81,300 | $81,300 |
| 2012 | $71,000 | $24,700 | $0 | $0 | $0 |
| 2011 | $71,000 | $24,700 | $0 | $0 | $0 |
| 2010 | $72,900 | $24,700 | $0 | $0 | $0 |
| 2009 | $57,200 | $11,300 | $0 | $0 | $0 |
| 2008 | $15,100 | $11,300 | $0 | $0 | $0 |
| 2007 | $15,100 | $11,300 | $0 | $0 | $0 |
Deed and Sales History
| 1 | 10/22/2018 | QCD | QUIT CLAIM DEED | VILLEGAS-TRENADO FRANCISCO | VILLEGAS JOSE ARTURO | | | $0.00 | 135821 | 2018-08957 |
| 2 | 05/29/2013 | QCD | QUIT CLAIM DEED | VILLEGAS, FRANCISCO | VILLEGAS-TRENADO, FRANCISCO | | | $0.00 | 124020 | 2013-05348 |
| 3 | 04/09/1996 | WARRANTY D | WARRANTY DEED | | | | | $27,000.00 | 85919 | 2399-603465 |
Payout Agreement
| No payout information available.. |