Property
Account |
| Property ID: | 35353 | Abbreviated Legal Description: | AMENDED CALABRIA PLACE SUBDIVISION LOT 7 |
| Parcel Number: | 350726770007 | Agent Code: | |
| Type: | Real | | |
| Tax Area: | 74 - CP-250-FB | Land Use Code | 11 |
| Open Space: | N | DFL | N |
| Historic Property: | N | Remodel Property: | N |
| Multi-Family Redevelopment: | N | | |
| Township: | 7 | Section: | 26 |
| Range: | 35 |
Location |
| Address: | 224 NW MARIA ST WA 99324 | Mapsco: | |
| Neighborhood: | A-SFR | Map ID: | |
| Neighborhood CD: | 313011 |
Owner |
| Name: | VIXIE JOHN A & ROXANNE I | Owner ID: | 67759 |
| Mailing Address: | 224 NW MARIA ST COLLEGE PLACE, WA 99324 | % Ownership: | 100.0000000000% |
| | | Exemptions: | |
Taxes and Assessment Details
Values
| (+) Improvement Homesite Value: | + | $0 | |
| (+) Improvement Non-Homesite Value: | + | $344,210 | |
| (+) Land Homesite Value: | + | $0 | |
| (+) Land Non-Homesite Value: | + | $90,000 | |
| (+) Curr Use (HS): | + | $0 | $0 |
| (+) Curr Use (NHS): | + | $0 | $0 |
| | | -------------------------- | |
| (=) Market Value: | = | $434,210 | |
| (–) Productivity Loss: | – | $0 | |
| | | -------------------------- | |
| (=) Subtotal: | = | $434,210 | |
| (+) Senior Appraised Value: | + | $0 | |
| (+) Non-Senior Appraised Value: | + | $434,210 | |
| | | -------------------------- | |
| (=) Total Appraised Value: | = | $434,210 | |
| (–) Senior Exemption Loss: | – | $0 | |
| (–) Exemption Loss: | – | $0 | |
| | | -------------------------- | |
| (=) Taxable Value: | = | $434,210 | |
Taxing Jurisdiction
| Owner: | VIXIE JOHN A & ROXANNE I | | |
| % Ownership: | 100.0000000000% | | |
| Total Value: | $434,210 | | |
| Tax Area: | 74 - CP-250-FB |
| CERFD | CURRENT EXPENSE REFUND 010 | 0.0000000000 | $434,210 | $434,210 | $0.00 | | |
| CURREXP | CURRENT EXPENSE 010 | 0.9851088983 | $434,210 | $434,210 | $427.74 | | |
| HUMNSERV | HUMAN SERVICES 119 | 0.0250000000 | $434,210 | $434,210 | $10.86 | | |
| SLDREL | SOLDIERS RELIEF 121 | 0.0155990000 | $434,210 | $434,210 | $6.77 | | |
| COLLPLBOND | C OF CP BOND 644 | 0.3846009312 | $434,210 | $434,210 | $167.00 | | |
| COLLPLGEN | CITY OF CP 632 | 1.4193088888 | $434,210 | $434,210 | $616.28 | | |
| EMERGSER | EMS 147 | 0.3676811629 | $434,210 | $434,210 | $159.65 | | |
| EMSRFD | EMS REFUND 147 | 0.0000000000 | $434,210 | $434,210 | $0.00 | | |
| RLBRFD | RURAL LIBRARY REFUND 623 | 0.0000000000 | $434,210 | $0 | $0.00 | | |
| RURALLIB | RURAL LIBRARY 623 | 0.0000000000 | $434,210 | $0 | $0.00 | | |
| PORTRFD | PORT REFUND 640 | 0.0000000000 | $434,210 | $434,210 | $0.00 | | |
| PORTWWGEN | PORT OF WW 640 | 0.2344301070 | $434,210 | $434,210 | $101.79 | | |
| SD250BOND | SD #250 BOND 773 | 1.3740031235 | $434,210 | $434,210 | $596.61 | | |
| SD250GEN | SD #250 GENERAL 770 | 2.4999999988 | $434,210 | $434,210 | $1,085.52 | | |
| ST2 | STATE SCHOOL PART 2 600 | 0.8853714103 | $434,210 | $434,210 | $384.44 | | |
| STATESCHL | STATE SCHOOL 600 | 1.6424571473 | $434,210 | $434,210 | $713.17 | | |
| STREFUND | STATE REFUND LEVY 603 | 0.0000000000 | $434,210 | $434,210 | $0.00 | | |
| | Total Tax Rate: | 9.8335606681 | | | | | |
| | | | | Taxes w/Current Exemptions: | $4,269.83 | | |
| | | | | Taxes w/o Exemptions: | $4,269.83 | | |
Improvement / Building
| Improvement #1: | RESIDENTIAL | State Code: | 11 | 1528.0 sqft | Value: | $344,210 |
| Exterior Wall: | PLYWOOD | Heating/Cooling: | WARM & COOLED AIR | | Number of Bathrooms: | 2 | Number of Bedrooms: | 3 | | Plumbing: | 11 | Roof Covering: | COMP SHINGLE |
|
| | Type | Description | Class CD | Sub Class CD | Year Built | Area |
| | MA | Main Area | 1 | 35 | 2008 | 1528.0 |
| | RPC | OPEN PORCH W/ROOF , CEILED | 1 | 35 | 0 | 30.0 |
| | RPC | OPEN PORCH W/ROOF , CEILED | 1 | 35 | 0 | 150.0 |
| | SI1 | SITE IMPROVEMENT | 1 | 35 | 0 | 2.0 |
| | ATG | Attached Garage | 1 | 35 | 2008 | 440.0 |
Sketch
Property Image
Land
| 1 | RES 1 | Converted: Residential | 0.2086 | 9087.00 | 0.00 | 0.00 | 1.00 | $90,000 | $0 |
Roll Value History
| 2026 | N/A | N/A | N/A | N/A | N/A |
| 2025 | $344,210 | $90,000 | $0 | $434,210 | $434,210 |
| 2024 | $344,210 | $90,000 | $0 | $434,210 | $434,210 |
| 2023 | $312,920 | $90,000 | $0 | $402,920 | $402,920 |
| 2022 | $284,470 | $90,000 | $0 | $374,470 | $374,470 |
| 2021 | $253,950 | $55,000 | $0 | $308,950 | $308,950 |
| 2020 | $241,860 | $55,000 | $0 | $296,860 | $296,860 |
| 2019 | $241,860 | $55,000 | $0 | $296,860 | $296,860 |
| 2018 | $186,050 | $55,000 | $0 | $241,050 | $241,050 |
| 2017 | $177,190 | $55,000 | $0 | $232,190 | $232,190 |
| 2016 | $161,080 | $55,000 | $0 | $216,080 | $216,080 |
| 2015 | $154,800 | $55,000 | $0 | $209,800 | $209,800 |
| 2014 | $154,800 | $55,000 | $0 | $209,800 | $209,800 |
| 2013 | $154,800 | $55,000 | $0 | $209,800 | $209,800 |
| 2012 | $166,800 | $54,000 | $0 | $0 | $0 |
| 2011 | $165,800 | $55,000 | $0 | $0 | $0 |
| 2010 | $167,800 | $55,000 | $0 | $0 | $0 |
| 2009 | $132,200 | $60,000 | $0 | $0 | $0 |
| 2008 | $0 | $1,600 | $0 | $0 | $0 |
| 2007 | $154,800 | $55,000 | $0 | $0 | $0 |
Deed and Sales History
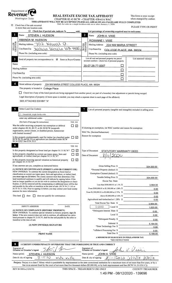
| 1 | 08/12/2020 | SWD | STATUTORY WARRANTY DEED | HUDSON STEVEN J & AMANDA M | VIXIE JOHN A & ROXANNE I | | | $324,000.00 | 139696 | 2020-07962 |
| 2 | 09/08/2017 | SWD | STATUTORY WARRANTY DEED | BROWN DOUGLAS L & MARILYN R | HUDSON STEVEN J & AMANDA M | | | $270,000.00 | 133172 | 2017-07053 |
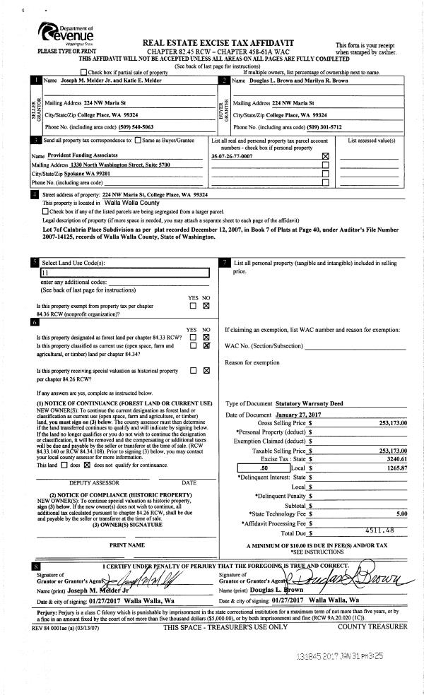
| 3 | 01/31/2017 | SWD | STATUTORY WARRANTY DEED | MELDER JOSEPH M & KATIE E | BROWN DOUGLAS L & MARILYN R | | | $253,173.00 | 131845 | 2017-00846 |
| 4 | 05/31/2013 | WARRANTY D | WARRANTY DEED | CRAIK, AARON | MELDER, JOSEPH M & KATIE E | | | $214,000.00 | 124042 | 2013-05432 |
| 5 | 12/20/2007 | QCD | QUIT CLAIM DEED | CRAIK, KRISTEN | CRAIK, AARON | | | | 114261 | 2007-14498 |
| 6 | 12/20/2007 | WARRANTY D | WARRANTY DEED | LOCATI, AMBROSE J JR | CRAIK AARON | | | $120,000.00 | 114262 | 2007-14499 |
|   | |
Payout Agreement
| No payout information available.. |