Property
Account |
| Property ID: | 35342 | Abbreviated Legal Description: | 29-07-36 LOT 1 OF SP 7903793 (SINGLETON'S N 103' OF N 115'OF LT 5 BLK 3 AND TRACTS) |
| Parcel Number: | 360729780307 | Agent Code: | |
| Type: | Real | | |
| Tax Area: | 1 - OL-140-F | Land Use Code | 11 |
| Open Space: | N | DFL | N |
| Historic Property: | N | Remodel Property: | N |
| Multi-Family Redevelopment: | N | | |
| Township: | 7 | Section: | 29 |
| Range: | 36 |
Location |
| Address: | 42 E MAPLE ST WA 99362 | Mapsco: | |
| Neighborhood: | A Res | Map ID: | |
| Neighborhood CD: | 613011 |
Owner |
| Name: | MARTINEZ BULMARO MAGANA & MARIA GUADALUPE | Owner ID: | 65115 |
| Mailing Address: | 42 E MAPLE ST WALLA WALLA, WA 99362 | % Ownership: | 100.0000000000% |
| | | Exemptions: | |
Taxes and Assessment Details
Property Tax Information as of
02/21/2026
Click on "Statement Details" to expand or collapse a tax statement.
* Please enter a valid date ** Please enter a valid date *
Statement Details |
| | TOTAL: | $0.00 | $0.00 | $0.00 | $0.00 | $0.00 | $0.00 |
|
| | $0.00 | $0.00 | $0.00 | $0.00 | $0.00 | $0.00 |
Values
| (+) Improvement Homesite Value: | + | $0 | |
| (+) Improvement Non-Homesite Value: | + | $77,620 | |
| (+) Land Homesite Value: | + | $0 | |
| (+) Land Non-Homesite Value: | + | $91,970 | |
| (+) Curr Use (HS): | + | $0 | $0 |
| (+) Curr Use (NHS): | + | $0 | $0 |
| | | -------------------------- | |
| (=) Market Value: | = | $169,590 | |
| (–) Productivity Loss: | – | $0 | |
| | | -------------------------- | |
| (=) Subtotal: | = | $169,590 | |
| (+) Senior Appraised Value: | + | $0 | |
| (+) Non-Senior Appraised Value: | + | $169,590 | |
| | | -------------------------- | |
| (=) Total Appraised Value: | = | $169,590 | |
| (–) Senior Exemption Loss: | – | $0 | |
| (–) Exemption Loss: | – | $0 | |
| | | -------------------------- | |
| (=) Taxable Value: | = | $169,590 | |
Taxing Jurisdiction
| Owner: | MARTINEZ BULMARO MAGANA & MARIA GUADALUPE | | |
| % Ownership: | 100.0000000000% | | |
| Total Value: | $169,590 | | |
| Tax Area: | 1 - OL-140-F |
| CERFD | CURRENT EXPENSE REFUND 010 | 0.0000000000 | $169,590 | $169,590 | $0.00 | | |
| CURREXP | CURRENT EXPENSE 010 | 1.0175366760 | $169,590 | $169,590 | $172.56 | | |
| HUMNSERV | HUMAN SERVICES 119 | 0.0250000000 | $169,590 | $169,590 | $4.24 | | |
| SLDREL | SOLDIERS RELIEF 121 | 0.0155990005 | $169,590 | $169,590 | $2.65 | | |
| EMERGSER | EMS 147 | 0.3792580840 | $169,590 | $169,590 | $64.32 | | |
| EMSRFD | EMS REFUND 147 | 0.0000000000 | $169,590 | $169,590 | $0.00 | | |
| PORTRFD | PORT REFUND 640 | 0.0000000000 | $169,590 | $169,590 | $0.00 | | |
| PORTWWGEN | PORT OF WW 640 | 0.2460186015 | $169,590 | $169,590 | $41.72 | | |
| SD140BOND | SD #140 BOND 764 | 0.8342371393 | $169,590 | $169,590 | $141.48 | | |
| SD140GEN | SD #140 GENERAL 760 | 2.0646500647 | $169,590 | $169,590 | $350.14 | | |
| ST2 | STATE SCHOOL PART 2 600 | 0.8131451643 | $169,590 | $169,590 | $137.90 | | |
| STATESCHL | STATE SCHOOL 600 | 1.5158548041 | $169,590 | $169,590 | $257.07 | | |
| STREFUND | STATE REFUND LEVY 603 | 0.0000000000 | $169,590 | $169,590 | $0.00 | | |
| CWWBOND | C OF WW BOND 643 | 0.2760494372 | $169,590 | $169,590 | $46.82 | | |
| CWWGEN | CITY OF WW 631 | 1.6100204973 | $169,590 | $169,590 | $273.04 | | |
| CWWRFD | CITY OF WALLA WALLA REFUND 631 | 0.0000000000 | $169,590 | $169,590 | $0.00 | | |
| | Total Tax Rate: | 8.7973694689 | | | | | |
| | | | | Taxes w/Current Exemptions: | $1,491.94 | | |
| | | | | Taxes w/o Exemptions: | $1,491.94 | | |
Improvement / Building
| Improvement #1: | RESIDENTIAL | State Code: | 11 | 1348.0 sqft | Value: | $77,620 |
| Exterior Wall: | VINYL | Heating/Cooling: | BASEBOARD ELECTRIC | | Number of Bathrooms: | 1 | Number of Bedrooms: | 2 | | Plumbing: | 7 | Roof Covering: | COMP SHINGLE |
|
| | Type | Description | Class CD | Sub Class CD | Year Built | Area |
| | MA | Main Area | 1 | 25 | 1882 | 1348.0 |
| | SI1 | SITE IMPROVEMENT | 1 | 25 | 1882 | 1.0 |
| | WDR | WOOD DECK W/ROOF | 1 | 25 | 1882 | 174.0 |
Sketch
Property Image
Land
| 1 | RES 1 | Converted: Residential | 0.2900 | 12633.00 | 0.00 | 0.00 | 1.00 | $91,970 | $0 |
Roll Value History
| 2026 | N/A | N/A | N/A | N/A | N/A |
| 2025 | $99,920 | $112,430 | $0 | $212,350 | $212,350 |
| 2024 | $77,620 | $91,970 | $0 | $169,590 | $169,590 |
| 2023 | $77,620 | $91,970 | $0 | $169,590 | $169,590 |
| 2022 | $77,620 | $73,900 | $0 | $151,520 | $151,520 |
| 2021 | $64,680 | $73,900 | $0 | $138,580 | $138,580 |
| 2020 | $53,900 | $73,900 | $0 | $127,800 | $127,800 |
| 2019 | $53,900 | $73,900 | $0 | $127,800 | $127,800 |
| 2018 | $78,410 | $49,400 | $0 | $127,810 | $127,810 |
| 2017 | $71,280 | $49,400 | $0 | $120,680 | $120,680 |
| 2016 | $64,800 | $49,400 | $0 | $114,200 | $114,200 |
| 2015 | $54,000 | $49,400 | $0 | $103,400 | $103,400 |
| 2014 | $72,000 | $49,400 | $0 | $121,400 | $121,400 |
| 2013 | $72,000 | $49,400 | $0 | $121,400 | $121,400 |
| 2012 | $72,600 | $49,400 | $0 | $0 | $0 |
| 2011 | $72,600 | $49,400 | $0 | $0 | $0 |
| 2010 | $72,600 | $49,400 | $0 | $0 | $0 |
| 2009 | $101,100 | $49,400 | $0 | $0 | $0 |
| 2008 | $101,100 | $49,400 | $0 | $0 | $0 |
| 2007 | $50,600 | $20,800 | $0 | $0 | $0 |
Deed and Sales History
| 1 | 05/16/2019 | SWD | STATUTORY WARRANTY DEED | GOMES ELISEU | MARTINEZ BULMARO MAGANA & MARIA GUADALUPE | | | $72,000.00 | 136893 | 2019-03283 |
| 2 | 11/01/2013 | WARRANTY D | WARRANTY DEED | SECRETARY OF HOUSING & URBAN D | GOMES, ELISEU | | | $65,000.00 | 124905 | 2013-10904 |
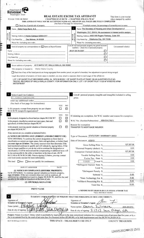
| 3 | 05/23/2013 | WARRANTY D | WARRANTY DEED | WELLS FARGO BANK NA | SECRETARY OF HOUSING & URBAN D | | | $127,307.00 | 124005 | 2013-05205 |
| 4 | 04/15/2013 | WARRANTY D | WARRANTY DEED | QUALITY LOAN SERIVCE CORP OF W | WELLS FARGO BANK NA | | | $127,307.00 | 123773 | 2013-03639 |
| 5 | 09/30/2002 | WARRANTY D | WARRANTY DEED | GUTIERREZ, ROGELIO | RUIZ, FRANCISCO | | | $72,000.00 | 100478 | 2002-11015 |
| 6 | 07/07/2000 | WARRANTY D | WARRANTY DEED | | | | | $50,000.00 | 95402 | 3000-006519 |
Payout Agreement
| No payout information available.. |