Property
Account |
| Property ID: | 35338 | Abbreviated Legal Description: | KENDALL VIEW ESTATES SECOND ADDN LOT 4 |
| Parcel Number: | 360733930004 | Agent Code: | |
| Type: | Real | | |
| Tax Area: | 101 - 140-4 | Land Use Code | 11 |
| Open Space: | N | DFL | N |
| Historic Property: | N | Remodel Property: | N |
| Multi-Family Redevelopment: | N | | |
| Township: | 7 | Section: | 33 |
| Range: | 36 |
Location |
| Address: | 292 DESTINY DR WA 99362 | Mapsco: | |
| Neighborhood: | VG Res Rural/City Inf | Map ID: | |
| Neighborhood CD: | 415012 |
Owner |
| Name: | WILEY JASON A & BETHANY D | Owner ID: | 54736 |
| Mailing Address: | 292 DESTINY DR WALLA WALLA, WA 99362 | % Ownership: | 100.0000000000% |
| | | Exemptions: | |
Taxes and Assessment Details
Values
| (+) Improvement Homesite Value: | + | $0 | |
| (+) Improvement Non-Homesite Value: | + | $752,460 | |
| (+) Land Homesite Value: | + | $0 | |
| (+) Land Non-Homesite Value: | + | $173,020 | |
| (+) Curr Use (HS): | + | $0 | $0 |
| (+) Curr Use (NHS): | + | $0 | $0 |
| | | -------------------------- | |
| (=) Market Value: | = | $925,480 | |
| (–) Productivity Loss: | – | $0 | |
| | | -------------------------- | |
| (=) Subtotal: | = | $925,480 | |
| (+) Senior Appraised Value: | + | $0 | |
| (+) Non-Senior Appraised Value: | + | $925,480 | |
| | | -------------------------- | |
| (=) Total Appraised Value: | = | $925,480 | |
| (–) Senior Exemption Loss: | – | $0 | |
| (–) Exemption Loss: | – | $0 | |
| | | -------------------------- | |
| (=) Taxable Value: | = | $925,480 | |
Taxing Jurisdiction
| Owner: | WILEY JASON A & BETHANY D | | |
| % Ownership: | 100.0000000000% | | |
| Total Value: | $925,480 | | |
| Tax Area: | 101 - 140-4 |
| CERFD | CURRENT EXPENSE REFUND 010 | 0.0000000000 | $925,480 | $925,480 | $0.00 | | |
| CURREXP | CURRENT EXPENSE 010 | 1.0175366760 | $925,480 | $925,480 | $941.71 | | |
| HUMNSERV | HUMAN SERVICES 119 | 0.0250000000 | $925,480 | $925,480 | $23.14 | | |
| SLDREL | SOLDIERS RELIEF 121 | 0.0155990005 | $925,480 | $925,480 | $14.44 | | |
| EMERGSER | EMS 147 | 0.3792580840 | $925,480 | $925,480 | $351.00 | | |
| EMSRFD | EMS REFUND 147 | 0.0000000000 | $925,480 | $925,480 | $0.00 | | |
| FD4EXP | FD #4 EXPENSE 686 | 0.8836993059 | $925,480 | $925,480 | $817.85 | | |
| RLBRFD | RURAL LIBRARY REFUND 623 | 0.0000000000 | $925,480 | $925,480 | $0.00 | | |
| RURALLIB | RURAL LIBRARY 623 | 0.3710609029 | $925,480 | $925,480 | $343.41 | | |
| PORTRFD | PORT REFUND 640 | 0.0000000000 | $925,480 | $925,480 | $0.00 | | |
| PORTWWGEN | PORT OF WW 640 | 0.2460186015 | $925,480 | $925,480 | $227.69 | | |
| SD140BOND | SD #140 BOND 764 | 0.8342371393 | $925,480 | $925,480 | $772.07 | | |
| SD140GEN | SD #140 GENERAL 760 | 2.0646500647 | $925,480 | $925,480 | $1,910.79 | | |
| ST2 | STATE SCHOOL PART 2 600 | 0.8131451643 | $925,480 | $925,480 | $752.55 | | |
| STATESCHL | STATE SCHOOL 600 | 1.5158548041 | $925,480 | $925,480 | $1,402.89 | | |
| STREFUND | STATE REFUND LEVY 603 | 0.0000000000 | $925,480 | $925,480 | $0.00 | | |
| COROAD | COUNTY ROAD 115 | 1.6549953990 | $925,480 | $925,480 | $1,531.67 | | |
| CRPRD | COUNTY ROAD REFUND 115 | 0.0000000000 | $925,480 | $925,480 | $0.00 | | |
| | Total Tax Rate: | 9.8210551422 | | | | | |
| | | | | Taxes w/Current Exemptions: | $9,089.21 | | |
| | | | | Taxes w/o Exemptions: | $9,089.21 | | |
Improvement / Building
| Improvement #1: | RESIDENTIAL | State Code: | 11 | 3281.0 sqft | Value: | $752,460 |
| Exterior Wall: | HARDBOARD | Heating/Cooling: | WARM & COOLED AIR | | Number of Bathrooms: | 3 | Number of Bedrooms: | 4 | | Plumbing: | 14 | Roof Covering: | COMP SHINGLE |
|
| | Type | Description | Class CD | Sub Class CD | Year Built | Area |
| | MA | Main Area | 4 | 50 | 2003 | 3281.0 |
| | GFP | GAS FIREPLACE | 4 | 50 | 0 | 1.0 |
| | SI1 | SITE IMPROVEMENT | 4 | 50 | 0 | 5.0 |
| | ATG | Attached Garage | 4 | 50 | 2003 | 805.0 |
| | RPC | OPEN PORCH W/ROOF , CEILED | 4 | 50 | 2003 | 328.0 |
| | UPFL | Upper Floor (included in main area) | 4 | 50 | 2003 | 1407.0 |
| | RPC | OPEN PORCH W/ROOF , CEILED | 4 | 50 | 2003 | 1037.0 |
| | S1F | Single One Story Fireplace | 4 | 50 | 2003 | 1.0 |
Sketch
Property Image
Land
| 1 | RES 1 | Converted: Residential | 1.1100 | 0.00 | 0.00 | 0.00 | 1.00 | $173,020 | $0 |
Roll Value History
| 2026 | N/A | N/A | N/A | N/A | N/A |
| 2025 | $752,460 | $173,020 | $0 | $925,480 | $925,480 |
| 2024 | $752,460 | $173,020 | $0 | $925,480 | $925,480 |
| 2023 | $752,460 | $173,020 | $0 | $925,480 | $925,480 |
| 2022 | $752,460 | $113,630 | $0 | $866,090 | $866,090 |
| 2021 | $537,470 | $113,630 | $0 | $651,100 | $651,100 |
| 2020 | $429,950 | $113,630 | $0 | $543,580 | $543,580 |
| 2019 | $429,950 | $113,630 | $0 | $543,580 | $543,580 |
| 2018 | $330,730 | $113,630 | $0 | $444,360 | $444,360 |
| 2017 | $330,730 | $113,630 | $0 | $444,360 | $444,360 |
| 2016 | $324,030 | $90,400 | $0 | $414,430 | $414,430 |
| 2015 | $324,030 | $90,400 | $0 | $414,430 | $414,430 |
| 2014 | $308,600 | $90,400 | $0 | $399,000 | $399,000 |
| 2013 | $308,600 | $90,400 | $0 | $399,000 | $399,000 |
| 2012 | $308,600 | $90,400 | $0 | $0 | $0 |
| 2011 | $288,800 | $120,400 | $0 | $0 | $0 |
| 2010 | $288,800 | $120,400 | $0 | $0 | $0 |
| 2009 | $312,600 | $120,400 | $0 | $0 | $0 |
| 2008 | $312,600 | $120,400 | $0 | $0 | $0 |
| 2007 | $232,300 | $44,700 | $0 | $0 | $0 |
Deed and Sales History
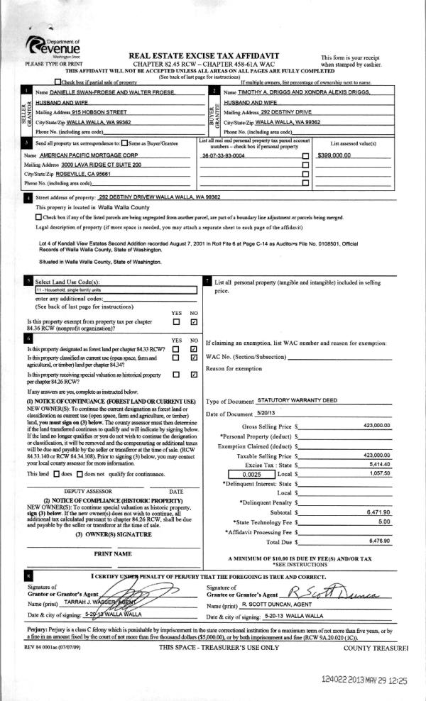
| 1 | 04/30/2014 | SWD | STATUTORY WARRANTY DEED | DRIGGS TIMOTHY A & XONDRA ALEXIS | WILEY JASON A & BETHANY D | | | $423,000.00 | 125804 | 2014-02933 |
| 2 | 05/29/2013 | WARRANTY D | WARRANTY DEED | FROESE, WALTER | DRIGGS, TIMOTHY A & XONDRA ALE | | | $423,000.00 | 124022 | 2013-05351 |
| 3 | 02/27/2008 | QCD | QUIT CLAIM DEED | SMYTH, DANIELLE SWAN | FROESE, WALTER | | | | 114585 | 2008-01731 |
| 4 | 01/27/2006 | WARRANTY D | WARRANTY DEED | SMYTH, JEFFREY D | SMYTH, DANIELLE SWAN | | | | 0 | CC #05-3-00200-4 |
| 5 | 09/07/2001 | WARRANTY D | WARRANTY DEED | | | | | $45,000.00 | 97992 | 3190-109783 |
Payout Agreement
| No payout information available.. |