Property
Account |
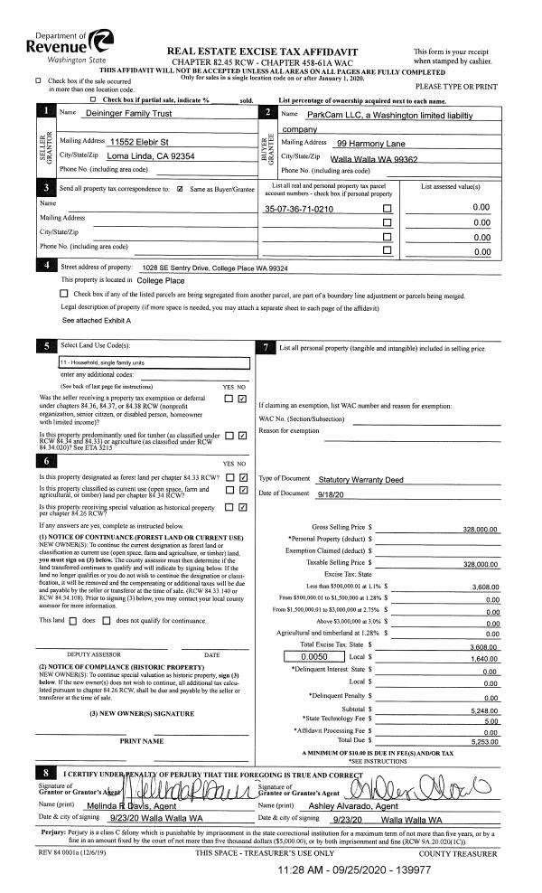
| Property ID: | 35314 | Abbreviated Legal Description: | GARRISON CRK HGTS #2 PHASE 1 LOT 10 BLK 2 |
| Parcel Number: | 350736710210 | Agent Code: | |
| Type: | Real | | |
| Tax Area: | 77 - CP-250-F | Land Use Code | 11 |
| Open Space: | N | DFL | N |
| Historic Property: | N | Remodel Property: | N |
| Multi-Family Redevelopment: | N | | |
| Township: | 7 | Section: | 36 |
| Range: | 35 |
Location |
| Address: | 1028 SE SENTRY DR WA 99324 | Mapsco: | |
| Neighborhood: | G SFR | Map ID: | |
| Neighborhood CD: | 114011 |
Owner |
| Name: | PARKCAM LLC | Owner ID: | 54345 |
| Mailing Address: | 935 SE SENTRY DR COLLEGE PLACE, WA 99324 | % Ownership: | 100.0000000000% |
| | | Exemptions: | |
Taxes and Assessment Details
Property Tax Information as of
02/21/2026
Click on "Statement Details" to expand or collapse a tax statement.
* Please enter a valid date ** Please enter a valid date *
Statement Details |
| | TOTAL: | $0.00 | $0.00 | $0.00 | $0.00 | $0.00 | $0.00 |
|
| | $0.00 | $0.00 | $0.00 | $0.00 | $0.00 | $0.00 |
Values
| (+) Improvement Homesite Value: | + | $0 | |
| (+) Improvement Non-Homesite Value: | + | $301,820 | |
| (+) Land Homesite Value: | + | $0 | |
| (+) Land Non-Homesite Value: | + | $75,000 | |
| (+) Curr Use (HS): | + | $0 | $0 |
| (+) Curr Use (NHS): | + | $0 | $0 |
| | | -------------------------- | |
| (=) Market Value: | = | $376,820 | |
| (–) Productivity Loss: | – | $0 | |
| | | -------------------------- | |
| (=) Subtotal: | = | $376,820 | |
| (+) Senior Appraised Value: | + | $0 | |
| (+) Non-Senior Appraised Value: | + | $376,820 | |
| | | -------------------------- | |
| (=) Total Appraised Value: | = | $376,820 | |
| (–) Senior Exemption Loss: | – | $0 | |
| (–) Exemption Loss: | – | $0 | |
| | | -------------------------- | |
| (=) Taxable Value: | = | $376,820 | |
Taxing Jurisdiction
| Owner: | PARKCAM LLC | | |
| % Ownership: | 100.0000000000% | | |
| Total Value: | $376,820 | | |
| Tax Area: | 77 - CP-250-F |
| CERFD | CURRENT EXPENSE REFUND 010 | 0.0000000000 | $376,820 | $376,820 | $0.00 | | |
| CURREXP | CURRENT EXPENSE 010 | 1.0175366760 | $376,820 | $376,820 | $383.43 | | |
| HUMNSERV | HUMAN SERVICES 119 | 0.0250000000 | $376,820 | $376,820 | $9.42 | | |
| SLDREL | SOLDIERS RELIEF 121 | 0.0155990005 | $376,820 | $376,820 | $5.88 | | |
| COLLPLBOND | C OF CP BOND 644 | 0.4374241808 | $376,820 | $376,820 | $164.83 | | |
| COLLPLGEN | CITY OF CP 632 | 1.4453819216 | $376,820 | $376,820 | $544.65 | | |
| EMERGSER | EMS 147 | 0.3792580840 | $376,820 | $376,820 | $142.91 | | |
| EMSRFD | EMS REFUND 147 | 0.0000000000 | $376,820 | $376,820 | $0.00 | | |
| RURALLIB | RURAL LIBRARY 623 | 0.3710609029 | $376,820 | $376,820 | $139.82 | | |
| PORTRFD | PORT REFUND 640 | 0.0000000000 | $376,820 | $376,820 | $0.00 | | |
| PORTWWGEN | PORT OF WW 640 | 0.2460186015 | $376,820 | $376,820 | $92.70 | | |
| SD250BOND | SD #250 BOND 773 | 1.4560608159 | $376,820 | $376,820 | $548.67 | | |
| SD250GEN | SD #250 GENERAL 770 | 2.3880724087 | $376,820 | $376,820 | $899.87 | | |
| ST2 | STATE SCHOOL PART 2 600 | 0.8131451643 | $376,820 | $376,820 | $306.41 | | |
| STATESCHL | STATE SCHOOL 600 | 1.5158548041 | $376,820 | $376,820 | $571.20 | | |
| STREFUND | STATE REFUND LEVY 603 | 0.0000000000 | $376,820 | $376,820 | $0.00 | | |
| | Total Tax Rate: | 10.1104125603 | | | | | |
| | | | | Taxes w/Current Exemptions: | $3,809.79 | | |
| | | | | Taxes w/o Exemptions: | $3,809.79 | | |
Improvement / Building
| Improvement #1: | RESIDENTIAL | State Code: | 11 | 1469.0 sqft | Value: | $301,820 |
| Exterior Wall: | PLYWOOD | Heating/Cooling: | REV-HEAT-PUMP-W/DUCT | | Number of Bathrooms: | 2 | Number of Bedrooms: | 3 | | Plumbing: | 9 | Roof Covering: | COMP SHINGLE |
|
| | Type | Description | Class CD | Sub Class CD | Year Built | Area |
| | MA | Main Area | 1 | 40 | 1994 | 1469.0 |
| | SI1 | SITE IMPROVEMENT | 1 | 40 | 1994 | 2.0 |
| | ATG | Attached Garage | 1 | 40 | 1994 | 506.0 |
| | WOD | Wood Deck | 1 | 40 | 1994 | 153.0 |
| | GFP | GAS FIREPLACE | 1 | 40 | 1994 | 1.0 |
| | RPC | OPEN PORCH W/ROOF , CEILED | 1 | 40 | 1994 | 66.0 |
Sketch
Property Image
Land
| 1 | RES 1 | Converted: Residential | 0.2253 | 9814.00 | 0.00 | 0.00 | 1.00 | $75,000 | $0 |
Roll Value History
| 2026 | N/A | N/A | N/A | N/A | N/A |
| 2025 | $256,550 | $140,000 | $0 | $396,550 | $396,550 |
| 2024 | $301,820 | $75,000 | $0 | $376,820 | $376,820 |
| 2023 | $301,820 | $75,000 | $0 | $376,820 | $376,820 |
| 2022 | $251,520 | $75,000 | $0 | $326,520 | $326,520 |
| 2021 | $239,540 | $75,000 | $0 | $314,540 | $314,540 |
| 2020 | $171,100 | $75,000 | $0 | $246,100 | $246,100 |
| 2019 | $181,100 | $65,000 | $0 | $246,100 | $246,100 |
| 2018 | $150,920 | $65,000 | $0 | $215,920 | $215,920 |
| 2017 | $150,920 | $65,000 | $0 | $215,920 | $215,920 |
| 2016 | $137,200 | $65,000 | $0 | $202,200 | $202,200 |
| 2015 | $137,200 | $65,000 | $0 | $202,200 | $202,200 |
| 2014 | $137,200 | $65,000 | $0 | $202,200 | $202,200 |
| 2013 | $137,200 | $65,000 | $0 | $202,200 | $202,200 |
| 2012 | $137,200 | $65,000 | $0 | $0 | $0 |
| 2011 | $137,200 | $65,000 | $0 | $0 | $0 |
| 2010 | $137,200 | $65,000 | $0 | $0 | $0 |
| 2009 | $147,800 | $65,000 | $0 | $0 | $0 |
| 2008 | $124,000 | $40,000 | $0 | $0 | $0 |
| 2007 | $124,000 | $40,000 | $0 | $0 | $0 |
Deed and Sales History
| 1 | 09/25/2020 | SWD | STATUTORY WARRANTY DEED | DEININGER FAMILY TRUST | PARKCAM LLC | | | $328,000.00 | 139977 | 2020-09799 |
| 2 | 04/27/2015 | SWD | STATUTORY WARRANTY DEED | HARMS ARTHUR E & J RUTH | DEININGER FAMILY TRUST | | | $210,000.00 | 127843 | 2015-03358 |
| 3 | 05/05/2004 | WARRANTY D | WARRANTY DEED | FOSTER, ALVA & ETHEL | HARMS, ARTHUR E & J RUTH | | | $169,900.00 | 104683 | 2004-04831 |
| 4 | 04/05/1994 | WARRANTY D | WARRANTY DEED | | | | | $147,394.00 | 81370 | 2189-404049 |
Payout Agreement
| No payout information available.. |