Property
Account |
| Property ID: | 35294 | Abbreviated Legal Description: | 28-7-36 TAX 138 |
| Parcel Number: | 360728220051 | Agent Code: | |
| Type: | Real | | |
| Tax Area: | 1 - OL-140-F | Land Use Code | 11 |
| Open Space: | N | DFL | N |
| Historic Property: | N | Remodel Property: | N |
| Multi-Family Redevelopment: | N | | |
| Township: | 7 | Section: | 28 |
| Range: | 36 |
Location |
| Address: | 528 CRAIG ST WA 99362 | Mapsco: | |
| Neighborhood: | G Res | Map ID: | |
| Neighborhood CD: | 614011 |
Owner |
| Name: | BAKER RYAN DAVID & ANASTASIA CELESTE | Owner ID: | 75203 |
| Mailing Address: | 6925 ARDMORE AVE SE SNOQUALMIE, WA 98065 | % Ownership: | 100.0000000000% |
| | | Exemptions: | |
Taxes and Assessment Details
Values
| (+) Improvement Homesite Value: | + | $0 | |
| (+) Improvement Non-Homesite Value: | + | $1,173,590 | |
| (+) Land Homesite Value: | + | $0 | |
| (+) Land Non-Homesite Value: | + | $113,850 | |
| (+) Curr Use (HS): | + | $0 | $0 |
| (+) Curr Use (NHS): | + | $0 | $0 |
| | | -------------------------- | |
| (=) Market Value: | = | $1,287,440 | |
| (–) Productivity Loss: | – | $0 | |
| | | -------------------------- | |
| (=) Subtotal: | = | $1,287,440 | |
| (+) Senior Appraised Value: | + | $0 | |
| (+) Non-Senior Appraised Value: | + | $1,287,440 | |
| | | -------------------------- | |
| (=) Total Appraised Value: | = | $1,287,440 | |
| (–) Senior Exemption Loss: | – | $0 | |
| (–) Exemption Loss: | – | $0 | |
| | | -------------------------- | |
| (=) Taxable Value: | = | $1,287,440 | |
Taxing Jurisdiction
| Owner: | BAKER RYAN DAVID & ANASTASIA CELESTE | | |
| % Ownership: | 100.0000000000% | | |
| Total Value: | $1,287,440 | | |
| Tax Area: | 1 - OL-140-F |
| CERFD | CURRENT EXPENSE REFUND 010 | 0.0000000000 | $1,287,440 | $1,287,440 | $0.00 | | |
| CURREXP | CURRENT EXPENSE 010 | 0.9851088983 | $1,287,440 | $1,287,440 | $1,268.27 | | |
| HUMNSERV | HUMAN SERVICES 119 | 0.0250000000 | $1,287,440 | $1,287,440 | $32.19 | | |
| SLDREL | SOLDIERS RELIEF 121 | 0.0155990000 | $1,287,440 | $1,287,440 | $20.08 | | |
| EMERGSER | EMS 147 | 0.3676811629 | $1,287,440 | $1,287,440 | $473.37 | | |
| EMSRFD | EMS REFUND 147 | 0.0000000000 | $1,287,440 | $1,287,440 | $0.00 | | |
| PORTRFD | PORT REFUND 640 | 0.0000000000 | $1,287,440 | $1,287,440 | $0.00 | | |
| PORTWWGEN | PORT OF WW 640 | 0.2344301070 | $1,287,440 | $1,287,440 | $301.81 | | |
| SD140BOND | SD #140 BOND 764 | 0.8032434458 | $1,287,440 | $1,287,440 | $1,034.13 | | |
| SD140CAP | SD #140 CAP 762 | 0.3840034221 | $1,287,440 | $1,287,440 | $494.38 | | |
| SD140GEN | SD #140 GENERAL 760 | 2.4999999996 | $1,287,440 | $1,287,440 | $3,218.60 | | |
| ST2 | STATE SCHOOL PART 2 600 | 0.8853714103 | $1,287,440 | $1,287,440 | $1,139.86 | | |
| STATESCHL | STATE SCHOOL 600 | 1.6424571473 | $1,287,440 | $1,287,440 | $2,114.57 | | |
| STREFUND | STATE REFUND LEVY 603 | 0.0000000000 | $1,287,440 | $1,287,440 | $0.00 | | |
| CWWBOND | C OF WW BOND 643 | 0.2642134255 | $1,287,440 | $1,287,440 | $340.16 | | |
| CWWGEN | CITY OF WW 631 | 1.6110494978 | $1,287,440 | $1,287,440 | $2,074.13 | | |
| CWWRFD | CITY OF WALLA WALLA REFUND 631 | 0.0000000000 | $1,287,440 | $1,287,440 | $0.00 | | |
| | Total Tax Rate: | 9.7181575166 | | | | | |
| | | | | Taxes w/Current Exemptions: | $12,511.55 | | |
| | | | | Taxes w/o Exemptions: | $12,511.55 | | |
Improvement / Building
| Improvement #1: | RESIDENTIAL | State Code: | 11 | 3586.0 sqft | Value: | $1,173,590 |
| Exterior Wall: | SIDING | Heating/Cooling: | WARM & COOLED AIR | | Number of Bathrooms: | 3 | Number of Bedrooms: | 3 | | Plumbing: | 17 | Roof Covering: | COMP SHINGLE |
|
| | Type | Description | Class CD | Sub Class CD | Year Built | Area |
| | MA | Main Area | 4 | 50 | 1946 | 2392.0 |
| | UPFL | Upper Floor (included in main area) | 4 | 50 | 1946 | 766.0 |
| | SI1 | SITE IMPROVEMENT | 4 | 50 | 1946 | 12.0 |
| | BASE | BASEMENT | 4 | 50 | 1946 | 1026.0 |
| | BPF | BASEMENT -PARTITIONED FINISH | 4 | 50 | 1946 | 786.0 |
| | D2F | Double 2 Story Fireplace | 4 | 50 | 1946 | 1.0 |
| | S1F | Single One Story Fireplace | 4 | 50 | 1946 | 1.0 |
| | GFP | GAS FIREPLACE | 4 | 50 | 1946 | 1.0 |
| | APP | APPLIANCE ALLOWANCE | 4 | 50 | 1946 | 2.0 |
| | PRC | PORCH W STEPS, ROOF,CEILED | 4 | 50 | 2011 | 648.0 |
| | ATG | Attached Garage | 4 | 50 | 1946 | 1194.0 |
| | MINI-SPLIT | MINI-SPLIT HEAT PUMPS | * | 50 | 1946 | 1194.0 |
Sketch
Property Image
Land
| 1 | RES 1 | Converted: Residential | 0.3600 | 15681.00 | 0.00 | 0.00 | 1.00 | $113,850 | $0 |
Roll Value History
| 2026 | N/A | N/A | N/A | N/A | N/A |
| 2025 | $1,173,590 | $113,850 | $0 | $1,287,440 | $1,287,440 |
| 2024 | $886,000 | $123,570 | $0 | $1,009,570 | $1,009,570 |
| 2023 | $631,890 | $123,570 | $0 | $755,460 | $755,460 |
| 2022 | $631,890 | $101,460 | $0 | $733,350 | $733,350 |
| 2021 | $601,800 | $101,460 | $0 | $703,260 | $703,260 |
| 2020 | $523,300 | $101,460 | $0 | $624,760 | $624,760 |
| 2019 | $523,300 | $101,460 | $0 | $624,760 | $624,760 |
| 2018 | $484,880 | $52,000 | $0 | $536,880 | $536,880 |
| 2017 | $484,880 | $52,000 | $0 | $536,880 | $536,880 |
| 2016 | $484,880 | $52,000 | $0 | $536,880 | $536,880 |
| 2015 | $484,880 | $52,000 | $0 | $536,880 | $536,880 |
| 2014 | $440,800 | $52,000 | $0 | $492,800 | $492,800 |
| 2013 | $440,800 | $52,000 | $0 | $492,800 | $492,800 |
| 2012 | $270,500 | $52,000 | $0 | $0 | $0 |
| 2011 | $259,500 | $52,000 | $0 | $0 | $0 |
| 2010 | $259,500 | $52,000 | $0 | $0 | $0 |
| 2009 | $294,100 | $52,000 | $0 | $0 | $0 |
| 2008 | $294,100 | $52,000 | $0 | $0 | $0 |
| 2007 | $202,000 | $29,500 | $0 | $0 | $0 |
Deed and Sales History
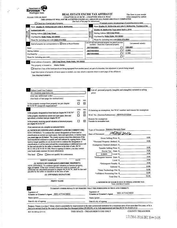
| 1 | 04/25/2024 | SWD | STATUTORY WARRANTY DEED | MC MURCHIE BRADLEY M TRUST | BAKER RYAN DAVID & ANASTASIA CELESTE | | 3-PARCLES | $1,370,000.00 | 147448 | 2024-02100 |
|   | |
| 2 | 10/28/2016 | SWD | STATUTORY WARRANTY DEED | MC MURCHIE BRADLEY M & JULIA S | MC MURCHIE BRADLEY M TRUST | | | $0.00 | 131566 | 2016-10084 |
| 3 | 05/14/2013 | WARRANTY D | WARRANTY DEED | HANSON GARY K & TERRI A | MC MURCHIE BRADLEY M & JULIA S | 3-PARCELS | | $545,000.00 | 123957 | 2013-04809 |
|   | |
| 4 | 10/28/1997 | WARRANTY D | WARRANTY DEED | | | | | | 89218 | 2589-710455 |
Payout Agreement
| No payout information available.. |