Property
Account |
| Property ID: | 35262 | Abbreviated Legal Description: | 6-7-36 (ESTATE #3 OF SURVEY) NE1/4NE1/4 LESS NLY PTNS; SELY PTNNW1/4NE1/4 |
| Parcel Number: | 360706110002 | Agent Code: | |
| Type: | Real | | |
| Tax Area: | 100 - 140-8 | Land Use Code | 83 |
| Open Space: | Y | DFL | N |
| Historic Property: | N | Remodel Property: | N |
| Multi-Family Redevelopment: | N | | |
| Township: | 7 | Section: | 6 |
| Range: | 36 |
Location |
| Address: | WA 99362 | Mapsco: | |
| Neighborhood: | 0 Farm | Map ID: | |
| Neighborhood CD: | 3230 |
Owner |
| Name: | BUSINESS GROWTH CAPITAL LLC | Owner ID: | 52584 |
| Mailing Address: | 18881 VON KARMAN AVE STE 1050 IRVINE, CA 92612 | % Ownership: | 100.0000000000% |
| | | Exemptions: | |
Taxes and Assessment Details
Property Tax Information as of
02/21/2026
Click on "Statement Details" to expand or collapse a tax statement.
* Please enter a valid date ** Please enter a valid date *
Statement Details |
| | TOTAL: | $0.00 | $0.00 | $0.00 | $0.00 | $0.00 | $0.00 |
|
| | $0.00 | $0.00 | $0.00 | $0.00 | $0.00 | $0.00 |
Values
| (+) Improvement Homesite Value: | + | $0 | |
| (+) Improvement Non-Homesite Value: | + | $216,000 | |
| (+) Land Homesite Value: | + | $0 | |
| (+) Land Non-Homesite Value: | + | $0 | |
| (+) Curr Use (HS): | + | $0 | $0 |
| (+) Curr Use (NHS): | + | $214,320 | $43,840 |
| | | -------------------------- | |
| (=) Market Value: | = | $430,320 | |
| (–) Productivity Loss: | – | $170,480 | |
| | | -------------------------- | |
| (=) Subtotal: | = | $259,840 | |
| (+) Senior Appraised Value: | + | $0 | |
| (+) Non-Senior Appraised Value: | + | $259,840 | |
| | | -------------------------- | |
| (=) Total Appraised Value: | = | $259,840 | |
| (–) Senior Exemption Loss: | – | $0 | |
| (–) Exemption Loss: | – | $0 | |
| | | -------------------------- | |
| (=) Taxable Value: | = | $259,840 | |
Taxing Jurisdiction
| Owner: | BUSINESS GROWTH CAPITAL LLC | | |
| % Ownership: | 100.0000000000% | | |
| Total Value: | $430,320 | | |
| Tax Area: | 100 - 140-8 |
| CERFD | CURRENT EXPENSE REFUND 010 | 0.0000000000 | $259,840 | $259,840 | $0.00 | | |
| CURREXP | CURRENT EXPENSE 010 | 0.9851088983 | $259,840 | $259,840 | $255.97 | | |
| HUMNSERV | HUMAN SERVICES 119 | 0.0250000000 | $259,840 | $259,840 | $6.50 | | |
| SLDREL | SOLDIERS RELIEF 121 | 0.0155990000 | $259,840 | $259,840 | $4.05 | | |
| EMERGSER | EMS 147 | 0.3676811629 | $259,840 | $259,840 | $95.54 | | |
| EMSRFD | EMS REFUND 147 | 0.0000000000 | $259,840 | $259,840 | $0.00 | | |
| FD8EXP | FD #8 EXPENSE 697 | 1.0864716428 | $259,840 | $259,840 | $282.31 | | |
| RLBRFD | RURAL LIBRARY REFUND 623 | 0.0000000000 | $259,840 | $259,840 | $0.00 | | |
| RURALLIB | RURAL LIBRARY 623 | 0.3601547782 | $259,840 | $259,840 | $93.58 | | |
| PORTRFD | PORT REFUND 640 | 0.0000000000 | $259,840 | $259,840 | $0.00 | | |
| PORTWWGEN | PORT OF WW 640 | 0.2344301070 | $259,840 | $259,840 | $60.91 | | |
| SD140BOND | SD #140 BOND 764 | 0.8032434458 | $259,840 | $259,840 | $208.71 | | |
| SD140CAP | SD #140 CAP 762 | 0.3840034221 | $259,840 | $259,840 | $99.78 | | |
| SD140GEN | SD #140 GENERAL 760 | 2.4999999996 | $259,840 | $259,840 | $649.60 | | |
| ST2 | STATE SCHOOL PART 2 600 | 0.8853714103 | $259,840 | $259,840 | $230.05 | | |
| STATESCHL | STATE SCHOOL 600 | 1.6424571473 | $259,840 | $259,840 | $426.78 | | |
| STREFUND | STATE REFUND LEVY 603 | 0.0000000000 | $259,840 | $259,840 | $0.00 | | |
| COROAD | COUNTY ROAD 115 | 1.6137667997 | $259,840 | $259,840 | $419.32 | | |
| CRPRD | COUNTY ROAD REFUND 115 | 0.0000000000 | $259,840 | $259,840 | $0.00 | | |
| | Total Tax Rate: | 10.9032878140 | | | | | |
| | | | | Taxes w/Current Exemptions: | $2,833.10 | | |
| | | | | Taxes w/o Exemptions: | $2,833.10 | | |
Improvement / Building
| Improvement #1: | PERM CROP | State Code: | 83 | 0.0 sqft | Value: | $216,000 |
| Improvement #2: | RESIDENTIAL | State Code: | 83 | 0.0 sqft | Value: | $0 |
Sketch
| No sketches available for this property. |
Property Image
Land
| 1 | WASTE | Waste | 1.0000 | 0.00 | 0.00 | 0.00 | 1.00 | $0 | $0 |
| 2 | 75-C1 | Class 1 75 BU | 9.1100 | 0.00 | 0.00 | 0.00 | 1.00 | $19,320 | $6,550 |
| 3 | C1-I | Class 1 Irrigated | 30.0000 | 0.00 | 0.00 | 0.00 | 1.00 | $195,000 | $37,290 |
Roll Value History
| 2026 | N/A | N/A | N/A | N/A | N/A |
| 2025 | $216,000 | $214,320 | $43,840 | $259,840 | $259,840 |
| 2024 | $216,000 | $207,580 | $45,040 | $261,040 | $261,040 |
| 2023 | $216,000 | $201,130 | $45,120 | $261,120 | $261,120 |
| 2022 | $216,000 | $181,950 | $43,480 | $259,480 | $259,480 |
| 2021 | $216,000 | $165,580 | $44,170 | $260,170 | $260,170 |
| 2020 | $216,000 | $134,520 | $45,150 | $261,150 | $261,150 |
| 2019 | $216,000 | $118,900 | $46,500 | $262,500 | $262,500 |
| 2018 | $105,300 | $115,840 | $48,220 | $153,520 | $153,520 |
| 2017 | $105,300 | $115,260 | $49,610 | $154,910 | $154,910 |
| 2016 | $105,300 | $115,260 | $49,800 | $155,100 | $155,100 |
| 2015 | $105,300 | $103,160 | $45,120 | $150,420 | $150,420 |
| 2014 | $0 | $103,160 | $45,240 | $45,240 | $45,240 |
| 2013 | $0 | $53,500 | $26,900 | $26,900 | $26,900 |
| 2012 | $0 | $18,300 | $0 | $0 | $0 |
| 2011 | $0 | $18,400 | $0 | $0 | $0 |
| 2010 | $0 | $17,100 | $0 | $0 | $0 |
| 2009 | $0 | $17,300 | $0 | $0 | $0 |
| 2008 | $0 | $15,200 | $0 | $0 | $0 |
| 2007 | $0 | $53,500 | $0 | $0 | $0 |
Deed and Sales History
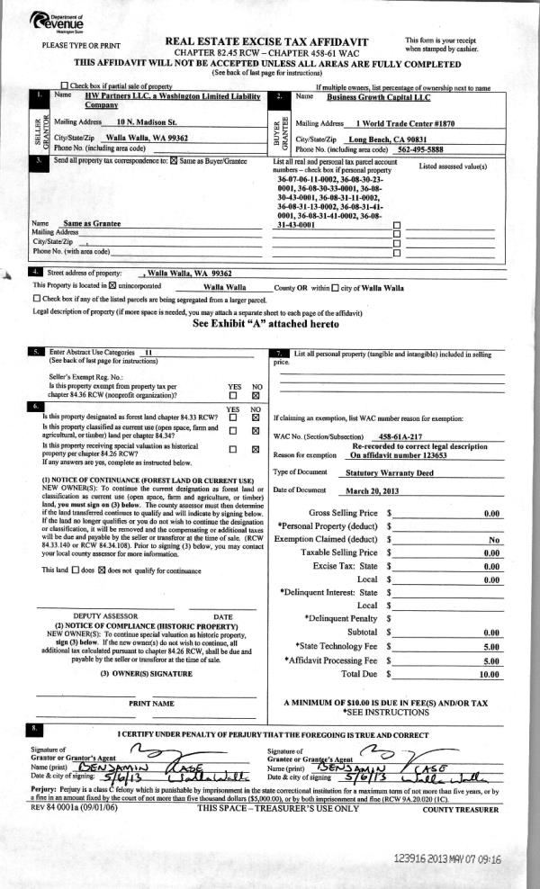
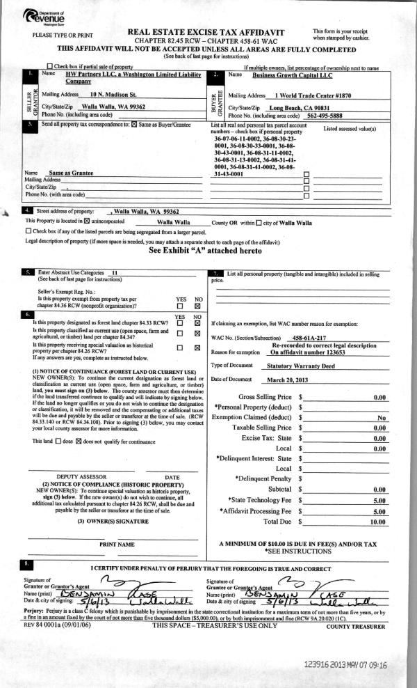
| 1 | 05/07/2013 | WARRANTY D | WARRANTY DEED | HW PARTNERS LLC | | 9-PARCELS | | $2,300,000.00 | 123916 | 2013-04528 |
|   | |
| 2 | 03/22/2013 | WARRANTY D | WARRANTY DEED | HW PARTNERS LLC | BUSINESS GROWTH CAPITAL LLC | 8-PARCELS | | $2,300,000.00 | 123653 | 2013-02731 |
|   | |
| 3 | 12/12/2007 | WARRANTY D | WARRANTY DEED | BERGEVIN, GARY | HW PARTNERS LLC | | | $985,769.00 | 114213 | 2007-14128 |
|   | |
Payout Agreement
| No payout information available.. |