| 1 | 02/15/2024 | QCD | QUIT CLAIM DEED | GUSTAVSEN ERIC R & DIANE L | GUSTAVSEN ERIC & DIANE FAMILY TRUST | | | | 147151 | 224-00803 |
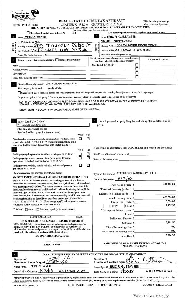
| 2 | 08/31/2018 | SWD | STATUTORY WARRANTY DEED | WYLIE ZEPH G & SHAILA J | GUSTAVSEN ERIC R & DIANE L | | | $455,000.00 | 135461 | 2018-07256 |
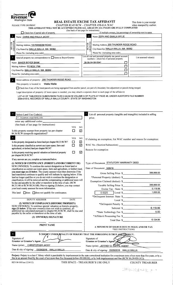
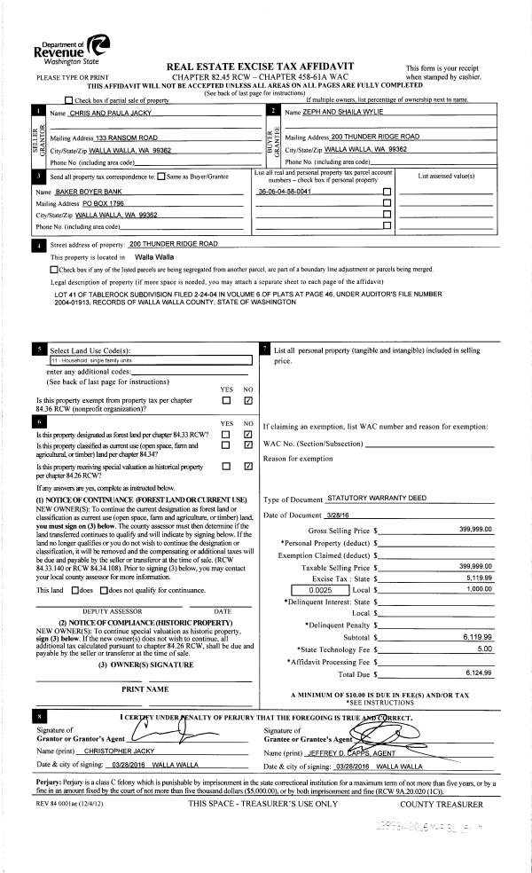
| 3 | 03/31/2016 | SWD | STATUTORY WARRANTY DEED | JACKY CHRISTOPHER P & PAULA | WYLIE ZEPH G & SHAILA J | | | $399,999.00 | 129924 | 2016-02363 |
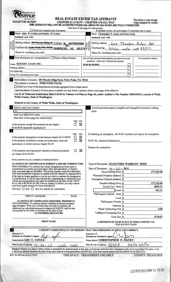
| 4 | 05/14/2013 | WARRANTY D | WARRANTY DEED | CONLEY, JOHN W JR & SANDRA D | JACKY, CHRISTOPHER P & PAULA | | | $377,325.00 | 123959 | 2013-04820 |
| 5 | 04/29/2008 | WARRANTY D | WARRANTY DEED | HYMAS, TERRELL D & CAROLYN T | CONLEY, JOHN W JR & SANDRA D | | | $429,000.00 | 114926 | 2008-04242 |
| 6 | 03/03/2004 | WARRANTY D | WARRANTY DEED | GATEWOOD, W PAUL | HYMAS, TERRELL D & CAROLYN T | | | $56,000.00 | 104182 | 2004-02274 |