Property
Account |
| Property ID: | 35239 | Abbreviated Legal Description: | HANSON'S (SURVEY 2018-09429) LOT 5 BLK 3 |
| Parcel Number: | 330734540317 | Agent Code: | |
| Type: | Real | | |
| Tax Area: | 323 - 300-6-TM | Land Use Code | 11 |
| Open Space: | N | DFL | N |
| Historic Property: | N | Remodel Property: | N |
| Multi-Family Redevelopment: | N | | |
| Township: | 7 | Section: | 34 |
| Range: | 33 |
Location |
| Address: | 85 SECOND ST WA 99360 | Mapsco: | |
| Neighborhood: | A Touchet/Lowden MH | Map ID: | |
| Neighborhood CD: | 213661 |
Owner |
| Name: | EMINETH ANTHONY | Owner ID: | 65664 |
| Mailing Address: | RICHARD J & LORRAINE EMINETH 85 SECOND ST TOUCHET, WA 99360 | % Ownership: | 100.0000000000% |
| | | Exemptions: | |
Taxes and Assessment Details
Values
| (+) Improvement Homesite Value: | + | $0 | |
| (+) Improvement Non-Homesite Value: | + | $196,050 | |
| (+) Land Homesite Value: | + | $0 | |
| (+) Land Non-Homesite Value: | + | $30,000 | |
| (+) Curr Use (HS): | + | $0 | $0 |
| (+) Curr Use (NHS): | + | $0 | $0 |
| | | -------------------------- | |
| (=) Market Value: | = | $226,050 | |
| (–) Productivity Loss: | – | $0 | |
| | | -------------------------- | |
| (=) Subtotal: | = | $226,050 | |
| (+) Senior Appraised Value: | + | $0 | |
| (+) Non-Senior Appraised Value: | + | $226,050 | |
| | | -------------------------- | |
| (=) Total Appraised Value: | = | $226,050 | |
| (–) Senior Exemption Loss: | – | $0 | |
| (–) Exemption Loss: | – | $0 | |
| | | -------------------------- | |
| (=) Taxable Value: | = | $226,050 | |
Taxing Jurisdiction
| Owner: | EMINETH ANTHONY | | |
| % Ownership: | 100.0000000000% | | |
| Total Value: | $226,050 | | |
| Tax Area: | 323 - 300-6-TM |
| CERFD | CURRENT EXPENSE REFUND 010 | 0.0000000000 | $226,050 | $226,050 | $0.00 | | |
| CURREXP | CURRENT EXPENSE 010 | 1.0175366760 | $226,050 | $226,050 | $230.01 | | |
| HUMNSERV | HUMAN SERVICES 119 | 0.0250000000 | $226,050 | $226,050 | $5.65 | | |
| SLDREL | SOLDIERS RELIEF 121 | 0.0155990005 | $226,050 | $226,050 | $3.53 | | |
| EMERGSER | EMS 147 | 0.3792580840 | $226,050 | $226,050 | $85.73 | | |
| EMSRFD | EMS REFUND 147 | 0.0000000000 | $226,050 | $226,050 | $0.00 | | |
| FD6EXP | FD #6 EXPENSE 693 | 0.6692985746 | $226,050 | $226,050 | $151.29 | | |
| RLBRFD | RURAL LIBRARY REFUND 623 | 0.0000000000 | $226,050 | $226,050 | $0.00 | | |
| RURALLIB | RURAL LIBRARY 623 | 0.3710609029 | $226,050 | $226,050 | $83.88 | | |
| PORTRFD | PORT REFUND 640 | 0.0000000000 | $226,050 | $226,050 | $0.00 | | |
| PORTWWGEN | PORT OF WW 640 | 0.2460186015 | $226,050 | $226,050 | $55.61 | | |
| SD300BOND | SD #300 BOND 783 | 1.8964951620 | $226,050 | $226,050 | $428.70 | | |
| SD300GEN | SD #300 GENERAL 780 | 2.1198322866 | $226,050 | $226,050 | $479.19 | | |
| ST2 | STATE SCHOOL PART 2 600 | 0.8131451643 | $226,050 | $226,050 | $183.81 | | |
| STATESCHL | STATE SCHOOL 600 | 1.5158548041 | $226,050 | $226,050 | $342.66 | | |
| STREFUND | STATE REFUND LEVY 603 | 0.0000000000 | $226,050 | $226,050 | $0.00 | | |
| COROAD | COUNTY ROAD 115 | 1.6549953990 | $226,050 | $226,050 | $374.11 | | |
| CRPRD | COUNTY ROAD REFUND 115 | 0.0000000000 | $226,050 | $226,050 | $0.00 | | |
| | Total Tax Rate: | 10.7240946555 | | | | | |
| | | | | Taxes w/Current Exemptions: | $2,424.17 | | |
| | | | | Taxes w/o Exemptions: | $2,424.17 | | |
Improvement / Building
| Improvement #1: | MANUFACTURED HOME | State Code: | 11 | 1394.0 sqft | Value: | $196,050 |
| Exterior Wall: | CEMENT FIBER | Heating/Cooling: | WARM & COOLED AIR | | Number of Bathrooms: | 2 | Number of Bedrooms: | 3 | | Plumbing: | 10 | Roof Covering: | COMP SHINGLE |
|
| | Type | Description | Class CD | Sub Class CD | Year Built | Area |
| | MOBHOME | MANUFACTURD HOMES | 1 | 40 | 2019 | 1394.0 |
| | MI1 | MH SET-UP COSTS | 1 | 40 | 2019 | 1.0 |
| | RPC | OPEN PORCH W/ROOF , CEILED | 1 | 40 | 2019 | 58.0 |
| | CPC | COVERED CARPORT/PATIO | 1 | 40 | 2019 | 20.0 |
| | UTST | Utility Storage Shed | 1 | 40 | 2019 | 48.0 |
Sketch
Property Image
Land
| 1 | RES 1 | Converted: Residential | 0.1148 | 5000.00 | 0.00 | 0.00 | 1.00 | $30,000 | $0 |
Roll Value History
| 2026 | N/A | N/A | N/A | N/A | N/A |
| 2025 | $254,870 | $30,000 | $0 | $284,870 | $284,870 |
| 2024 | $196,050 | $30,000 | $0 | $226,050 | $226,050 |
| 2023 | $196,050 | $30,000 | $0 | $226,050 | $226,050 |
| 2022 | $186,710 | $30,000 | $0 | $216,710 | $216,710 |
| 2021 | $169,740 | $30,000 | $0 | $199,740 | $199,740 |
| 2020 | $160,900 | $15,000 | $0 | $175,900 | $175,900 |
| 2019 | $160,900 | $15,000 | $0 | $175,900 | $175,900 |
| 2018 | $0 | $15,000 | $0 | $15,000 | $15,000 |
| 2017 | $0 | $15,000 | $0 | $15,000 | $0 |
| 2016 | $0 | $15,000 | $0 | $15,000 | $0 |
| 2015 | $0 | $15,000 | $0 | $15,000 | $0 |
| 2014 | $0 | $15,000 | $0 | $15,000 | $0 |
| 2013 | $32,200 | $15,000 | $0 | $47,200 | $0 |
| 2012 | $32,200 | $15,000 | $0 | $0 | $0 |
| 2011 | $32,200 | $15,000 | $0 | $0 | $0 |
| 2010 | $32,200 | $15,000 | $0 | $0 | $0 |
| 2009 | $31,200 | $7,500 | $0 | $0 | $0 |
| 2008 | $32,200 | $15,000 | $0 | $0 | $0 |
Deed and Sales History
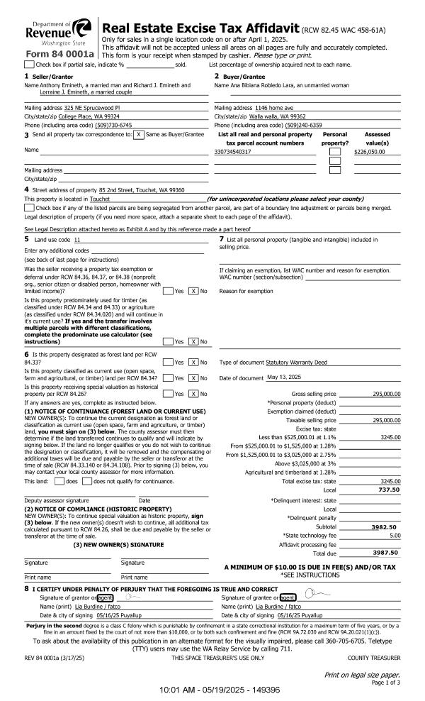
| 1 | 05/19/2025 | SWD | STATUTORY WARRANTY DEED | EMINETH ANTHONY | LARA ANA BIBIANA ROBLEDO | | | $295,000.00 | 149396 | 2025-02733 |
| 2 | 07/31/2019 | SWD | STATUTORY WARRANTY DEED | DUNNING RONALD W & DANA M | EMINETH ANTHONY | | | $210,000.00 | 137402 | 2019-05656 |
| 3 | 11/14/2018 | SURVEY | SURVEY | | | 13 | 114 | | 0 | 2018-09429 |
| 4 | 02/12/2018 | SWD | STATUTORY WARRANTY DEED | WALLA WALLA COUNTY RURAL LIBRARY | DUNNING RONALD W & DANA M | | 2-PARCELS | $50,000.00 | 134146 | 2018-01227 |
|   | |
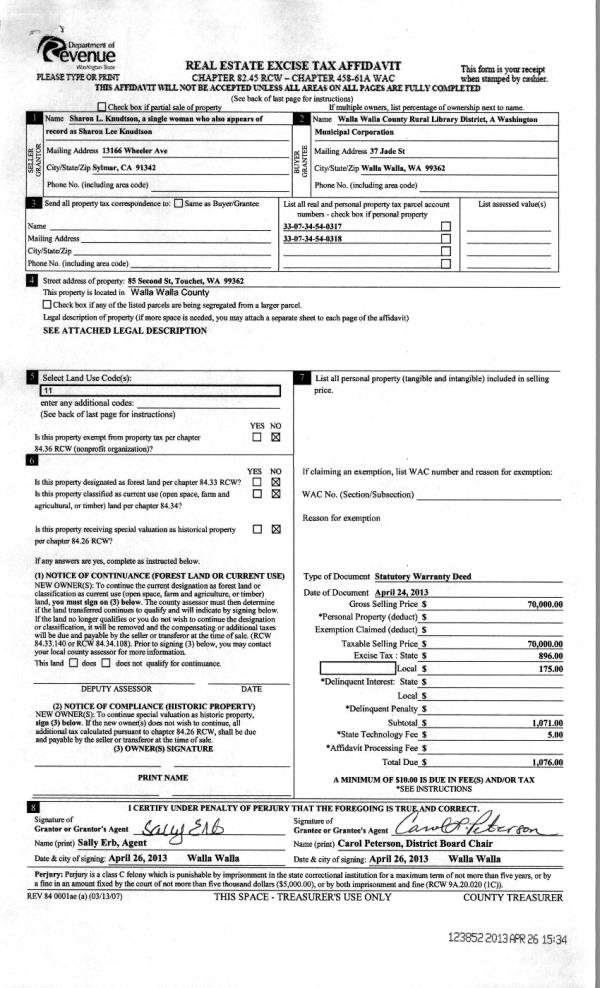
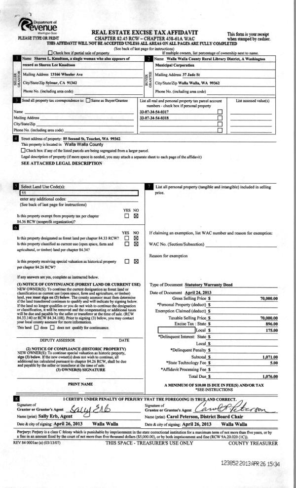
| 5 | 04/26/2013 | WARRANTY D | WARRANTY DEED | KNUDTSON, SHARON L | WALLA WALLA COUNTY RURAL LIBRA | | | $70,000.00 | 123852 | 2013-04107 |
|   | |
| 6 | 04/15/2010 | WARRANTY D | WARRANTY DEED | FISHER, ARLIE M ESTATE OF | KNUDTSON, SHARON L | | | | 118345 | 2010-02990 |
Payout Agreement
| No payout information available.. |