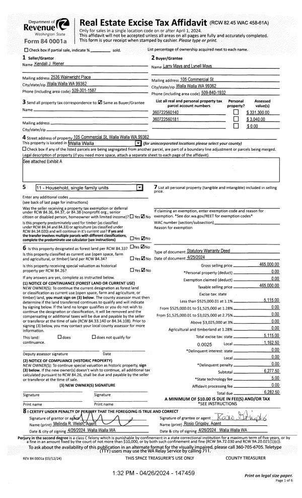
| 1 | 04/26/2024 | SWD | STATUTORY WARRANTY DEED | RIENER KENDALL J | MAYS LARRY & LYNELL | | 2-PARCELS | $465,000.00 | 147459 | 2024-02147 |
|   | |
| 2 | 07/29/2013 | QCD | QUIT CLAIM DEED | RIENER, DANIEL J | RIENER, KENDALL J | 2-PARCELS | | $0.00 | 124359 | 2013-07673 |
| 3 | 07/29/2013 | WARRANTY D | WARRANTY DEED | FEDERAL HOME LOAN MORTGAGE COR | RIENER KENDALL J | 2-PARCELS | | $174,900.00 | 124358 | 2013-07672 |
|   | |
| 4 | 04/16/2013 | TRUSTEES D | TRUSTEE'S DEED | NORTHWEST TRUSTEE SERVICES INC | FEDERAL HOME LOAN MORTGAGE COR | 2-PARCLES | | $165,960.00 | 123783 | 2013-03673 |
|   | |
| 5 | 08/30/2005 | WARRANTY D | WARRANTY DEED | WEICHMAN, PAULINE SUE | CATLETT, DAVID C & DONNA R | | | | 108134 | 2005-10719 |
| 6 | 08/03/2005 | WARRANTY D | WARRANTY DEED | WEICHMAN, PAULINE SUE | CATLETT DAVID C & DONNA R | | | $185,500.00 | 108135 | 2005-09561 |
|   | |
| 7 | 03/11/2005 | WARRANTY D | WARRANTY DEED | WEICHMAN, STEVE ESTATE OF | WEICHMAN, PAULINE SUE | | | | 106970 | 2005-02768 |
| 8 | 06/08/2001 | WARRANTY D | WARRANTY DEED | | | | | $132,000.00 | 97329 | 3140-105961 |
|   | |