Property
Account |
| Property ID: | 35219 | Abbreviated Legal Description: | GRAND RIDGE SUBDIVISION LOT 4 |
| Parcel Number: | 340603510004 | Agent Code: | |
| Type: | Real | | |
| Tax Area: | 113 - 140-6 | Land Use Code | 11 |
| Open Space: | N | DFL | N |
| Historic Property: | N | Remodel Property: | N |
| Multi-Family Redevelopment: | N | | |
| Township: | 6 | Section: | 3 |
| Range: | 34 |
Location |
| Address: | 24 NIGHTSTAR PL WA 99360 | Mapsco: | |
| Neighborhood: | G TOUCHET/LOWDEN SFR RURAL | Map ID: | |
| Neighborhood CD: | 214613 |
Owner |
| Name: | SWEET STEPHANIE & WILLIAM TYLER | Owner ID: | 71378 |
| Mailing Address: | 24 NIGHTSTAR PL TOUCHET, WA 99360 | % Ownership: | 100.0000000000% |
| | | Exemptions: | |
Taxes and Assessment Details
Values
| (+) Improvement Homesite Value: | + | $0 | |
| (+) Improvement Non-Homesite Value: | + | $747,970 | |
| (+) Land Homesite Value: | + | $0 | |
| (+) Land Non-Homesite Value: | + | $92,860 | |
| (+) Curr Use (HS): | + | $0 | $0 |
| (+) Curr Use (NHS): | + | $0 | $0 |
| | | -------------------------- | |
| (=) Market Value: | = | $840,830 | |
| (–) Productivity Loss: | – | $0 | |
| | | -------------------------- | |
| (=) Subtotal: | = | $840,830 | |
| (+) Senior Appraised Value: | + | $0 | |
| (+) Non-Senior Appraised Value: | + | $840,830 | |
| | | -------------------------- | |
| (=) Total Appraised Value: | = | $840,830 | |
| (–) Senior Exemption Loss: | – | $0 | |
| (–) Exemption Loss: | – | $0 | |
| | | -------------------------- | |
| (=) Taxable Value: | = | $840,830 | |
Taxing Jurisdiction
| Owner: | SWEET STEPHANIE & WILLIAM TYLER | | |
| % Ownership: | 100.0000000000% | | |
| Total Value: | $840,830 | | |
| Tax Area: | 113 - 140-6 |
| CERFD | CURRENT EXPENSE REFUND 010 | 0.0000000000 | $840,830 | $840,830 | $0.00 | | |
| CURREXP | CURRENT EXPENSE 010 | 0.9851088983 | $840,830 | $840,830 | $828.31 | | |
| HUMNSERV | HUMAN SERVICES 119 | 0.0250000000 | $840,830 | $840,830 | $21.02 | | |
| SLDREL | SOLDIERS RELIEF 121 | 0.0155990000 | $840,830 | $840,830 | $13.12 | | |
| EMERGSER | EMS 147 | 0.3676811629 | $840,830 | $840,830 | $309.16 | | |
| EMSRFD | EMS REFUND 147 | 0.0000000000 | $840,830 | $840,830 | $0.00 | | |
| FD6EXP | FD #6 EXPENSE 693 | 0.6637564225 | $840,830 | $840,830 | $558.11 | | |
| RLBRFD | RURAL LIBRARY REFUND 623 | 0.0000000000 | $840,830 | $840,830 | $0.00 | | |
| RURALLIB | RURAL LIBRARY 623 | 0.3601547782 | $840,830 | $840,830 | $302.83 | | |
| PORTRFD | PORT REFUND 640 | 0.0000000000 | $840,830 | $840,830 | $0.00 | | |
| PORTWWGEN | PORT OF WW 640 | 0.2344301070 | $840,830 | $840,830 | $197.12 | | |
| SD140BOND | SD #140 BOND 764 | 0.8032434458 | $840,830 | $840,830 | $675.39 | | |
| SD140CAP | SD #140 CAP 762 | 0.3840034221 | $840,830 | $840,830 | $322.88 | | |
| SD140GEN | SD #140 GENERAL 760 | 2.4999999996 | $840,830 | $840,830 | $2,102.08 | | |
| ST2 | STATE SCHOOL PART 2 600 | 0.8853714103 | $840,830 | $840,830 | $744.45 | | |
| STATESCHL | STATE SCHOOL 600 | 1.6424571473 | $840,830 | $840,830 | $1,381.03 | | |
| STREFUND | STATE REFUND LEVY 603 | 0.0000000000 | $840,830 | $840,830 | $0.00 | | |
| COROAD | COUNTY ROAD 115 | 1.6137667997 | $840,830 | $840,830 | $1,356.90 | | |
| CRPRD | COUNTY ROAD REFUND 115 | 0.0000000000 | $840,830 | $840,830 | $0.00 | | |
| | Total Tax Rate: | 10.4805725937 | | | | | |
| | | | | Taxes w/Current Exemptions: | $8,812.40 | | |
| | | | | Taxes w/o Exemptions: | $8,812.40 | | |
Improvement / Building
| Improvement #1: | RESIDENTIAL | State Code: | 11 | 2650.0 sqft | Value: | $747,970 |
| Exterior Wall: | HARDBOARD | Heating/Cooling: | HEAT PUMP | | Number of Bathrooms: | 2 | Number of Bedrooms: | 4 | | Plumbing: | 13 | Roof Covering: | COMP SHINGLE |
|
| | Type | Description | Class CD | Sub Class CD | Year Built | Area |
| | MA | Main Area | 1 | 45 | 2013 | 2650.0 |
| | RPC | OPEN PORCH W/ROOF , CEILED | 1 | 45 | 2013 | 196.0 |
| | RPC | OPEN PORCH W/ROOF , CEILED | 1 | 45 | 2013 | 330.0 |
| | SI1 | SITE IMPROVEMENT | 1 | 45 | 2013 | 3.0 |
| | ATG | Attached Garage | 1 | 45 | 2013 | 902.0 |
Sketch
Property Image
Land
| 1 | RES 1 | Converted: Residential | 1.5300 | 66646.80 | 0.00 | 0.00 | 1.00 | $92,860 | $0 |
Roll Value History
| 2026 | N/A | N/A | N/A | N/A | N/A |
| 2025 | $747,970 | $92,860 | $0 | $840,830 | $840,830 |
| 2024 | $650,410 | $92,860 | $0 | $743,270 | $743,270 |
| 2023 | $650,410 | $92,860 | $0 | $743,270 | $743,270 |
| 2022 | $591,280 | $92,860 | $0 | $684,140 | $684,140 |
| 2021 | $454,830 | $92,860 | $0 | $547,690 | $547,690 |
| 2020 | $398,150 | $55,000 | $0 | $453,150 | $453,150 |
| 2019 | $398,150 | $55,000 | $0 | $453,150 | $453,150 |
| 2018 | $361,950 | $55,000 | $0 | $416,950 | $416,950 |
| 2017 | $344,720 | $55,000 | $0 | $399,720 | $399,720 |
| 2016 | $328,300 | $55,000 | $0 | $383,300 | $383,300 |
| 2015 | $328,300 | $55,000 | $0 | $383,300 | $383,300 |
| 2014 | $328,300 | $55,000 | $0 | $383,300 | $383,300 |
| 2013 | $328,300 | $55,000 | $0 | $383,300 | $383,300 |
| 2012 | $0 | $95,000 | $0 | $0 | $0 |
| 2011 | $0 | $95,000 | $0 | $0 | $0 |
| 2010 | $0 | $150,000 | $0 | $0 | $0 |
| 2009 | $0 | $150,000 | $0 | $0 | $0 |
| 2008 | $0 | $1,900 | $0 | $0 | $0 |
| 2007 | $328,300 | $55,000 | $0 | $0 | $0 |
Deed and Sales History
| 1 | 03/31/2022 | SWD | STATUTORY WARRANTY DEED | MEHN CATHERINE J | SWEET STEPHANIE & WILLIAM TYLER | | | $759,000.00 | 143672 | 2022-02678 |
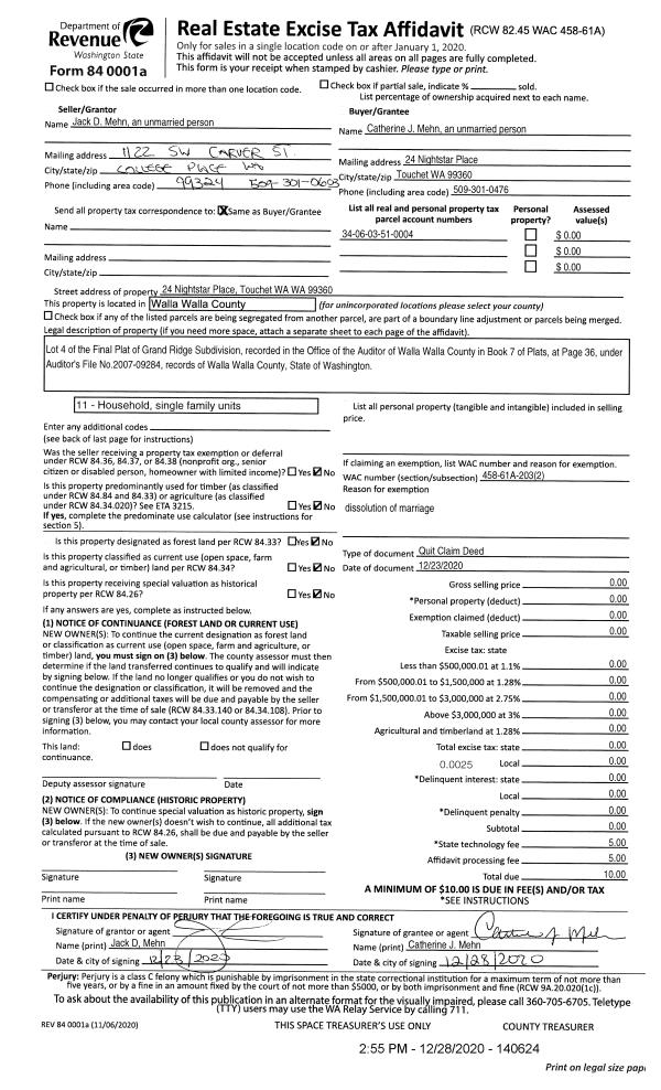
| 2 | 12/23/2020 | QCD | QUIT CLAIM DEED | MEHN JACK & CATHERINE J | MEHN CATHERINE J | | | $0.00 | 140624 | 2020-13831 |
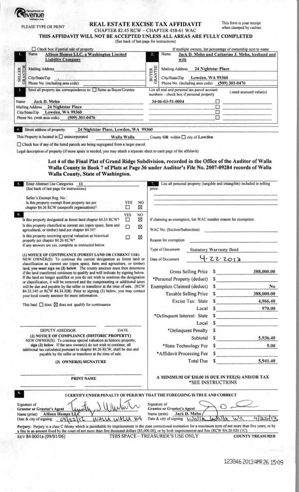
| 3 | 04/26/2013 | WARRANTY D | WARRANTY DEED | ALLISON HOMES LLC | MEHN, JACK & CATHERINE J | | | $388,000.00 | 123846 | 2013-04096 |
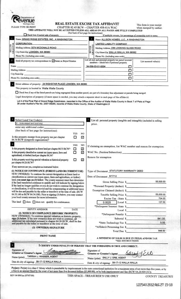
| 4 | 08/31/2012 | WARRANTY D | WARRANTY DEED | GRAND RIDGE LAND DEVELOPMENT I | ALLISON HOMES LLC | | | $0.00 | 122578 | 2012-07697 |
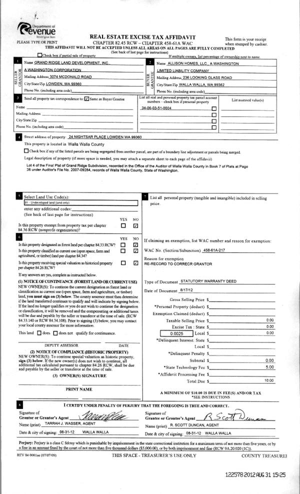
| 5 | 08/27/2012 | WARRANTY D | WARRANTY DEED | GRAND RIDGE LAND DEVELOPMENT I | ALLISON HOMES LLC | | | $55,000.00 | 122540 | 2012-07458 |
| 6 | 10/09/2007 | WARRANTY D | WARRANTY DEED | CLEARVIEW FARM INC | GRAND RIDGE LAND DEVELOPMENT INC | | | $750,000.00 | 113855 | 2007-11768 |
|   | |
Payout Agreement
| No payout information available.. |