Property
Account |
| Property ID: | 35212 | Abbreviated Legal Description: | WATERTOWN LT 3 BLK 2 |
| Parcel Number: | 360721730203 | Agent Code: | |
| Type: | Real | | |
| Tax Area: | 1 - OL-140-F | Land Use Code | 11 |
| Open Space: | N | DFL | N |
| Historic Property: | N | Remodel Property: | N |
| Multi-Family Redevelopment: | N | | |
| Township: | 7 | Section: | 21 |
| Range: | 36 |
Location |
| Address: | 1416 E ALDER ST WA 99362 | Mapsco: | |
| Neighborhood: | A-SFR | Map ID: | |
| Neighborhood CD: | 513011 |
Owner |
| Name: | WOOLCUTT KATHLEEN CLAIRE & KYLE D | Owner ID: | 69608 |
| Mailing Address: | 1416 E ALDER ST WALLA WALLA, WA 99362 | % Ownership: | 100.0000000000% |
| | | Exemptions: | |
Taxes and Assessment Details
Values
| (+) Improvement Homesite Value: | + | $0 | |
| (+) Improvement Non-Homesite Value: | + | $207,020 | |
| (+) Land Homesite Value: | + | $0 | |
| (+) Land Non-Homesite Value: | + | $46,880 | |
| (+) Curr Use (HS): | + | $0 | $0 |
| (+) Curr Use (NHS): | + | $0 | $0 |
| | | -------------------------- | |
| (=) Market Value: | = | $253,900 | |
| (–) Productivity Loss: | – | $0 | |
| | | -------------------------- | |
| (=) Subtotal: | = | $253,900 | |
| (+) Senior Appraised Value: | + | $0 | |
| (+) Non-Senior Appraised Value: | + | $253,900 | |
| | | -------------------------- | |
| (=) Total Appraised Value: | = | $253,900 | |
| (–) Senior Exemption Loss: | – | $0 | |
| (–) Exemption Loss: | – | $0 | |
| | | -------------------------- | |
| (=) Taxable Value: | = | $253,900 | |
Taxing Jurisdiction
| Owner: | WOOLCUTT KATHLEEN CLAIRE & KYLE D | | |
| % Ownership: | 100.0000000000% | | |
| Total Value: | $253,900 | | |
| Tax Area: | 1 - OL-140-F |
| CERFD | CURRENT EXPENSE REFUND 010 | 0.0000000000 | $253,900 | $253,900 | $0.00 | | |
| CURREXP | CURRENT EXPENSE 010 | 1.0175366760 | $253,900 | $253,900 | $258.35 | | |
| HUMNSERV | HUMAN SERVICES 119 | 0.0250000000 | $253,900 | $253,900 | $6.35 | | |
| SLDREL | SOLDIERS RELIEF 121 | 0.0155990005 | $253,900 | $253,900 | $3.96 | | |
| EMERGSER | EMS 147 | 0.3792580840 | $253,900 | $253,900 | $96.29 | | |
| EMSRFD | EMS REFUND 147 | 0.0000000000 | $253,900 | $253,900 | $0.00 | | |
| PORTRFD | PORT REFUND 640 | 0.0000000000 | $253,900 | $253,900 | $0.00 | | |
| PORTWWGEN | PORT OF WW 640 | 0.2460186015 | $253,900 | $253,900 | $62.46 | | |
| SD140BOND | SD #140 BOND 764 | 0.8342371393 | $253,900 | $253,900 | $211.81 | | |
| SD140GEN | SD #140 GENERAL 760 | 2.0646500647 | $253,900 | $253,900 | $524.21 | | |
| ST2 | STATE SCHOOL PART 2 600 | 0.8131451643 | $253,900 | $253,900 | $206.46 | | |
| STATESCHL | STATE SCHOOL 600 | 1.5158548041 | $253,900 | $253,900 | $384.88 | | |
| STREFUND | STATE REFUND LEVY 603 | 0.0000000000 | $253,900 | $253,900 | $0.00 | | |
| CWWBOND | C OF WW BOND 643 | 0.2760494372 | $253,900 | $253,900 | $70.09 | | |
| CWWGEN | CITY OF WW 631 | 1.6100204973 | $253,900 | $253,900 | $408.78 | | |
| CWWRFD | CITY OF WALLA WALLA REFUND 631 | 0.0000000000 | $253,900 | $253,900 | $0.00 | | |
| | Total Tax Rate: | 8.7973694689 | | | | | |
| | | | | Taxes w/Current Exemptions: | $2,233.64 | | |
| | | | | Taxes w/o Exemptions: | $2,233.64 | | |
Improvement / Building
| Improvement #1: | RESIDENTIAL | State Code: | 11 | 924.0 sqft | Value: | $207,020 |
| Exterior Wall: | VINYL | Heating/Cooling: | WARM & COOLED AIR | | Number of Bathrooms: | 1 | Number of Bedrooms: | 2 | | Plumbing: | 6 | Roof Covering: | COMP SHINGLE |
|
| | Type | Description | Class CD | Sub Class CD | Year Built | Area |
| | MA | Main Area | 1 | 30 | 1911 | 924.0 |
| | SI1 | SITE IMPROVEMENT | 1 | 30 | 1911 | 1.0 |
| | RPC | OPEN PORCH W/ROOF , CEILED | 1 | 30 | 1911 | 84.0 |
| | DTG | Detached Garage | 1 | 30 | 1911 | 364.0 |
Sketch
Property Image
Land
| 1 | RES 1 | Converted: Residential | 0.1722 | 7500.00 | 0.00 | 0.00 | 1.00 | $46,880 | $0 |
Roll Value History
| 2026 | N/A | N/A | N/A | N/A | N/A |
| 2025 | $204,900 | $75,000 | $0 | $279,900 | $279,900 |
| 2024 | $178,170 | $75,000 | $0 | $253,170 | $253,170 |
| 2023 | $207,020 | $46,880 | $0 | $253,900 | $253,900 |
| 2022 | $180,020 | $46,880 | $0 | $226,900 | $226,900 |
| 2021 | $133,350 | $46,880 | $0 | $180,230 | $180,230 |
| 2020 | $102,580 | $46,880 | $0 | $149,460 | $149,460 |
| 2019 | $102,580 | $46,880 | $0 | $149,460 | $149,460 |
| 2018 | $93,250 | $46,880 | $0 | $140,130 | $140,130 |
| 2017 | $93,930 | $30,000 | $0 | $123,930 | $123,930 |
| 2016 | $89,460 | $30,000 | $0 | $119,460 | $119,460 |
| 2015 | $85,200 | $30,000 | $0 | $115,200 | $115,200 |
| 2014 | $71,000 | $30,000 | $0 | $101,000 | $101,000 |
| 2013 | $71,000 | $30,000 | $0 | $101,000 | $101,000 |
| 2012 | $71,000 | $30,000 | $0 | $0 | $0 |
| 2011 | $71,000 | $30,000 | $0 | $0 | $0 |
| 2010 | $66,200 | $30,000 | $0 | $0 | $0 |
| 2009 | $76,900 | $30,000 | $0 | $0 | $0 |
| 2008 | $55,500 | $30,000 | $0 | $0 | $0 |
| 2007 | $55,500 | $30,000 | $0 | $0 | $0 |
Deed and Sales History
| 1 | 08/20/2024 | SWD | STATUTORY WARRANTY DEED | WOOLCUTT KATHLEEN CLAIRE & KYLE D | RUKAVINA JORMAN S | | | $305,500.00 | 148063 | 2024-04650 |
| 2 | 03/19/2021 | QCD | QUIT CLAIM DEED | WOOLCUTT KATHLEEN CLAIRE | WOOLCUTT KATHLEEN CLAIRE & KYLE D | | | $0.00 | 141830 | 2021-07399 |
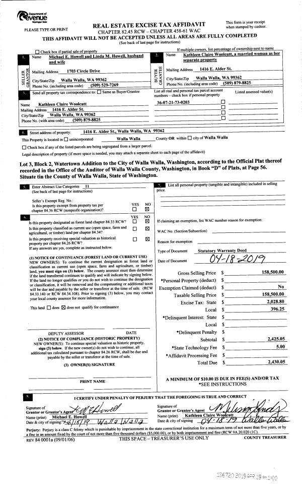
| 3 | 04/19/2019 | QCD | QUIT CLAIM DEED | WOOLCUTT KYLE DANIEL | WOOLCUTT KATHLEEN CLAIRE | | | | 136721 | 2019-02512 |
| 4 | 04/19/2019 | SWD | STATUTORY WARRANTY DEED | HOWELL MICHAEL E & LINDA M | WOOLCUTT KATHLEEN CLAIRE | | | $158,500.00 | 136720 | 2019-02511 |
| 5 | 04/18/2013 | WARRANTY D | WARRANTY DEED | SCHMIERER, DAN L | HOWELL, MICHAEL E & LINDA M | | | $115,000.00 | 123794 | 2013-03740 |
| 6 | 09/27/2002 | WARRANTY D | WARRANTY DEED | WELLS FARGO BANK MINNESOTA NA | SCHMIERER, DAN L | | | $43,900.00 | 100458 | 2002-10877 |
| 7 | 08/24/1988 | WARRANTY D | WARRANTY DEED | | | | | $21,000.00 | 67587 | 1728-805665 |
Payout Agreement
| No payout information available.. |