Property
Account |
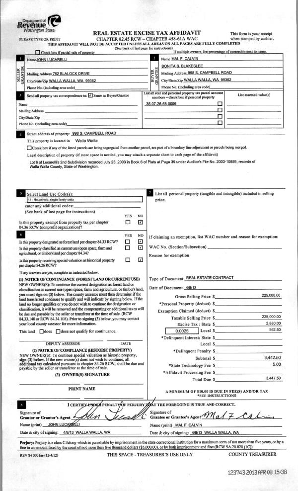
| Property ID: | 35199 | Abbreviated Legal Description: | LUCARELLI'S 2ND SUBDIVISION LOT 6 |
| Parcel Number: | 350726680006 | Agent Code: | |
| Type: | Real | | |
| Tax Area: | 311 - 250-4 | Land Use Code | 11 |
| Open Space: | N | DFL | N |
| Historic Property: | N | Remodel Property: | N |
| Multi-Family Redevelopment: | N | | |
| Township: | 7 | Section: | 26 |
| Range: | 35 |
Location |
| Address: | 998 S CAMPBELL RD WA 99324 | Mapsco: | |
| Neighborhood: | 0 Farm | Map ID: | |
| Neighborhood CD: | 3230 |
Owner |
| Name: | KUZNETSOV SLAVIK & OLGA | Owner ID: | 65739 |
| Mailing Address: | PO BOX 522 COLLEGE PLACE, WA 99324 | % Ownership: | 100.0000000000% |
| | | Exemptions: | |
Taxes and Assessment Details
Property Tax Information as of
02/21/2026
Click on "Statement Details" to expand or collapse a tax statement.
* Please enter a valid date ** Please enter a valid date *
Statement Details |
| | TOTAL: | $0.00 | $0.00 | $0.00 | $0.00 | $0.00 | $0.00 |
|
| | $0.00 | $0.00 | $0.00 | $0.00 | $0.00 | $0.00 |
Values
| (+) Improvement Homesite Value: | + | $0 | |
| (+) Improvement Non-Homesite Value: | + | $337,120 | |
| (+) Land Homesite Value: | + | $120,000 | |
| (+) Land Non-Homesite Value: | + | $14,720 | |
| (+) Curr Use (HS): | + | $0 | $0 |
| (+) Curr Use (NHS): | + | $0 | $0 |
| | | -------------------------- | |
| (=) Market Value: | = | $471,840 | |
| (–) Productivity Loss: | – | $0 | |
| | | -------------------------- | |
| (=) Subtotal: | = | $471,840 | |
| (+) Senior Appraised Value: | + | $0 | |
| (+) Non-Senior Appraised Value: | + | $471,840 | |
| | | -------------------------- | |
| (=) Total Appraised Value: | = | $471,840 | |
| (–) Senior Exemption Loss: | – | $0 | |
| (–) Exemption Loss: | – | $0 | |
| | | -------------------------- | |
| (=) Taxable Value: | = | $471,840 | |
Taxing Jurisdiction
| Owner: | KUZNETSOV SLAVIK & OLGA | | |
| % Ownership: | 100.0000000000% | | |
| Total Value: | $471,840 | | |
| Tax Area: | 311 - 250-4 |
| CERFD | CURRENT EXPENSE REFUND 010 | 0.0000000000 | $471,840 | $471,840 | $0.00 | | |
| CURREXP | CURRENT EXPENSE 010 | 1.0175366760 | $471,840 | $471,840 | $480.11 | | |
| HUMNSERV | HUMAN SERVICES 119 | 0.0250000000 | $471,840 | $471,840 | $11.80 | | |
| SLDREL | SOLDIERS RELIEF 121 | 0.0155990005 | $471,840 | $471,840 | $7.36 | | |
| EMERGSER | EMS 147 | 0.3792580840 | $471,840 | $471,840 | $178.95 | | |
| EMSRFD | EMS REFUND 147 | 0.0000000000 | $471,840 | $471,840 | $0.00 | | |
| FD4EXP | FD #4 EXPENSE 686 | 0.8836993059 | $471,840 | $471,840 | $416.96 | | |
| RLBRFD | RURAL LIBRARY REFUND 623 | 0.0000000000 | $471,840 | $471,840 | $0.00 | | |
| RURALLIB | RURAL LIBRARY 623 | 0.3710609029 | $471,840 | $471,840 | $175.08 | | |
| PORTRFD | PORT REFUND 640 | 0.0000000000 | $471,840 | $471,840 | $0.00 | | |
| PORTWWGEN | PORT OF WW 640 | 0.2460186015 | $471,840 | $471,840 | $116.08 | | |
| SD250BOND | SD #250 BOND 773 | 1.4560608159 | $471,840 | $471,840 | $687.03 | | |
| SD250GEN | SD #250 GENERAL 770 | 2.3880724087 | $471,840 | $471,840 | $1,126.79 | | |
| ST2 | STATE SCHOOL PART 2 600 | 0.8131451643 | $471,840 | $471,840 | $383.67 | | |
| STATESCHL | STATE SCHOOL 600 | 1.5158548041 | $471,840 | $471,840 | $715.24 | | |
| STREFUND | STATE REFUND LEVY 603 | 0.0000000000 | $471,840 | $471,840 | $0.00 | | |
| COROAD | COUNTY ROAD 115 | 1.6549953990 | $471,840 | $471,840 | $780.89 | | |
| CRPRD | COUNTY ROAD REFUND 115 | 0.0000000000 | $471,840 | $471,840 | $0.00 | | |
| | Total Tax Rate: | 10.7663011628 | | | | | |
| | | | | Taxes w/Current Exemptions: | $5,079.96 | | |
| | | | | Taxes w/o Exemptions: | $5,079.96 | | |
Improvement / Building
| Improvement #1: | RESIDENTIAL | State Code: | 11 | 1120.0 sqft | Value: | $337,120 |
| Exterior Wall: | METAL/STEEL | Heating/Cooling: | FORCED AIR | | Number of Bathrooms: | 2 | Number of Bedrooms: | 2 | | Plumbing: | 9 | Roof Covering: | COMP SHINGLE |
|
| | Type | Description | Class CD | Sub Class CD | Year Built | Area |
| | MA | Main Area | 1 | 30 | 1940 | 1120.0 |
| | CPC | COVERED CARPORT/PATIO | 1 | 30 | 1940 | 207.0 |
| | LNTD | LEAN TO DIRT FLOOR | 1 | 30 | 1940 | 840.0 |
| | IMPL-BLDG | IMPLEMENT BUILDING | 1 | 30 | 1950 | 336.0 |
| | POL2 | POLE BUILDING-CONCRETE | 1 | 30 | 1990 | 210.0 |
| | POL1 | POLE BUILDING-GRAVEL | 1 | 30 | 1990 | 864.0 |
| | SI1 | SITE IMPROVEMENT | 1 | | 1940 | 1.5 |
| | BASE | BASEMENT | 1 | 30 | 1940 | 840.0 |
| | IMPL-BLDG | IMPLEMENT BUILDING | 1 | 30 | 1950 | 1656.0 |
| | UTST | Utility Storage Shed | 1 | 30 | 1940 | 240.0 |
| | RPS | PORCH W/STEPS,ROOF | 1 | 30 | 1940 | 56.0 |
| | POL3 | POLE BUILDING-CON,ELEC,INSU | 1 | 30 | 2021 | 3780.0 |
Sketch
Property Image
Land
| 1 | HS-120,000 | Homesite 120,000 | 1.0000 | 0.00 | 0.00 | 0.00 | 1.00 | $120,000 | $0 |
| 2 | 8000-C1-I | Class 1 irrigated | 1.8400 | 0.00 | 0.00 | 0.00 | 1.00 | $14,720 | $0 |
Roll Value History
| 2026 | N/A | N/A | N/A | N/A | N/A |
| 2025 | $337,120 | $134,720 | $0 | $471,840 | $471,840 |
| 2024 | $337,120 | $134,720 | $0 | $471,840 | $471,840 |
| 2023 | $337,120 | $134,720 | $0 | $471,840 | $471,840 |
| 2022 | $337,120 | $134,720 | $0 | $471,840 | $471,840 |
| 2021 | $202,180 | $89,720 | $0 | $291,900 | $291,900 |
| 2020 | $120,570 | $89,720 | $0 | $210,290 | $210,290 |
| 2019 | $120,570 | $89,720 | $0 | $210,290 | $210,290 |
| 2018 | $120,570 | $89,720 | $0 | $210,290 | $210,290 |
| 2017 | $120,570 | $89,720 | $0 | $210,290 | $210,290 |
| 2016 | $120,570 | $89,720 | $0 | $210,290 | $210,290 |
| 2015 | $53,900 | $89,720 | $0 | $143,620 | $143,620 |
| 2014 | $53,900 | $89,720 | $0 | $143,620 | $143,620 |
| 2013 | $53,900 | $89,700 | $14,720 | $143,600 | $143,600 |
| 2012 | $53,900 | $89,700 | $0 | $0 | $0 |
| 2011 | $54,200 | $89,700 | $0 | $0 | $0 |
| 2010 | $98,300 | $89,700 | $0 | $0 | $0 |
| 2009 | $102,500 | $89,700 | $0 | $0 | $0 |
| 2008 | $89,700 | $52,400 | $0 | $0 | $0 |
| 2007 | $71,300 | $50,300 | $0 | $0 | $0 |
Deed and Sales History
| 1 | 08/12/2019 | SWD | STATUTORY WARRANTY DEED | CALVIN MAL F LIFE ESTATE | KUZNETSOV SLAVIK & OLGA | | | $220,000.00 | 137472 | 2019-06052 |
| 2 | 06/23/2015 | FUL | FULFILLMENT DEED | LUCARELLI JOHN | CALVIN MAL F LIFE ESTATE | | | | 0 | 2015-05279 |
| 3 | 04/08/2013 | WARRANTY D | WARRANTY DEED | LUCARELLI, JOHN | CALVIN, MAL F LIFE ESTATE | | | $225,000.00 | 123743 | 2013-03377 |
| 4 | 05/10/2007 | WARRANTY D | WARRANTY DEED | "LUCARELLI, RHEA" | LUCARELLI JOHN | | | | 112783 | 2007-05249 |
Payout Agreement
| No payout information available.. |