Property
Account |
| Property ID: | 35190 | Abbreviated Legal Description: | 28-7-36 TAX 39 |
| Parcel Number: | 360728220018 | Agent Code: | |
| Type: | Real | | |
| Tax Area: | 1 - OL-140-F | Land Use Code | 11 |
| Open Space: | N | DFL | N |
| Historic Property: | N | Remodel Property: | N |
| Multi-Family Redevelopment: | N | | |
| Township: | 7 | Section: | 28 |
| Range: | 36 |
Location |
| Address: | 740 WHITMAN ST WA 99362 | Mapsco: | |
| Neighborhood: | G Res | Map ID: | |
| Neighborhood CD: | 614011 |
Owner |
| Name: | TIGANI JAMES JORDAN & TEGAN BLYTHE WILLEVER | Owner ID: | 67842 |
| Mailing Address: | 2444 2ND AVE W SEATTLE, WA 98121 | % Ownership: | 100.0000000000% |
| | | Exemptions: | |
Taxes and Assessment Details
Values
| (+) Improvement Homesite Value: | + | $0 | |
| (+) Improvement Non-Homesite Value: | + | $1,035,730 | |
| (+) Land Homesite Value: | + | $0 | |
| (+) Land Non-Homesite Value: | + | $120,320 | |
| (+) Curr Use (HS): | + | $0 | $0 |
| (+) Curr Use (NHS): | + | $0 | $0 |
| | | -------------------------- | |
| (=) Market Value: | = | $1,156,050 | |
| (–) Productivity Loss: | – | $0 | |
| | | -------------------------- | |
| (=) Subtotal: | = | $1,156,050 | |
| (+) Senior Appraised Value: | + | $0 | |
| (+) Non-Senior Appraised Value: | + | $1,156,050 | |
| | | -------------------------- | |
| (=) Total Appraised Value: | = | $1,156,050 | |
| (–) Senior Exemption Loss: | – | $0 | |
| (–) Exemption Loss: | – | $0 | |
| | | -------------------------- | |
| (=) Taxable Value: | = | $1,156,050 | |
Taxing Jurisdiction
| Owner: | TIGANI JAMES JORDAN & TEGAN BLYTHE WILLEVER | | |
| % Ownership: | 100.0000000000% | | |
| Total Value: | $1,156,050 | | |
| Tax Area: | 1 - OL-140-F |
| CERFD | CURRENT EXPENSE REFUND 010 | 0.0000000000 | $1,156,050 | $1,156,050 | $0.00 | | |
| CURREXP | CURRENT EXPENSE 010 | 1.0175366760 | $1,156,050 | $1,156,050 | $1,176.32 | | |
| HUMNSERV | HUMAN SERVICES 119 | 0.0250000000 | $1,156,050 | $1,156,050 | $28.90 | | |
| SLDREL | SOLDIERS RELIEF 121 | 0.0155990005 | $1,156,050 | $1,156,050 | $18.03 | | |
| EMERGSER | EMS 147 | 0.3792580840 | $1,156,050 | $1,156,050 | $438.44 | | |
| EMSRFD | EMS REFUND 147 | 0.0000000000 | $1,156,050 | $1,156,050 | $0.00 | | |
| PORTRFD | PORT REFUND 640 | 0.0000000000 | $1,156,050 | $1,156,050 | $0.00 | | |
| PORTWWGEN | PORT OF WW 640 | 0.2460186015 | $1,156,050 | $1,156,050 | $284.41 | | |
| SD140BOND | SD #140 BOND 764 | 0.8342371393 | $1,156,050 | $1,156,050 | $964.42 | | |
| SD140GEN | SD #140 GENERAL 760 | 2.0646500647 | $1,156,050 | $1,156,050 | $2,386.84 | | |
| ST2 | STATE SCHOOL PART 2 600 | 0.8131451643 | $1,156,050 | $1,156,050 | $940.04 | | |
| STATESCHL | STATE SCHOOL 600 | 1.5158548041 | $1,156,050 | $1,156,050 | $1,752.40 | | |
| STREFUND | STATE REFUND LEVY 603 | 0.0000000000 | $1,156,050 | $1,156,050 | $0.00 | | |
| CWWBOND | C OF WW BOND 643 | 0.2760494372 | $1,156,050 | $1,156,050 | $319.13 | | |
| CWWGEN | CITY OF WW 631 | 1.6100204973 | $1,156,050 | $1,156,050 | $1,861.26 | | |
| CWWRFD | CITY OF WALLA WALLA REFUND 631 | 0.0000000000 | $1,156,050 | $1,156,050 | $0.00 | | |
| | Total Tax Rate: | 8.7973694689 | | | | | |
| | | | | Taxes w/Current Exemptions: | $10,170.19 | | |
| | | | | Taxes w/o Exemptions: | $10,170.19 | | |
Improvement / Building
| Improvement #1: | RESIDENTIAL | State Code: | 11 | 3357.0 sqft | Value: | $1,035,730 |
| Exterior Wall: | SIDING | Heating/Cooling: | REV-HEAT-PUMP-W/DUCT | | Number of Bathrooms: | 4.5 | Number of Bedrooms: | 6 | | Plumbing: | 23 | Roof Covering: | COMP SHINGLE |
|
| | Type | Description | Class CD | Sub Class CD | Year Built | Area |
| | MA | Main Area | 7 | 60 | 1906 | 3357.0 |
| | UPFL | Upper Floor (included in main area) | 7 | 60 | 1906 | 2076.0 |
| | SI1 | SITE IMPROVEMENT | 7 | 60 | 1906 | 6.5 |
| | BASE | BASEMENT | 7 | 60 | 1906 | 1350.0 |
| | BPF | BASEMENT -PARTITIONED FINISH | 7 | 60 | 1906 | 1350.0 |
| | S2F | Single 2S Fireplace | 7 | 60 | 1906 | 1.0 |
| | OPS | OPEN PORCH W/STEPS | 7 | 60 | 1906 | 40.0 |
| | PRC | PORCH W STEPS, ROOF,CEILED | 7 | 60 | 1906 | 70.0 |
| | SWP | Solid Wall Porch | 7 | 60 | 1906 | 162.0 |
| | RCD | WOOD DECK W/ROOF, CEILED | 7 | 60 | 1906 | 265.0 |
| | CPCG | CARPORT/ GABLE ROOF | 7 | 60 | 1906 | 352.0 |
| | DTG | Detached Garage | 7 | 60 | 1906 | 750.0 |
| | BON4 | BONUS RM DET/REC OR APT FINISH | 7 | 60 | 1906 | 500.0 |
Sketch
Property Image
Land
| 1 | RES 1 | Converted: Residential | 0.2810 | 12240.00 | 0.00 | 0.00 | 1.00 | $120,320 | $0 |
Roll Value History
| 2026 | N/A | N/A | N/A | N/A | N/A |
| 2025 | $1,011,860 | $144,190 | $0 | $1,156,050 | $1,156,050 |
| 2024 | $1,035,730 | $120,320 | $0 | $1,156,050 | $1,156,050 |
| 2023 | $1,035,730 | $120,320 | $0 | $1,156,050 | $1,156,050 |
| 2022 | $1,035,730 | $99,270 | $0 | $1,135,000 | $1,135,000 |
| 2021 | $582,870 | $99,270 | $0 | $682,140 | $682,140 |
| 2020 | $336,880 | $99,270 | $0 | $436,150 | $436,150 |
| 2019 | $336,880 | $99,270 | $0 | $436,150 | $436,150 |
| 2018 | $178,000 | $49,000 | $0 | $227,000 | $227,000 |
| 2017 | $178,000 | $49,000 | $0 | $227,000 | $227,000 |
| 2016 | $178,000 | $49,000 | $0 | $227,000 | $227,000 |
| 2015 | $178,000 | $49,000 | $0 | $227,000 | $227,000 |
| 2014 | $178,000 | $49,000 | $0 | $227,000 | $227,000 |
| 2013 | $178,000 | $49,000 | $0 | $227,000 | $227,000 |
| 2012 | $568,000 | $49,000 | $0 | $0 | $0 |
| 2011 | $476,500 | $49,000 | $0 | $0 | $0 |
| 2010 | $133,600 | $49,000 | $0 | $0 | $0 |
| 2009 | $0 | $49,000 | $0 | $0 | $0 |
| 2008 | $0 | $49,000 | $0 | $0 | $0 |
| 2007 | $0 | $10,400 | $0 | $0 | $0 |
Deed and Sales History
| 1 | 09/01/2020 | SWD | STATUTORY WARRANTY DEED | KENT DANIEL W | TIGANI JAMES JORDAN & TEGAN BLYTHE WILLEVER | | | $1,138,000.00 | 139833 | 2020-08884 |
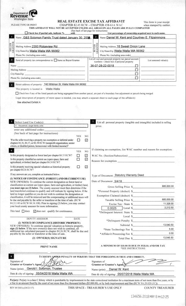
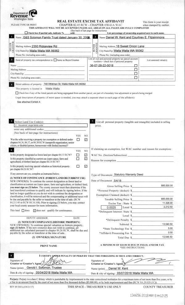
| 2 | 05/08/2018 | SWD | STATUTORY WARRANTY DEED | G&S SOLOMON FAMILY TRUST | KENT DANIEL W | | | $885,000.00 | 134656 | 2018-03577 |
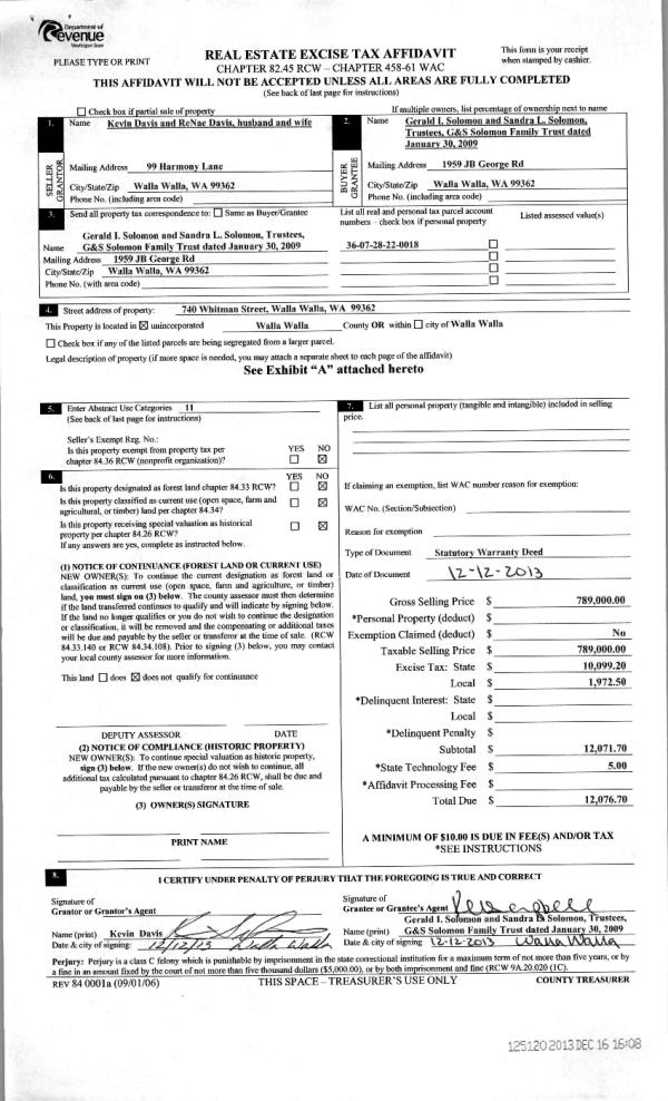
| 3 | 12/16/2013 | WARRANTY D | WARRANTY DEED | DAVIS KEVIN & RENAE | G&S SOLOMON FAMILY TRUST | | | $789,000.00 | 125120 | 2013-12011 |
| 4 | 05/08/2008 | WARRANTY D | WARRANTY DEED | WEIGAND, JOHN ERIC | DAVIS, KEVIN & RENAE | | | $146,250.00 | 114982 | 2008-04617 |
| 5 | 01/16/2007 | WARRANTY D | WARRANTY DEED | WALLA WALLA COUNTY TREASURER | WEIGAND, JOHN | | | | 112067 | 2007-00582 |
| 6 | 06/06/1980 | WARRANTY D | WARRANTY DEED | | | | | $39,000.00 | 0 | 1228-004476 |
Payout Agreement
| No payout information available.. |