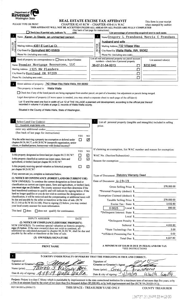
Property
Account |
| Property ID: | 35181 | Abbreviated Legal Description: | THE VILLAGE LOT 13 & W 1' OF LOT 12 |
| Parcel Number: | 360731540013 | Agent Code: | |
| Type: | Real | | |
| Tax Area: | 1 - OL-140-F | Land Use Code | 11 |
| Open Space: | N | DFL | N |
| Historic Property: | N | Remodel Property: | N |
| Multi-Family Redevelopment: | N | | |
| Township: | 7 | Section: | 31 |
| Range: | 36 |
Location |
| Address: | 742 VILLAGE WAY WA 99362 | Mapsco: | |
| Neighborhood: | VG SFR | Map ID: | |
| Neighborhood CD: | 115011 |
Owner |
| Name: | FRANDSEN GREGORY L & MARCIA C | Owner ID: | 65026 |
| Mailing Address: | 742 VILLAGE WAY WALLA WALLA, WA 99362 | % Ownership: | 100.0000000000% |
| | | Exemptions: | |
Taxes and Assessment Details
Property Tax Information as of
02/21/2026
Click on "Statement Details" to expand or collapse a tax statement.
* Please enter a valid date ** Please enter a valid date *
Statement Details |
| | TOTAL: | $0.00 | $0.00 | $0.00 | $0.00 | $0.00 | $0.00 |
|
| | $0.00 | $0.00 | $0.00 | $0.00 | $0.00 | $0.00 |
Values
| (+) Improvement Homesite Value: | + | $0 | |
| (+) Improvement Non-Homesite Value: | + | $293,540 | |
| (+) Land Homesite Value: | + | $0 | |
| (+) Land Non-Homesite Value: | + | $100,000 | |
| (+) Curr Use (HS): | + | $0 | $0 |
| (+) Curr Use (NHS): | + | $0 | $0 |
| | | -------------------------- | |
| (=) Market Value: | = | $393,540 | |
| (–) Productivity Loss: | – | $0 | |
| | | -------------------------- | |
| (=) Subtotal: | = | $393,540 | |
| (+) Senior Appraised Value: | + | $0 | |
| (+) Non-Senior Appraised Value: | + | $393,540 | |
| | | -------------------------- | |
| (=) Total Appraised Value: | = | $393,540 | |
| (–) Senior Exemption Loss: | – | $0 | |
| (–) Exemption Loss: | – | $0 | |
| | | -------------------------- | |
| (=) Taxable Value: | = | $393,540 | |
Taxing Jurisdiction
| Owner: | FRANDSEN GREGORY L & MARCIA C | | |
| % Ownership: | 100.0000000000% | | |
| Total Value: | $393,540 | | |
| Tax Area: | 1 - OL-140-F |
| CERFD | CURRENT EXPENSE REFUND 010 | 0.0000000000 | $393,540 | $393,540 | $0.00 | | |
| CURREXP | CURRENT EXPENSE 010 | 1.0175366760 | $393,540 | $393,540 | $400.44 | | |
| HUMNSERV | HUMAN SERVICES 119 | 0.0250000000 | $393,540 | $393,540 | $9.84 | | |
| SLDREL | SOLDIERS RELIEF 121 | 0.0155990005 | $393,540 | $393,540 | $6.14 | | |
| EMERGSER | EMS 147 | 0.3792580840 | $393,540 | $393,540 | $149.25 | | |
| EMSRFD | EMS REFUND 147 | 0.0000000000 | $393,540 | $393,540 | $0.00 | | |
| PORTRFD | PORT REFUND 640 | 0.0000000000 | $393,540 | $393,540 | $0.00 | | |
| PORTWWGEN | PORT OF WW 640 | 0.2460186015 | $393,540 | $393,540 | $96.82 | | |
| SD140BOND | SD #140 BOND 764 | 0.8342371393 | $393,540 | $393,540 | $328.31 | | |
| SD140GEN | SD #140 GENERAL 760 | 2.0646500647 | $393,540 | $393,540 | $812.52 | | |
| ST2 | STATE SCHOOL PART 2 600 | 0.8131451643 | $393,540 | $393,540 | $320.01 | | |
| STATESCHL | STATE SCHOOL 600 | 1.5158548041 | $393,540 | $393,540 | $596.55 | | |
| STREFUND | STATE REFUND LEVY 603 | 0.0000000000 | $393,540 | $393,540 | $0.00 | | |
| CWWBOND | C OF WW BOND 643 | 0.2760494372 | $393,540 | $393,540 | $108.64 | | |
| CWWGEN | CITY OF WW 631 | 1.6100204973 | $393,540 | $393,540 | $633.61 | | |
| CWWRFD | CITY OF WALLA WALLA REFUND 631 | 0.0000000000 | $393,540 | $393,540 | $0.00 | | |
| | Total Tax Rate: | 8.7973694689 | | | | | |
| | | | | Taxes w/Current Exemptions: | $3,462.13 | | |
| | | | | Taxes w/o Exemptions: | $3,462.13 | | |
Improvement / Building
| Improvement #1: | RESIDENTIAL | State Code: | 11 | 1754.0 sqft | Value: | $293,540 |
| Exterior Wall: | SIDING | Heating/Cooling: | REV-HEAT-PUMP-W/DUCT | | Number of Bathrooms: | 3 | Number of Bedrooms: | 3 | | Plumbing: | 12 | Roof Covering: | WOOD SHAKE |
|
| | Type | Description | Class CD | Sub Class CD | Year Built | Area |
| | MA | Main Area | 1 | 35 | 1979 | 1754.0 |
| | S1F | Single One Story Fireplace | 1 | 35 | 1979 | 1.0 |
| | SI1 | SITE IMPROVEMENT | 1 | 35 | 1979 | 2.0 |
| | STG2 | Sub Terrain Garage Double | 1 | 35 | 1979 | 1.0 |
| | WOD | Wood Deck | 1 | 35 | 1979 | 596.0 |
| | CPC | COVERED CARPORT/PATIO | 1 | 35 | 1979 | 338.0 |
| | BASE | BASEMENT | 1 | 35 | 1979 | 1710.0 |
| | BPF | BASEMENT -PARTITIONED FINISH | 1 | 35 | 1979 | 944.0 |
Sketch
Property Image
Land
| 1 | RES 1 | Converted: Residential | 0.2132 | 9286.00 | 0.00 | 0.00 | 1.00 | $100,000 | $0 |
Roll Value History
| 2026 | N/A | N/A | N/A | N/A | N/A |
| 2025 | $414,450 | $170,000 | $0 | $584,450 | $584,450 |
| 2024 | $434,580 | $100,000 | $0 | $534,580 | $534,580 |
| 2023 | $293,540 | $100,000 | $0 | $393,540 | $393,540 |
| 2022 | $293,540 | $100,000 | $0 | $393,540 | $393,540 |
| 2021 | $195,690 | $100,000 | $0 | $295,690 | $295,690 |
| 2020 | $139,780 | $100,000 | $0 | $239,780 | $239,780 |
| 2019 | $149,780 | $90,000 | $0 | $239,780 | $239,780 |
| 2018 | $142,640 | $90,000 | $0 | $232,640 | $232,640 |
| 2017 | $95,100 | $90,000 | $0 | $185,100 | $185,100 |
| 2016 | $73,150 | $90,000 | $0 | $163,150 | $163,150 |
| 2015 | $73,150 | $90,000 | $0 | $163,150 | $163,150 |
| 2014 | $104,500 | $90,000 | $0 | $194,500 | $194,500 |
| 2013 | $139,300 | $90,000 | $0 | $229,300 | $229,300 |
| 2012 | $179,800 | $90,000 | $0 | $0 | $0 |
| 2011 | $179,800 | $90,000 | $0 | $0 | $0 |
| 2010 | $179,800 | $90,000 | $0 | $0 | $0 |
| 2009 | $194,000 | $90,000 | $0 | $0 | $0 |
| 2008 | $176,700 | $45,000 | $0 | $0 | $0 |
| 2007 | $176,700 | $45,000 | $0 | $0 | $0 |
Deed and Sales History
| 1 | 04/22/2019 | SWD | STATUTORY WARRANTY DEED | STEELE KAREN JO | FRANDSEN GREGORY L & MARCIA C | | | $276,000.00 | 136727 | 2019-02557 |
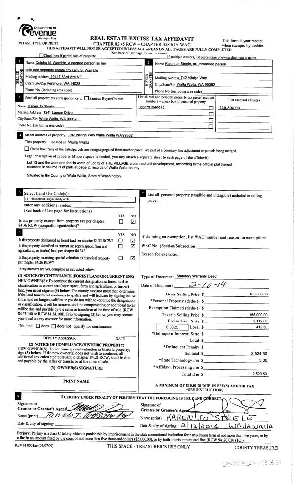
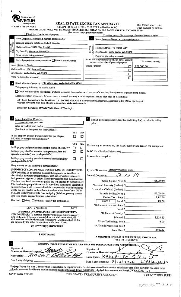
| 2 | 02/12/2014 | SWD | STATUTORY WARRANTY DEED | WAMBLE DELPHA M | STEELE KAREN JO | | | $165,000.00 | 125430 | 2014-01082 |
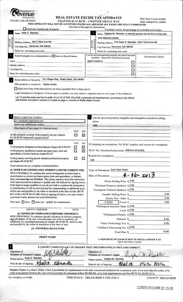
| 3 | 04/22/2013 | QCD | QUIT CLAIM DEED | WAMBLE, KELLY S | WAMBLE, DELPHA M | | | $0.00 | 123820 | 2013-03934 |
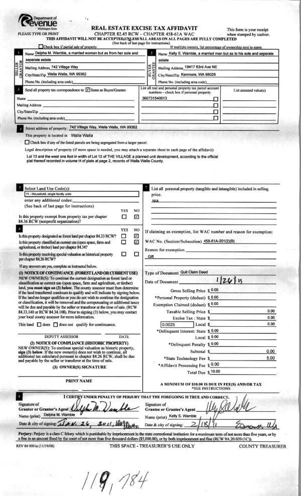
| 4 | 02/25/2011 | QCD | QUIT CLAIM DEED | WAMBLE, DELPHA M | WAMBLE, KELLY S | | | | 119784 | 2011-01754 |
| 5 | 07/13/2009 | QCD | QUIT CLAIM DEED | WAMBLE, JAMES G | WAMBLE, DELPHA M | | | | 117001 | 2009-07099 |
| 6 | 11/21/1986 | WARRANTY D | WARRANTY DEED | | | | | $102,500.00 | 0 | 1608-609122 |
Payout Agreement
| No payout information available.. |