Property
Account |
| Property ID: | 35154 | Abbreviated Legal Description: | EAST WALLA WALLA ROBERTS LOTS 18, 19, & 20 BLK 1 |
| Parcel Number: | 360727590118 | Agent Code: | |
| Type: | Real | | |
| Tax Area: | 105 - 140-F-4 | Land Use Code | 11 |
| Open Space: | N | DFL | N |
| Historic Property: | N | Remodel Property: | N |
| Multi-Family Redevelopment: | N | | |
| Township: | 7 | Section: | 27 |
| Range: | 36 |
Location |
| Address: | 1427 MONROE ST WA 99362 | Mapsco: | |
| Neighborhood: | A Res | Map ID: | |
| Neighborhood CD: | 613011 |
Owner |
| Name: | POMERINKE ARLAND & MELINDA | Owner ID: | 67134 |
| Mailing Address: | 1427 MONROE ST WALLA WALLA, WA 99362 | % Ownership: | 100.0000000000% |
| | | Exemptions: | |
Taxes and Assessment Details
Property Tax Information as of
04/19/2026
Click on "Statement Details" to expand or collapse a tax statement.
* Please enter a valid date ** Please enter a valid date *
Statement Details |
| | TOTAL: | $0.00 | $0.00 | $0.00 | $0.00 | $0.00 | $0.00 |
|
| | $0.00 | $0.00 | $0.00 | $0.00 | $0.00 | $0.00 |
Values
| (+) Improvement Homesite Value: | + | $0 | |
| (+) Improvement Non-Homesite Value: | + | $346,670 | |
| (+) Land Homesite Value: | + | $0 | |
| (+) Land Non-Homesite Value: | + | $97,220 | |
| (+) Curr Use (HS): | + | $0 | $0 |
| (+) Curr Use (NHS): | + | $0 | $0 |
| | | -------------------------- | |
| (=) Market Value: | = | $443,890 | |
| (–) Productivity Loss: | – | $0 | |
| | | -------------------------- | |
| (=) Subtotal: | = | $443,890 | |
| (+) Senior Appraised Value: | + | $0 | |
| (+) Non-Senior Appraised Value: | + | $443,890 | |
| | | -------------------------- | |
| (=) Total Appraised Value: | = | $443,890 | |
| (–) Senior Exemption Loss: | – | $0 | |
| (–) Exemption Loss: | – | $0 | |
| | | -------------------------- | |
| (=) Taxable Value: | = | $443,890 | |
Taxing Jurisdiction
| Owner: | POMERINKE ARLAND & MELINDA | | |
| % Ownership: | 100.0000000000% | | |
| Total Value: | $443,890 | | |
| Tax Area: | 105 - 140-F-4 |
| CERFD | CURRENT EXPENSE REFUND 010 | 0.0000000000 | $443,890 | $443,890 | $0.00 | | |
| CURREXP | CURRENT EXPENSE 010 | 1.0175366760 | $443,890 | $443,890 | $451.67 | | |
| HUMNSERV | HUMAN SERVICES 119 | 0.0250000000 | $443,890 | $443,890 | $11.10 | | |
| SLDREL | SOLDIERS RELIEF 121 | 0.0155990005 | $443,890 | $443,890 | $6.92 | | |
| EMERGSER | EMS 147 | 0.3792580840 | $443,890 | $443,890 | $168.35 | | |
| EMSRFD | EMS REFUND 147 | 0.0000000000 | $443,890 | $443,890 | $0.00 | | |
| FD4EXP | FD #4 EXPENSE 686 | 0.8836993059 | $443,890 | $443,890 | $392.27 | | |
| RLBRFD | RURAL LIBRARY REFUND 623 | 0.0000000000 | $443,890 | $443,890 | $0.00 | | |
| RURALLIB | RURAL LIBRARY 623 | 0.3710609029 | $443,890 | $443,890 | $164.71 | | |
| PORTRFD | PORT REFUND 640 | 0.0000000000 | $443,890 | $443,890 | $0.00 | | |
| PORTWWGEN | PORT OF WW 640 | 0.2460186015 | $443,890 | $443,890 | $109.21 | | |
| SD140BOND | SD #140 BOND 764 | 0.8342371393 | $443,890 | $443,890 | $370.31 | | |
| SD140GEN | SD #140 GENERAL 760 | 2.0646500647 | $443,890 | $443,890 | $916.48 | | |
| ST2 | STATE SCHOOL PART 2 600 | 0.8131451643 | $443,890 | $443,890 | $360.95 | | |
| STATESCHL | STATE SCHOOL 600 | 1.5158548041 | $443,890 | $443,890 | $672.87 | | |
| STREFUND | STATE REFUND LEVY 603 | 0.0000000000 | $443,890 | $443,890 | $0.00 | | |
| COROAD | COUNTY ROAD 115 | 1.6549953990 | $443,890 | $443,890 | $734.64 | | |
| CRPRD | COUNTY ROAD REFUND 115 | 0.0000000000 | $443,890 | $443,890 | $0.00 | | |
| | Total Tax Rate: | 9.8210551422 | | | | | |
| | | | | Taxes w/Current Exemptions: | $4,359.48 | | |
| | | | | Taxes w/o Exemptions: | $4,359.48 | | |
Improvement / Building
| Improvement #1: | RESIDENTIAL | State Code: | 11 | 1859.0 sqft | Value: | $346,670 |
| Exterior Wall: | SIDING | Heating/Cooling: | WARM & COOLED AIR | | Number of Bathrooms: | 3 | Number of Bedrooms: | 2 | | Plumbing: | 13 | Roof Covering: | COMP SHINGLE |
|
| | Type | Description | Class CD | Sub Class CD | Year Built | Area |
| | MA | Main Area | 1 | 30 | 1950 | 1859.0 |
| | SI1 | SITE IMPROVEMENT | 1 | 30 | 1950 | 1.5 |
| | BASE | BASEMENT | 1 | 30 | 1950 | 486.0 |
| | RPS | PORCH W/STEPS,ROOF | 1 | 30 | 1950 | 63.0 |
| | WOD | Wood Deck | 1 | 30 | 2019 | 264.0 |
| | UTST | Utility Storage Shed | 1 | 30 | 1950 | 96.0 |
Sketch
Property Image
Land
| 1 | RES 1 | Converted: Residential | 0.4545 | 19800.00 | 0.00 | 0.00 | 1.00 | $97,220 | $0 |
Roll Value History
| 2026 | N/A | N/A | N/A | N/A | N/A |
| 2025 | $333,480 | $118,800 | $0 | $452,280 | $452,280 |
| 2024 | $346,670 | $97,220 | $0 | $443,890 | $443,890 |
| 2023 | $346,670 | $97,220 | $0 | $443,890 | $443,890 |
| 2022 | $315,150 | $77,620 | $0 | $392,770 | $392,770 |
| 2021 | $242,420 | $77,620 | $0 | $320,040 | $320,040 |
| 2020 | $173,160 | $77,620 | $0 | $250,780 | $250,780 |
| 2019 | $173,160 | $77,620 | $0 | $250,780 | $250,780 |
| 2018 | $141,570 | $55,500 | $0 | $197,070 | $197,070 |
| 2017 | $128,700 | $55,500 | $0 | $184,200 | $184,200 |
| 2016 | $85,800 | $55,500 | $0 | $141,300 | $141,300 |
| 2015 | $85,800 | $55,500 | $0 | $141,300 | $141,300 |
| 2014 | $85,800 | $55,500 | $0 | $141,300 | $141,300 |
| 2013 | $85,800 | $55,500 | $0 | $141,300 | $141,300 |
| 2012 | $81,800 | $55,500 | $0 | $0 | $0 |
| 2011 | $81,800 | $55,500 | $0 | $0 | $0 |
| 2010 | $75,300 | $55,500 | $0 | $0 | $0 |
| 2009 | $89,800 | $55,500 | $0 | $0 | $0 |
| 2008 | $89,800 | $55,500 | $0 | $0 | $0 |
| 2007 | $76,800 | $33,000 | $0 | $0 | $0 |
Deed and Sales History
| 1 | 05/13/2020 | SWD | STATUTORY WARRANTY DEED | BRYANT ROBERT DALE & TERESA KAYE | POMERINKE ARLAND & MELINDA | | | $319,000.00 | 139099 | 2020-04132 |
| 2 | 11/10/2016 | SWD | STATUTORY WARRANTY DEED | INGRAM BRENNAN | BRYANT ROBERT DALE & TERESA KAYE | | | $199,000.00 | 131414 | 2016-09350 |
| 3 | 02/02/2015 | SWD | STATUTORY WARRANTY DEED | SECRETARY OF HOUSING & URBAN DEV | INGRAM BRENNAN | | | $130,550.00 | 127400 | 2015-01223 |
| 4 | 11/20/2014 | SWD | STATUTORY WARRANTY DEED | WELLS FARGO BANK NA | SECRETARY OF HOUSING & URBAN DEV | | | $248,217.00 | 126975 | 2014-08432 |
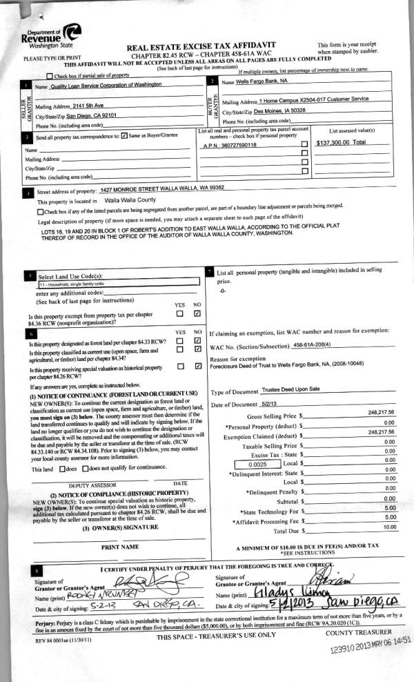
| 5 | 05/06/2013 | WARRANTY D | WARRANTY DEED | QUALITY LOAN SERVICE CORP OF W | WELLS FARGO BANK NA | | | $248,217.00 | 123910 | 2013-04511 |
| 6 | 10/01/2008 | WARRANTY D | WARRANTY DEED | THONNEY, CALEB J | BRADBURY, KYLE E | | | $215,000.00 | 115739 | 2008-10047 |
| 7 | 11/29/2004 | WARRANTY D | WARRANTY DEED | MICHEL, WALTER G | THONNEY, CALEB J | | | $97,000.00 | 106287 | 2004-13678 |
| 8 | 11/29/2004 | QCD | QUIT CLAIM DEED | THONNEY, SHELLY | THONNEY, KENNETH J | | | | 106288 | 2004-13679 |
| 9 | 01/01/1954 | WARRANTY D | WARRANTY DEED | | | | | $0.00 | 0 | 2700-373270 |
Payout Agreement
| No payout information available.. |