Property
Account |
| Property ID: | 35149 | Abbreviated Legal Description: | SPRING HILL #1 PARCEL #2 |
| Parcel Number: | 360732650002 | Agent Code: | |
| Type: | Real | | |
| Tax Area: | 1 - OL-140-F | Land Use Code | 11 |
| Open Space: | N | DFL | N |
| Historic Property: | N | Remodel Property: | N |
| Multi-Family Redevelopment: | N | | |
| Township: | 7 | Section: | 32 |
| Range: | 36 |
Location |
| Address: | 1902 S 3RD AVE WA 99362 | Mapsco: | |
| Neighborhood: | A Res | Map ID: | |
| Neighborhood CD: | 613011 |
Owner |
| Name: | MILLER GARRETT G & AMANDA | Owner ID: | 71041 |
| Mailing Address: | 1902 S 3RD AVE WALLA WALLA, WA 99362 | % Ownership: | 100.0000000000% |
| | | Exemptions: | |
Taxes and Assessment Details
Property Tax Information as of
02/21/2026
Click on "Statement Details" to expand or collapse a tax statement.
* Please enter a valid date ** Please enter a valid date *
Statement Details |
| | TOTAL: | $0.00 | $0.00 | $0.00 | $0.00 | $0.00 | $0.00 |
|
| | $0.00 | $0.00 | $0.00 | $0.00 | $0.00 | $0.00 |
Values
| (+) Improvement Homesite Value: | + | $0 | |
| (+) Improvement Non-Homesite Value: | + | $312,560 | |
| (+) Land Homesite Value: | + | $0 | |
| (+) Land Non-Homesite Value: | + | $64,800 | |
| (+) Curr Use (HS): | + | $0 | $0 |
| (+) Curr Use (NHS): | + | $0 | $0 |
| | | -------------------------- | |
| (=) Market Value: | = | $377,360 | |
| (–) Productivity Loss: | – | $0 | |
| | | -------------------------- | |
| (=) Subtotal: | = | $377,360 | |
| (+) Senior Appraised Value: | + | $0 | |
| (+) Non-Senior Appraised Value: | + | $377,360 | |
| | | -------------------------- | |
| (=) Total Appraised Value: | = | $377,360 | |
| (–) Senior Exemption Loss: | – | $0 | |
| (–) Exemption Loss: | – | $0 | |
| | | -------------------------- | |
| (=) Taxable Value: | = | $377,360 | |
Taxing Jurisdiction
| Owner: | MILLER GARRETT G & AMANDA | | |
| % Ownership: | 100.0000000000% | | |
| Total Value: | $377,360 | | |
| Tax Area: | 1 - OL-140-F |
| CERFD | CURRENT EXPENSE REFUND 010 | 0.0000000000 | $377,360 | $377,360 | $0.00 | | |
| CURREXP | CURRENT EXPENSE 010 | 1.0175366760 | $377,360 | $377,360 | $383.98 | | |
| HUMNSERV | HUMAN SERVICES 119 | 0.0250000000 | $377,360 | $377,360 | $9.43 | | |
| SLDREL | SOLDIERS RELIEF 121 | 0.0155990005 | $377,360 | $377,360 | $5.89 | | |
| EMERGSER | EMS 147 | 0.3792580840 | $377,360 | $377,360 | $143.12 | | |
| EMSRFD | EMS REFUND 147 | 0.0000000000 | $377,360 | $377,360 | $0.00 | | |
| PORTRFD | PORT REFUND 640 | 0.0000000000 | $377,360 | $377,360 | $0.00 | | |
| PORTWWGEN | PORT OF WW 640 | 0.2460186015 | $377,360 | $377,360 | $92.84 | | |
| SD140BOND | SD #140 BOND 764 | 0.8342371393 | $377,360 | $377,360 | $314.81 | | |
| SD140GEN | SD #140 GENERAL 760 | 2.0646500647 | $377,360 | $377,360 | $779.12 | | |
| ST2 | STATE SCHOOL PART 2 600 | 0.8131451643 | $377,360 | $377,360 | $306.85 | | |
| STATESCHL | STATE SCHOOL 600 | 1.5158548041 | $377,360 | $377,360 | $572.02 | | |
| STREFUND | STATE REFUND LEVY 603 | 0.0000000000 | $377,360 | $377,360 | $0.00 | | |
| CWWBOND | C OF WW BOND 643 | 0.2760494372 | $377,360 | $377,360 | $104.17 | | |
| CWWGEN | CITY OF WW 631 | 1.6100204973 | $377,360 | $377,360 | $607.56 | | |
| CWWRFD | CITY OF WALLA WALLA REFUND 631 | 0.0000000000 | $377,360 | $377,360 | $0.00 | | |
| | Total Tax Rate: | 8.7973694689 | | | | | |
| | | | | Taxes w/Current Exemptions: | $3,319.79 | | |
| | | | | Taxes w/o Exemptions: | $3,319.79 | | |
Improvement / Building
| Improvement #1: | RESIDENTIAL | State Code: | 11 | 988.0 sqft | Value: | $312,560 |
| Exterior Wall: | PLYWOOD | Heating/Cooling: | WARM & COOLED AIR | | Number of Bathrooms: | 2 | Number of Bedrooms: | 2 | | Plumbing: | 9 | Roof Covering: | COMP SHINGLE |
|
| | Type | Description | Class CD | Sub Class CD | Year Built | Area |
| | MA | Main Area | 11 | 35 | 1975 | 988.0 |
| | SI1 | SITE IMPROVEMENT | 11 | 35 | 0 | 2.0 |
| | BASE | BASEMENT | 11 | 35 | 1975 | 988.0 |
| | BPF | BASEMENT -PARTITIONED FINISH | 11 | 35 | 1975 | 988.0 |
| | WOD | Wood Deck | 11 | 35 | 1975 | 291.0 |
| | RPO | OPEN PORCH W/ROOF | 11 | 35 | 1975 | 88.0 |
| | ATG | Attached Garage | 11 | 35 | 1975 | 462.0 |
Sketch
Property Image
Land
| 1 | RES 1 | Converted: Residential | 0.1653 | 7200.00 | 0.00 | 0.00 | 1.00 | $64,800 | $0 |
Roll Value History
| 2026 | N/A | N/A | N/A | N/A | N/A |
| 2025 | $281,030 | $125,000 | $0 | $406,030 | $406,030 |
| 2024 | $312,560 | $64,800 | $0 | $377,360 | $377,360 |
| 2023 | $312,560 | $64,800 | $0 | $377,360 | $377,360 |
| 2022 | $297,680 | $52,200 | $0 | $349,880 | $349,880 |
| 2021 | $238,140 | $52,200 | $0 | $290,340 | $290,340 |
| 2020 | $170,100 | $52,200 | $0 | $222,300 | $222,300 |
| 2019 | $170,100 | $52,200 | $0 | $222,300 | $222,300 |
| 2018 | $165,270 | $43,200 | $0 | $208,470 | $208,470 |
| 2017 | $165,270 | $43,200 | $0 | $208,470 | $208,470 |
| 2016 | $157,400 | $43,200 | $0 | $200,600 | $200,600 |
| 2015 | $157,400 | $43,200 | $0 | $200,600 | $200,600 |
| 2014 | $149,900 | $43,200 | $0 | $193,100 | $193,100 |
| 2013 | $149,900 | $43,200 | $0 | $193,100 | $193,100 |
| 2012 | $142,200 | $43,200 | $0 | $0 | $0 |
| 2011 | $142,200 | $43,200 | $0 | $0 | $0 |
| 2010 | $142,200 | $43,200 | $0 | $0 | $0 |
| 2009 | $162,800 | $43,200 | $0 | $0 | $0 |
| 2008 | $162,800 | $43,200 | $0 | $0 | $0 |
| 2007 | $111,900 | $21,600 | $0 | $0 | $0 |
Deed and Sales History
| 1 | 01/19/2022 | QCD | QUIT CLAIM DEED | MILLER GARRETT G | MILLER GARRETT G & AMANDA | | | $0.00 | 143288 | 2022-00697 |
| 2 | 01/15/2016 | SWD | STATUTORY WARRANTY DEED | CORBIN CHRISTOPHER S & KRISTINA D | MILLER GARRETT G | | | $210,000.00 | 129529 | 2016-00348 |
| 3 | 04/29/2013 | WARRANTY D | WARRANTY DEED | FULMER, GUNNER M & SARAH | CORBIN, CHRISTOPHER S & KRISTI | | | $203,000.00 | 123863 | 2013-04187 |
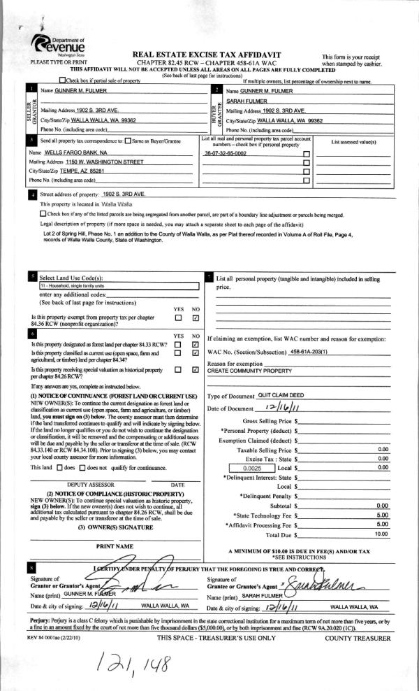
| 4 | 12/21/2011 | QCD | QUIT CLAIM DEED | FULMER, GUNNER M | FULMER, GUNNER M & SARAH | | | $0.00 | 121148 | 2011-10025 |
| 5 | 06/28/2002 | WARRANTY D | WARRANTY DEED | | | | | $132,900.00 | 99829 | 2002-0007449 |
Payout Agreement
| No payout information available.. |