| 1 | 11/23/2020 | WARRANTY D | WARRANTY DEED | MAIURI DONALD R ESTATE OF & JERRI ANN | RUIZ ANTONIO AND ALFREDO RUIZ AND | | | | 122424 | 2020-12343 |
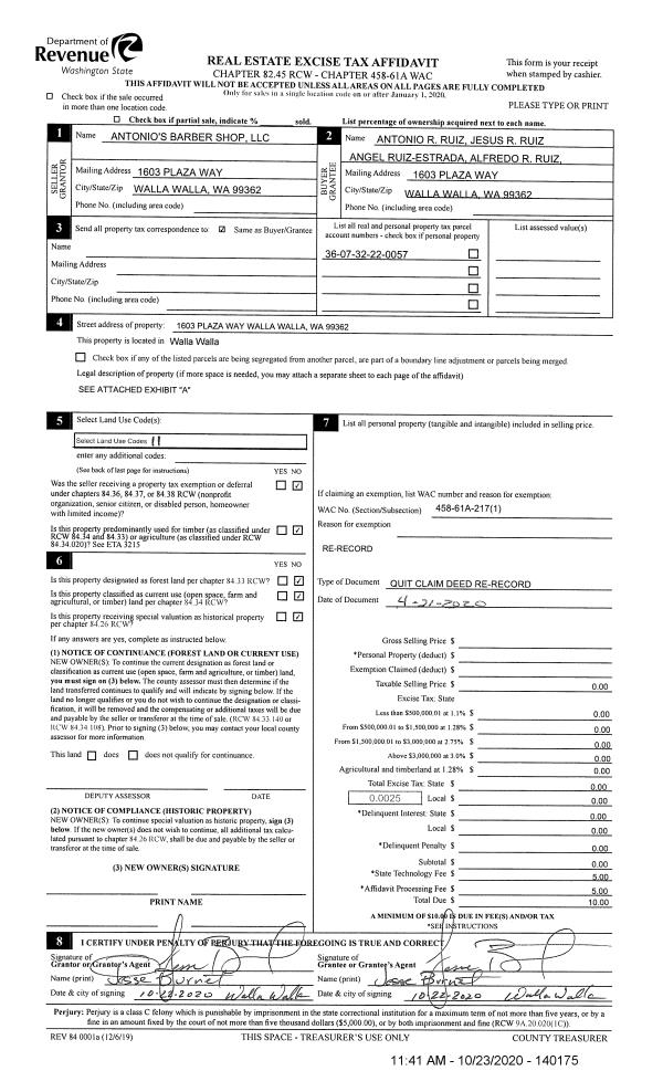
| 2 | 10/23/2020 | QCD | QUIT CLAIM DEED | ANTONIO'S BARBER SHOP LLC | RUIZ ANTONIO AND ALFREDO RUIZ AND | | | | 140175 | 2020-11041 |
| 3 | 04/07/2020 | QCD | QUIT CLAIM DEED | ANTONIO'S BARBER SHOP LLC | RUIZ ANTONIO AND ALFREDO RUIZ AND | | | $0.00 | 138964 | 2020-03430 |
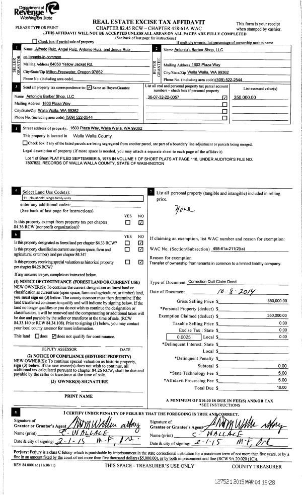
| 4 | 03/04/2015 | QCD | QUIT CLAIM DEED | RUIZ ANTONIO ET AL | ANTONIO'S BARBER SHOP LLC | | | $350,000.00 | 127521 | 2015-01862 |
| 5 | 12/18/2014 | QCD | QUIT CLAIM DEED | RUIZ ANTONIO ET AL | | | | | 126791 | 2014-07539 |
| 6 | 07/31/2012 | QCD | QUIT CLAIM DEED | RUIZ, YOLANDA M | RUIZ, JESUS | | | $0.00 | 122424 | 2012-06515 |
| 7 | 07/31/2012 | QCD | QUIT CLAIM DEED | ROBLES, IMELDA | RUIZ, ANGEL | | | $0.00 | 122423 | 2012-06514 |
| 8 | 07/31/2012 | QCD | QUIT CLAIM DEED | RUIZ, SHERRIE | RUIZ, ANTONIO | | | $0.00 | 122426 | 2012-06517 |
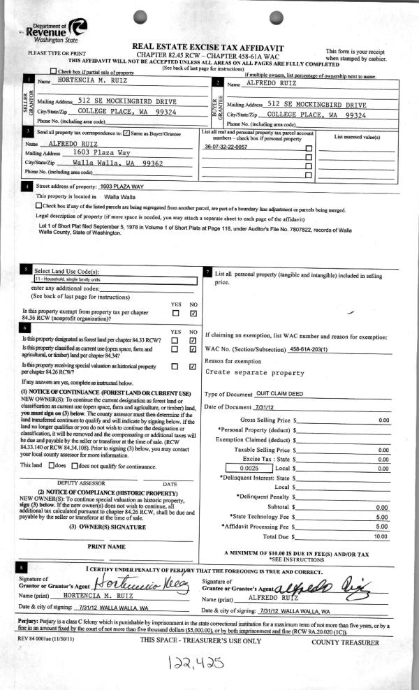
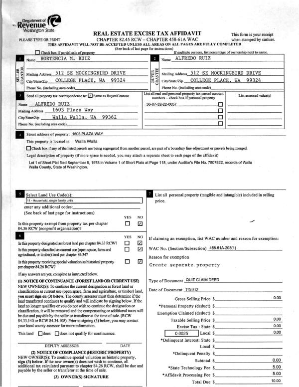
| 9 | 07/31/2012 | QCD | QUIT CLAIM DEED | RUIZ, HORTENCIA M | RUIZ, ALFREDO | | | $0.00 | 122425 | 2012-06516 |
| 10 | 07/31/2012 | WARRANTY D | WARRANTY DEED | MAIURI, DONALD RAY & JERRI A | RUIZ, ANTONIO ET AL | | | $350,000.00 | 122422 | 2012-06513 |
| 11 | 02/02/2006 | QCD | QUIT CLAIM DEED | MAIURI, DONALD RAY | MAIURI, JERRI A | | | | 109604 | 2006-01342 |
| 12 | 01/31/2006 | QCD | QUIT CLAIM DEED | MAIURI, MARIA | MAIURI, DONALD RAY | | | | 109581 | 2006-01198 |
| 13 | 09/04/1991 | WARRANTY D | WARRANTY DEED | | | | | $45,000.00 | 0 | 1919-106057 |